Portfolio Linoy Abutbul 2022

Page 1

תודובע קית 2019-2022 לובטובא יוניל

םירוגמ הנבמו ירחסמ זכרמ | ידירביה וידוטס 2022 ראוני | ‘א רטסמס | ‘ג הנש Shelter From The Storm רחסמו םירוגמ הנבמ |ינוטקטיכרא וידוטס 2021 ינוי | ‘ב רטסמס | ‘ב הנש VETRO FLORENTIN ירוביצ הנבמו ירחסמ זכרמ |ינוטקטיכרא וידוטס 2021 ראוני | ‘א רטסמס | ‘ב הנש “הינולופא” גיידה זכרמ ןפי שבול גרבנזורג ןוינח 2021 ינוי | ‘ב רטסמס | ‘ב הנש ןוינח תיזח | ילכירדא בוציע BOB DYLEN’S HOUSE 2022 ילוי | ‘ב רטסמס | ‘ג הנש םסרופמ תריד | םינפ תולכירדא WEWORK ןוירוג ןב תורדש 2022 ראוני | ‘א רטסמס | ‘ג הנש ירוביצ הנבמ |יגולונכט וידוטס “ןוגינה רזוח דוע” | הרוטקטיכראל ןוכמ 2022 ינוי | ‘ב רטסמס | ‘ג הנש בלושמ רומישל ירוביצ הנבמ | יטאמת וידוטס

052-8365938 Linoy171094@gmail.com 1994 7317 2019 B.ARCH 2019-2018 B.DES 2019-2016 ZEUS 2021 2013-2001 12 4 5 2015-2013 15 15 Revit Autocad Illustrator

םירוגמ הנבמו ירחסמ זכרמ | ידירביה וידוטס ןיב ךוכיחו תופיפצ יאנתב – ריעב תרצונ תישונאה תוברתה ברימ גוזיממ תועבונה תופופצ תוביבס הרצי ,תיתרוסמה ריעה .םדא ינב םימאתומה בחרמ ינותנ םע םוחתו ןותנ חטשב טרפהו הליהקה יכרצ .םינוש םיישונא םיבכרהל תוסנכתהו העונת יללח – םדאה ףוגל ריעה ,תמכחותמו תבכרומ הליעי תושי הניה תינרדומה ריעה הכאלמה תיב לעמ םירוגמ :םישומיש בוריעב הנייפאתה תיתרוסמה הכילה קחרמב קושה רכיכ דצל דומילה יללחל ךומסב תונחה וא יתרוסמה םקרמה תא הכפה תיתיישעתה הכפהמה .ןומראה ןמ םישדח תונויסינו םלוע תוסיפת לש בחר ןווגמ הדילוהו ישונא יתלבל .היבשות לכל םיישונא םייח רשפאלו חתפתהל הכירצ ריעה ךיא לע בחרמל תונוש תויגולופיט ורצונ ,תינוריעה תוחתפתהה ךלהמב גוסל הבושת לש קתרמ ביכרמ ןהב שיש ,תיבה ,יטרפה םירוגמה גשיהב הינבל רמוחהו תישונאה תוברתה ,ינוריעה ךתחה ,בוחרה םינוריע םייחל ףונמה אוה ירוביצה בחרמה .םוקמו םוקמ לכ לש ודי חותיפהו יונישה ןיבהלו דומלל שי ,ריעה לש תוהמה תא ןיבהל ידכ ךא םיטנמונומה ךרד קר תנבומ תויהל הלוכי אל ריע .וירוגמ לש איה רוידה יגוס לכ לש ינונכתה ןויגיהה תרדגה" .הלש תורכיכהו לש םייחה ךרד תא אטבמ תיבה .תיבה תרכה לש תיסיסב הלועפ .רודל רודמ הנתשמו חתפתמ ןכל ,תוברת לכ דחוימב ,םלועה תייסולכוא ריזחה - COVID19 – הנורוקה תפגמ ,הקוסעתה ,םירוגמה תוברת לע תוימויק תולאשל , םירעב םיררוגתמה ,תושונאה תודלות ךלהמב תובר תופגמ ומכ .ירוביצה בחרמהו יוליבה הרזחו השיכרה תוברת םוצמצו יתרבח קוחירל המרג הנורוקה םג תובר תולאש הלעמ הז לכ רשאכ "החפשמה" יסיסבה ישונאה אתל .תובורקה םינשב תוארהל םיכירצ ונלש םירעה ךיא לע םורדה זוחמב הלודגה ריעה ,דודשא איה טקיורפה השענ הב ריעה ריעכ הזרכוהו 1956 -ב הדסונ .לארשי תנידמב הלדוגב תיעיבשהו ,ימורדה ףוחה רושימב ןוכיתה םיה לש ופוחל תנכוש ריעה .1968 -ב ץראב תוקיתעה םירעה תחא איה דודשא .שיכל לחנ םרוז החטשבו הילמנ םע ,ליעפ ימי רחסמ זכרמכ התווהתה הימי תישארב ,לארשי למנ ריעל הכפה תינרדומה תעבו ,םי דודשאבו רומ לתב םיהוזמה .לארשי ילמנב לודגה ,דודשא למנ - םיקהבומה הילמסמ דחא תוכזב תוכפוה רשא ,תופסונ תוימואל תויתשת ריעב תולעופ למנה םע דחי .בושח יתיישעת זכרמל התוא ,םלועה יבחרמ תבחרנ תידוהי היילע תטלוק דודשא ,התמקה זאמ ורצי םילועה .לארשיב םיהובגהמ אוה הב םישדחה םילועה זוחאו לש תדחוימה תוהזה תא דבאל ילבמ ,תיתרבח היצרגטניא ריעב היסולכוא לש הובג זוחא םיררוגתמ דודשאב .ואב ןהמ תוליהקה תינוליחה היסולכאל תאז היסולכוא ןיב תולובגה םינשה ךשמבש תיתד םויה ךא םיקהבומ ויה םהינממסו ריעב םיעבורה רבעב .תשטשטמ טקיורפה ןכ לע -םיעבורה ןיב הגילז הנשי ריעה תוחתפתה רואל ריעב ‘ז ‘ו ‘ה םיעבור לע ססבתמ טקיורפה.תויתדה ילדבה לע ססבתמ .היתועפשהו היסולכואה לש הגילז ןכו םיקהבומ תויתד ילדבה םנשי םהב דודשא | ‘ו עבור ‘ז | ‘ו | ‘ה םיעבור תיזח תוספרמ | היגולופיטתיזח תונולח | היגולופיט 2022 ראוני | ‘א רטסמס | ‘ג הנש Shelter From The Storm

הנבמב םישומיש תמרגאיד “םיחטבמ” םוקמל העגה יזכרמ ריצכ הסחמ םוקמ | העונת תמכס דודשא לש התויה אוה ףסונ ןורקיע .“שא חטש” לש רוזיאב תמקוממ םינש ךשמב םידדומתמ ריעה יבשות ינוחטיבה רבשמה םע תוכורא זכרמה תא הנובש תפסונ היצקנופכו לודג ןורטאית םלוא םייקתמ -ידרביהה .רוזיאה יבשותל טלפמכ שמשמה

1:200 מ“נק תיסופיט המוק תינכת 1:200 מ“נק עקרק תמוק תינכת

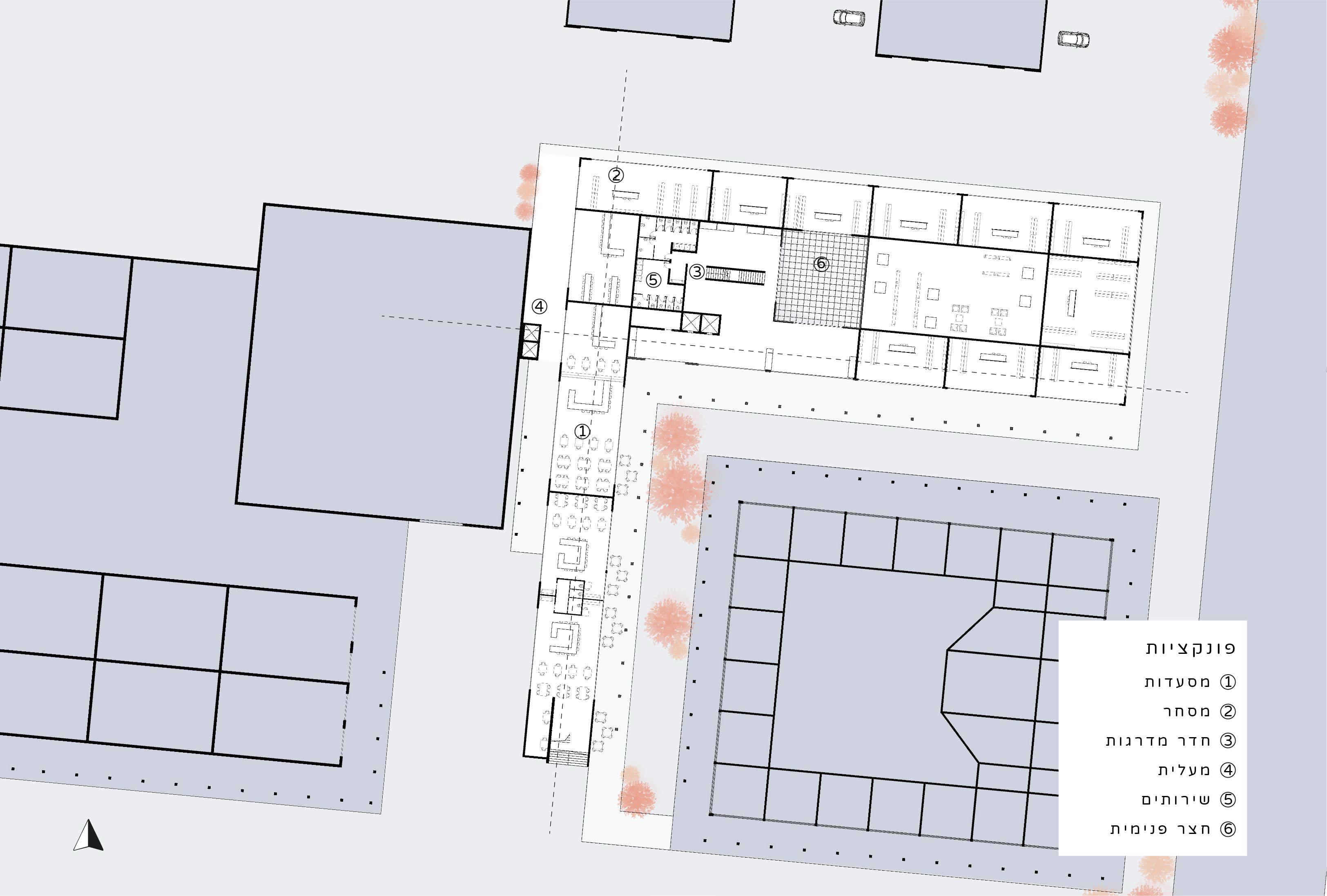
רוזא ןיב דירפמה ץוח קוצמ םייק תילארשיה ףוחה תעוצר ךרואל לעמ ףוחה רושימ ןיבל םילגה תעפשהל ןותנה ,ויתולגרמל םיה ףוח דע עיגמ קוצמה הבוג .תובר תויתשת תומקוממו םינבמ םייוצמ וב תורשע דע םירטמ ןיב לש קחרמב יוצמ וסיסבו םירטמ םישימח קוצמה סיסבב תרזוח םילג תעיגפ תובקעב.םימה וקמ החרזמ םירטמ תא תוגיסמ ןמזה ךשמב רשא תויוטטומתה תעל תעמ תושחרתמ .השביה ןוויכל החרזמ קוצמה גג ףחרמ הארמ תוקינעמה תוקיקד תואסנולכ לע יונב גיידה זכרמ הרשפאו הרגתא קוצמה דצל הינבהו םיב אצמנש יפ לע ףא לילקו .ותסירק תא עונמל תנמ לע םיטנוולר תונורתפ ןווגמ לע בושחל -תונוש גייד תוטיש תווחל רשפאמה םייעוצקמו םינבבוחל גיידה זכרמ .םיידועי םיאת ךטתמ תותשר גיידו תילנויצנבנוקה תוכחה תטיש גיידה “תוריפ” תא לשבל היצופואו לכוא ינכוד ,תודעסמ עיצמ םוקמה תורבעומ וב םוירוטידוא ,את לכב אצמנה לגנמ תרזעב םיאתה ךותמ .גייד דויצל תונחו תורכזמ תונח ,תואמיהו גיידה םוחתב תונוש תואצרה לע תאז תוארל ןתינו םיעבצהו ימגירואה םלועב תדקמתמ בוציעה תפש בוציעה תפשב .הנבמה תא תונובש תוירטמואיגה תורוצהוםישלושמה ידי תנמ לע םימוטאו םיפוקש םירמוח לש בוליש תוארל ןתינ תותיזחה לש .הנבמה לש תולילקהו ףוחירה תא שיגדהל ירוביצ הנבמו ירחסמ זכרמ |ינוטקטיכרא וידוטס 2021 ראוני | ‘א רטסמס | ‘ב הנש “הינולופא” גיידה זכרמ תינכת לדומ

רחסמו םירוגמ הנבמ |ינוטקטיכרא וידוטס 2021 ינוי | ‘ב רטסמס | ‘ב הנש VETRO FLORENTINE 48 A 80 40 32 B 80 40 32 C 125 70 55 D 72 40 32 E 72 40 32 F 100 55 45 הביבס תינכת הנבמה תקולח | המרגאיד ינטנופס ךילהתמ םינשה םע הכפהש ןיטנרולפ םירוגמה תנוכשב דקמתה טקייורפה הפופצהו תינוריעה םירוגמה תעפותב הדקמתה הז רטסמסב הדימלה .ןנכותמ ךילהתל תוילנויצקנופ ךותמ בושחל הבייחו טרפב ןיטנרולפ תנוכש לשו ללכב ביבא לת לש םירדח 2-4 תונב תוריד 16 ליכמ ,לצרה בוחרל הנופ םירוגמה ןיינב .םוקמה לע הבישחו תוינבמהו םיסקלפוד לש טפסנוקב תויונב תורידה .תוריעצ תוחפשמו תוגוזל םידעוימה תא הליכמו בוחרה םע תבתכתמ רחסמה תמוק .הבוגב היינשה תא תחא תומילשמ ןהלש יריידל רצחו ויטאפ ,רשוכ רדח ןייק תירוחאה תיזחב ,בוחרל הנופה תיזחב רחסמה תויונח תתשומ תורידה בוציע .ןיינבה יידליל ילנויצקנופ הנעמו הבישי תוניפ ןיינבה גגב .ןיינבה םיאתמה יתרקוי הארמ הנקמה שיש תרוטסקטו הקורי ,הרופא םיעבצ תטלפ ,םזילמינימ לע תיכוכז תספוק” לש השוחת תונתונו תיכוכז תויושע ןיינבה תותיזח.יביבא לתה םוקמה חורל .שמשה ינרק תמצועב טולשל ןתינ ידועיי ךוסימ י“ע .עקרקה ןמ תקתונמה “תפחרמ

0.01 15.00+0.00 ב.פ0.15 15.00היירלג0.00 ב.פםיחרפ0.15 תונח וקתספרמהנוילע 15.00הפשא+0.000.15רדח 15.000.00 ב.פםירייד0.15רשוכ רדח רשוכ רדח םיתוריש ןכש ןיינב וקתספרמהנוילע 15.00+0.00 ב.פןיינבל0.15ישאר יבול ןכש ןיינב בוחרלצרה בוחרקושה לובגוק=שרגמןיינב0 תרושקתתומוקרדח הצוח ויטאפ ןיינבל ירוחא יבול ןוניג תוגרדמ רדחל שא תלד 4010תינוירש םגד סנפד תרדס תינוירש תרבחKONE TRANSYS DX KONE120220 150 טמ רומיגינולאמ"ס תרבח 203051רפרפא ןווג 18.8518.50 10 12 16 םירטסקא םגד ןלצרופ טינרג טמ רומיג מ"ס90 90 מ"מ לש תוגופ תילירקא הבורב שומיש4.76 ב.פ םיילארנימ םייטסוקא תוחול הרקת תכמנה AMF TOPIQ תרבח KNAUF םגד מ"מ 600X600 טמ ןבל רמג היומס היצקורטסנוק חירא תוצק 20X600 ןבל רמג 2 5 19 22 2 רפסמ הריד 8 רפסמ הריד 14 רפסמ הריד 3 10 13225 4 11 17 20 23 14 10 27 9 10 12 16 7.52 4.76 ב.פ 2 5 6 19 22 5 רפסמ הריד 11 רפסמ הריד 19 רפסמ הריד 4 10 13 7 25 2 4 11 17 20 23 14 10 27 םוטיא תועירי ,םיעופיש ןוטב ,ימרת דודיב תבכש 15.00+0.00יטולוסבא הבוגתישאר0.02ןיינב תסינכ תירוחא ןיינב תסינכ תיברעמ תיזח תיחרזמ תיזח+++++++++++3.724.078.008.3511.3811.7316.6316.9821.4321.7826.23 +28.68 םוינמולא תרגסמב תוימאניד םוינימולא תופפר םיגרב ידי לע הרקתל תנגועמ הליסמהשכ םוינמולא ןימובלא תרבח המוקל םאתהב הנתשמ הבוג מ"ס X1 IRON1200 רפרפא ןווג הנירטו תונולח תכרעמ 9400ףונ םגד לילק תרבח מ"מ12תידודיב תיכוכז יושע הנבומ תכתמ ליפורפ יושע המוקל םאתהב םינתשמ םילדג IRON1200 ילאטמ רופא תכתמ ןווג יניירג TM70 ינועבצ ילירקא טכילש snow white OW201P ןווג 9200 סיפוא םגד תיכוכזמ הזזה תותלדלילקתכרעמתרבח IRON1200 קירבמ קלח רומיגב רפרפא ןווגב םוינמולא מ"ס 300 270 ןוולוגמ תכתמ הקעמ רונתב העיבצ רפרפא ןוולג רובמט תרבח ההכ רופא-ישמ עוקר שממ סיסב לע ןוטרמה יומס ףוקשמ םע תספרמל האיצי תלד טמ יעבט ןוגליא ןווג םוינימולא ןרוק תרבח ++14.60ב.פ+5.00+11.2ב.פ17.80ב.פ +21.78 +16.40 +21.78++4.0021.00+11.50ב.פ+8.20ב.פ1טרפ 2טרפ 3טרפ 800לק סבג חיט סקיפרטסימקלחתרבחרמג

ןלצרופ טינרג תוגרדמסקירטמיופיחםגד פילס יטנא רמג טמ רומיג ינולארפרפאתרבחןווג ףוצירל סיסבכ181 טיט רפוס מ"ס2 יבוע סקיפרטסימ תרבח תוגרדמל הקלחה ספ םולהי םגד יתוחיטב תרבח לק סבג חיט סקיפרטסימןוטבקלחתרבחרמגתקיצי ןלצרופ טינרג תוגרדמסקירטמיופיחםגד פילס יטנא רמג טמ רומיג ינולארפרפאתרבחןווג ףוצירל סיסבכ מ"ס2 יבוע סקיפרטסימ תרבח תוגרדמל הקלחה ספ םולהי םגד יתוחיטב תרבח מ"ס 5יבוע 800לק סבג חיט סקיפרטסימןוטבתובכשתרבחקלחרמגתקיצי ןלצרופ טינרג תוגרדמסקירטמיופיחםגד פילס יטנא רמג טמ רומיג ינולארפרפאתרבחןווג 800לק סבג חיט סקיפרטסימקלחתובכשתרבח3רמג םגד די זחאמ TK-105 קמט תרבח מ"מ 20סוידרב הטסורינ רוניצ ךותיר ידי לע רוביח מ"מ 65הדלפ תטלפ תיביטרוקד הריגסל הטזור ךותירב רוביח מ"מ 10ץחךרואבןגוע HNGFIX10 םגד תיחרזמ 1:25 מ“נק רוביח יטרפ

ןכש ןיינב ןכש ןיינב בוחרלצרה בוחרקושה םוינמולא תרגסמב תוימאניד םוינימולא תופפר םיגרב ידי לע הרקתל תנגועמ הליסמהשכ םוינמולא ןימובלא תרבח המוקל םאתהב הנתשמ הבוג מ"ס 1X1 IRON1200 רפרפא ןווג ץוח חיט יניירג TM70 ינועבצ ילירקא טכילש snow white OW201P ןווג הנירטו תונולח תכרעמ ףונ םגד לילק תרבח מ"מ12תידודיב תיכוכז יושע הנבומ תכתמ ליפורפ יושע המוקל םאתהב םינתשמ םילדג IRON1200 ילאטמ רופא תכתמ ןווג+++++++++++++3.724.078.008.3511.3811.7316.6316.9821.4321.7824.8126.2328.68 תיברעמ תיזח בזרמ-םימ תאיצי תדוקנ +0.20 15.00+0.00יטולוסבא הבוג +++++6.90+5.1111.17+9.4014.55+12.7719.80+18.0024.60+22.83+2.97 ןכש ןיינבןכש ןיינב תויביטרוקד םוינימולא תועוצר SENMRY IRON1200 רפרפא ןווג מ"ס 0.5X20 תיזח ץוח חיט TM70 ינועבצ ילירקא טכילש snow white OW201P ןווג סיפוא םגד תיכוכזמ הזזה תותלדלילקתכרעמתרבח מ"מ 10 תידודיב תיכוכז IRON1200 קירבמ קלח רומיגב רפרפא ןווגב םוינמולא מ"ס 300 270 4300יגלב לילק הרדס תישאר הסינכ תלד לילק תרבח IRON1200 קירבמ קלח רומיגב רפרפא ןווגב םוינמולא* תוגרדמו תילעמ רדח ןוולוגמ תכתמ הקעמ מ"ס רונתב העיבצ רפרפא ןוולג רובמט תרבח ההכ רופא-ישמ עוקר שממ סיסב לע ןוטרמה

ןולקשא | לדגמ “ןוגינה רזוח דוע” | הרוטקטיכראל ןוכמיזיפה בחרמה לש בוציעלו רקחמל םוקמ הווהמ– "הרוטקטיכראל ןוכמ" ,םייתוברת םיכרע םינתשמ ןמזה ףולח םע .הרוטקטיכרא תועצמאב ילאוטריוהו םידלונ םירחאו ,םיביצי םקלח ,םכרע תא םידבאמ םקלח .םייתביבסו םייתרבח הדובעה ךלהמב ולאשנ רשא תולאשה .םיינכדע םיכרצו תושדח תוסיפת ךותמ תדימ ,הרוטקטיכראה תנילפיצסיד לש הדועייו היפוא לע ןניה טקיורפה לע תיכרע ,תודעומ הינפ ןאלו הווהתמהו תיחכונה תואיצמב הלש תויטנוולרה שמשיש הנבמ לש ויומידו ותוהמ לע ןוזחו הבשחמ וררועש תולאש ,תיעוצקמו ירוביצ הנבמ וניה בצועו ןנכותש הנבמה ךכל םאתהב .הרוטקטיכראל ןוכמ .םוקמלו ןמזל , אשונל םיאתמה ר"מ 2500 -כ לש הנובמ חטשב קר םניאש ,םישוטנו םיחונז םישרגמו םינבמ םימייק ץראב םינוש תומוקמב .םדיתע תא בצעלו םולחל תונמדזה םג םיוהמ אלא ,יתביבס דרטמ 2022 ינוי | ‘ב רטסמס | ‘ג הנש בלושמ רומישל ירוביצ הנבמ | יטאמת וידוטס “ןולקשא” םידימאה תיב ףוסב םקוה (לשומה תיב) “היארסה תיב” םג הנוכמה הנבמה תפוקתב בחרוה םידימאה תיב .1930 תנשב תינמתועה הפוקתה ,1950 תנשבו םיינרדומ היינב ירמוח תועצמאב יטירבה טדנמה רבל תחפשממ םיחא ינש ידי לע “בלח תפיט” ףינס וב םקוה הבילב אצמנ אוהו ןהכ ילא בוחר לע םקוממ הנבמה .ריעב היחה ריעה זכרממ ךילומו ריעב תובוחר ןיב רבועה יזכרמו ךורא ריצ לש עקובה תכרדזאה ץע ללוכ ,רומישל וניה הנבמה םויכ .היתאפ לא .םיריעצ זכרמל הנבמה ןונכתב םייתלחתה םיכילהת םנשיו וכותמ תינופצ תיזח

הממיב תועש 24 יפ לע הנבמב םישומיש תמכס הנבמב תויצקנופ 4 3 2 1 0 -1 תרצוי:“שדח“ה:“שדח“ה:םידימאההבישיםינמאםוירוטידוארדחהפקתיבםיתורישירוזאתיבהדעסמםידרשמויטאפןיינבההיירפסדומילירוזיאתותיכםיתוריש:םידימאהתיבןמאתותיכםיתורישןיינבההיירפסדומילירוזיאהביתכתתיכ:םידימאהתיבלכואו הבישי תוניפ -“השדחה הרוטקטיכראל:“שדח“ההמוקה”ןיינבההיירלגהתמוק:“שדח“הןיינבהוידוטסתותיכדומילירוזיא:“שדח“הןיינבהחמוצגג הריש םירבדמ הרוטקטיכרא םירציימ הניה םוקמב היווחה .ןמזה תלאש עקרב תססונתמ תאז לכ לעו תא היישעהו חישה לע הלעמ רשא תיטאופ תינוטקטיכרא היווח הלא ןה תוזומ .הרוטקטיכראה לש התוהמ תאו רומישה יכרע תא תונתונ ,הנבמה לא םיעיגמה חרואה ירבוע תא תוחראמש ונל ומרגי ןה .אוושל ונחנז ילואש ןוגינב ףחסיהל ידכב םילכה ?הרישה אוה ןוגינה םאה -תוהתל ?תוימשגלו םייחל למסה אוה ןוגינה םאה ?ןמזה תרהנמ אוה ןוגינה ילוא הירפס הרוטקטיכראל וידוטס לכואו הבישי תוניפ “השדחההפקהמוקה”הדעסמתיב ןמא תותיכו דומילםוירוטידואתותיכהירלג

‘א-‘א ךתח ‘ב-‘ב ךתח עקרק תמוק תינכת

םייק סקטנוקב תינונכת היעבל ללוכ ןורתפב קסועה וידוטס םינוש הדימ הנקב םיטרפה טוריפ תמר דע ילכירדא טוטרש יללכ ינונכת טקיורפב ללוכ ןורתפ ןתמו יגולונכטה עדיה שוביג ,ןיינבה יביכרו םירמוח .וב ךמותו רישעמה יגולונכט דבורב ודובירו WEWORK ןוירוג ןב תורדש 2022 ראוני | ‘א רטסמס | ‘ג הנש ירוביצ הנבמ |יגולונכט וידוטס

הריחבל םסרופמ רובע הריד בוציע הרקת תוכמנהו טוהיר ,הרואת ןונכת -שמתשמל תומאתומה תויצקנופה פ“ע .יקסיוו רוצייל ןבבוחו יאקיזומ ,רפוס ,ןליד בוב BOB DYLEN’S HOUSE 2022 ילוי | ‘ב רטסמס | ‘ג הנש םסרופמ תריד | םינפ תולכירדא

1:100 מ“נק טוהיר תינכת 1:100 מ“נק למשח תינכת 1:100 מ“נק הכמנה תינכת

ביבא לת ריעב גרבנזורג ןוינח לש תיזח בוציע ,רמוחה בוציע ,רמוח םע תוקסעתה .היצקנופלו הביבסל המאתה ןפי שבול גרבנזורג ןוינח 2021 ינוי | ‘ב רטסמס | ‘ב הנש ןוינח תיזח | ילכירדא בוציע

לובטובאLinoy171094@gmail.comיוניל 052-8365938

Turn static files into dynamic content formats.

Create a flipbook
Issuu converts static files into: digital portfolios, online yearbooks, online catalogs, digital photo albums and more. Sign up and create your flipbook.