Architecture Portfolio

Page 1

Portfolio

Selected works

2018 - 2023

Linnéa Stadelmann Lindberg

The Glasgow School of Art Bachelors of Architecture

2020 - 2023

Part 1 Architectural Assistant

Connect, Learn, Cook : 2022 - 2023

Re-Assembling the Library - Bo’ness : 2022

Summer Exercise : 2021

P2 Testbed : 2020

Table of Contents 01 |
02 |
03 |
04 |
05 |
06 |
Clay Sculpture : 2019
Model : 2018

01 | Connect, Learn, Cook:

Urban Food Exchange Platform

The proposal aims to create a platform for individuals who share a common interest in healthy living, cooking, and cultivating, to exchange knowledge, skills, and experiences. It serves as a hub for people from various places to learn from one another and also operates as a food exchange program that distributes fresh produce and meals to local and wider communities.

The building’s design focuses on environmental sustainability, with the main entrance being through the ramp on the first floor, leading to an outdoor and indoor food market, a learning kitchen, and a production area that contributes to the urban food exchange. By extending the proposal into the surrounding area, the building becomes accessible from multiple points.

Moreover, to achieve an eco-friendly building, the main construction material, rammed earth, can be locally sourced, with parts of it obtained from nearby clay pits. Rammed earth has a low carbon footprint and embodied energy associated with its disposal, as well as a high thermal mass that absorbs heat during the day and releases it into the building at night. Overall, it is a material that reduces energy consumption during construction and usage, and can be easily returned to the ground when no longer needed.

Concept - A ‘floating building’
0 10 5 15 1234
Scale 1:100
Cross Section A-A 1:100
Location Plan 1:2500

Site analysis

Firhill

55.878348, -4.267353

North of Glasgow city centre

The site is placed on the hill between the Garscube Road and the Forth and Clyde Canal wich slopes down from the canal to street level. Along the Garscube Road are mainly residental apartments, but with some stores on ground floor level under the residental part of the buildings. The surrounding apartment complexes are 4 storeys high. There is access to the site through the Garscube Road, from the canal by walking down the stairs and through the ramp which goes from the canal to Frihill Road which connects to the Firhill- and Garscube Road.

My proposal put in the site.

Site
Final
Precedent Merging
View from the highest point looking down at the canal View of the ramp Looking up at the site from the lowest point View looking at the site and adjacent ramp

Site model 1:100

Site model 1:200

Site plan 1:500 Firhill Rd
50
ForthandClydeCanal
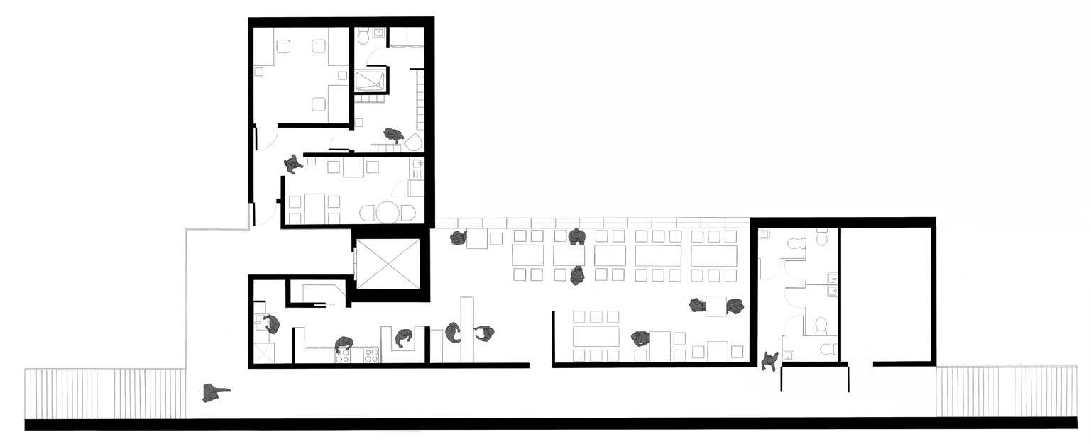
3rd Floor 1:200, Accomodation 0 20 10 5 Scale 1:200 A A B B
2nd Floor 1:200 Library Production Vertical farming Market Grow boxes 0 20 10 5 Scale 1:200 B B A A 1st Floor 1:200 Reception Market Learning kitchen B A Market
Market B A
Plant room Café Seating area B B A A
Ground Floor 1:200
Section B-B 1:200

Illustrations

market illustration External views
Indoor

Roof:

Green roof with exposed CLT (panels) Celling on the interior. Connectet to the walls through Glulam beams which are implemented in the walls.Waterproofing, protective layer, drainage system, filtration layer, soil.

Wall:

Two layers of 255mm thick rammed earth with insulation inbetween. Reinforced with steel and it has a protective coat on the exterior facade. DPM, puddled earth.

Window:

Double glazed windows with aluminium framing. Waterproofing.

Floor:

The upper floors are of CLT panels and like the roof it’s connected to the walls through Glulam beams. The 1st floor have reinforced concrete, with glulam beams underneath connecting it to the exterior columns at the foundation. It has a timber finish on the interor of the floor.

Timeber - cardboard and sand layer. Concrete - DPM, vapour control layer.

Detailed section 1:50 4 3 2 1 0 5 Scale 1:50

The operational energy graph show’s that my proposal has a low electric energy demand as well as a low non-electric energy demand and in the total energy demand we can see that the operational energy overall is kept on the lower side of it.

The lifecycle embodied carbon is kept very low and would reach the 2030 goal. The Substructure have the most embodied carbon over its lifecycle. This could perhaps be improved more on, by using less concrete in some areas on the substructure.

In the whole life carbon graph, we can see that the CO2 emissions over 60 years would be kept relatively low. The operational energy does however increase over time and becomes more than double of the amount from year 30 to year 60.

As of now, my proposal doesn’t use much of the existing elements for the construction, this leads to high operational emissions.

Load-bearing timber frame - internal walls. (vertical, primary structure.)

Rammed earth cloumns (Vertical, primary structure.)

Load bearing facade, reinforced rammed earth. (Vertical, primary structure.) It also works as bracing (provides lateral stability).

This diagram illustrates the beams and columns when under load.

Structural systemn class: Section active

Compression

Tension

Glulam floor / celling beams. (Horizontal, primary structure.)

Rammed earth ‘block’ (Vertical, primary structure.)

Reinforced concrete foundation. (Horizontal primary structure.)

Concection between the reinforced concrete foundation, rammed earth column, Glulam beams as well as the reinforced concrete floor above.

Foundation

0+ 0Compression strain Vertical shear Bending moment Tension strain
Column Beams Concrete floor

Re-Assembling the Library Bo’ness

This project takes place in Bo’ness, I were to alter/extend the Bo’ness library while taking climate change in consideration.

In my proposal I kept the historical buildings; the tavern and the tobacco warehouse where they in the past had stored tobacco from America. I re-moved the middle part which was implemented when the library got renovated in the 1980s.

I am reusing the structural design of the columns and beams. It extends upwards, and the sandstone mortar walls are reused on the ground floor walls.

I used timber for the new levels as well as the structure since it’s environmental friendly and can be sorced localy.

As inspiration for this project I used Skara Brae.

02 |
Location model
The tobacco warehouse The tavern Middle part Existing library

Worm’s eye axonometric view - new meets old

Tobacco warehouse The middle part

Axonometric views of my proposal

1:100 model

1st floor
Ground floor
Internal views - Ground floor
External views

1:2000 location plan

Footprint of proposal

20 50 0 10
1:500 site roof plan Scale 1:500
1:200 2nd floor Café Folding door Terrace Bench
Residential building Red = new 0 20 10 5 Scale 1:200
with tables

Scale 1:200

Red = new

Terrace for the residents

Skylight

1st
1:200
floor
Staff floor
Residential building 0 20 10 5

1:200 ground floor

Waggon Road

-

---

--

Lounge -

Scotland’s close

Adjacent building Adjacent building

Main street
-
-
--
Computer room, surrounded with bookshelfs -
0 20 10 5
Red = new
Scale 1:200
1:100 section Scale 1:100 0 10 5 15 1234
1:100 section Scale 1:100 0 10 5 15 1234

Summer Exercise

Before we started stage 2 we were asked to do a few things. One of them was to hone our observational skills by creating a drawing of a room. We were then asked to choose a different room which have been significant to us to observe and record. The room I observed and recorded.

03 |

The room which has been most significant to me during COVID, my boyfriends accomodation which were the place I was at the most during the first year of GSA since I couldn’t travel from Sweden to Glasgow.

Survey room’s dimensions

1:50 Plan 1:50 Section Drawing using only a pencil of a bathroom in an accomodation in Sweden.

P2 Testbed

520 SAUCHIEHALL STREET.

For this project I was given an existing building in Glasgow. I were to research it, the site, the city and develop it into a place of learning.

Place of learning - Food and farming.

Axonometric views.

Marked part - Sauchiehall Street.

04 |

Location plan 1:500

The light pink part shows the original building, the darkpink is the extension.

Site analysis.

Marked building is on the Sauchiehall Street.

Model of the existing building.

Section

1:50, scaled down to 20%.
12500 13500 9000 10 000
1st floor plan 1:50, scaled down to 30%. Section 1st floor

Ground floor plan 1:50, I hade to scale it down to 20%.

(Only 1 entrance for guests at Sauchiehall Street, another entrance in case of fire and for staff at Renfrew street.)

65 000 8200 16400 28 000 37 000
1st floor which could be removed from the model to look underneath on the ground floor. Sketch model. Sketch of the extension (green house).

ROOF ABOVE STAFF ROOMS

Kit of parts, exploded axonometric 1:300, scaled down to 75%.

GLASS ROOF, GREEN HOUSE

TRUSSE

COLUMNS

STAIRCASE

TRUSSES

ORIGINAL ROOF WITH ADDED WINDOWS

1ST FLOOR

STAIRCASE ELEVATOR

GROUND FLOOR

Clay Sculpture

In this exercise I was going to make a cube in clay and then use the word ”calm” to carve away clay piece by piece until all that remain were a spatiality.

05 |

Work in progress:

1. 2. 3. 4. 5. 6. 7. 8.

This is a model I built based on the theme ”cold and warm”. When making the model I only used parchment paper and barbecue sticks. The more narrow part represent warmth and the more open one is the cold area.

06 | Model
Pencil drawing
Section Floor plan

Turn static files into dynamic content formats.

Create a flipbook
Issuu converts static files into: digital portfolios, online yearbooks, online catalogs, digital photo albums and more. Sign up and create your flipbook.