Portfolio 2025

Page 1


LINDA MURIUKI

ARCHITECTURAL PORTFOLIO

SKILLS

3D modelling: ArchiCAD, Revit, Sketchup, Rhino

Parametric tools: Grasshopper

Rendering: Twin motion

Adobe creative suite

Python programming

Algorithmic thinking

Data visualisation

Project management

EDUCATION

2024-2025; CARDIFF UNIVERSITY

Msc. Computational Methods In Architecture

2023; BORAQS PROFESSIONAL EXAMINATIONS

Registered Architect

2018 - 2020; JOMO KENYATTA UNIVERSITY OF AGRICULTURE AND TECHNOLOGY

Bachelor of Architecture

2014 - 2018; JOMO KENYATTA UNIVERSITY OF AGRICULTURE AND TECHNOLOGY

Bachelor of Architectural Studies

MEMBERSHIP

Women In Real Estate (WIRE)

Architectural Association of Kenya (AAK)

board of architects and quauntity surveyors (BORAQS)

HOBBIES

Hiking

Travelling

Swimming

Lawn tennis

Building furniture

EXPERIENCE

SEPTEMBER,

2023 - SEPTEMBER, 2024 : CONSULTING ARCHITECT, MAISHA

MAREFU & ULO DESIGN

• Collaborated with Maisha Marefu (a local NGO) on a dining hall project for Uaso Girls’ Secondary School in Samburu, Kenya. This being a remote location, I worked with a team to gather information on locally available materials and construction methods and conceptualised the design of the project.

• I was contracted by Ulo Design to produce RIBA Stage 3 and 4 drawings of an affordable housing estate in Nairobi, consisting of eight townhouses.

MARCH, 2022 - JULY, 2023 : JUNIOR ARCHITECT, URKO SANCHEZ ARCHITECTS

• Urko Sanchez Architects is an architectural firm based in Spain and Kenya. Based in the Kenya team, we focused on a range of projects. My role as the Junior Architect included providing preliminary design research for project proposals, developing drawings for client presentation, consultant coordination and construction, as well as construction supervision. Some of the projects I worked on include an urban regeneration project - Kenya, WWII CemeteryEritrea, Nairobi Waldorf School - Kenya, a Petrol Station and Commercial Development - Kenya.

• Collaborating with the team across various RIBA stages, I ensured that consultants’ proposals align with the project goals. Attending site meetings and conducting site inspections to ensure that the objectives of the project are being met. I also adapted to various administrative tasks such as sourcing health insurance covers

• While working at Urko Sanchez, I learnt about the use of parametric design tools (e.g. grasshopper) and strengthened my project management and collaboration skills, which I applied to both design and site supervision phases. This experience has equipped me with strong problem-solving skills, coordination and project execution skills.

JANUARY, 2020 - 2021 : GRADUATE ARCHITECT, RHIZOME STUDIO

• Rhizome Studio is a boutique architectural firm specialising in high-end residential projects in Nairobi, Kenya.

• My team and I handled construction supervision and site inspections for a home renovation, prepared approval drawings for a family residence and managed the coordination, tendering and construction supervision of a residential court development.

• This role taught me the importance of project management, effective communication and collaboration skills.

PROJECTS

PANELISING WITH VORONOI

Cardiff University, UK

Individual Work

GENERATIVE SYSTEMS

Cardiff University, UK

Individual Work

MULTI-OBJECTIVE SYSTEMS

Cardiff University, UK

Individual Work

Nairobi, Kenya Teamwork

WWII CEMETERY

Asmara, Eritrea Teamwork

NAIROBI WALDORF SCHOOL PROJECT

Nairobi, Kenya Teamwork

KAIRA LOORO COMPETITION

Baghere, Senegal Teamwork

THESIS PROJECT

JKUAT, KENYA

Individual work

01

PANELISING WITH VORONOI

Creating organic, cell-like patterns by dividing a surface into irregular but structured panels. Leveraging nature’s way of organizing space, often seen in honeycombs or cracked mud to create dynamic, unique tessellations for architecture and fabrication

Construct a 3D object

Populate 3D object with points

Generate 3D voronoi cells

Deduct edges from voronoi cells

create a 3D box as

Extract the edges using brep edges.

Final product

Scale voronoi cells depending on their distance

Populate the box with points. Generate voronoi

Scale cells depending on their distance to the center

Scale cells depending on their distance to the center

02

GENERATIVE SYSTEMS:

WASP WITH MESH CONSTRAINTS

This project explores generative design similar to “digital” Lego pieces that grow organically but stay within set boundaries. Wasp drives modular connections, while mesh constraints shape the structure. The goal is to balance creativity with control, making dynamic yet intentional forms for architecture and fabrication.

Create a base shape Create a stochastic aggregation based on the rules created.

Digital Workflow Create mesh to constrain the aggregation

Identify connection points of the shape

Repeat the stochastic aggregation with a mesh constraint

Digital Workflow

Stochastic aggregation of the timber plank

20 x 20 x 200 mm timber plank was used as the base shape. Mesh downloaded from

03

MULTI-OBJECTIVE SYSTEMS & ENERGY ANALYSIS:

GALAPAGOS & LADYBUG

This project leverages Grasshopper to optimize design decisions based on Nairobi’s climate data. By integrating an EPW file, Ladybug provides real-world environmental insights, while Galapagos helps refine parameters through evolutionary algorithms. Together, they enable smart, climate-responsive design that adapts to local conditions for better performance and sustainability.

Create a curve

Design a context for the proposed development

Linear array the curve to create several floors

Ladybug plug-in

Import an EPW describing Nairobi’s weather

Get a cumulative sky matrix to calculate the radiation of the sky

Incident radiation tool: to determine the approximate energy collected

Building iterations

Rotate arrayed curves

Loft the floors to create a building. Turn the building brep to a

Energy Collection for one design

Galapagos plug in

Genome: Curve rotation

Fitness: Total energy collected from the cells

Ellipse

Proposed context

GALAPAGOS ITERATIONS

Incident array of the building within its context

INCIDENT ARRAY WITH LADYBUG

An epw of Nairobi was used to determine the amount of sunlight received in the city

PETROL STATION & COMMERCIAL DEVELOPMENT IN NAIROBI, KENYA

As you step into this unique project, you find yourself transported to the heart of the African savannah. The main concept is a series of Maasai huts nestled amidst a picturesque landscape of towering savannah trees.

The petrol station canopy is no ordinary canopy! The pattern of the savannah tree has been magically abstracted, creating a whimsical roof that will leave you in awe. The canopy mimics the natural rhythm of the trees, with several crests and troughs flowing throughout its structure.

BUILDING SECTION

The proposed site is located on a sloped site creating beautiful views towards the valley.

Activities on the site include a petrol station, restaurant, cafeteria, supermarket and store.

Chemist
Bakery
Lift
Escalator
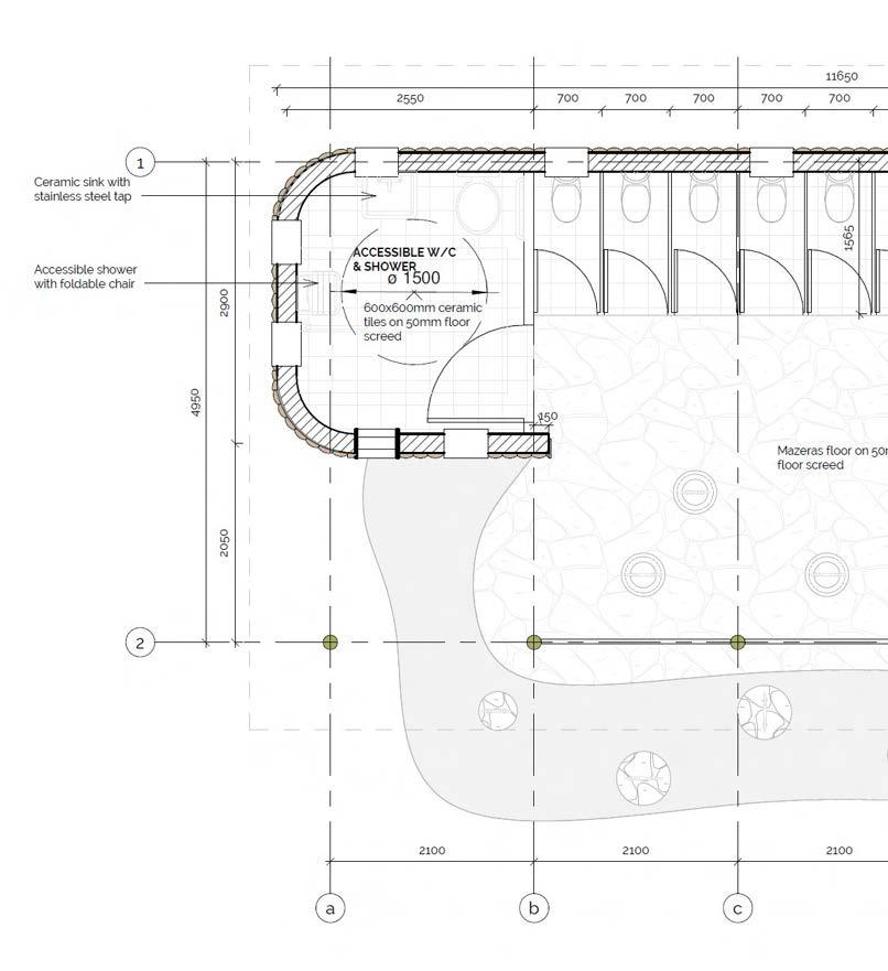
Men’s washroom
Ladies’ washroom
Bar
Restaurant
Kitchen
Utility
Loading bay
Offices
Kitchen
Cafeteria
Petrol station canopy

PHYSICAL MODEL

A physical model of the petrol station canopy to investigate issues such a structure, rainwater harvesting and vegetation.

WWII CEMETERY IN ASMARA, ERITREA

Based in Asmara, Eritrea, the project brief was to create a workshop/ training and storage space for the workers of the cemetery.

SOLUTION:

Based on vernacular Eritrean Architecture, the design was derived from the Hidmo typology which is found in the highlands. The design features two thick walls supporting a flat roof that mostly contains vegetation. The flat roof extends outwards to create a verandah referred to as Gebella.

The resulting design is based on the hidmo typology where we have two rectangular structures of varying sizes. Each structure with an entrance verandah depending on the direction of accessibility. The proposed green roof features shrubs growing on a thin layer of growing medium, resembling the green roof of the Hidmo.

CONCEPT

Individual hidmo representation through mass

Division of activities into masses: storage and workshop

Form exploration by displacing the masses.

Final accommodation placement according to area requirements

1. Entrance
Store
Workshop 4. Washroom
5. Changing room 6. Water tower
Silo

ELEVATION STUDIES

Schematic studies of the elevation indicating the materiality of the proposed building.

The overhead water tank and solar panels were an important element for the client to perceive the effect this would have on the overall elevations of the building.

06

NAIROBI

WALDORF

SCHOOL IN NAIROBI, KENYA

Nairobi Waldorf set its sight on a magnificent new location in the lush forests of Karen. Their goal was to create a campus that would become a haven of creativity and wonder, accommodating students from Pre-primary to high school.

The new campus concept emerged to blend organic forms with locally available materials. Undulated fibreglass sheet walls with soil packed between the cavity to make a living wall. Natural elegance of masonry stone walls where plumbing is required and offcut cladding. Curved pathways winding through the trees leading students through the campus made of mazeras floor finnish. With every step taken, the campus

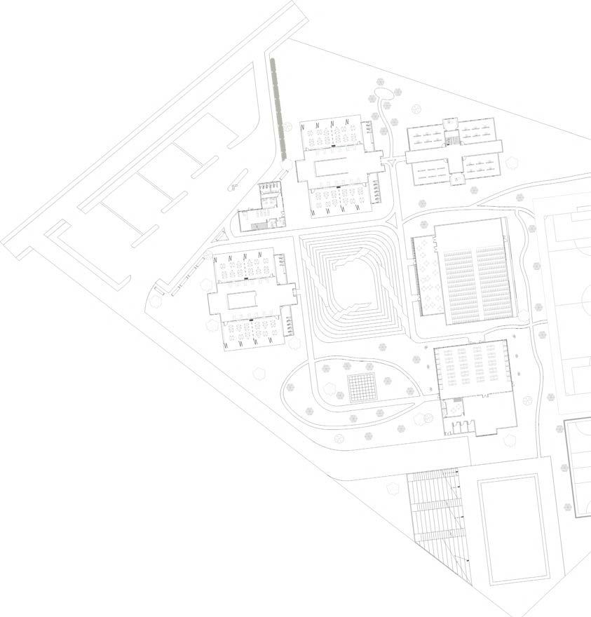
SCHOOL SITE PLAN

KEY

1. Proposed pre-primary cluster

2. Proposed primary cluster

3. Proposed secondary cluster

4. Washroom block

5. Existing laboratory

6. Proposed laboratories

7. Art and handcraft room

8. Library

9. Teachers room

10. Existing admin block

11. Curative and sick bay

12. IT room

13. Existing admin block

14. Dining hall

15. Workshop

16. Sports fields

07

WOMEN’S HOUSE, KAIRA LOORO

COMPETITION

The Kaira Looro Competition is an annual extravaganda that brings together visionary minds from all over the world to create mind-blowing designs in marginalized areas. This competition is all about finding solutions to social issues through design and turning problems into playgrounds of possibilities.

I gathered a team of talented and motivated individuals with the common goal of addressing the needs of our users.

SOLUTION

Our design concept takes us deep into the heart of Senegal, where the mighty baobab tree, also known as Pencha,which was considered a sacred gathering place. The proposed women’s house would contain workshops which inspire creativity, child play areas ignite imagination, and prayers spaces that create tranquility. All these spaces revolve round a central meeting space, echoing the spirit of the ancient Pencha. Here, voices are heard, ideas are shared, and connections are forged.

CONCEPT

Different activities to be accommodated within the women’s house are represented by circles of different sizes.

These activities (circles) are organized in a circular manner and are connected through a central meeting space similar to the baobab tree.

FLOOR PLAN

Inspired by the vibrant tapestry of diverse genders, backgrounds, and experiences, our design embodies the spirit of gender equality in a truly captivating way. The symphony of circles representing a unique individual. They vary in size, highlighting the beauty of diversity and different functions within the house.

This cohesive composition represents the inteconnectedness of individuals, regardless of gender or background, who come together to create a better future for marginalized women in Baghere, Senegal. It is a celebration of unity, strength, and the power of collaboration.

KEY

1.

reporting office

Outdoor meeting space 2. Reception office 3. Collective meeting space 4. Accommodation rooms
Bathroom
Flexible workshop room 7. Flexible meeting room 8. Creche / daycare 9. Gender based violence

08

COMPETENCY BASED CURRICULUM, THESIS

PROJECT

Learning in schools is referred to as the process of acquiring knowledge. With the advent of Competency Based Curriculum (CBC), a remarkable shift has occured, transforming the very essence of knowledge acquisition. This educational revolution has unleashed a wave of changes that ripple through the design of schools, ensuring a constant and dynamic learning experience for students through the following ways:

a) from passive instruction to interactive and engaging pedagogical landscape

b) cutting edge technology through innovative tools and digital resources such as interactive whiteboards

c) diversity of learners in backgrounds, abilities and interests

Illustration through which the site plan was derived

This outdoor space emphasizes on extracurricular activities by providing an area for exhibtion, outdoor performance and outdoor learning

This outdoor space emphasizes on extracurricular activities by providing an area for exhibtion, outdoor performance and outdoor learning.

Tuition blocks will have amphitheatre style staircases that can be used as additional learning spaces.

Aside from providing a space for perfomance arts and events, this space can be transformed into additional classrooms in the event that existing classrooms are crowded. The following methods will be used:

SCHEME ELEVATIONS

WEST ELEVATION

NORTH ELEVATION

“WE BORROW FROM THE NATURE THE SPACE UPON WHICH WE BUILD”
~TADAO ANDO

CONTACT DETAILS

Turn static files into dynamic content formats.

Create a flipbook
Issuu converts static files into: digital portfolios, online yearbooks, online catalogs, digital photo albums and more. Sign up and create your flipbook.
Portfolio 2025 by Linda-LM - Issuu