SCIENESEUM-E-PORTFOLIO

Page 1

E-PORTFOLIO LimXinYi|0354725 IAD IV IDS606068|IADSemester4[August-December2022] BachelorofArtsinInteriorArchitecture LECTURERS:MS.YASMINRAHMAN&MS.FATIMAHKHAIRI
PROJECT1 Project1(A):GroupNarrativeIssues&ProgrammesBoards Project1(B):IndividualObjectBoards&Gifsubmission Project1(C):ProgramDiagramBoards PROJECT2 Project3(A):30-secondsTeaserVideoSubmission Project2(A):Building/SiteModel Project2(B):SpatialIndividualInteriorModelMaking FINALPROJECT Crit1 Crit2 Crit3 OverallFinalPresentationBoard PROJECT3 TABLE OF CONTENT SELF-REFLECTION

PROJECT 1

-TASK 1A

NARRATIVEPROGRAM

I was assigned to form a group to select one Sustainable Development Goal (SDG) to extract issues and propose suitable programs that are inlinewiththeselectedgoal.

NarrativeIssueBoard NarrativeProgrammingBoard

PROJECT 1

-TASK 1B

The group was assigned to propose suitable programs. Each of us will need to identify what you are designingandbegintodevelopyour programme narrative, through objects. These objects can vary in size, but should be within 3m(L)x3m(W)x4m(H)limits.

SCANME
Week4FinalSubmission
GIF ObjectProgressSubmission

FINAL OBJECT

GIF

SCANME

FinalReview
Each group is required to select one Sustainable DevelopmentGoal(SDG)toextractissuesand 1.ConceptDesignoftheoverallCENTERspace 2.IdentityandStyle 3.TargetGroup 4.ActivityIdentification 5.ConceptMechanismApplied 6.Sequence/Flow/System PROJECT 1 -TASK 1C Week9ProgramDiagramResubmission Week7ProgramDiagramSubmission FinalReview
Frontview Perspectiveview Groupphoto Task2A:EachgroupisrequiredtobuildaphysicalmodelofthePAMbuildingatascaleof1:100usingsuitableandsturdy material. PROJECT 2

Task 2B: Each student will later be required to produce a spatial model at the same scale (1:100) for the proposed interior areas. The model must be able to detach itself and reattach in the Building/Site Model done in groups.

Puzzlearea-MixandMatch MainObject -FunWithMotion
PlanetWorld
FinalReview
PipeOutStation
TopView
FINAL PROJECT WORK-PLAY CENTER Crit1 Crit2 Crit3 AllFinalProjectPresentationBoards(Overall)
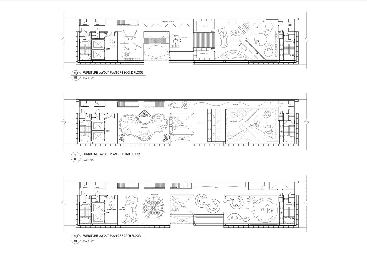
CRIT 1 - WEEK 7 Floorplans P1(C)ProgramDiagrams
FINAL PROJECT
PROJECT CRIT 2 - WEEK 9 Perspectives Explodedisometric PipeOut PlanetWorld Exploremore'gainmore Mainobject-Funwithmotion LavaLampTower
FINAL

FINAL PROJECT CRIT 3 - WEEK 11

Section Elevations

FINAL PRESENTATION BOARD

INTRO

OBJECT

PROGRAM DIAGRAM

FLOOR PLANS

ELEVATIONS

SECTIONAL PERSPECTIVE

EXPLODED ISOMETRIC

PERSPECTIVE VIEW

PIPEOUT

PERSPECTIVE VIEW

MIX&MATCH

PERSPECTIVE VIEW

MAINOBJECT-FUNWITHMOTION

PERSPECTIVE VIEW

PLANETWORLD

PERSPECTIVE VIEW

EXPLOREMORE,GAINMORE

PERSPECTIVE VIEW

LAVALAMPTOWER&TOUCHABLESCREEN

PERSPECTIVE VIEW

LEISURETIME~

PERSPECTIVE VIEW

WORKHARD!

FINAL REVIEW PRESENTATION

TASKP3(A): WALKTHROUGHSPACEVIDEO SCANME WALKTHROUGHVIDEOFIRSTSUBMISSION SCANME WALKTHROUGHVIDEOFINALREVIEWSUBMISSION
PROJECT 3

SELF-REFLECTION

It was really nice experience through whole semester. I believe that this will give lots of benefit in future. As for me and my group, we are able to communicate well with each other and discuss all the tasks viaZoomandWhatsApp.Eventhoughwedidalsostayedovernightin school to complete the group assignments, it was such a good memory. Through this semester, it helps me gain a lot of knowledges andalsoimprovethedesignskillsthatIhadneverbeentaughtbefore.

Thankstothelecturerswhoarewillingtohelpmeimprovemoreinall theworksduringthissemester.Ireallyappreciateit.

SCANME

THANK YOU

Turn static files into dynamic content formats.

Create a flipbook
Issuu converts static files into: digital portfolios, online yearbooks, online catalogs, digital photo albums and more. Sign up and create your flipbook.