University of California, Berkeley

![]()
University of California, Berkeley

Linda Li
phone +1 (628)241-5691 email lindali282899@gmail.com
address San Francisco, CA, USA
linkedin https://www.linkedin.com/in/limgyee
2023 - 2025 | Architecture
University of California, Berkeley
Bachelor of Arts degree
2019 - 2023 | Architecture
City College of San Francisco
Associate of Architecture
Shatara Architecture
03 2023 - 12 2024 | junior designer San Francisco, CA, USA
APIC Designers
09 2022 - 02 2023 | junior designer San Francisco, CA, USA
Drams Architects 02 2022 - 08 2023 | junior designer Emeryville, CA, USA
Archdaily China 11 2021 - 05 2022 | article intern Virtual, China
Autocad | Sketchup BIM | Revit | Rhino adobe suit
Architecture Foundation SF 02 2023 - present | peer mentor San Francisco, CA, USA
UNI Competition Platform 11 2023 - present | peer junior San Francisco, USA
SF Public Work Graffiti Watch 07 2021 - present | volunteer San Francisco, CA, USA
Asian Commerical Professional 03 2024 - present Bay Area, CA, USA
AIA SF & East Bay 11 2022 - present San Francisco & Berkeley, CA, USA
Industrial Designer Society of America 05 2024 - present San Francisco, CA, USA
AIAS Berkeley Chapter 08 2023 - present Berkeley, CA, USA
NOMA Berkeley Chapter 08 2023 - present Berkeley, CA, USA
Hall of Fame Scholarship
07 2024 | California Homebuilding California, USA
DBIA - Pacific Region Scholarship
06 2024 | Design - Build Institute of America Northern California, USA
ACP College Student Scholarship 05 2024 | Asian Commerican Professionals Bay Area, USA
WACA Scholarship 03 2024 | Wall & Ceiling Alliance California, USA
NAWIC Scholarship 03 2024 | National Ass of Women in Construction California, USA
CSI National Conference Scholarship 10 2023 | Construction Specification Instiute California, USA
CACP Scholarship 09 2023 | Chinese American Professional California, USA
Garden of Knowledge Competition
01 2025 | individual participation San Francisco, CA, USA
2024 PAVE Student Competition 10 2024 | individual participation Berkeley, CA, USA
Marine Fishing Rows Spatial Design 12 2023 | team mate Guangdong China
UAE House of the Future 11 2023 | co-leader Dubai, United Arab Emirates
AIASF Housing + SF 2050 05 2023 | individual participation San Francisco, CA, USA
UNI Mirco Housing Design Competition 05 2023 | 1st Prize Changhua, Taiwan
languages
English Mandarin Cantonese
001 Berkeley Coutyard Student Housing
urban private green space at the mid-density city
002 Chuanghua Solospace
Triangular Module studio
003 Dubai Affordable Single Family Home
Dubai governmence-lead competition project
004 Samples
Office Project & Competition
Date : Semester :
Type:
Location:
Prefessor:
Constribution:
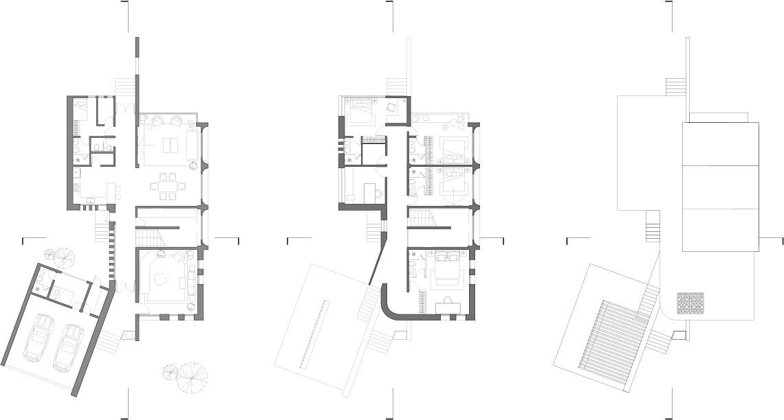
september - december / 2024 fall 2024
residential / apartment 2604 hillegass ave, Berkeley Kristen Sidell digital modeling, 3D printer, Model-making, rendering
This semester, our project focuses on designing a multi-family housing complex near the Berkeley campus, with a total occupancy of 25 residents. The site, located at 2604 Hillegass Avenue, is an L-shaped plot.

The site is surrounded by high-density neighborhoods and a two-story single-family home next door. The concept focuses on reimagining modern living, with units organized around a central courtyard to foster a sense of community and connection among residents. The design consists of two separate buildings, linked through thoughtful landscape design that also enhances green spaces. To soften the structure’s rigid lines, I incorporated curved, undulating glass facades and organic landscape features, emphasizing the integration of urban green areas.
The building’s exterior features a distinctive design with randomly shaped corrugated metal panels, which not only adds visual interest but is also easy to maintain. Each unit is equipped with a semi-private courtyard. Rather than maximizing the building’s footprint, I focused on increasing green spaces to enhance sunlight and ventilation. This approach allows residents to enjoy different courtyards while maintaining privacy for each unit.


2nd Floor
X2 1B1B
X4 2B1B
X2 3B1.5B






roof:
parapert wall
aluminum 6” wide parapet cap flashing
aluminum 4” wide insert gutter board
ceiling joist by hurricane tie insolation
wall:
2” X 6” wood studs @2nd & 3rd level exterior wall
2” X 4” wood studs @2nd & 3rd level interior wall
12” thick concrete wall @ 1st level
window
aluminum window 24” X 60” w/ double glass
aluminum window 96” X 42” w/ double glass
exterior
grey corrugated metal panels

UNI 2023 Solo House Competition 1st Prize
Date :
Semester :
Type:
Location:
Competition:
Constribution: april - may / 2023 Spring 2023
residential / studio Changhua, Taiwan
UNI Micro Housing Design
digital modeling, rendering
This project is a competition at UNI architectural student platform in 2023. The site is a tiny trangle in the cross of the main traffic road in Chuanghua, Taiwan. The jury asked to build 12 units with 20 sqft each. Considering the existing condition, the project was designed as student housing. The building mainly consists of prefabricated module. Efficient and economical construction is facilitated by having a single module type.
The design concept for this project revolves around optimization, particularly due to the site’s sharp and angular layout. In traditional Chinese design philosophy, there is a preference for living in straight and direct interior spaces rather than angular or irregular layouts. To address this, the initial step in the massing strategy involves cutting the angles and strategically arranging 12 modular units within the space. This approach ensures optimal placement for plumbing and HVAC systems. The remaining areas are designed to be flexible, transforming into commun al spaces that cater to the needs of the tenants.





All Modules were prefabricated complete with interior fittings, finished bathrooms, window and steel door, and fixed wood furniture. The site located at the busiest streets at Chuanghua. The crane can lift each module rapidly.
To address the growing concerns related to voice pollution, the development and implementation of individual modules were strategically designed and embedded within a comprehensive sound insulation layer.






horizontal cross section
The entire building is constructed using concrete, a common and traditional building material in Taiwan. The exterior is clad with green corrugated steel, a choice that not only reduces labor costs but also aligns with budget considerations. This design creates a clean and visually soft landmark, particularly for the half of the building that faces the wide traffic road, offering a striking yet harmonious presence in the urban landscape.
window:
36” X 48” and 36” 72” triple glazing in aluminum frame
glue down carpet, PVC adhesive layer, fiberglass mesh, natural rubber chipboard; 30 mm impact-sound insulation PE foil; 60 mm bed of chippings 80 mm cross- laminated timer 70 mm nineral-wood thermal insulation (m.p. > 1,000 C °) 60 mm cross- laminated timmer
50/30/3 mm steel channel fall protection
window sill, wood based material panel, oak veneer
0.4 mm natural rubber epoxy-resin primer; 50 mm screed; plythene foil; 10 mm gypsum load- distribution sheeting; polythene foil; 115 mm levelling layer for service installations 160 precast concrete slab
254 mm precast concrete column parapet cladding:
40/183 mm corrugated sheet steel 40/40/2.5 mm steel SHS framing cavity sheet seetl Z section diffusion open facede membrane 24mm sheathing; 50/150 mm wood framing +; 120/150 mm sheet steel bracket; 175 inlaid mineral wood thermal insulation; 350 mm reinforced concrete exterior
Dubai The Future of House 2024 Competition
Date :
Community Master Plan(Localized along the street)
Semester :
Type:
Location:
Partner:
Constribution:
Dec 2023 fall 2023
residential / single house
Dubai, UAE
Hongliang Zhu, Chang Zhang digital modeling, 3D printer, rendering
Reviewing the past development and future plans of the UAE is akin to tracing the resilient trajectory of a city’s growth. However, this vibrant land is plagued by extreme weather and natural challenges. The cracks in the desert landscape and the veins of plant leaves are derived from the natural branching patterns, analogous to the road networks in urban development serving as the arteries for nutrient distribution in communities. These veins are intricately connected to internally filled spaces, forming an inseparable relationship in the city’s development.




























