CCP Portfolio

Page 1

Liliya Luhavaya P O R T F O L I O

Joseph Lewis House

ADC 103 - Cad Basics

Challenge: practice of working in a group and redrawing a building considering proportions and scale.

Response: To accomplish this task, we split into groups of two and chose a building to trace. My partner in this project was my classmate Divel Armstrong. My task was to draw the first floor of the building and the railing, creating a rounding effect. In the course of work, we learned how to use various AutoCad tools, separate line weights to improve the quality of drawing visualization, attach an external reference to the current drawing and work as a team.

Date:

Liliya Luhavaya ADC 103 Spring 2022 Community College of Philadelphia Joseph Lewis House
Scale: Instructor: Architecture, Design & Construction 05/04/2022 NTS Anthony Palimore South Elevation
Complex Value Drawing Value Drawing
ART 105 - Drawing I
Charcoal Drawing

Museum

ADC 109 - Design Studio I

Challenge: Create a design for a museum dedicated to the artist’s work. A multi-column space on the second floor of an existing building was proposed for the project.

Response: As an artist whose work became the basis for creating the design of the museum, I chose Salvador Dali. The main idea was to create a semblance of a labyrinth, as the personification of the complexity and intricacy of thoughts conveyed in the artist’s paintings. In the center of the museum is an open green space surrounded by a glass wall. Also, the creation of a mezzanine made it possible to separate public and private space and place offices and a meeting room there.

Instructor: David Bertram, RA (Spring 2022)

developed techniques to allow mind to express itself Works of Surrealism feature the element of surprise juxtapositions and non sequitur

Physical model

Dali wanted to revolutionize the art of the twentieth century. All of his initial efforts to improve techniques that were already mastered did not gain him any significant fame. He tried to improve many different styles of art, such as Impressionism, Pointillism, Futurism, Cubism, and Neo-Cubism (Secrest 15). Nevertheless, he sought to fulfill the needs of his mental and social life through a new form of art. This new style of art was Surrealism that allowed Dali to express all of his “erotic desires” and at the same time change the way the world viewed art Surrealism is a cultural movement that developed in Europe in the aftermath of World War I in which artists depicted unnerving, illogical scenes and developed techniques to allow the unconscious mind to express itself. Works of Surrealism feature the element of surprise, unexpected juxtapositions and non sequitur.

Physical model

revolutionize the art of the twentieth century. All of his initial efforts to improve were already mastered did not gain him any significant fame. He tried to different styles of art, such as Impressionism,
Futurism, Cubism, and Secrest 15). Nevertheless, he sought to fulfill the needs of his mental and social form of art. This new style of art was Surrealism that allowed Dali to express desires” and at the same time change the way the world viewed art cultural movement that developed in Europe in the aftermath of World War I in depicted unnerving, illogical scenes and
Pointillism,
Salvador Dali & Artist’s Works Physical model Section First Draft (1st Floor) Floor Plan Mezzanine

Literature Pavilion

ADC159 - Design Studio II

Challenge: Design a public building or complex with a library, gallery, office and performance room in Old City, Philadelphia.

Response: I created several one-story buildings by separating the public space, which includes the library and gallery, and the private space, which is the office. The performance room is located in a separate building, with the possibility of holding events both indoors and outdoors. The garden is organized as a quiet public place where you can retire from the hustle and bustle of the city, overlooking the old church. The shape of the building makes it stand out from the background of the square buildings around and should attract the attention of visitors. The design of the roof gives the impression of a weightless/floating roof. The windows are decorated with pieces of multi-colored glass, which create beautiful illumination of the premises, and serve as additional protection from direct sunlight. During this project, I learned how to work with spaces both inside and outside the building.

Instructor: William Smarzewski, RA (Fall 2022)

Floor Plan
West Elevation scale 3/32"=1'-0" West Elevation scale 3/32"=1'-0" section 2 scale 3/32"=1'-0" section 1 scale 3/32"=1'-0" West Elevation scale 3/32"=1'-0" West Elevation scale 3/32"=1'-0"
Physical model
Sections West Elevations
Physical Model Split View Movement SketchUp Model Entrance from the yard View from galleryery to the garden Library Garden Front view

Garden Center

ADC 209 - Design Studio III

Challenge: For this project, we were asked to rebuild an existing garden center in Ohio, where we were given the opportunity to create several types of indoor and outdoor gardens of our choice. The center should also include a children’s garden on the mezzanine with the creation of a new staircase and a café with additional windows on the north wall.

Response: To complete the task, we were divided into groups in which we drew a floor plan in AutoCAD together, and then in groups we drew a 3D model of the building in SketchUp. Having put together the model, each of us began to work on creating our own garden design in one of the parts of the building. I chose an indoor garden in which I placed a tropical garden and an orchid garden. I have chosen a formal style for the layout of my gardens, with a water flower pond in the center, with a bridge across it. The area is provided with several seating areas and a vertical structure for hanging and creeping plants over the walkways around the garden’s perimeter, creating a green tunnel. Decorative elements symbolizing birds are attached to the ceiling. The children’s garden is located on the mezzanine, accessed by a circular staircase with a slide for children along the inner radius. Rendering done with Lumion and Photoshop.

Instructor: David Bertram, RA (Spring 2023)

Visitors Map

Section B

Section C

Plan
Wall Section With New Window Floor
Section A
Atrium Material Board Wood Mosaic Travertine Orchid Garden Pavement Tropical Garden Pavement Slatestone Staircase Physical Model Atrium/ Sraircase Orchid Garden Tropical Garden Tropical Garden

Center for Conversation

ADC 209 - Design Studio III

Challenge: I was invited to participate in the Student Design Competition 2023 held annually by the Coalition of Community College Architecture Programs Inc., and create a building based on the proposed program.

Response: My design of the Center for Conversation was created to unite people of different generations, backgrounds, and viewpoints by creating a welcoming atmosphere that encourages open communication. It is located near a local church and university, and is surrounded by residential and commercial buildings, appealing to a diverse audience. The Center’s organic shapes symbolize the “smoothing of sharp corners,” which sometimes exist between people and inhibit open dialog. The circular Presentation Room is the largest space in the building. It references the round table at which the knights of the Middle Ages gathered, discussed, and solved problems on equal terms- searching for common ground. This idea is designed to create an atmosphere of equality in the weight of everyone’s voice. The building’s organic forms continue throughout the exterior site forms, giving a smooth flow of movement both inside and out. A large open Outdoor Space in front of the building promotes community events that bring people together. A Playground is located at the northwest corner of the site for visitors with children, encouraging communication and play for the youngest generation. There are also three more secluded seating areas for smaller groups of people. A bike path and storage encourage cyclists to visit this beautiful community center as well.

Front View Concept Development Physical Study Models

When entering the Lobby, which flows directly into the Gallery, visitors are immediately immersed in an exciting atmosphere celebrating art and conversation. Narrow windows limit excessive light in the Gallery while still allowing soft natural light.

The beautiful Spiral Staircase invites visitors to the second floor, where the Library and two small Meeting Rooms are located. This arrangement protects from noisy events below, allowing for quieter learning and privacy. The second floor offers a magnificent view of the church and surrounding area. In addition, the library has columns capped with light, giving the impression of infinite columns. The second floor can also be accessed from an exterior stair, which leads to a courtyard and green roof.

The building has two large PV glazing skylights providing an additional source of electricity. Light fixtures utilize LED lamps, which saves energy consumption. Exterior horizontal sculptural wood shelves reduce direct sun on the Presentation Room’s windows. Additional room cooling is provided by green walls and a green roof. The green walls help to purify the air, which is of particular importance when hosting large events. The floor covering is made of engineered board, which is an improved “analogue” of a natural wood and encourage more sustainable use of this resource.

The Center for Conversation celebrates open dialog and welcomes all visitors to enjoy their time and take part in events taking place here.

Presentations/

Form Space Organization & Movement
Circulation
Education
Public Events
Sun Path
Physical Model South View Physical Model Main Entrance View Physical Model Bird View Heliodon Sun Study Physical Model West View Physical Model Lobby/Gallery East Elevation West Elevation Building Section A/ Sustainability Diagram Building Section B

Bike and Pedestrian Access

Main Entrance

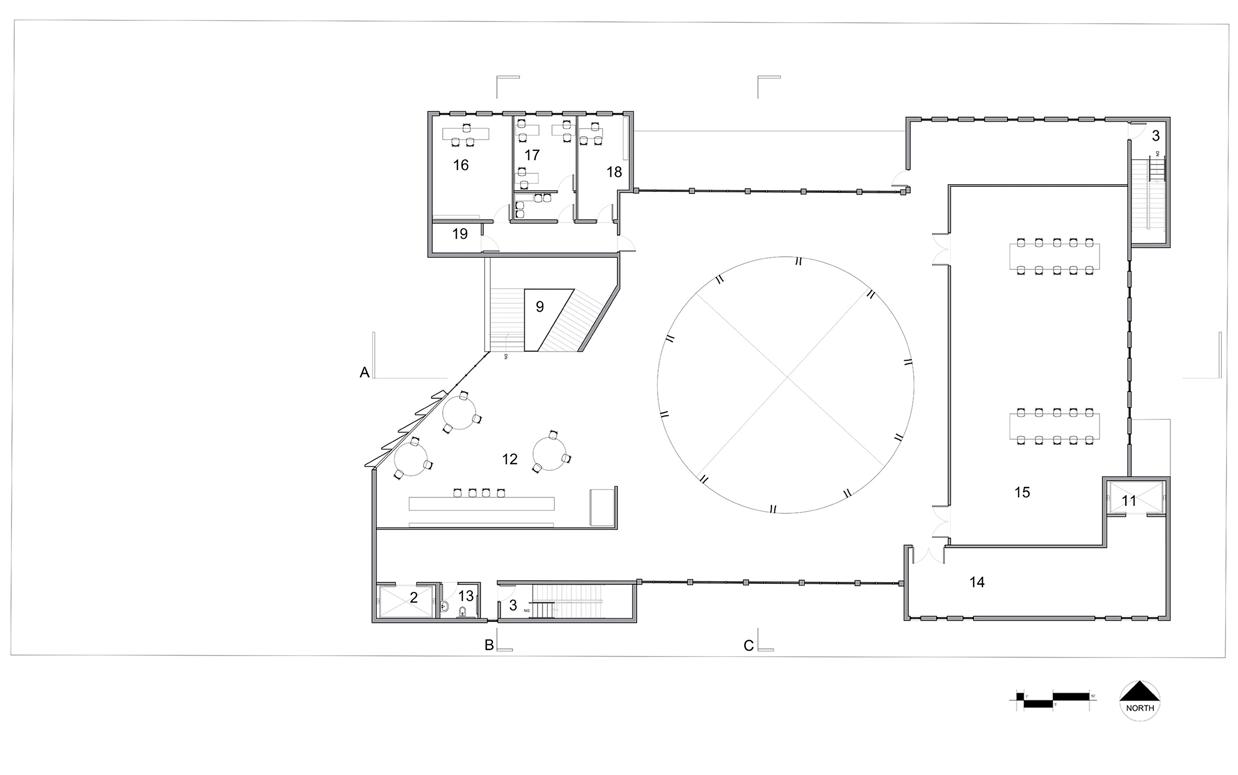
First Floor Plan

1- Lobby

2- Gallery

3- Presentation Room

4- Storage

5- Mechanical Room

6- Kitchen

7-Coat Room

8- Office

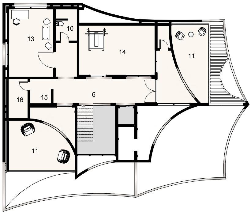
Second Floor Plan

9- Library

10- Meeting Room1

11- Meeting Room2

12- Green Roof

13- Elevator

14- Toilets

15- Outdoor Events

16- Playground

North-East view Outdoor Events Space Covered Path Lobby/ Gallery Library Presentation Room

Museum Director’s Office

ADC 259 - Design Studio IV

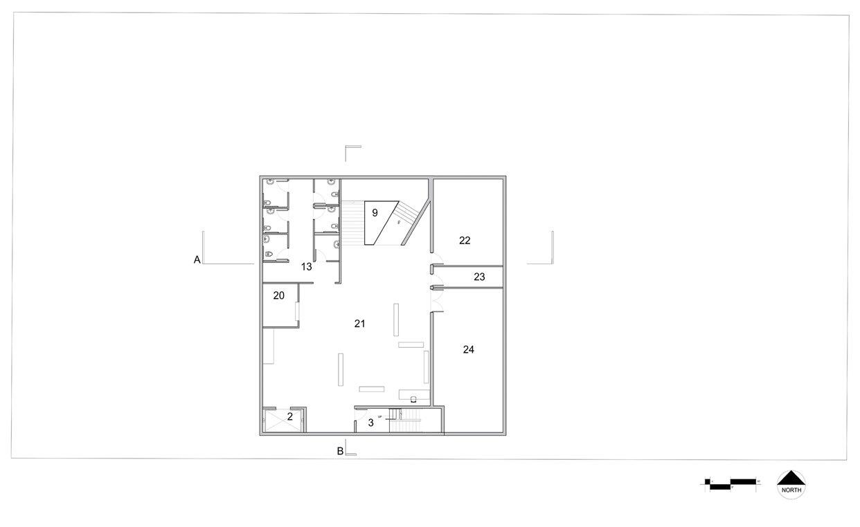
Challenge: A new architecture museum is planned to open in Philadelphia, funded by the families of Frank Furness, Louis Kahn and Robert Venturi. A damaged three-story townhouse in which a fire destroyed the third floor was purchased for the museum. It will be the architects’ artifacts on the second floor, rotating exhibitions on the entrance floor. The director’s office and conference room are located on the new third floor area and library room for books, as well as a south-facing terrace. The space was inspired by Robert Venturi’s mother’s house.

Response: To create the design, I analyzed one of Robert Venturi’s early works, The Mother’s House, the main architectural aspects of which formed the basis for my design. I tried to convey the complexity and inconsistency of the lines of the roof and ceiling. The roof design was inspired by the complex shape of the staircase in the Venturi house, the contours of which I conveyed in the form of a glass central part of the roof; reflect these lines on the floor using marble tiles (one of the materials in the mother’s house). Symmetry is conveyed in the design of both facades. The terrace has no roof and is a green area. The door to the terrace has been enlarged to show Venturi’s playing on a larger scale. The arched elements used in the library’s furniture embody the symbolism inherent in Venturi’s work. The glass roof is equipped with motorized sunshade sheets, which can completely protect the room from the hot summer sun.

Instructor: Elizabeth Masters, AIA, AFAAR (Fall 2023)

Architecture Analysis

Mother’s House, Architect Robert Venturi

Winter Holidays Museum

ADC 259 - Design Studio IV

Challenge: Students were asked to choose the theme of the museum, the building of which should be designed in Philadelphia in accordance with the program, on a given area, taking into account the surrounding infrastructure and the height of neighboring buildings. The site is located at 20th and Callowhill St. across from the Barnes Foundation and behind the Free Library.

Response: My museum is designed to be the personification of the joy, light and magic that accompanies the Christmas holiday and the winter solstice. This architecture is inspired by the shape of a snowflake, symbolizing the uniqueness and beauty of every moment during this special season. The facade of the museum is decorated with metal panels with geometric patterns representing the stars and the first rays of the sun after the longest night of the year. The exterior walls are finished with Stabilized Aluminum Foam Cell Panels which provide a modern dramatic look to the building and are recyclable. For glazing I chose U-GLASS. Entering the building, you are immersed in a lobby filled with patterned shadows. The largest gallery in the building is shaped like the outline of a snowflake, the ceiling represents a halo. In the evening, the museum turns into a shimmering fairy tale thanks to indoor and outdoor lighting that imitates the glow of a winter night, using LED bulbs. Green roof has solar panels. The building is also equipped with a rainwater collection and geothermal heat system. For the sidewalk, a modular covering of interlocking concrete blocks was used that allows water to pass through.

Instructor: Elizabeth Masters, AIA, AFAAR

Collage Inspiration Site Analysis Early Sketches Early Sketches
Circulation (Horisontal) Circulation (Vertical)
Concept Main Entrance View from Callowhill St Main Gallery Hallway between Galleries Lobby Cafe Ceiling (Main Gallery)

1 Lobby

2 Elevator

3 Fire Stair

4 Gallery1

5 Gallery2

6 Gallery3

7 Gallery4

8 Second Entrance

9 Main Stair

10 Loading Doc

11 Service Elevator

12 Cafe

13 Restrum

14 Exhibition Storage

15 Classroom

16 Director’s Office

17 Clerical Staff

18 Curator

19 Storage

20 Coatroom

21 Gift Shop

22 Mechanical Room

23 Electrical Room

24 Exhibition Prep

Elevation

South Elevation

2nd Floor Plan Scale 3/16” = 1’-0” 1st Floor Plan Scale 3/16” = 1’-0” Basement Plan Scale 3/16” = 1’-0” North Scale 3/16” = 1’-0” Scale 3/16” = 1’-0” West Elevation Scale 3/16” = 1’-0” East Elevation Scale 3/16” = 1’-0” Roof Plan Scale 3/16” = 1’-0” Section C Section B
Materials: Permeable Pavement U-Glass/Channel Glass Glass Connection Stabilizet Aluminum Foam Cell Panel Engineered Wood Golden-Marble Panels Connection
Model
Sustanable Section
Physical

Shed Structure

ADC 112 - Construction Materials & Methods

Challenge: To build a wood frame shed of about 100 sf.

Response: For this project, I used a pitched roof with shading windows from direct summer sunlight. And the location of the windows ensures good natural ventilation of the room. The frame material is wood, the exterior is made of siding, the roof is covered with sheets of metal with solar panels attached to it on the south side, and plastic windows were used. The interior decoration of the walls of the room is made of gypsum wall with paint in light colors; the floor is made of engineered boards.

Fascia 2”x6” Stud 2”x4” Stud 2”x4” Floor Joist 2”x6” Soffit 1”x6” King Stud Jack Stud Doouble Plate Cripple Stud Sill
Summer Summer Winter Winter
Double Header with 1/2” playwood spacer Foundation

Bird Mouth Cut

Roof Structure

Siding

Water Control Layer

OSB Sheathing

Insulation in Stud Space

Gipsum Wall 1/2”

Furning Strip Spacer

Plywood 3/4”

Wall Layers

Floor Plan 0 1 2 4 N
Rafter 2”x6” Transverse Section
4’ 1’5/8”

Kitchen Redesign

ADC 212 - Construction Materials & Methods

Challenge: I was asked to remodel a kitchen according to customer requirements.

Response: A kitchen renovation is an opportunity to create a cozy atmosphere where every element of the space reflects the owner’s personality. Modern materials that meet safety requirements, contrasting colors that enliven the interior, and design accents that keep up with the times make the kitchen a place where the whole family can enjoy spending time.

Original Floor Plan (Provided by Professor) Material Board Final Design Final Design Original Photo

Comments:

Disconnect all utilities in the dismantling area

Connect temporary utilities arrange the removal of construction waste from the site

Dimention Plan

Water & Gas Plan

single bulb recessed (5-inch LED downlight, soft white color temperature, average foot-candle)

LED kitchen cntrtp lighting strip, dimmable white, 15 " Fan

4 Light Pendant, Ambient Lighting Switch Outlet

Door Ball

Electricity Plan

Finishes Plan

Blanco Wood Look 9"X48" porcelain

tiles

Main Countertop: Quartz Style: Marble - Dramatic Veins

Kitchen Island Countertop: Quartz

Style: Marble - Dramatic Veins

Wall behind hob: Porcelain tile

Painted Walls: Emerald Designer

Interior Latex Paint Snow White Color

4" 4'-4 1 2 2'-8" 15' 2'-111 8 2'-53 8 1'-97 8 3'-5 3 8 4" 7'-95 8 " 3'-5 3 8 3'-5 1 2 16'-10" 2'-65 8 UP DN KITCHEN 279 sf
FLOOR PLAN
Community College of Philadelphia 6 Name: Liliya Luhavaya Course: ADC 212 Semester: Fall 2023 Date: 11/14/2023 Scale: 1/2"=1'-0" Checked by: Paula Behrens Drawing Title: KITCHEN REDESIGN Dimension Plan
p p p
Community College of Philadelphia 9 Name: Liliya Luhavaya Course: ADC 212 Semester: Fall 2023 Date: 11/14/2023 Scale: 1/2"=1'-0" Checked by: Paula Behrens Drawing Title: KITCHEN REDESIGN Electricity 7'-5 5 8 14'-5" 7'-10" 9'-4 7 16 Cold Water Hot Water Gas Community College of Philadelphia 7 Name: Liliya Luhavaya Course: ADC 212 Semester: Fall 2023 Date: 11/14/2023 Scale: 1/2"=1'-0" Checked by: Paula Behrens Drawing Title: KITCHEN REDESIGN Water & Gas
p p
floor
Approximate Size: 0.5 x 3.5 in White Color
Community College of Philadelphia 9 Name: Liliya Luhavaya Course: ADC 212 Semester: Fall 2023 Date: 12/11/2023 Scale: 1/2"=1'-0" Checked by: Paula Behrens Drawing Title: KITCHEN REDESIGN Finishes
Edition

Comments:

Kitchen Cabinets:

Door

Fiberboard, Polyurethane paint, Acrylic paint

High cabinet frame

Particleboard, Melamine foil, Plastic edging

Fiberboard, Acrylic paint

Hinge w b-in damper for kitchen

Steel, Nickel plated

Shelf

Particleboard, Melamine foil, Plastic edging

Base cabinet frame

Particleboard, Melamine foil, Plastic edging

Fiberboard, Acrylic paint

Steel, Galvanized

Drawer, low

Steel, Epoxy/polyester powder coating

Particleboard, Melamine foil, Melamine foil

Galvanized steel

Sturdy frame construction, ¾" thick.

The shelves are adjustable.

The door damper prevents cabinet door from slamming by catching the moving door so that it closes slowly, gently and silently.

Snap-on hinges can be mounted onto the door without screws, and you can easily remove the door for cleaning.

8' 2'-6" 1'-8" 3'-4" 4 1 2 2'-6" 1 1 2 1'-8" 2'-4 5 8 1'-11 1 4 1 1 2 4' 4' 2'-0 3 8 3' 6'-6" 711 16 1 1 2 3'-4" 3' 1'-8" Section 1 Section 2 Community College of Philadelphia 10 Name: Liliya Luhavaya Course: ADC 212 Semester: Fall 2023 Date: 11/14/2023 Scale: 1/2"=1'-0" Checked by: Paula Behrens Drawing Title: KITCHEN REDESIGN Sections
Kitchen Finish Shedule Floor Walls Ceiling North South East West T-1 Tile Paint Gypsum Wall Board T-2 P GWB MTL Material MTL FN FN Finish GWB GWB P GWB MTL FN P GWB MTL FN MTL FN P GWB MTL FN HT 8' P T HT Height Paint: Emerald Designer Edition Interior Latex Paint Color: SW 9541 White Snow Sheen: Eg-Shel Tile: 1- Floor Finish Porcelain tile Size: 9 x 48 in Matte Finish Straight Edge Color: Baltimore Blanco Wood Look Grout: beige 2- Backsplash Porcelain tile Approximate Size: 0.5 x 3.5 in Sheet Size: 11 x 12 in Polished Finish Straight Edge Color: White Countertop: Material: Quartz Slabs Size:1" Primary Color: White-Warm Accent Color: Brown, Gold, Gray-Light Style: Marble - Dramatic Veins Finish: Polished Under-Cabinet Lighting: LED kitchen countertop lighting strip Length: 24 " Luminous flux: 480 Lumen Width: 1 " Height: 1 " Power: 6.0 W Designer: IKEA of Sweden Model Name: MITTLED Article Number: 004.554.20 Built-in LED light source Light color: warm white (2700 Kelvin) Color Rendering Index (CRI): >90 1 VÅGDAL connection cord for each group of lighting strips to connect the lighting to TRÅDFRI LED driver to mount several MITTLED worktop lightings. Tile Installation Note: Level the floor with leveling compound Attach the tile membrane to the floor using thin mortar Waterproof membrane seams with waterproofing tape Mix still unmodified tile mortar Install tiles with 1/4" gap After the solution has hardened, apply grout. Community College of Philadelphia 13 Name: Liliya Luhavaya Course: ADC 212 Semester: Fall 2023 Date: 12/11/2023 Scale: 3/8"=1'-0" Checked by: Paula Behrens Drawing Title: KITCHEN REDESIGN Specification Wall Playwood Cabinet Quartz Countertop Cabinet door stopper Backsplash Community College of Philadelphia 12 Name: Liliya Luhavaya Course: ADC 212 Semester: Fall 2023 Date: 12/11/2023 Scale: 1 1/2"=1'-0" Checked by: Paula Behrens Drawing Title: KITCHEN REDESIGN Countertop Detail Drawing 4" 4'-4 1 2 2'-8" 2'-111 8 3'-5 3 8 4" 7'-95 8 3'-5 3 8 3'-5 1 2 2'-65 8 UP DN Wine Refrigerator Kitchen Pantry BC w pull-out work surface/3drw 1 1 2 6 7 6 1 2 Base cabinet/p-out storage/drawer 7 Base cabinet f/sink & recycling 10 10 High cabinet with shelves/2 doors 9 Wall cabinet 5 High cabinet for oven and microwave with shelves and drawers 3 4 French door refrigerator, 4-door 8 8 Built-in dishwasher 2'-4" 2'-4" 2'-11" 2'-7" 2'-9 7 8 4'-41 4 4' 10'-6" 1' 2'-5" 9 2'-6" 2'-6" 2'-6" 2'-6" 2'-6" 2'-6" 1'-6 1 2 2'-6" 2' 2'-6" 4 5 5 5 1'-3" 2' 3 Base cabinet for cooktop with drawers Wall mounted extractor hood 11 12 11 12 Base cabinet with drawer and shelves 13 13 13 13 4'-81 4 8'-734 " Section 1 Section 2 14 14 Top cabinet for fridge/freezer Community College of Philadelphia 8 Name: Liliya Luhavaya Course: ADC 212 Semester: Fall 2023 Date: 11/14/2023 Scale: 1/2"=1'-0" Checked by: Paula Behrens Drawing Title: KITCHEN REDESIGN Furniture Furniture Plan Specifications Sections Countertop Detail Drawing

Hut at Kimo

ADC 160 - Presentation Techniques

Challenge: With the help of SketchUp, reproduce the 3D model of the building and prepare it for presentation using rendering in Lumion and Photoshop.

Response: I chose one of the proposed house options to build a 3D model in SketchUp, transferred it to Lumion to create a realistic background and overlay materials. With the help of Photoshop, I added images of people, made the colors more realistic and rendered floor plan and section. Also, with the help of Photoshop, I made a presentation board.

Structure
Front View
Floor Plan
Section Interior Interior Back view

DESERT X AI UIa

VISITOR CENTRE

ADC 160 - Presentation Techniques

Challenge: Without the help of drawing supplies, we were asked to draw a plan, section, and 3D views of the building. Also, create a 3D model of the building using SketchUp.

Response: I hand-drawn the floor plan, the roof plan, and the Desert Center section, taking into account the line weight. Then I drew a 3D model in SketchUp and redrawn the exterior and interior views of the building. With the help of colored markers, I rendered the images to achieve the best visual effect.

&
& Outdoor Views (hand drawing & rendering)
Plan, Top View
Section (hand drawing & rendering) Indoor
Interior View (SketchUp model) Bird View (SketchUp model)

TENT HOUSE

ADC 283 - Special Topics Architectural Visualization

Challenge: We were asked to draw a 3D model of an existing building using Rhino 3D modeling software. Then, adding realism to images in Lumion.

Response: Using the Rhino tools, I drew the Tent House model; rendered it in Lumion adding materials and people and creating entourage.

Bird View Bedroom
1
Bedroom 2 Bedroom 2 Living room Kitchen

Xi HALL

ADC 283 -Special Topics Architectural Visualization

Challenge: We were offered to independently choose a building that has smooth elements in the design, for building 3D models of which Rhino is the best choice.

Response: For this project, I chose a pavilion located in China. The main structural element that attracted my attention was the roof. To model the roof of the main part of the building in Rhino, I used the SubD tool, and Loft tool for path roof. I also used Lumion and Photoshop for rendering views in this project. Bird View

Original Building

Sears Kit House

ADC 163 - Architectural Visualization

Challenge: Reproduction of a 3D model of a Sears Kit House from existing photographs and drawings from the catalog using Revit tools. Making my own changes to the design.

Response: I chose one of the models in the catalog to build a 3D model. Also, I changed some elements of the exterior design of the building, made changes to the roof structure, added a garage and a deck.

Front View Split View Transverse Section South Elevation Longitudinal Section West Elevation Original Building Bedroom Bathroom Kitchen Back view Front view

Mirai House of Arches

ADC 273 - Advanced CAD Applications

Challenge: We were asked to select a building and draw its 3D model using Revit. Produsing presentation board using Lumion, Enscape, and Photoshop.

Response: For this project, I chose a multigenerational residential building in India. In the process of working on a 3D model, I mastered the basic tools for working in Revit, learned how to use Lumion and Enscape to render views. Also, I teach how to prepare floor plans in Photoshop and collect information about the building to form a presentation board in Photoshop.

1 Kitchen

2 Dining Room

3 Bedroom1

4 Living Room1

5 Living Room2

6 Corridor

7 Water Body

8 Elevator

9 Dressing room

10 Bathroom

11 Terrace

12 Pool

13 Study

14 Gym

15 Kitchenette

16 Storage

Second Floor Plan First Floor Plan Transverse Section Longitudinal Section Bird View Original Building Third Floor Plan Front View Balcony Terrace Without Envelope View Water Body Living Room Gym Dining Room

Turn static files into dynamic content formats.

Create a flipbook
Issuu converts static files into: digital portfolios, online yearbooks, online catalogs, digital photo albums and more. Sign up and create your flipbook.