PORTFOLIO LILIAN ESPINOSA

Page 1


P O R T F O L I O

Lilián Espinosa 2025

La Salle University, Mexico City (CDMX)

Bachelor's Degree in Interior and Exterior Environment Design. Degree in Progress.

Generation 2020 - 2024.

I L I Á N E S P I N O S A

Hi! I studied interior and exterior design. During my internship at Ware Malcomb, I discovered my passion for creating spaces that are functional, ergonomic, meet clients' needs and are aesthetic. I am a proactive and creative designer with a strong desire to continue growing and developing professionally within this industry.

Ware Malcomb August 2023 - December 2024. Internship in Mexico Interior Architecture & Design Team.

During this time, I have improved my computational, creative and leadership skills.

1MPA

Software: AutoCAD, SketchUp, Revit

Render plugin: Enscape

Post: Photoshop

This corporate design project for MPA, was developed from conceptualization to completion and now is fully constructed

The design reflects MPA’s values as a global leader in financial blending sophistication with functionality.

A refined color palette, high-quality ergonomic furniture, and m like marble, wood, and metal create an elegant and inviting atmosphere.

The layout integrates open spaces and collaboration zones to p teamwork and well-being while balancing private work areas. T project exemplifies the fusion of aesthetics and practicality, su MPA’s mission to empower innovation and investment.

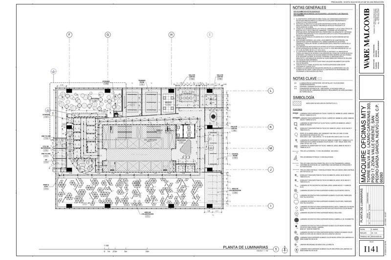
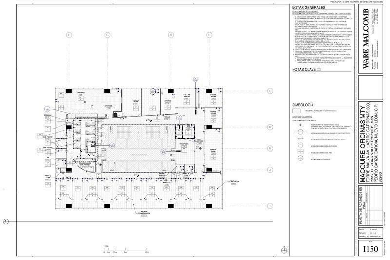
SPACE PLANNING

The available space was 923 m², and our goal was to create an elegant and flexible environment where both individual and collaborative work could be carried out. Additionally, the design includes a reception area, private restrooms, and a relaxing dining area that contrasts with the formality of the rest of the office. The space has a maximum capacity of 223 people.

RENDERS OF THE SPACE

COUNCIL ROOM
HALL OPEN AREA

COLLABORATIVE SPACE

COUNCIL ROOM
OPEN AREA

2UNILEVER

Software: AutoCAD, SketchUp, Revit

Render plugin: Enscape

Post: Photoshop

Unilever is a global leader in consumer goods.

We redesigned its offices under the concept of "Sustainable Innovation and Integral Well-being." The project aimed to create a modern space that promotes employee well-being while reflecting the company's values.

After a decade without updates, the offices no longer represented Unilever's essence. Upon realizing that Unilever operates through business groups (Beauty and Wellbeing, Personal Care, Nutrition, and Mexico Cross) we decided to divide the space into four sections, each represented by a distinctive color. This approach aimed to encourage collaborative teamwork and synergy.

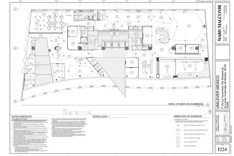
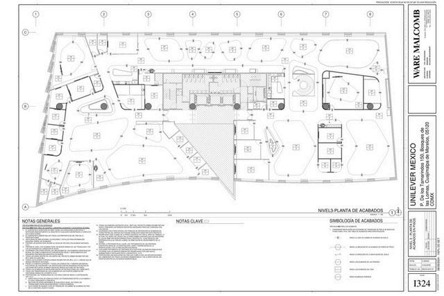
SPACE PLANNING

The design was divided into four spaces:

Nutrition - Color Green

Mexico Cross - Color Orange

Beauty and Wellbeing - Color Pink

Personal Care - Color Blue

The design is organic and incorporates significant biophilic elements to highlight the essence of the company, which is committed to the environment and the well-being of its consumers. The space is fun and functional, evoking a connection to nature through its organic forms, ultimately emphasizing Unilever as a brand.

FLOOR FINISHES PLAN. LEVEL 2

FLOOR FINISHES PLAN. LEVEL 3

NUTRITION NEIGHBORHOOD - LEVEL 2

CROSS NEIGHBORHOOD - LEVEL 2

BEAUTY AND WELLBEING NEIGHBORHOOD - LEVEL 3

MÉXICO

3BASF

Software: AutoCAD, SketchUp, Revit

Render plugin: Enscape

Post: Photoshop

BASF is one of the largest and most important chemical comp the world. It specializes in the research, production, and commercialization of a wide range of chemical products for v industries. Its motto, "We create chemistry for a sustainable reflects its commitment to sustainability and innovation.

We were in charge with the design of one floor in their headq BASF previously operated two laboratories that also function showrooms, but these were located in separate rented build realizing that one of the floors in their headquarters was not utilized efficiently, they decided to consolidate both showroo this space, optimizing resources and eliminating the need for rentals.

SPACE PLANNING

The design faced the challenge of preserving most of the existing furniture and accessories from the laboratories currently being rented, making the unification of the design a significant challenge. Additionally, the project presented a high level of complexity due to the laboratory engineering requirements being considerably different from those of traditional offices, which added an extra layer of difficulty for the engineering teams involved. The designed space includes the ARTS laboratory, the CIC laboratory, a workstation area, meeting rooms, and a training room. The result reflects the brand's personality, meets the client's needs, and incorporates BASF's distinctive colors.

EXISTING LAYOUT. LEVEL 2

LAYOUT PROPOSAL. LEVEL 2

OFFICE DESIGN

OPEN AREA
COUNCIL ROOM
TRAINING ROOM
CIC LAB

4FROM CHRYSALISES TO BUTTERFLIES

Software: AutoCAD, SketchUp

Render plugin: D5 Render

Post: Photoshop

The primary objective of this project was to redesign the hall connecting the dormitories of adolescents in the foster home transforming it into a functional and ergonomic study room t their specific needs. The space was designed to foster both a and personal growth.

The concept, "From Chrysalis to Butterfly," served as the guid inspiration, symbolizing the process of transformation and p development experienced by the adolescents. Drawing from natural metamorphosis of a butterfly, the design translates t into a space that supports and facilitates their holistic growth this context, the chrysalis represents their initial state of vuln and academic challenges, while the butterfly symbolizes empowerment, academic success, and personal growth.

SPACE PLANNING

The design aims to create an environment that nurtures their evolution, helping them overcome the challenges they face and providing the tools to reach their full potential. This transformation goes beyond the physical realm, offering an emotional and educational space that becomes a bridge to new opportunities. Ultimately, the redesign aspires to provide a holistic growth environment where each adolescent can find the support and motivation needed to confidently move toward a brighter and more promising future.

5MOLINO DE LAS FL

Software: AutoCAD, SketchUp

Render plugin: Enscape

Post: Photoshop

The ex-Hacienda Molino de las Flores, loc to be restored and transformed into a bo design principles, a specific user profile (c hotel chain Four Seasons was chosen as a To develop this design proposal, research natural, artificial, and sociodemographic f

Given the property’s protected status due restoration theory was adopted as a guidi integrated into the hotel’s design. The cho was Camillo Boito's approach: "Buildings must be preserved, consolidated, and reh reconstruction."

FOUR SEASONS SUITE

The suite's design focuses enjoyment and connection of aiming to create a space for relaxation for both the body a Through a fluid design approach achieves an integral connection its various spaces, allowing for communication.

UPPER FLOOR

SUITE - UPPER FLOOR
LIVING ROOM - GROUND FLOOR
SUITE - UPPER FLOOR
BATHROOM - UPPER FLOOR

FOUR SEASONS BOUTIQ

Within the Four Season Flores Hotel project, the envisioned as a distinc elegance and exclusivit nature. This design pro in the principles of org aiming for a seamless in surrounding environmen Natural scents of essen cedar, and fresh herbs) a throughout the space, e essence of the haciend sense of well-being.

VIRTUAL TOUR

6SUCCESSION CHAIR

Software: AutoCAD, SketchUp

Render plugin: Enscape Post: Photoshop

The Succession Chair merges ergonomic and aesthetic design, inspired by Emma Chamberlain's unique personality. Crafted for optimal comfort during moderate periods, it serves as both a functional and ornamental piece. Positioned in the set of the podcast "Anything Goes with", it becomes a focal point that complements Emma's contemporary and eclectic home style, adding creativity and vibrancy to the space.

The chair's aesthetic seamlessly blends into Emma's home, characterized by a contemporary and eclectic style. It embraces unrestricted creativity, serving as an unexpected and vibrant piece that brings life to a visually stimulating environment.

FRONT

VIEW SIDE VIEW

TOP VIEW

RENDER

lilian.espinosa.mtz@gmail.com

Turn static files into dynamic content formats.

Create a flipbook
Issuu converts static files into: digital portfolios, online yearbooks, online catalogs, digital photo albums and more. Sign up and create your flipbook.