

LIJANA NICOLE
ONE PANTRY RENOVATION - MARRIOTT - NEW ORLEANS, LA
TWO GUESTROOM & LOBBY RENOVATION - ALOFT - ASHEVILLE, NC
THREE GUESTROOM & CORRIDOR RENOVATION - GEORGIA TECH - ATLANTA, GA
FOUR RESTAURANT RENOVATION - HAMILTON HOTEL - WASHINGTON, DC
FIVE SPEAKEASY RENOVATION - HAMILTON HOTEL - WASHINGTON, DC
SIX RESTAURANT RENOVATION - RITZ CARLTON - AMELIA ISLAND, FL
SEVEN CONCEPT DESIGNS - PREFERRED DESIGNER CHARETTE - AC HOTELS
EIGHT CONCEPT DESIGNS - PREFERRED DESIGNER CHARETTE - MOXY HOTELS
NINE RESTAURANT DESIGN CONCEPT - DANTANNA’S - ATLANTA, GA
TEN DETAILS
ELEVEN FREEHAND DRAWINGS
TWELVE CHEERS!
ONE

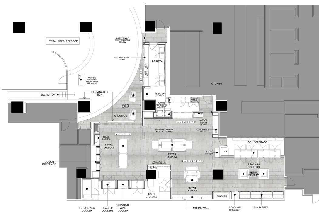
MARRIOTT NEW ORLEANS PANTRY
Those still out from the previous night will meet those up early to embrace the first picks of the market. Along their commute, iron tracks, concrete, and embedded mosaic tiles splay underfoot. The chatter of the breaking day intermingles with sounds of street cars rolling down Canal. Inside you’ll find Edison-style bulbs, rich wood finishes, and brass accents echoing vintage interiors of a simpler time. Tucked within the Marriott Great Room, the existing giftshop and Starbucks are transformed into a 2,500 SF pantry that includes a separate barista counter and integrated hot food service. The design, centered on the idea of the hustle and bustle of New Orleans street cars, keeps up with the daily needs of its guests by bringing quick, grab and go options in an energetic and vintage-inspired setting.

INSPIRATION BEFORE











COFFEE DRESSING STATION



BARISTA COUNTER DETAILS
PANTRY FLOOR PLAN








TWO


ALOFT ASHEVILLE, NC
INSPIRATION BEFORE




Asheville’s Downtown is a vibrant entertainment hub for the music and arts scene, independent restaurants and breweries, along with endless outdoor activities.
An open, light filled space allows versatility in the public areas, creating a space that hosts musicians, dancing, and a bright and colorful atmosphere for guests to enjoy. A strong tie to local culture is emulated through the artwork in both the guestrooms and public areas, honoring the creativity of the city.
A playful, contemporary look is integrated through all of the guestrooms and corridors. Texture and pattern bring movement into key areas of the corridor while oversized windows in the guestrooms create bright spaces full of energy. Vividly colored casegoods and artwork draw your attention, creating different features within the space.






SECTIONAL DETAILS





PROTOTYPE + CUSTOM
RE:FUEL ELEVATION






EXISTING CASEGOODS + NEW SOFTGOODS

CUSTOM SUITE FF&E DETAILS

TYPICAL KING FLOOR PLAN
POOL DECK FLOOR PLAN
THREE

GEORGIA TECH HOTEL BEFORE
Encapsulating Georgia Tech’s Motto of Creating the Next, a forward focused approach to typical guestroom design elements elevates the guest experience while embracing the University’s lively and imaginative spirit. The guest corridor, guestrooms, and suites were transformed into a space which seamlessly blends science and technology with innovative design. Bold design elements such as the signature headboard mural and custom murals in the fitness center give nod to Georgia Tech’s neverending drive for excellence. Meticulously curated artwork features laser-cut fight songs, authentic alumni architectural sketches, and custom patent prints, tying in the history and legacy of the University. Sophisticated integration of Georgia Tech’s logo and school colors helped to enhance the sense of place, and give each guest a sense of pride during their stay.
INSPIRATION













PRESIDENTIAL SUITE FLOOR PLAN
AFTER



AFTER CUSTOM CASEGOODS + SOFTGOODS



DINING AREA RENDERED ELEVATION

KING

KING ROOM HEADBOARD WALL RENDERED ELEVATION


AFTER REFINISHED CASEGOODS + CUSTOM SOFTGOODS



CUSTOM DESK LAMP DETAILS
CUSTOM FLOOR LAMP DETAIL

KING ROOM TV WALL RENDERED ELEVATION
ROOM HEADBOARD WALL ELEVATION
FOUR

VIA SOPHIA - HAMILTON HOTEL
BEFORE

Via Sophia was born from the notion of a 4th generation traditional family Italian Osteria, and its evolution over time; an authentic family restaurant that has been passed down and modernized over generations. Hints of time-honored Italian-inspired motifs and details intermingle with a more modern overall experience. Floor to ceiling wood panels sit in stark contrast to the dramatic black and white feature stone, the signature material of the space. Seating and lighting in the space boast clean lines and simple details inspired by modern Italian furniture design. Illuminated shelving in front of the huge picture windows that sit behind the long, copper-wrapped Via Sophia bar offer glimpses of a Euro-style outdoor patio, which sits as the romantic, natural, Amalfi coast outcropping of Via Sophia, all inspired by harbor-side dining set on the backdrop of the Italian Riviera.
INSPIRATION












RESTAURANT FLOOR PLAN


BAR RENDERED ELEVATION
BAR COUNTER DETAILS BAR DETAIL


PIZZA BAR RENDERED ELEVATION








FIVE


BEFORE
SOCIETY - HAMILTON HOTEL


INSPIRATION






This 350 square foot exclusive cocktail bar, hidden from site in the lobby of the Hamilton Hotel, is equipped with personalized, butler-style service and bespoke libations. Homage is paid to the property’s renowned French born architect, Jules Henri de Sibour, by incorporating subtle design details inspired by his life as a member of Yale’s Skull & Bones Society, and by transporting guests back to his days as a Prohibition-era architect. Wood paneled details and intricate millwork moldings are modeled after the alleged interior of the Skull & Bones meeting hall, The Tomb. Subtle hints to the secret society’s reputation for crooking, stealing keepsakes from other Yale societies, are seen in the floor to ceiling display shelving, housing many precious-to-no-one oddities. This mysteriously layered space shares its stories only after the workday is done, and only if you know it exists, for Society is otherwise invisible by day.

BAR RENDERED ELEVATION

SHELVING WALL RENDERED ELEVATION

FLOOR PLAN

CUSTOM WALL SCONCE DEAILS
ART/TV WALL RENDERED ELEVATION





SIX

RITZ CARLTON RESTAURANT
BEFORE

The desire to experience what Amelia Island has to offer began at the end of the 19th century when thousands of visitors were lured by its warm climate and relaxed lifestyle. Today, adventures and activities are endless from a top the ocean currents to the sandy beaches and everything in between. It may only be thirteen miles long, but this small barrier Island is filled with excitement for anyone who thrives to wander. Through the excitement of exploring Amelia Island, there is always a moment to appreciate the stunning surrounding views and natural landscape. The natural beauty of the Island brings a casual, relaxed atmosphere, encouraging guests to stay a while. Designed with Amelia Island’s historical, social, and physical insights in mind, the new Tidewater Grill has elements that tie into the piracy once abundant on the island, the endless activities, and the natural textures and colors seen throughout. The once dungy and dark pub was transformed into a modern, bright, and inviting restaurant.


INSPIRATION













RESTAURANT

RESTAURANT FLOOR PLAN
HOSTESS STAND DETAILS

HOSTESS STAND RENDERED ELEVATION


LONG BANQUETTE RENDERED ELEVATION
BAR DETAILS
BAR COUNTER DETAILS






CONCEPT DESIGNS SEVEN




CAFE AESTHETIC



AC HOTELS CHARETTE




The Curator is entrepreneurial, creative, well-traveled, and has a clear vision of their lives. Drawing energy and inspiration from a thoughtful and refined hotel experience, the Curator is able to go about their busy day with minimal disruption. The Cafe strives to seamlessly integrate a daily coffee experience that will inspire curiosity and creativity. With an unwavering attention to detail and execution, the guest feels drawn to integrate this as an essential part of their stay.
THE CAFE PROCESS



Focusing on the guest experience, the design aesthetic of the cafe is purposeful and refined. Simple architectural elements cohesively blend with the lobby experience, while bespoke details spark curiosity and interest. Countertops remain clean and minimal, allowing any feature drinks, or pastries to be beautifully displayed without disruption. In designing the cafe, careful attention to adjacencies is taken into consideration. Placing the cafe within direct access to the reception allows flexibility of the barista to check in guests at the reception desk as needed. The Cafe millwork finishes are intentionally designed so that guests would intuitively know where to go to order, pick-up, and dress their coffee. The minimal approach to the millwork is also intentional, as retail and grab-and-go type items are not displayed at the Cafe. The close proximity to the retail area allows guests to select items in one location and purchase them at the Cafe counter or reception. The culmination of each purposeful detail allows the Cafe to integrate seamlessly into the lobby space.
CAFE RENDERED ELEVATION - DAY VIEW
CAFE RENDERED ELEVATION - NIGHT VIEW
CAFE FLOOR PLAN

RECEPTION RENDERED ELEVATION - DAY VIEW

RECEPTION RENDERED ELEVATION - NIGHT VIEW
FURNITURE







MATERIALS











EIGHT
CONCEPT
DESIGNS

MOXY HOTELS CHARETTE
ABOUT THE LOCATION || SAN FRANCISCO, CA
SF: An adult playground with stunning views, activities, and incredible cuisine. A place where grown a** adults can learn, explore, eat, and play. A place that has always attracted the weirdest and wildest, as well as some of the most revolutionary and innovative souls. Morphed and molded by its communities, the California metro area has been the heart of bohemian lifestyle, the epicenter for the LGBT rights movement and the launching point of the tech era.












CONCEPT || HOUSE PARTY ESSENTIALS



Millennials: We’re trained, tailored, and primed for the workspace. It’s time to throw away that “to-do” list and ignore those negative stereotypes. Let’s applaud a Millennial’s seemingly unlimited supply of creativity and energy and give a little blast from the past while doing so.
Welcome to my house party, where the design will excite the Millennial imagination with iconic elements, attention to detail, and a sentimental indulgence. It’s about having an open space that’s a little bit eclectic and never boring...if you’re boring, you’re uninteresting. Photogenic decor engages while gathering spaces allow for easy socialization. Whether you are a tech bro or an outdoor enthusiast, come here to enjoy live entertainment, custom cocktails, unique food offerings, and an experience like no other. So, sit literally anywhere, relax and let me tap into those cultural memories - Just make sure you tag me.



ACCESSORIES & FURNITURE
















ROOFTOP PLAN
PLAYLIST




ROOFTOP REFLECTED CEILING PLAN






CONCEPT DESIGNS NINE

BEFORE

DANTANNA'S - ATLANTA

INSPIRATION









Dantanna’s makes a statement as a chef-driven destination in the heart of Buckhead. Inspired by the upscale steak and seafood cuisine, the design offer’s guests a masculine and moody experience. Ages with classic features and softened by unique details, the space becomes the perfect setting for a refined meal.


DINING ROOM RENDERED ELEVATION
DETAILS TEN











ISLA BELLA BEACH RESORT- MARATHON KEYS, FL
ISLA BELLA BEACH RESORT- MARATHON KEYS, FL
FREEHAND ELEVEN







TWELVE
enjoy a cocktail... created by me

hop, skip & go naked
ingredients:
- 1 lemon (sliced into wedges)
- 4 dashes plum bitters
- 3 dashes lavender bitters
- 1.5 oz. potato vodka
- chambord liquor (to taste)
- 2 oz. la croix razz-cranberry sparkling water
- 2 oz. beer (light lager tastes best)
- fresh ice
preparation:
- place half the sliced lemons in the bottom of a shaker
- with a wooden muddler, mash the lemons until fragrant and liquid is released
- add bitters and vodka, fill with ice, cover and shake well
- pour over fresh ice in cocktail glass (or solo cup), add sparkling water and beer of choice
- top with a splash of chambord
- garnish with leftover lemon slices
- enjoy!

TAKE A HIKE
ingredients:
- 1 lemon (sliced width wise)
- sea salt
- 2 oz. whiskey
- 3 dashes rhubarb bitters
- 1/2 oz. blackberry & sage simple syrup
- club soda (fever tree tastes best)
- 1 sprig of sage
- fresh ice
preparation:
- place half the sliced lemons in the bottom of a shaker with a pinch of salt
- with a wooden muddler, mash the lemons & salt until fragrant and liquid is released
- add bitters, simple syrup and whiskey, fill with ice, cover and shake well
- pour over fresh ice in single rocks glass
- top with club soda
- garnish with lemon slice and sage sprigs
- enjoy!
