Conjunto Jalisciense de Expresiones Folclóricas

Page 1

Universidad de Guadalajara

Centro Universitario de Arte, Arquitectura y Diseño

División de Diseño y Proyectos

Licenciatura en Arquitectura

CONJUNTO JALISCIENSE DE EXPRESIONES FOLCLÓRICAS

Presenta: Librado Ramón Loaeza Rivera

Profesora: Mtra. Arq. Ana Karina Meza de la Torre

Director: Arq. Raúl Edilberto Martinez Carrasco

2

AGRADECIMIENTOS

A cada una de las personas que me ha enseñado en la vida, porque se puede ser aprendiz y maestro en cualquier momento. A mi familia, a mis amigos, a mis queridos y no tan queridos. Y sobre todo a mi mamá, te lo dedico, te amo.

3
4

1. PLANTEAMIENTO DEL PROBLEMA

1.1 DEFINICIÓN DEL TEMA

1.2 ANTECEDENTES

1.3 JUSTIFICACIÓN

1.4 OBJETIVOS

2. DELIMITACIÓN DEL TEMA

2.1 MARCO HISTÓRICO

2.2 MARCO TEÓRICO

2.3 EJEMPLOS ANÁLOGOS

2.4 HIPÓTESIS

3. MARCO CONTEXTUAL

3.1 LOCALIDAD

3.2 POBLACIÓN OBJETIVO

3.3 MATRIZ DE SELECCIÓN DEL PREDIO

3.4 PREDIO SELECCIONADO

3.5 NORMATIVIDAD

4. PLANTEAMIENTO DEL PROBLEMA ARQUITECTÓNICO

4.1 PROGRAMA DE DEPENDENCIAS, DIMENSIONAMIENTO Y VINCULACIONES

4.2 COSTOS PARAMÉTRICO

4.3 ANÁLISIS DE SITIO DEL PREDIO FÍSICO Y TRANSFORMADO

4.4 SISTEMA CONSTRUCTIVO

5. ANTEPROYECTO

5.1 CONCEPTO

5.2 ZONIFICACIÓN Y PARTIDOS

5.3 PLANTAS ARQUITECTÓNICAS, ALZADOS Y SECCIONES

5.4 VOLUMETRÍA

5 ÍNDICE

1. PLANTEAMIENTO

DEL PROBLEMA

6
7

1.1 DEFINICIÓN

DEL TEMA

Conjunto: adj. Unido o contiguo a otra cosa. adj. Agregado de varias personaso cosas.¹

Etimología: “La palabra conjunto viene del latín coniunctus, formada con el prefijo con- (convergencia, reunión) y iunctus (junto),participiodelverboiungere(uncir).”²

Jalisciense: adj. Natural de Jalisco, estado de México. adj. Perteneciente orelativoa Jalisco oalosjaliscienses.³

Expresión: f.Acciónde expresar.⁴

Expresar: Manifestar con palabras, miradas o gestos lo que se quiere daraentender.⁵

Etimología: “La palabra expresar viene del latín expressus (expresado, claro, manifiesto, hecho salir por presión), participio exprimere, formada ex- (hacia fuera) y pressus participio de premiere (presionar, ver depresión). La idea es de “presionar” o esforzarsepara sacarafueraalgo y manifestarlo”.⁶

1«Conjunto,ta», Real Academia Española, acceso 05 de marzo de 2024, https://dle.rae.es/conjunto. 2«Etimología de Conjunto», Etimologías de Chile, acceso 05 de marzo de 2024, https://etimologias.dechile.net/?conjunto 3«Jalisciense», Real Academia Española, acceso 05 de marzo de 2024, https://dle.rae.es/jalisciense

4«Expresión», Real Academia Española, acceso 05 de marzo de 2024, https://dle.rae.es/expresi%C3%B3n 5«Expresar», Real Academia Española, acceso 05 de marzo de 2024, https://dle.rae.es/expresar 6«Etimología de Expresar», Etimologías de Chile, acceso 05 de marzo de 2024, https://etimologias.dechile.net/?expresar#:~:text=La%20palabra%20expresar%20viene%20del,y%20manifestarlo.

8

Folclore: m. Conjunto de costumbres, creencias, artesanías, canciones,yotrascosassemejantesdecaráctertradicionalypopular.⁷

Etimología: “La palabra folclore proviene del inglés folklore compuesta de folk (gente, pueblo) y lore (tradición o conocimiento). La palabra fue inventada por el anticuario británico William John Thoms (1803-1885), para reemplazar el término “Popular Antiquities”.

El 22 de agosto de 1846, escribió para la revista Athenaeum: What we in England designate as Popular Antiquities or Popular Literature … would be more aptly described by a good Saxon compound, Folk-Lore-theLoreofthePeople.”⁸

7«Folclore», Real Academia Española, acceso 05 de marzo de 2024, https://dle.rae.es/folclore 8«Etimología de Folclore», Etimologías de Chile, acceso 05 de marzo de 2024, https://etimologias.dechile.net/?folclore

9
C O N J U N T O J A L I S C I E N S E E X P R E S I O N E S F O L C L Ó R I C A S
C O N J U N T O J A L I S C I E N S E E X P R E S I O N E S F O L C L Ó R I C A S C
J
E
F
O N J U N T O
A L I S C I E N S E
X P R E S I O N E S
O L C L Ó R I C A S

Resumen

Es un conjunto arquitectónico dedicado a las expresiones escénicas tradicionales de México. Lamúsica,ladanzayeldeporte.

Unespaciopioneroensupropuesta, que albergará una cantidad importante de usuarios de carácter nacional e internacional, ubicado en capitaldeJalisco.

Enfocado en la representación, experimentación, conservación y prácticadelastradicionesescénicas mexicanas.

“Un lugar para el saber del pueblo…”
C O
T O
N J U N
J A L I S C I E N C E D E E X P R E S I O N E S F O L C L Ó R I C A S 10

1.2 ANTECEDENTES

Las expresiones tradicionales mexicanas están concebidas como un cúmulo de cosas que suceden al mismo tiempo, son un evento. La comida, la música, el baile, el espectáculo, la decoración, crean una atmósferaquehaceemanarelfolclormexicano.

Es así como surgen distintos tipos de manifestaciones en diferentes disciplinas.Perolaprincipalcaracterísticaquelasdefine,esquesonun conjunto. No se pueden entender por separado, son un todo dentro de lasumadesuspartes,unfenómenosocio-cultural.

Por ejemplo, la música mexicana actual viene heredada desde la época colonial, fue una mezcla de culturas. Los sonidos y ritmos prehispánicosjuntoconlosinstrumentoseuropeosyafricanos9.Dando como resultado una variedad importante de estilos musicales, de los cualeselmariachidestacacomosímbolonacionalactualmente.

Acompañado de los ritmos musicales, el baile ha sido parte fundamental del espectáculo. Al tomarse en serio estos movimientos corporales, lograron tener orden y significado, lo cual resultó con el nacimiento de las danzas, mejor llamadas danzas folclóricas, al solo responderasucontextotradicional.

Así como el danzar, el montar a caballo se convirtió en toda una destreza. En la época de la colonia se utilizaron por primera vez los caballos en México, animales importados que solo tenían derecho los criollos o mestizos españoles de utilizarlos, pues ayudaban a cuidar a grandes rebaños. Fue hasta un poco después que los nacidos mexicanos,utilizandoloscaballos,desarrollaronunespectáculo,dando inicioaasílacharreríamexicana10.

9 Álvaro Ochoa, Manual del Mariachi, (México: Secretaría de Cultura, 2013), 17.

10 «Historia de la charrería», Federación Mexicana de Charrería A.C., acceso 18 de marzo de 2024, https://fmcharreria.org.mx/historia-de-la-charreria/

11

Estas tres disciplinas: música, danza y deporte, forman parte importantedelariquezaculturalmexicanaenlaactualidad.Tansoloel MariachiylaCharreríaMexicanasonPatrimonioCulturalInmaterialde la Humanidad por la UNESCO, el primero desde el año 201111 y el segundodesde201612.

Por su parte, la Danza Mexicana es considerada como baluarte nacional, y es representada con mayor importancia, a nivel nacional e internacional, por el Ballet Folclórico de México y que según la Secretaría de Cultura en una publicación oficial “Actualmente el BFM sigue siendo la cumbre de la danza tradicional escénica en México, cuyo su repertorio de más de 60 piezas permanece conformado por la obra de AmaliaHernández.”13

Además,cuentanconungrannúmerodereconocimientos,porejemplo el 21 de enero de cada año se celebra el Día Internacional del Mariachi, porseruna“expresiónartísticaquetrasciendelasbarrerasdelafeyse convierteenunactodeidentidadculturalynacional.”14.

Porotrolado,el14deseptiembreeselDíaNacionaldelCharro.Quees larepresentacióndelamexicanidad,pueslafiguracharraeselculmen del mito del mestizaje, un personaje que sirve como puente entre los españoles e indígenas, «Un personaje enteramente mexicano, un “charro”»15.

Y también, el 15 de abril el Día Nacional de la Danza Folclórica Mexicana16. Aunque oficialmente no está aún reconocido. La fecha es promovida por la Asociación Nacional de Grupos de Danza Folclórica MexicanaA.C.

11 «El Mariachi: Patrimonio Cultural de la Humanidad», Gobierno de México, acceso 18 de marzo de 2024, https://www.gob.mx/epn/articulos/el-mariachi-patrimonio-cultural-inmaterial-de-la-humanidad/#:~:text=El%20vasto%20repertorio%20de%20los,las%20difere ntes%20regiones%20de%20M%C3%A9xico.&text=Mariachi.&text=En%202011%2C%20la%20UNESCO%20declar%C3%B3,Cultural%20Inmaterial%20de%20la%20Hu manidad.

12 «Charrería: Patrimonio Cultural Inmaterial de la Humanidad», Secretaria de Relaciones Exteriores, acceso 18 de marzo de 2024. https://embamex.sre.gob.mx/hungria/index.php/es/noticias/comunicados-de-prensa/609-charreria-patrimonio-cultural-inmaterial-de-la-humanidad

13 «Amalia Hernández, icono de la danza mexicana», Secretaría de Cultura, acceso 18 de marzo de 2024. https://www.gob.mx/cultura/prensa/amalia-hernandez-icono-de-la-danza-mexicana

14 «Día Internacional del Mariachi», Revista UNAM Global, acceso 18 de marzo de 2024. https://unamglobal.unam.mx/global_revista/dia-internacional-del-mariachi/

15 «El charro y la charrería como elementos de la identidad nacional», Servicio de Información Agroalimentaria y Pesquera, acceso 18 de marzo de 2024, https://www.gob.mx/siap/articulos/el-charro-y-la-charreria-como-elementos-de-la-identidad-nacional?idiom=es#:~:text=14%20de%20septiembre%3A%20D%C3 %ADa%20Nacional%20del%20Charro

16 «Celebran el Día Nacional de la Danza Folclórica Mexicana», Secretaria de Cultura, acceso 18 de marzo de 2024, https://www.cultura.gob.mx/estados_nueva_2019/detalle/?estado=23&tipo=prensa&id=72834

12

17 «Historia de la charrería»…

Existen varias asociaciones en el país que promueven y cuidan cada unadeestasactividades,yestánreguladasporunainstituciónnacional respectivamente. Como lo es la Federación Mexicana de la Charrería, A.C., fundada desde el 16 de diciembre 1933 bajo el nombre de Federación Nacional de Charros con el fin de agrupar a todas las asociaciones del país, para organizar competencias y crear un reglamento común que unificara criterios del deporte nacional, ya que la charrería fue declarada como deporte nacional por el presidente de laRepública,ManuelÁvilaCamachoen1945.17

Existen competencias estatales entre equipos para poder clasificar al Congreso Nacional de Charrería, en la cual se eligen a los mejores equiposyparticipantesdelpaís.SeparticipaenlamodalidaddeEquipo Charro,CharroCompleto,Infantil,CharroMayoryEscaramuzas.Todas ellas con diferentes adecuaciones en cuanto a los métodos de competencia y puntajes. En la cual se desarrollan las nueve faenas (suertes) charras por competidor, y una de ellas, que es la terna, consisteendosfaenasdentrodelamismaalejecutarseenequipopara en total sumar diez: La cala de caballo, Los piales en la manga del lienzo, el coleadero, el jineteo de toro, la terna en el ruedo (lazo de cabeza y pial de ruedo), el jineteo de yegua, las manganas a pie, las manganasacaballoyelpasodelamuerte18.

Solo las escaramuzas no realizan estas faenas pues su método de competición es distinto, y consiste en un grupo de ocho mujeres, binomios también se les llama (por ser jinete y caballo), montadas en albarda(delado)obligatoriamente,convestimentadeadelitaocharras, enlacualdebenderealizaralgalopeunarutinadecompetencia.19

Este deporte nacional se caracteriza por la preservación de las tradiciones, pues existe un riguroso control en la vestimenta e indumentaria que cualquier infracción conlleva a la pérdida de puntos, descalificaciónoexpulsión.

18 «Reglamento Oficial de Competencias de Charros categorías Libre y Juvenil 2023», Federación Mexicana de Charrería A.C., acceso 18 de marzo de 2024, https://fmcharreria.org.mx/reglamentos/reglamento-oficial-de-competencias-charras-categoria-libre-y-juvenil-2023/

19 «Reglamento Oficial para Escaramuzas y Damas Charras 2022», Federación Mexicana de Charrería A.C., acceso 18 de marzo de 2024, https://fmcharreria.org.mx/reglamentos/descarga-el-nuevo-reglamento-oficial-para-escaramuzas-y-damas-charras/

13

Porsuparte,elmariachioficialmentecuentaconelInstitutoMexicano del Mariachi, que por Ley: “El objeto general del Instituto es promover y fomentar la cultura musical derivada del Mariachi, así como la formación de academias enfocadas a la integración de nuevos grupos.”20puesenlapáginaweboficialmenciona:

“ElMariachiencaraunasituaciónmuygrave:

La música de Mariachi no ha evolucionado en su sonido, no hay exponentes jóvenes, la estrella de la música mexicana de Mariachi con más éxitos en las últimas décadas ha sido Vicente Fernández, y tras él, hay solo dos o tres artistas -que aún siendo muy importantes- ya tienen décadas de haber entradoalpanoramadiscográfico.

La radio no da espacios al género, y por esto las discográficas no producen ni promueven nuevos artistas, en parte por esto el Mariachi está a punto de la desaparición en la industria discográfica y en el mundo del espectáculo.”21

Elmariachilogrófamainternacionalapartirdelaépocadelcinedeoro mexicano,enlosañostreintasycuarentas,tantoasíquecuentaenuna nota de la Secretaría de Cultura acerca del trabajo de Maricruz Castro “[...] fue el caso de un grupo de mariachis que surgió en la antigua Yugoslavia,quecantabantemaspopularesdeMéxicoenelidiomalocal, lo cual representa que las películas nacionales lograron influir profundamenteenculturastanlejanascomoesa.”22

Prácticamente el mariachi son músicos vestidos de charros que tocan sones, corridos o huapangos. Todo este estereotipo fue impulsado por la industria del cine, que en esos años sirvió como vínculo nacional, basado en la unidad y en la búsqueda de identidad, tras años de guerra.23

20 «Iniciativa que expide la ley del instituto mexicano del mariachi, a cargo de la diputada mónica almeida lópez, del grupo parlamentario del PRD», Sistema de Información Legislativa de la Secretaría de Gobernación, acceso 18 de marzo de 2024, http://sil.gobernacion.gob.mx/Archivos/Documentos/2019/11/asun_3971798_20191128_1574971372.pdf

21 «El Mariachi», Instituto Mexicano del Mariachi, acceso 18 de marzo de 2024, http://imariachi.org/ 22 «El cine mexicano tuvo una influencia cultural global cuando ese concepto ni siquiera existía: Maricruz Castro», Secretaría de Cultura, acceso 18 de marzo de 2024, https://www.gob.mx/cultura/prensa/el-cine-mexicano-tuvo-una-influencia-cultural-global-cuando-ese-concepto-ni-siquiera-existia-maricr uz-castro

23 «El charro y la charrería como elementos de la identidad nacional»…

14

EncuantoaladanzafolclóricaexistelaAsociaciónNacionaldeGrupos deDanzaFolclóricaMexicanaA.C.,queorganizavariostiposdeeventos para la promoción de las danzas folclóricas en todo el país, junto con los ayuntamientos o gobiernos estatales. Pero la institución de mayor pesoenelpaíseselBalletFolklóricodeMéxicoquetienecomosedela Escuela de Ballet Folklórico de México de Amalia Hernández, hoy auspiciadoporlaFundaciónAmaliaHernández.

Creado oficialmente en 1952 y abriendo sus puertas en formato de escuelahasta1968.ObteniendoelprimerlugarenelFestivaldelTeatro delaNacionesenParís,compitiendocontreintayseisespectáculosde todoelmundoen1961.24

Existe una diferencia entre danza y baile, la cual es, según Alfonso MuñozGüemes:

“[...] a grandes rasgos, en que el baile es aquella actividad colectiva en que participan,segúnseaelcaso,todosoalgunosdelosmiembrosdelacomunidado núcleo de población rural con motivo de algún festejo, ya sea religioso o no. A su vez,lasdanzassonaquellasrealizadasporungrupodedanzantesespecializados en efectuar su representación como parte de la tradición y de la celebración de lasfiestasreligiosasdelascomunidades.”25

Al igual, en un artículo de la Secretaría de Educación del Estado de Campechemenciona“Lasdanzasautóctonasoriginalessondanzasque entranúnicayexclusivamenteenelterrenodelasdanzasreligiosas”26, y acerca de las danzas folclóricas “[...] surgen como espectáculo, es decir, con público. [...] se baila por el placer de llevar los rasgos del puebloaotroslugaresyporunacuestióndeidentificaciónsocial.”27

Las presentaciones de danza folclórica representan todo un éxito en el extranjero, pues cuentan con un gran público, como lo hizo la CompañíaMexicanadeDanzaFolklóricaen2018conpresentaciones

24«Amalia Hernández, icono de la danza mexicana»…

25 Alfonso Muñoz, Análisis de danzas tradicionales. La expresión etnocoreográfica entre los grupos de Mesoamérica y Aridoamérica,Revista INAH, documento pdf.

26 «4. Las danzas folclóricas del mundo», Educación Campeche, acceso 18 de marzo de 2024, https://media.educacioncampeche.gob.mx/file/file_103bdf0078bbcdb69fdd72cb6b9f9a41.pdf

2 «4. Las danzas folclóricas del mundo»…

15

en República Checa, Alemania y Francia, con una asistencia de más de treintaycincomilpersonas.28

Sin duda alguna otro evento exitoso que lleva varios años en escena es el Encuentro Internacional del Mariachi y la Charrería que se lleva a cabodesde1994enGuadalajara,Jalisco.28Enelaño2019,segúnMoisés Hernández en una nota de Meganoticias.mx, el festival reportó una asistencia de 320 mil personas, donde el 10% fueron visitantes nacionales e internacionales, dejando así una derrama económica, en hotelería, servicios y alimentos, con un estimado de 170 millones de pesos.29

En el año 2023, en una nota de Proceso menciona las proyecciones económicasdeeseaño“[...]seesperaquedejeunaderramaeconómica en la entidad de 170 millones de pesos, y que asistan 350 mil personas.”30teniendouncostodeasistencia“[...]paraasistiralasGalas del Mariachi en el Teatro Degollado van desde 2 mil 950 pesos a 950, losmáseconómicos.”31

Otro evento importante que tiene como sede Guadalajara es el Encuentro Nacional del Mariachi Tradicional que se celebra desde 2001. Además de las celebraciones a la danza folclórica por el Día MundialdelFolclor,el22deagosto.32

28 «Iniciativa que expide la ley del instituto mexicano del mariachi, a cargo de la diputada mónica almeida lópez, del grupo parlamentario del PRD»

29 «Millonaria derrama económica por Encuentro Internacional del Mariachi», Meganoticias, acceso 18 de marzo de 2024, https://www.meganoticias.mx/guadalajara/noticia/millonaria-derrama-economica-por-encuentro-internacional-del-mariachi/94790

30 «Arranca en Guadalajara el 30 Encuentro Internacional del Mariachi y la Charrería», Proceso, acceso 18 de marzo de 2024, https://www.proceso.com.mx/cultura/2023/8/23/arranca-en-guadalajara-el-30-encuentro-internacional-del-mariachi-la-charreria-313447. html

31 «Arranca en Guadalajara el 30 Encuentro Internacional del Mariachi y la Charrería»…

32 «Celebran con música y danza el Día Mundial del Folclor», INBAL, acceso 18 de marzo de 2024, https://inba.gob.mx/prensa/14505/celebran-con-musica-y-danza-el-dia-mundial-del-folclor#:~:text=La%20Secretar%C3%ADa%20de%20Cul tura%20del,mexicanas%20heredadas%20y%20preservadas%20de

16

1.3 JUSTIFICACIÓN

La escena tradicional y cultural mexicana es una de las más importantes a nivel mundial, así lo demuestra la cantidad de reconocimientos como Patrimonio Cultural Inmaterial de la HumanidadquetieneMéxicoconsustradiciones.

Tan importante es la ciudad de Guadalajara para el folclor mexicano que cuenta con dos eventos de impacto nacional, el Encuentro Internacional del Mariachi y la Charrería, y el Encuentro Nacional del MariachiTradicional,eventosquenoocurrenenningúnotraciudadde larepública.

Así como lo es Jalisco para las diferentes expresiones tradicionales, pues como dice la canción “De Cocula es el mariachi, de Tecalitlán los sones, de San Pedro su cantar, de Tequila su mezcal”. Municipios que sontodaunaexperienciaculturaldentrodelestado.

Por ello es importante crear espacios que fomenten la representación de las tradiciones, para la preservación y exposición de las mismas. Lugares dedicados al aprendizaje de las actividades que las hacen realidad, Con el enfoque de crear experiencias positivas que ayuden a la divulgación, aceptación y apropiación para generar un sentimiento depertenencia.

Sindejardemencionarqueestosespaciosgeneranungrannúmerode turistas, son un gran impulsor de economía, son promotores del desarrollo urbano, generan lugares de convivencia y esparcimiento para todos los usuarios, posicionan a la ciudad como referente internacional de atracciones culturales y crean un vínculo de arraigo a lastradicionescontodalapoblación.

17

1.4 OBJETIVOS

Objetivo General.

Crear un conjunto arquitectónico que permita experimentar y aprender las costumbres y tradiciones escénicas mexicanas de nivel nacional, enfocados en el mariachi, la charrería y las danzas folclóricas de México.

Objetivos de proyecto.

1. Proyectar un museo interactivo (con el uso de herramientas digitales) que exprese la história del folclore nacional: vestimenta, hábitos, herramientas, arquitectura, paisajes y contextohastalaactualidad.

2. Crear un foro de música que permita la puesta en escena de diferentes expresiones musicales y escénicas, como lo son el mariachi y la danza folclórica. Teniendo la apertura a diferentes tipos de representaciones nacionales e internacionales enfocadas en las tradiciones y costumbres del lugar.

3. Realizar un lienzo charro para que se utilice como centro de práctica para la charrería, único deporte nacional, y para las distintas presentaciones que puede albergar este tipodeespacios.

4. Concretaruna estética apartirde la materialidad que genere un sentimiento de pertenencia e identidad. Que de homogeneidad y plasme un lenguaje propio y característico del proyecto.

18

2. DELIMITACIÓN

DEL TEMA

19
20

2.1 MARCO HISTÓRICO

Las tradiciones mexicanas se remontan a cientos de años atrás, todo gracias a la fusión de dos culturas; la española y la indígena. El resultado de la conquista del imperio azteca por parte de los pueblos oprimidos indígenas y los colonizadores españoles, trajo consigo una mezcla de culturas y un sin fín de conocimientos. Cómo lo dice Ramón Olvera en la introducción de su libro Pioneros de a Caballo, “Si dijéramos que nosotros inventamos la charrería, estaríamos mintiendo;porquenilosaztecas,nilostoltecas,...conocíanelcaballoantesdelaconquista”13,lo que demuestra la importancia de esa mezcla cultural para dar como resultado, las costumbres mexicanascomoseconocenhoyendía.

Peroasícomocambianloscampos,lospaisajes,lasciudadesylasmontañas,tambiéncambiala percepcióndelastradiciones,puestoquealiniciodesusañoselmariachieramuymalvistopor la sociedad, “no pasaba la prueba de urbanidad”14, pues era considerado como acto de personas muydebajaíndole,“Orquesta,orquestatípicaparalaélite;tamborayarpaparalaplebe,música deamoryguerra.”15EstetipodesucesosnosoloocurrenenMéxico,esunfenómenohumanoy más bien, un fenómeno de “sociedad”, el rechazo y repudio de actividades que se creen no dignas de un estrato social, lo que es interesante aquí es indagar en la ideología nacional, así comoloescribióOctavioPaz:

“Viejo o adolescente, criollo o mestizo, general, obrero o licenciado, el mexicano se me aparece como un ser que se encierra y se preserva: máscara el rostro, máscara la sonrisa. Plantado en su arisca soledad, espinoso y cortés a un tiempo, todo le sirve para defenderse: el silencio y la palabra, la cortesía y el desprecio, la ironía y la resignación.”16

El mexicano nunca se raja. En el texto completo de Octavio Paz se puede entender porque la cultura mexicana puede llegar a ser tan arraigada y rehúsa al cambio, tan orgullosa de lo suyo pero tan temerosa al cambio. Una contradicción constante, pero que puede justificar como se puedenjugarlavidaenuncaballosolopordeporte.

13 Ramón Olvera, Pioneros de a Caballo (México: Ramón Olvera Miranda, 1993), 13.

14 Álvaro Ochoa, Manual del Mariachi (México: Secretaría de Cultura, 2013), 24.

15 Ochoa, Manual…, 27.

16 Octavio Paz, Máscaras mexicanas. (Universidad Autónoma del Estado de México, 2014), acceso 18 de marzo de 2024, http://web.uaemex.mx/fciencias/Comunicacion/Acervos/Historicos/2014/ABRIL/22.pdf

21

La charrería

Losiniciosdelacharreríadatandelasprimerasvecesqueloscriollosomestizosespañolespor faltadepersonas,comenzaronadejaranativosamontaracaballo.Lasprohibicionesimpuestas fueron ignoradas con el motivo de que se pudiera “defender mejor la tierra”17. En 1619, se escribióunapeticiónalVirreydelaNuevaEspañaparaquelosindiospudieranmontaracaballo consilla,frenoyespuelasparaquepudierancumplirconsutrabajo,porqueeratantoelganado quenopodíanpastorearapie,fuéallídondenaciólacharreríamexicana.18

Eldeporteprovienedelantiguojuegodecañas,eransimulacionesdecombatesacaballodonde se sustituye la lanza con las cañas pero solo era exclusivo para nativos españoles, así que la evolución que se dió fué las acrobacias y suertes que se podía hacer con el caballo.19 Una parte importante fué la doma de bovinos y la del ganado caballar, surgiendo así este nuevo oficio denominadocharrería,enlahaciendasdeHidalgo,PueblayelEstadodeMéxico.20

La charrería fue designada como deporte nacional en 1945 por el Presidente Manuel Ávila Camacho, e instituido el 14 de septiembre como “Día del Charro”. La primera asociación formal surgióenelDistritoFederal,“LaNacional”el4dejuniode1921.Posteriormenteen1933,secrea la Federación Nacional de Charros, con la tarea de agrupar, reglamentar y crear competencias contodaslasorganizacionesdelpaís.21

El deporte se desarrolla bajo la práctica de las 10 suertes; cala de caballo, piales en el lienzo, coleadero,jineteodetoro,ternaenelruedo,lazoalacabeza,jineteodeyegua,manganasapie, manganas a caballo y el paso de la muerte. Y también forma parte la escaramuza charra, la cual desarrolla figuras a caballo en un grupo de 8 mujeres.22Existen 5 tipos de trajes que utilizan en la charrería: traje de faena, traje de media gala, traje de gala, traje de gran gala y traje de etiqueta. El que se utiliza usualmente para desarrollar la charrería es el traje de faena, que consiste en un sombrero liso de fieltro o palma, camisa pachuqueña de cuello pegado o corto, tipomilitar,pantalóndecharro,botinesestilocharro,corbatademoñoencolorserio,espuelas y chaparreras. El cuidado de la vestimenta para el deporte es sumamente importante, pues al serunatradiciónnacionalsedebencuidarlasformasysersumamenteprofesional.23

17 Olvera, Pioneros…, 16.

18 Olvera, Pioneros…, 18.

19 Olvera, Pioneros…, 20.

20 «Historia de la charrería», Fmcharrería.org.mx, acceso 18 de marzo de 2024, https://fmcharreria.org.mx/historia-de-la-charreria/

21 «Historia de la charrería»…

22 «Historia de la charrería»…

23 «Historia de la charrería»…

22

El mariachi

El mariachi proviene de las provincias que comprenden las entidades de Colima, Jalisco, Michoacán, Nayarit y algunos lado de Guerrero y Guanajuato. Esta tradición “recreó su identidad acompañada de influencias nativas, africanas y europeas”.24 Tiene antecedentes prehispánicosconelmitote,conocidoenlaépocacolonialcomofandango,yquedesdesiempre representó“fiesta,jolgorio,música,músicos,baile,bailadores,tarimayespectadores”.25

Desde sus inicios, el mariachi ya contaba con numerosa cantidad de instrumentos a utilizar “Solista de arpa, jarana, bandola. Dúo de arpa y violín; guitarra y violín, guitarra y jarana; el trío de dos violines y vihuela, arpa bandola y guitarra…”.26 El mariachi y los fandangos surgen de la vidacampestre,“ranchera”,delavidadiaria,deltrabajoydeldescanso.27

Alserunaexpresióndelpueblo,durantelosañosposrevolucionariosparaimpulsarsucampaña el candidato Lázaro Cárdenas utilizó al mariachi como parte de su mensaje político y nacionalistaparaasíllegaralasmasastrabajadorasycampesinas,asíhaciendolatransicióndel mariachi del pueblo a la ciudad.28 Aunque por rumores se ha creído que la palabra mariachi provienedelfrancés“Mariage”odelinglés“Marriage”,Undíadelasantacruzen1859,elcurade Tlalchapa, Guerrero describió que en el atrio: “Las músicas, o como se dice el Mariache, compuestas de arpas grandes, violines y tambora tocaban sin descansar…” Todo esto siendo añosanterioresalafrancesamientomexicano.29

Perosindudaelmariachituvounagranexposicióngraciasalaspelículasmexicanasenlaépoca de oro, aquí es donde muchos directores de cine posicionan la imagen de México en el extranjero y el mariachi se vuelve símbolo nacional, junto con el charro y el tequila. Ahora la configuracióndelosmariacherossevuelvedistinta,puespasódesolotocarenlascantinasoen fiestas de la sociedad, a ser una pieza de exportación como embajador de la cultura mexicana. Seconviertenen“verdaderosestudiososqueproducenmúsicaclásicaentríosyorquestas…”30

Los instrumentos que acompañan al mariachi son: el guitarrón, la vihuela, los violines y las trompetas.

24Ochoa, Manual…, 17.

25 Ochoa, Manual…, 17.

26 Ochoa, Manual…, 19.

27 Ochoa, Manual…, 20.

28 Ochoa, Manual…, 55.

29 Ochoa, Manual…, 24.

30 Ochoa, Manual…, 75, 76, 77.

23

La danza folclórica

Losiniciosdelacharreríadatandelasprimerasvecesqueloscriollosomestizosespañolespor faltadepersonas,comenzaronadejaranativosamontaracaballo.Lasprohibicionesimpuestas fueron ignoradas con el motivo de que se pudiera “defender mejor la tierra”17. En 1619, se escribióunapeticiónalVirreydelaNuevaEspañaparaquelosindiospudieranmontaracaballo consilla,frenoyespuelasparaquepudierancumplirconsutrabajo,porqueeratantoelganado quenopodíanpastorearapie,fuéallídondenaciólacharreríamexicana,segúnRamónOlvera18.

24
25

2.2 MARCO TEÓRICO

8“unaidentidadnecesitahablarconclaridadypropósito"

9“Saber más sobre identidad implica saber más sobre uno mismo. Esto significa tener la disposición para sentarse y pensar: un lujo en esta épocadeprisas.”

“si una identidad representa una oportunidad, también señala limitaciones: si habremos de saber quiénes somos, también debemos saberquiénesnosomos”

Definición de los conceptos clave de la investigación Definición del género arquitectónico por varios autores y fuentes de información

Tipologíasdelgéneroarquitectónico(clasificación)

Característicasdelgéneroarquitectónico

26

2.3 EJEMPLOS ANÁLOGOS

LA PETATERA

Autor: Tradición.

Lugar: VilladeÁlvarez,Colima,México.

Año: Desde1857

Construcción: 5,000m²

Descripción: Esunaplazadetorosque se monta y desmonta cada año cada febrero desde 1857. Construida casi enteramente de madera junto con petates que dan sombra. “La petatera” esunhitodeVilladeÁlvarezyColima, pues es considerada como la artesanía más grande del mundo y es parte del patrimonio cultural inmaterial de México.

Se resume bien en el siguiente texto “Es el resultado de una sólida organización social, refleja el esfuerzo colectivo, que permite a un grupo de artesanos y constructores tradicionales fortalecer su identidad culturalparatrabajarenequipo.”42

Programa Arquitectónico: -Ruedo. -Graderías. -Platea. -Toriles. -Cajóndejineteo. -Corrales.

27
12«Plaza de toros la petatera, patrimonio sustentable de Colima», Universidad de Colima, acceso 17 de marzo de 2024,

Materialidad:

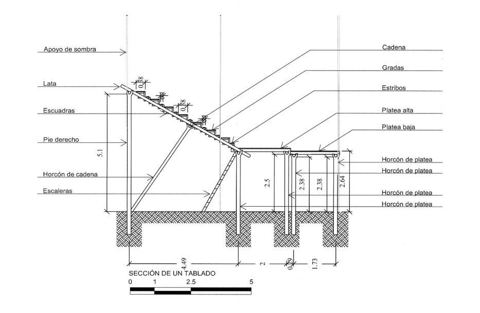
Sistema de entablado (estructura). Elementos verticales: horcones, palos, pies derechos construidos con troncos de madera. Elementos horizontales: polines, soleras construidos con troncos de madera. Elementos diagonales: latas construidos con troncosdemadera.

Complementos:

Piso de palcos: “tablas”, tarimas de maderadepinoodeocote.

Ruedo: “trancas”, polines y tablas gruesas.

Gradería.

Asiento: tablaanchademadera.

Escuadras: módulosdemadera. Estribo: tablaangostademadera.

Amarres: cuerdasdeixtle.

Sombra: retícula de bambú, con amarres de soga de ixtle y cubierta de petatesdetule.

Conclusiones:

La petatera como elemento arquitectónico simboliza la unión de la comunidad y el respeto a las tradiciones. Un elemento realizado completamente de materiales sustentables que hace notar la inteligencia humana sin la necesidad de un conocimiento técnico. Un claro ejemplo de un proyecto consolidado con los habitantes que hace disfrutar todo el proceso desde el inicio hasta el fin.

28

PlantaArquitectónica

SecciónLongitudinal

AlzadoPrincipal

SecciónEntablado

PlantaEntablado

29
Planos

MUSEO DE GEOLOGÍA

Autor: EstudioMMX

Lugar: Progreso,Yucatán,México.

Año: 2021

Construcción: 2,242m²

Descripción: El proyecto está planteadocomounelementoculturaly también como espacio público. Las distintas partes del programa arquitectónico se relacionan entre sí y con el contexto a través de los diferentesambientesyespacios.

Desarrollado como un conjunto de volúmenes a diferentes alturas (escalonados) organizados en una retícula. Estos elementos operan de forma individual y colectiva, creando espacio habitables al interior de los volúmenes, espacios de tránsito, sitios de sombra al exterior, jardines y una cubierta ajardinada que se puede recorrer en diagonal de esquina a esquina por encima del museo. Puesto que está situado en el mismo lugar donde antes se encontraba una plaza pública.

Materialidad:

Elementos estructurales: Concreto.

Muros: Tabicónycastillos.

Revestimiento exterior: Chukum.

Puertas: Carpintería.

Ventanería: Cristal.

Piso exterior: Adoquínypiedra.

Piso interior: Chukumpulido.

30 «Museo de Geología / Estudio MMX», ArchDaily México, acceso 18 de marzo de 2024, https://www.archdaily.mx/mx/1004419/museo-de-geologia-estudio-mmx

30

Programa Arquitectónico: -Jardines. -Espaciosdeexposicióninterior. -Cafetería. -Sanitarios. -Regaderas. -Estacionamiento. -Andadores. -Estanques. -Administración. -Cubiertadeusopúblico.

Identidad: Elmuseodegeologíaes

31
«Museo de Geología / Estudio MMX», ArchDaily México, acceso 18 de marzo de 2024, https://www.archdaily.mx/mx/1004419/museo-de-geologia-estudio-mmx
30

Planos

SecciónTransversal

PlantaArquitectónica

SecciónLongitudinal

AlzadoPrincipal

SecciónLongitudinal

32

CASA DE MÚSICA

Autor: ColectivoC733.

Lugar: Nacajuca,Tabasco,México.

Año: 2021

Construcción: 1,325m²

Descripción: La casa de música es un edificiopúblico

Programa Arquitectónico:

33

Materialidad:

Identidad:

34

PlantaArquitectónica

AlzadoPrincipal

SecciónLongitudinal

SecciónTransversal

35
Planos

CENTRO CULTURAL TEOPANZOLCO

Autor: IsaacBroid,PRODUCTORA.

Lugar: Cuernavaca,Morelos,México.

Año: 2017

Construcción: 7,000m²

Descripción: El proyecto está localizado en frente de una zona arqueológica, con lo cual se buscó potenciar el sitio arqueológico y generar un espacio público significativo.

Materialidad:

36

Programa Arquitectónico: -Vestíbulo. -Taquilla. -Cafetería. -Guardarropa. -Auditorio. -Escenario. -Camerinos. -Sanitarios. -Oficinas. -Áreadestaff. -Vestidores. -Jardines. -Terrazas. -Bodegas. -Cajanegra.

Identidad:

37

PlantaBajaArquitectónica

AlzadoNorte

AlzadoSur

38
AlzadoEste

SecciónLongitudinal

SecciónLongitudinal

39
Planos

2.4 HIPÓTESIS

El Conjunto Jalisciense de Expresiones Folclóricas situado dentro de la ciudad de Guadalajara será un lugar para la experimentación de las tradiciones escénicas y culturales de México.

Un espacio de ocio y esparcimiento que podrán disfrutar cientos de visitantes locales, nacionales e internacionales. A su vez será un lugar de práctica y aprendizaje, pues las diferentes actividades que se desarrollan dentro del conjunto están enfocadas en la experiencia integral del visitante.

Enfocado en la representación del mariachi, la charrería y las danzas folclóricas, pero que también está abierto a las diferentes representaciones culturales del mundo, pues el contraste de las diferentes manifestaciones abona a riqueza cultural que envuelve al conjunto.

40

3. MARCO CONTEXTUAL

41
42

3.1 LOCALIDAD

El proyecto se encuentra dentro de la zona conurbada de Guadalajara, que hoy se designa como el Área Metropolitana de Guadalajara (AMG) por ser nueve municipios que forman parte de la dinámica de la capital de Jalisco debidoasucercanía.

El motivo de situarlo dentro la capital del estado es por el impacto turístico que puede generar. Pues estar dentro de la mancha urbana implica tener una mayor accesibilidad al proyecto, considerando que los puntos de ingreso a la metrópoli son: el Aeropuerto Internacional“BenitoJuárez”,laNuevaCentral de Autobuses de Guadalajara y las distintas vialidades que se convierten en carreteras federalesqueingresanalaciudad.

Buscando así estar emplazado en un radio no mayor a 400 metros de una estación de transporte público masivo, para que los recorridosapieseannomayoresa5min.

Tambiénseconsideralascuestionesdeacceso vehicular al proyecto, pues ingresarán vehículos de diferente volumen, lo cual significa que la jerarquía de las vialidades debería ser primaria o de gran sección debido alimpacto.

Sin dejar por un lado que las cuestiones geométricas y de uso de suelo del emplazamiento satisfagan las necesidades del proyecto.

43

3.2 POBLACIÓN OBJETIVO

44

3.3 MATRIZ DE SELECCIÓN DEL PREDIO

45

3.3 PREDIO SELECCIONADO

46

3.4 NORMATIVIDAD

47

BIBLIOGRAFÍA

LIBROS CONSULTADOS

Chávez,Octavio. La Charrería: Tradición Mexicana. México:CasaPedro Domecq,S.A.,1993.

Griborio, Andrea y Céline Tcherkassky. Al Borde: Menos es Todo. México:Arquine,2020.

Ochoa, Álvaro. Manual del Mariachi. México: Secretaría de Cultura, 2013.

Ochoa, Álvaro. Mitote, Fandango y Mariacheros. México: El Colegio de Michoacán, A.C., Casa de la Cultura del Valle de Zamora, Centro Universitario de Ciencias Sociales y Humanidades (CUCSH), Editorial GráficaNuevadeOccidente,2005.

Olvera, Ramón. Pioneros de a Caballo. México: Ramón Olvera Miranda, 1993.

Moix, Llàtzer. Palabra de Pritzker. España: Editorial Anagrama, S.A., 2022.

Stolarki, Andre. El Diseño y la Gestión de la Identidad en el Campo de la Cultura. México:ArsOptikaEditores,S.A.deC.V.,2019.

Rowden, Mark. El Arte de la Identidad: Creación y Manejo de una Identidad Corporativa Exitosa. México: McGraw-Hill Interamericana Editores,S.A.deC.V.,2004.

48

Real Academia Española. «Conjunto,ta». Acceso 05 de marzo de 2024. https://dle.rae.es/conjunto.

EtimologíasdeChile.«EtimologíadeConjunto».Acceso05demarzode 2024.https://etimologias.dechile.net/?conjunto.

Real Academia Española. «Jalisciense». Acceso 05 de marzo de 2024. https://dle.rae.es/jalisciense.

Real Academia Española. «Expresión». Acceso 05 de marzo de 2024. https://dle.rae.es/expresi%C3%B3n.

Real Academia Española. «Expresar». Acceso 05 de marzo de 2024. https://dle.rae.es/expresar.

Etimologías de Chile. «Etimología de Expresar». Acceso 05 de marzo de 2024.

https://etimologias.dechile.net/?expresar#:~:text=La%20palabra%20e xpresar%20viene%20del,y%20manifestarlo.

https://unamglobal.unam.mx/global_revista/dia-internacional-del-m ariachi/

49
SITIOS WEB

BIBLIOGRAFÍA IMÁGENES

1.Pintura de escaramuza a caballo.

https://artemexicanisimo.files.wordpress.com/2017/02/emilio-5.jpg? w=800

2.Pintura paso de la muerte.

https://i.pinimg.com/originals/d4/a9/64/d4a9644fff7199155bc9d578 2717fa53.jpg

3.Pinturaparejafolclórica.

https://images.fineartamerica.com/images/artworkimages/mediumla rge/1/folklorico-romance-maria-gibbs.jpg

4.Imagenaérealapetateraconcal.

https://es.aerialviews.org/La_Petatera.htm#images-15

5.Pinturatríodemariachis.

https://i.etsystatic.com/38881607/r/il/765fa7/5436029714/il_fullxful l.5436029714_av0s.jpg

50

Turn static files into dynamic content formats.

Create a flipbook
Issuu converts static files into: digital portfolios, online yearbooks, online catalogs, digital photo albums and more. Sign up and create your flipbook.
Conjunto Jalisciense de Expresiones Folclóricas by Librado Ramón Loaeza Rivera - Issuu