Sample Portfolio 2024

Page 1

Contact:

Mobile: 07982 683342

Email: libertymitchell8@outlook.com

Linked In:

http://linkedin.com/in/liberty-mitchell099699254

Sample Portfolio

Liberty Mitchell 2024

Selected works:

1 - 4

Discover Brinkburn Y3|S2

Brinkburn Priory and Manor House

Morpeth

5 - 6

Create Berwick Y3|S1

121-125 Marygate

Berwick Upon Tweed

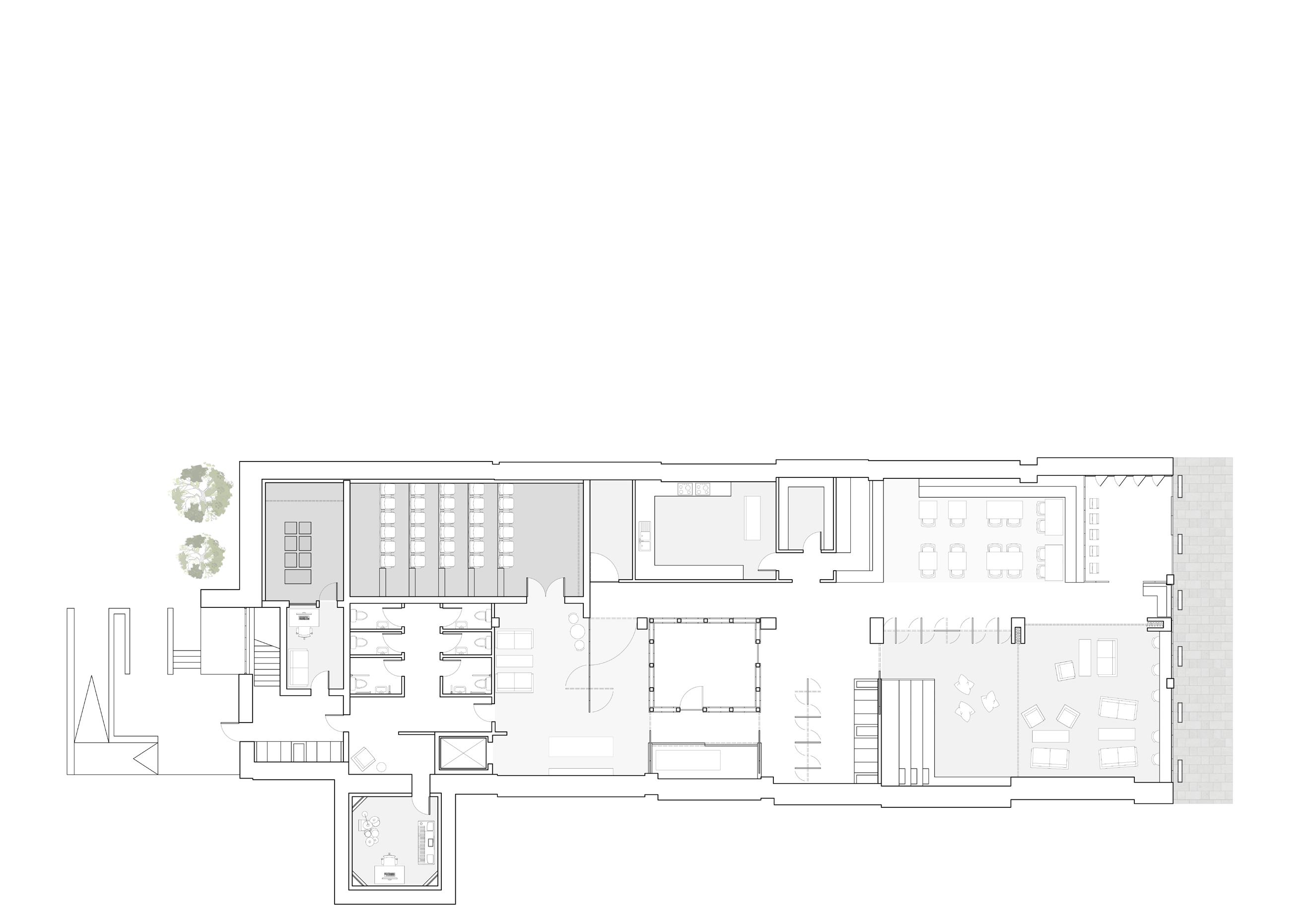
Project: Discover Brinkburn

As part of a live project for English Heritage, the brief calls for a reconsideration of Brinkburn Manor as a venue and a ‘destination for discovery’. The new scheme proposes two key concepts - the transformation of the East side of the Manor into a state-of-the-art musical therapy centre and the preservation of the site’s rich history through a public facing exhibition of the building and its surrounding context.

Upon entering the exhibition, visitors embark on a sensory journey, guided by a series of steel walkways introduced into the existing double and triple height spaces. These pathways, reminiscent of the winding forms of the River Coquet, lead guests through an exploration of the building, revealing the manors rich past and narrative.

Influenced by the compression and rarefaction of a sound wave, the walkways and steel interventions are purposefully organized to guide visitors through small, dark, compact spaces and then out into the more expansive, double and triple height areas. This process repeats throughout the exhibition, building up a truly phenomenological experience.

1
Y3 | S2
Watercolour light study Plaster massing model Concept image using plaster model Topographic site model (NTS) Topographic site drawing (NTS)
1m Long Section AA
Detail axonometric (NTS) 3 1:20 detail model
Full axonometric (NTS) Floor Plans 1m 1m 1m 1m 4
Interior Perspectives

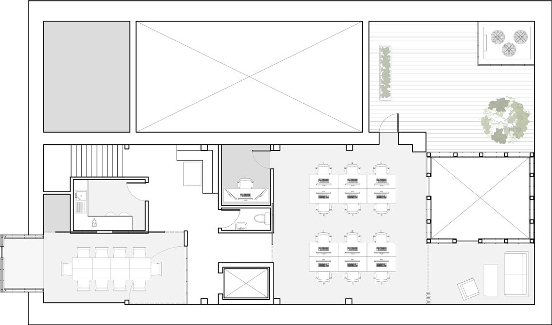
This project was a live project for Northumberland County council, as part of ’Create Berwick’ – a programme designed to kick start the culture and creative zone within Berwick Upon Tweed. The scheme aimed to deliver “a focal point for strategic coordination and collaboration, bringing together the wide range of existing and planned cultural and creative projects and activities”.

The brief called for a public facing, fixed term resource hub as a space for creatives and community groups to work, with a specific focus on the performative and moving/ visual arts aspect of the programme.

A series of polycarbonate interventions have been introduced into the existing shell, creating interesting silhouettes as people move around, turning the building into a piece of moving art in itself. Aluminium framed polycarbonate panels throughout the building can be arranged in different formations to separate the space and accommodate different functions.

Project:
Y3 | S1
Create Berwick
Outdoor terrace Cafe bistro Entrance lobby Exhibition Space Staff Store Cinema spill out drinks reception Cinema Foley room Mixing suite Double height space AA AA UP First Floor Plan
Sketch Model 1m 5
Site Plan (NTS) Materiality palette Birch plywood Forbo marmoleum Clayworks plaster Polycarbonate
Full axonometric (NTS)
Exposed brickwork Front elevation (NTS)
6
Interior Perspectives

* Existing structure drawn to best knowledge based on site visit and existing plans/ sections available

The bleacher seating and custom built in seating booths act as a piece of archi-furniture, dividing the open plan space. The structure is clad entirely with birch plywood panels, with the ones inside the booths being nano-perforated to absorb sound and increase privacy.

A. Axonometric of built in seating booth/ bleacher seating (NTS)

B. Bespoke polycarbonate handrail detail (NTS)

1. 40mm Marlon Bioplus ST polycarbonate sheet in Opal

2. 50mm x 50mm x 3mm aluminium box section

3. 2mm custom matt black aluminium profile by Phoenix aluminum

4. Recessed LED

5. 2mm custom matt black aluminium profile by Phoenix aluminium Throughout the retrofit, a series of aluminium framed polycarbonate panels are arranged on a track system to form partition walls between different areas of the building, accommodating for different spatial and functional requirements. 35mm Marlon ST Polycarbonate sheets are fitted into the aluminium frame, providing a physical separation while still allowing light into the spaces.

C. Polycarbonate panel axonometric (NTS)

D. Top hung track detail (NTS)

1. Existing concrete slab 2. Concrete anchor dual thread steel socket bolt 3. Steel threaded rod

4. Saheco SF-P50 aluminium top track with Matt Black finish

E. Elevations showing different configuration options of the polycarbonate panel system (NTS)

The technical section shows the double height polycarbonate intervention, sliding polycarbonate partition display panels and built-in seating/ workspaces. 1 Velux solar powered flat roof light 2 100mmx100mmx2mm Aluminium box section 3 Flashing tape and silicone seal 4 40mm Marlon ST BioPlus polycarbonate sheets 5 Existing ridge cap* 6 Existing timber roof battens* 7 Existing timber joists* 8 150mm existing insulation* 9 12.5mm existing plasterboard* 10 Existing stone wall with brick backing* 11 Existing concrete slab* 12 Existing Steel I-Beams* 13 Tension wire suspended, matt black track lighting system 14 17.5mm glass balustrade 15 10mm aluminium U channel fixed into screed 16 70mm screed 17 Existing concrete slab* 18 3.5mm Forbo marmoleoum decibel 19 Movement joint 20 Nu-Heat underfloor heating system 21 150mm XP-Pro rigid insulation 22 DPM 23 Matt black aluminium frame 24 40mm Marlon ST BioPlus polycarbonate sheet 25 Matt black aluminium track system 26a, 26b Timber frame structure (63x38 CLS studwork) 27 18mm Birch Plywood 28 Recessed LED 29 Recessed interactive screen 30 20mm ASP aluminium ceiling shadow gap profile with recessed LED 31 Suspended ceiling Clayworks plaster finish, 12.5 mm plasterboard, ceiling furring, primary channel, rod suspension hanger 32 40mm Polycarbonate balustrade 33 Breathable Membrane* 1 2 3 5 6 7 8 9 10 11 12 13 14 15 16 17 18 19 20 21 22 23 24 25 26a 26b 27 28 29 30 31 32 33 (This area is not part of the space allocated for retrofit and has therefore been left blank) Technical section 1m
A B C D E 7
Seating booths section (NTS)
8 (Page left blank)

Turn static files into dynamic content formats.

Create a flipbook
Issuu converts static files into: digital portfolios, online yearbooks, online catalogs, digital photo albums and more. Sign up and create your flipbook.