architecture PORTFOLIO angelo novembre 2022

Page 1

1 ARCHITECTURE PORTFOLIO ANGELO NOVEMBRE
2
02 march 1993, Noci - IT Rotterdam - NL novembreangelo@gmail.com +31 6 39 71 79 38 linkedin/angelo-novembre issuu.com/portfolio_2022 instagram.com/chiusofuori
ANGELO NOVEMBRE architectural designer

This Portfolio is a selection of drawings showcasing my experience as a designer at Team Paul de Vroom+Sputnik and my studies at the Architecture universities of Bari and Paris.

I chose a synthetic layout to reveal the main characteristics of the various works. Some values and the way I approach design and architecture emerge: a clear concept, a methodic and analysis-based work, a coherent relation between structure and function, pragmatism along the process, and honesty on the result.

3 PORTFOLIO TABLE OF CONTENT ACADEMIC WORKS CASA A TORRE 48 SANTA TERESA 46 BARI CITY GATE 42 MEMOIRE 40 BÉLA BARTÒK 38 LA MÈRE ET L’ENFANT 34 FINAL THESIS 32 PROFESSIONAL WORKS SQUARES 31 DUTCH HOUSE 30 GISSE STAOPEL HUUSE 29 LYCKA 28 RECIDENCE VYSOKANY 26 HOUTHAVEN 24 VILLA B 22 VOGELBUURT 16 SUHA C2 + BLDGR 14 WENCKEBACH 12 NOVAYA ZVEZDA 8 DKV - WONINGPLATTEGRONDEN 6 TYPOLOGIE STUDIES 4

TYPOLOGIESTUDIE

RESEARCH ABOUT HOUSING TYPOLOGIES IN THE NETHERLANDS

Since 2013 Sputnik has been involved in studies related to housing typologies and compact apartments. After “goed wonen in een betaalbare woning” - research based on the minimal-comfort space necessary for living functions – we started a “sequel” (2019) of the research to explor a library of apartment types that could together generate buildings.

The goal was to study how the different types of housing in the Netherlands (row houses, be-bo, corridor and gallery block, towers and portiek) could meet the needs of the housing market with apartments of different sizes in the same block with different circulation and access systems.

YEAR 2019-2022

TASKS Concept, structure and development, apartments design, texts and schemas, supervision

TEAM Paul de Vroom, Henk Bultstra, Bert Karel Deuten, Angelo Novembre, Roberta Redavid, Ivan Tam Chi Fung, Krystian Woźniak

RESEARCH Team Paul de Vroom + Sputnik

4

In particular, we tried to answer the following questions:

- Given a building lot, what is the way to structure a mix of housing blocks to optimize the use of the hybrid block?

- How to structurally and technically combine different apartment sizes (studio, 2/3/4 room apartment, etc.) in a building and what are the possible solutions for the corners and the ground floor?

- What are the relations between the measurement system of the structure (depth and width) and the surface required for each apartment?

- What are the “ingredients” and the needs to standardize the apartment itself (even with a different type of orientation: two orientations, one orientation, corner orientation)?

To answer these questions, some principles of action were formulated and some choices were taken throughout the process. These led us to generate a catalog of circa 90 types of apartments linked by the same principles but belonging to 6 different types of access, which together could be combined in a single housing complex.

5

DKV WONINGPLATTEGRONDEN

PROPOSAL FOR A BOOK ABOUT THE BUILDINGS OF DKVARCHITECTEN

YEAR 2018-2022

TASKS Concept, texts, schemas, drawings, book layout design

TEAM Paul de Vroom, Henk Bultstra, Bert Karel Deuten, Angelo Novembre, Femke Bakker, Roberta Redavid

RESEARCH Team Paul de Vroom + Sputnik

6

A common design habit of TPDVSP is to think of architecture by typologies. We often use the buildings of DKV architecten, Paul de Vroom’s former office with Herman de Kovel and Dolf Dobbelaar, as a typological reference to present our proposal for a new commission. We then came up with the idea of making a book about DKV works.

DKV architecten was a dutch architectural firm, that between 1985 and 2013 designed more than 200 residential complexes. Some of these have a relevant value concerning the typologies to which they belong: in fact, these buildings can be grouped by access type (portiek, gallery, tower, EGW, urban villa, etc). Therefore, the clarity of the building’s circulation system, the iconic and aesthetic appearance of the façade, the functionality of the apartment unit, and the role of the building within the urban fabric were the strengths of the office.

For the book proposal, we studied some of the most relevant projects designed by DKV to investigate the possible template of the catalog. In this way, a method of representation (and redrawing) was tested and structured to reveal the qualities of the floor plans (scale 1:500) connected to the type of apartment (scale 1:200). Some drawings on a larger scale were also shown to underline the role of the fabric in the urban structure. Finally, to explain and highlight the characteristics of the projects, we added volume, façade, and typology descriptions, sometimes graphically supported by axonometric schemes.

The proposed example here shows the corridor block on St. Janshaven in Rotterdam (1988), with its configuration in the urban fabric, with the typical floor plans and the type of apartment as “building stone”.

7
2e, 5e en 8e verdieping 3e, 6e en 9e verdieping 4e, 7e en 10e verdieping maisonette A,
maisonetten A
B,
boven
en
tussen maisonette B, beneden

NOVAYA ZVEZDA II

MOSCOW - RU

7 TOWERS

1.500 APARTMENTS + PARKING GARAGE

YEAR 2021-2022

TASKS

visualization by SUBMARINA

Concept, reference study, façade design, principle details, presentation drawings, 3D model, supervision

TEAM Paul de Vroom, Henk Bultstra, Bert Karel Deuten, Angelo Novembre, Roberta Redavid, Alexandra Boeva

DESIGN Team Paul de Vroom + Sputnik

8
9

The concept of the façade of this housing complex located in Moscow comes directly from the program and volume study carried out by the client and it is based on a clear and strong idea: six gentle bodies resting on a dynamic, vibrant, and warm city layer.

Due to the Russian rules of insulation, the buildings are oriented in such a way that each façade captures at least two hours of direct sunlight. The particularity of the volume and the strength of this angle led us to develop on three different scales three specific design principles.

On a scale of volume (1:500), the bodies of the top layer bend gently at an angle of 35 degrees and rest on a more irregular and spontaneous city layer. This inconsistency easily relates to the needs of the commercial use of the lowest levels, which gives a warm atmosphere and a cozy vibe to the inner courtyard.

On a façade scale (1:50), the angle is inserted into the cuts of the windows of the top layer, which thus unfold in a vertical and slender attitude, opposed to the massiveness of the city layer. These cuts follow a simple geometry, following the direction of the adjoining façade. For each side of the volumes, a rigid grid divides the façade, to better accommodate the housing floor plan already developed by the client. This way each side of the tower acquires a different “speed” creating different rhythms of shadows not only given by the position of the observer in relation to the direction of the façade, but also by the density of the openings.

On a scale of detail (1: 5), the brick indistinctly follows only the main vertical direction. This way, two types of surfaces are generated: a smooth surface, parallel to the main direction of the project, and a rough one determined by the herringbone arrangement of the brick itself along the oblique direction. This creates a pattern that dresses the bodies of the top layer. To create this texture, a careful study of special bricks with unique measures was carried out.

10
principe scale 1:500 VOLUME principe scale 1:50 FAÇADE principe scale 1:5 DETAIL
11

The building, located in a square between Noordpolderkade and Wenckebachstraat in The Hague, plays a crucial role in the neighborhood with its iconic L-shaped mass. Together volume, apartment type, and façade define the authenticity of the building.

Although very compact, the standard two rooms apartments can easily accommodate people on wheelchairs or with mobility problems. In addition to a large bedroom directly connected to the bathroom and a comfortable living space, they provide other utilities like storage space and outdoor space.

Inside, the corridors to access the apartments become wide enough to contain big voids that vertically connect the various floors and give natural light to the common spaces.

Outside, the solid design of the checkerboard façade with loggia and windows is possible because of the mirrored position of the technical shafts inside the apartment. Furthermore, the material and the rounded corner windows give the building elegance and robustness.

WENCKEBACH

YEAR 2018-currently

PHASES VO, DO, TO, Bestek

TASKS Apartment layout design, plan design, façade design, kozijnstaat, presentation drawings

TEAM Paul de Vroom, Henk Bultstra, Bert Karel Deuten, Nicolette Jongebreur, Oksana Savchuk, Angelo Novembre, Luuk Stoltenborg, Ivan Tam Chi Fung

DESIGN Team Paul de Vroom + Sputnik

12 THE
137
HAGUE - NL HOUSING BLOCK
APARTMENTS
13

Designed for new urban development in Osdorp, our proposal for four new housing blocks is directly related to the history of the location. The area is one of the spots where the post-war reconstruction took place in Amsterdam in the late 50s.

We have thoroughly studied the idioms of the architecture of the AUP (Algemeen Uitbreidingsplan) based on the idea of the garden city with the motto: “Licht, Lucht en Ruimte”. We then grouped some of these idioms or principles on three distinctive levels to propose a new contemporary reinterpretation of the same architectural character.

- Urban level principles: typological clarity, repetitions of the same blocks, optimized orientation, contrast between high and low-rise, and use of L-shaped blocks.

- Façade level principles: honesty about construction and materiality, the rhythm of the façade according to the type of apartment, repetition of apartment type, emphasis on the plinth, and explicit appearance of the circulation system.

- Apartment level principles: connected spaces, large openings, attention to detail, and distinction between daily and night zone.

SUHA C2 + BLDGR

AMSTERDAM - NL

BLOCKS 260 APARTMENTS

YEAR 2019-currently

PHASES Architecten selectie, VO

TASKS Concept, volume study, reference study, plan design, apartment layout design, façade design

TEAM Paul de Vroom, Henk Bultstra, Bert Karel Deuten, Angelo Novembre, Oksana Savchuk, Roberta Redavid, Krystian Woźniak, Anna Maccagli

DESIGN Team Paul de Vroom + Sputnik

14
4 HOUSING
apartement type corridor apartement type galerij
15
verdieping corridor block verdieping galerij block

VOGELBUURT

YEAR 2019-currently

PHASES Architecten selectie, VO, AO

TASKS Concept, reference study, plan design, apartment layout design, façade design, principle details, presentation drawings, garden concept, physical models

TEAM Paul de Vroom, Henk Bultstra, Bert Karel Deuten, Angelo Novembre, Oksana Savchuk, Roberta Redavid, Anna Maccagli

DESIGN Team Paul de Vroom + Sputnik

16
RHOON - NL HOUSING BLOCKS 53 APARTMENTS
3K apartement type galerij 2K apartement type corridor
17

The project is located in Rhoon, in the proximity of a dyke where two different city characters meet: historical single-family houses on one side and long blocks of row houses from the 1960s on the other. To enter into dialogue with this contrast we established a relation of four loose blocks (two gallery blocks and two corridor blocks) open on three sides of the lot area and overlooking a common, open, and internal courtyard. The purpose was to bring back to the location a village character.

For the architectural aspect, we wanted to emphasize the simplicity of the plan and give all the apartments a spacious private outdoor space built entirely outside the thermal envelope. With this intent, a prefabricated reinforced concrete structure surrounds the blocks, sometimes as a private loggia and sometimes as a common circulation space. The shifting of the volumes, the lightness of the façade, and the rotation of the corner column evoke a high sense of elegance and dynamism in the project.

18
19
20
21

VILLA B

PRIVATE HOUSE

YEAR Completion 2022

PHASES VO, DO, WT

TASKS Concept, plan design, façade design, kozijnstaat, presentation drawings

TEAM Paul de Vroom, Henk Bultstra, Bert Karel Deuten, Angelo Novembre, Oksana Savchuk, Roberta Redavid

DESIGN Team Paul de Vroom + Sputnik

22 DE LIER - NL

Inspired by the “case study houses” of American residential architecture of the 50s and 60s, this villa, currently under construction, is the complex synthesis of the taste and needs of private clients.

Aesthetically, the mix of different materials ensures that each element of the house have a protagonist role on its own (the fireplace, the masonry wall, the external canopy, the large openings, the ceiling, the carpet, and the furniture).

Functionally, alongside the usual needs of living, we have found space for some extras: a family / TV room, fitness space, relaxation space, guest house, wine cantine, and drums room.

Together with the client, we developed a house concept in which all those functions can be connected and, at the same time, open to the large internal garden. The result is a free walk from the entrance through all the spaces along

the terrace, towards the guesthouse, directly overlooking the outdoor swimming pool.

23

The concept theme for the block 7B in Houthaven (Amsterdam) was a “bitten strawberry” with a stylistic language inspired by the Amsterdam school in which a firm and massive outer skin were to show a lighter and fresher inner essence.

With this in mind, TPDVSP proposed an open body directly sitting in the water with a wave façade made of curved loggias and a tiny timber structure of 3.6 m. The latter gave us a chance to make a flexible typological choice. The small span of the floor directly influenced the particular three-room apartment type with a double-side orientated living space, which could have given the inhabitants freedom in arranging the interior space as they pleased. With the same idea, we introduced a two-level apartment with the same surface to reduce the number of galleries in the inner courtyard. The flexibility of the proposal lies in the different configurations that the floor plan can have: a different combination (quantity and position) of regular apartments and duplexes could have been possible and chosen together with the client.

YEAR February 2021

PHASE

Architecten selectie

TASKS Reference study, apartment layout design, plan design, façade design, presentation drawings

TEAM Paul de Vroom, Henk Bultstra, Bert Karel Deuten, Angelo Novembre, Roberta Redavid

DESIGN Team Paul de Vroom + Sputnik

24
68
AMSTERDAM - NL HOUSING BLOCK
APARTMENTS AND DUPLEXES
HOUTHAVEN
25

RESIDENCE VYSOCANY

PRAGUE - CZ

HOUSING COMPLEX

150 APARTMENTS AND PARKING GARAGE

YEAR May 2020

PHASE Open competition

TASKS Plan concept design, apartment layout design, presentation drawings

TEAM Paul de Vroom, Henk Bultstra, Bert Karel Deuten, Angelo Novembre, Oksana Savchuk

DESIGN Team Paul de Vroom + Sputnik

26
visualizations by Henk Bultstra and Oksana Savchuk

The project, designed to replace an old U-shape block, is based on the principle of the permeable open structure called “Urban Pixel Blocks”. Along one side of the lot, the land slopes down for 2 meters. By leveling the existing courtyards and the new ones, a new raised podium is create to be reached via urban stairs and ramps. This courtyard podium establishes an urban connection with city life while maintaining a semi-public character.

A great advantage of the Pixel Blocks is that each apartment is located on a corner, with a direct view of the streets and extra openings on the alleys. In the alleys from the 2nd floor up, some bridges connect the different Pixel Blocks. They are part of an internal circulation principle of short corridors, stairways, and elevators designed to reduce the number of vertical access points to six. As we wanted the position of the bridges

to move from floor to floor, after careful study, a library of a limited number of standard apartments was investigate to differentiate the program combinations. Together with the different sizes and heights of the pixel blocks, we were able to generate multiple counting models with the same apartment library.

27

In the new developments of the area of Amsterdam Sloterdijk, the urban planners of the city introduced the term “woonloods” (housing-warehouse) to make a bridge between the current use of the area (business and industry) and the future (housing).

TPDVSP developed a tower concept of 5 stacking “woonloodsen”, each one with its expression. To suit the complexity of the program, each block is tailor-made to fit a different type of apartment (from studios to four rooms apartments).

LYCKA

YEAR Completion 2021

PHASE DO

TASKS Apartment layout design, façade design, presentation drawings

TEAM Paul de Vroom, Henk Bultstra, Bert Karel Deuten, Oksana Savchuk, Luuk Stoltenborg, Angelo Novembre, Anastasiia Ignatova

DESIGN Team Paul de Vroom + Sputnik

28 AMSTERDAM - NL HOUSING BUILDING 118 APARTMENTS

The ambition for this competition was to deliver an innovative design concept for social, circular, energy-efficient, and low-cost housing.

The modular conception of the construction with prefabricated elements in CLT (Cross Laminated Timber) allowed differentiation in typology. Each apartment has a different proportion between the two living zones separated by the technique and bathroom (also standardized). Thus each unit would have been chosen by a specific type of inhabitant according to their needs. In fact, the program had to satisfy an extensive spectrum of target groups, from single students to entire families, from young workers to old couples.

The stacking of prefabricated houses plays a role in the different configurations that the volume can also have. The extra roof given by the shifting of the blocks is a space offered to other types of beings, like plants, insects, and birds.

GISSE STAOPEL HUUSE

YEAR May 2020

PHASE Open competition

TASKS Concept, plan design, apartments layout design, façade design, presentation drawings

TEAM Paul de Vroom, Henk Bultstra, Bert Karel Deuten, Angelo Novembre, Oksana Savchuk

DESIGN Team Paul de Vroom + Sputnik

29
- NL
BLOCK 70 APARTMENTS
NIJMEGEN
HOUSING

The shape of the two towers, located in Moscow, is directly associated with Russian regulations, according to which every apartment needs at least two hours a day of direct sunlight. For this reason, the “saw tooth” plan offers windows in two directions for each unit.

The two towers are different in shape and height but designed with the same identity. The volume, the materiality, and the precision of the detailing are fully inspired by the dutch architecture style of the Amsterdam school.

DUTCH HOUSE

YEAR Completion 2018

TASK Presentation drawings

TEAM Paul de Vroom, Henk Bultstra, Bert Karel Deuten, Rik de Ruiter, Oksana Savchuk, Danuta Kiedrowska, Nicolette Jongebreur

DESIGN Team Paul de Vroom + Sputnik

30
MOSCOW - RU 2 TOWERS 360 APARTMENTS + PARKING GARAGE

SQUARES

YEAR Completion 2018

TASK Presentation drawings

TEAM Paul de Vroom, Henk Bultstra, Bert Karel Deuten, Joseba Verhegge, Danuta Kiedrowska, Isaac Batenburg

DESIGN Team Paul de Vroom + Sputnik

The housing block is located in Prinsenland, East of Rotterdam, where different scales of buildings cohabit. To match the power of some buildings, the idea of TPDVSP for the façade of these row houses is a reinterpretation of a lying tower, with a rigid grid in prefabricated concrete elements. Therefore, during the design process, the future owners of the units were involved to chose the infill of the grid from a catalog of options: in this way dynamicity and lightness were given to the façade.

31
ROTTERDAM - NL HOUSING BLOCK 31 ROW HOUSES

FINAL THESIS

MONOGRAPHIC STUDY ABOUT FRANCESCO D’ERCOLE, ENGINEER FROM THE 30S

COURSE Final Thesis

DISCIPLINES History, drawings, architectural design, survey, reuse

DATE June 2018

UNIVERSITY Polytechnic of Bari - Department of Architecture

PROFESSORS Gabriele Rossi, Domenico Pastore, Anna Bruna Menghini, Gian Paolo Consoli

TEAM Bruno de Sario, Simona Mazzilli, Angelo Novembre , Fabio Murgolo, Federica Vaccaro, Giulia Spadafina

32

(Lecce and the image of the fascist city. The work of Francesco D’Ercole)

The purpose of the study was to investigate the Architecture of Rationalism in Lecce (Italy) during the fascist period (1920 -1940) through Francesco D’Ercole, a leading engineer in the Salento scene. The complete understanding of his buildings became a solid basis for hypothesizing coherent and suitable interventions on buildings of the same period and quality, often not under the protection of architectural constraints and subject to disfigurement and incoherent extensions.

The research began with entire weeks spent in the private archive of D’Ercole, which still exists thanks to subsequent generations, and in the different Archives of the municipality of Lecce. While looking, scanning, and making an inventory of original documents, we were already facing the importance of his name. Afterward, the study of the collected drafts, documents, and personal writings in proximity made possible a coherent reconstruction of the design history of his buildings linked to particular historical events. On the other hand, the presence of manuals, magazines, and newspaper articles of the same period pushed the research to recognize, even on a national scale, the architectural idioms and elements characterizing the epoch.

Together, the archiving, study and re-drawing levels gave us the tools necessary to reconnect with and understand an unknown architect from our region and so an awareness to better act in respect of existing buildings of comparable importance while making new use of them.

33
Lecce e l’immagine della citta’ fascista. L’opera di Francesco D’Ercole

For the laboratory of Re-use led by the french architect Philippe Prost, my interest focused on a building of the 50s with the name “La Mère et L’Enfant” belonging to the Saint-Jacques hospital center in Besançon.

After a careful study of the geometry of the original concrete façade, the value of the building arose, so no intense intervention was needed. The purpose of this intervention was to restore the volumetric unit of the building and transform it into student housing. In particular, in the proposal, we intended to demolish only a posthumous extension, not in coherence with the initial body.

After, a new head block took place where the cut happened in order to create a new vertical circulation core. In the same way, a light steel path was added to connect horizontally and externally the wings of the fabric to give outdoor space to each floor. It embraces the roof terrace of the second floor too, allowing interaction and social activities. The façades of the new additions are a reinterpretation of the original ones by translating the concrete elements into steel ones.

LA MÈRE ET L’ENFANT BESANÇON

- FR

STUDENT HOUSING

COURSE Memoire, contexte et création – intervention contemporaine dans un bati historique

DISCIPLINES

DATE

Restoration, architectural design

February 2016

UNIVERSITY École Nationale Supérieure d’Architecture de ParisBelleville

PROFESSOR Philippe Prost

TEAM Individual work

34
35
36
37

Located in square Béla Bartòk (Paris - XV arrondissement), the project increases the density with the addition of three new thin towers. The selected drawings belong to one of the three towers with apartments and a hotel. The vertical distribution system autonomously serves the hotel, located on the upper floors, and the residences in the lower part. The structural façade in prefabricated concrete elements allows dividing each floor independently to differentiate and mix the program. Beyond this flexibility, according to the logic of “Rings”, the core, the structure, the wet areas, the domestic circulation, and the served spaces are well separated and identified.

BÉLA BARTÒK

PARIS - FR

MULTIFUNCTIONAL TOWERS

COURSE L’habitation en projet, densité, intensité, urbanité

DISCIPLINE Architectural design

DATE June 2016

UNIVERSITY École Nationale Supérieure d’Architecture de ParisBelleville

PROFESSORS Lionel Engrand, Elisabeth Essaïan

TEAM Individual work

38
39

The architectural order, through CAD technology, takes place in a memoir, analyzing the drawings and the texts of some of the most famous treatises in architectural history.

The research “il disegno dell’ordine architettonico - discorso sull’architettura del dettaglio” (“the drawing of architectural order - discourse on the architecture of the detail”) wants to analyze the rules and principles behind the proportion methodology according to some architects from the neoclassical period and focus on the links between the theory and the practice.

The chosen authors and treatises for this studies are:

- Jacopo Barozzi da Vignola, Regola delli Cinque Ordini d’Architectura (1562);

- Andrea Palladio, I quattro libri dell’architettura (1570);

- Vincenzo Scamozzi, L’idea dell’architettura universale (1615);

- Claude Perrault, Ordonnance des cinq espèces de colonnes selon la méthode des ancien (1683);

- Jean-Françoise de Neufforge, Recueil elementaire d’architecture (1757).

The work is divided into three parts:

- The first part analyzes the various issues related to the proportion in the classical order, with the help of diagrams and numerical tables.

- The second part consists of 20 digital drawings, which reproduce the original pages of the treatises and compare the different authors’ proposals on the same scale and with the same mise en page

- The third part relates the built architecture to the drawn one, or rather the existing buildings with the written theory.

On the right are the five drawings inspired by the tables taken from Recueil elementaire d’architecture: Tuscan order, Doric order, Corinthian order, and Composite order. On the next page: Ionic order.

MEMOIRE RESEARCH ABOUT CLASSICAL ORDERS AND THE PRINCIPLES BEHIND THE PROPORTION METHODOLOGY

COURSE Séminaire “Faire de l’histoire »

DISCIPLINES Theory of Architecture, history, drawing

DATE June 2016

UNIVERSITY École Nationale Supérieure d’Architecture de ParisBelleville

PROFESSORS Mark Deming, Francoise Fromonot, Marie-Jeanne Dumont

TEAM Individual work

40
41

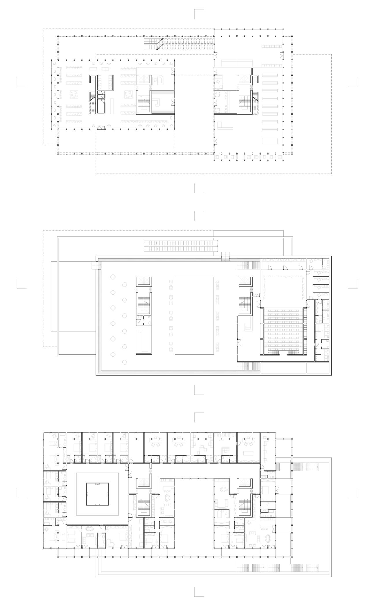
The building, designed as a “City Gate” for the city of Bari near the minor rail station Bari Sud-Est, is created to be multifunctional, complex, and with a compact volume of elementary shapes. The project focuses on typical architectural contrasts like the continuous façade and the grid system, or the supporting and the not-supporting structures.

As for volume and use, three overlapped blocks create the complex rhythm of functions. The first one, anchored directly on the ground, contains commercial spaces, services for the nearby station, access to the underground parking garage, the lobbies of the top block, and the big stairs to the second one.

The latter is then a sort of tray, an open-enclosed garden with a cafe, and serves as outdoor space for the conference hall. The shift of this block allows two terraces, one covered on the street side (east) and one uncovered, overlooking the surrounding from the back (east). The third block, finally, consists of residential units, a hotel, and offices. The three elements connect through a large atrium which digs into their volumetry and naturally ventilates the spaces.

A movement in two directions is also generated between the reticular structural grid and the glossy curtains wall. It shows the double aspect of the façade, one more intimate with private balconies on the southwest, where the structure is external, and one more urban with a fully glazed face for the hotel and commercial spaces on the northeast side.

At that time, the proposal was strongly inspired by my first visits to Rotterdam, from the gigantic double-height “portici” of the buildings along Weena and Kruisplen to particular icons like De Rotterdam or De Doelen.

BARI CITY GATE

BUILDING

COURSE Laboratory of architectural design III

DISCIPLINE Architectural design

DATE July 2015

UNIVERSITY Polytechnic of Bari - Department of Architecture

PROFESSORS Michele Beccu, Marco Orsini

TEAM Individual work

42
BARI - IT
MULTIFUNCTIONAL
fronte longitudinale principale fronte longitudinale secondario

schema compositivo assonometrico

schema compositivo geometrico in pianta

43
piano terra piano terzo piano nono
44
45 sezione longitudinale

The survey reproduces a church in the historical center of Lecce dedicated to Santa Teresa. The building, built in the typical Lecce Baroque style, is rich in neoclassical architectural elements and sculptural bas-reliefs.

The survey was carried out by hand and with a laser system with a cloud of points. The entire work includes multiple floor plans at different levels, elevations of the façades, hypographs, vertical sections, and details on the seven altars. The quantity and the complexity of drawings and the quality achieved were only possible thanks to efficient teamwork.

SANTA TERESA

- IT

CHURCH

COURSE Architectural survey

DISCIPLINE Survey

DATE July 2015

UNIVERSITY Polytechnic of Bari - Department of Architecture

PROFESSORS Gabriele Rossi, Domenico Pastore

TEAM Simona Mazzilli, Angelo Memeo, Roberta Mennea, Angelo Novembre, Isabella Scommegna, Giancarlo Sgaramella, Francesca Sisci, Roberta Storelli

46
LECCE
BAROQUE
ipografia al sommoscapo pianta piano terreno sezione longitudinale particolare altare
47 prospetto frontale

CASA A TORRE OTRANTO - IT PRIVATE HOUSE

The building is a modern interpretation of the medieval tower house. It consists of the overlapping of 5x5 m elementary cells with a fence. The modernity of the project is in the unusual chromatic relationship between the plastered garden wall and the massive vertical stone construction. Additionally, the stairs carved into the rocky soil allow direct contact between the architecture and the natural element of the sea.

One of the tasks of this exam was to present various examples of materials for the floor structure. In these particular excerpts, we see mainly the use of wooden floors and, in the section fragment, concrete ones.

COURSE Laboratory of construction

DISCIPLINE Construction

DATE July 2014

UNIVERSITY Polytechnic of Bari - Department of Architecture

PROFESSORS Vitangelo Ardito, Vincenzo Bagnato

TEAM Angelo Novembre, Giancarlo Sgaramella

48
sezione verticale BB
pianta piano terreno
49 prospetto ovest prospetto nord prospetto est prospetto sud

ANGELO NOVEMBRE

novembreangelo@gmail.com

+31 6 39 71 79 38

ROTTERDAM, 2022

for more infomation about the projects designed with TPDVSP go to www.teampauldevroomsputnik.nl

50

Turn static files into dynamic content formats.

Create a flipbook
Issuu converts static files into: digital portfolios, online yearbooks, online catalogs, digital photo albums and more. Sign up and create your flipbook.
architecture PORTFOLIO angelo novembre 2022 by angelo novembre - Issuu