Libby Vachon's Interior Design Portfolio

Page 1


832-312-1563

libbyvachon2020@gmail.com

Houston, Texas 77042

linkedin/libby-vachon

Skills

● AutoCAD

● Revit

● Enscape

● InDesign

● Adobe Photoshop

● Microsoft Office

● Hand Drafting

● Hand/Digital Rendering

● Procore Certified

● Leadership Skills

● Communication Skills

● Organizational Skills

Education

Texas Tech University

Bachelor of Interior Design

Graduation Date: 11 May2024

August 2020 - May2024

Experience

Abel Design Group - Houston, Texas

Student Intern

May 2023 - June 2023

● Collaborated with junior and senior level designers to develop interior design concepts for corporate office buildings

● Assisted in material selections for commercial and corporate projects

● Attended site visits, punch walks, client meetings, and oversaw the construction process

● Assisted in the redlining process on Bluebeam and Revit, as well as putting together PDFs for various project stages using InDesign

● Conducted a field verification of a corporate office building

Sue Mills Uniform Company - Houston, Texas

Retail Sales Associate

May 2019 - August 2022

● Served as a successful leader, training new employees and achieving store success

● Worked to ensure an attractive and neat sales environment

● Connected with customers and families

● Provided optimal assistance to the General Manager handling a variety of tasks

● Resolved customer disputes effectively while working at the front desk

SENIOR CAPSTONE PROJECT

Designing an Assisted Living Facility

Spring 2024

The design of many Assisted Living Facilities do not facilitate a higher quality of life or provide the best sense of community, this results in many residents expressing feelings of loneliness and depression. By researching ALF’s and examining positive and negative feedback from residents, various factors will be implementedinthedesignofanewAssistedLivingFacility.

Both sides of my grandparents have lived in assisted living facilities for prolonged periods of time. On my dad’s side, they reallyenjoyedtheirtimeintheircommunity.Onmymom’sside, my nana did not. As the older peoples’ quality of life generally decreases, it is hard to see as a family member or friend. As designers, it is our job to provide functional, beautiful, and safe spacesforothers.

Research Question: What design features in an assisted living community can ease loneliness for the aging population?

Research synthesis

● All case studies were examining resident feelings and behaviors who are living in Assisted Living Communities.

● The methods that were used in these studies consisted of interviews, surveys, behavioral observations, and indoor design factor assessments

Design Considerations to Implement

Interior and Exterior Factors

Create a home-like feeling rather than facility → Various artificial light levels where necessary, provide lots of natural light, familiarity in common spaces, wayfinding, encourage socialization, balance between public and private, proper material and finish selections

ADA and Safety Factors

Design of structures and services to compensate for functional or cognitive impairment → Increased space for easy movement, automatic doors, flat walkable surfaces, facility design enables residents to feel independent

interview synthesis

Each interviewee plays a pivotal role in the wayanAssisted Living Facility operates. During these interviews I was able to understand howeach individualviews these communities, and what theybelieve could better day-to-daylife inAssisted Living Facilities.

● Activities drive socialization

● Spaces must be inclusive foreveryone and have enough space

● Incorporate gathering space forvisitors indoors and outdoors

● Considerhowlowercognitive abilitycan increase loneliness

● Largerapartments forcouples

● Restaurant style dining

● Updated materials

● Natural light is extremelyimportant

● EasyOutdoorAccessibility

● Largerfacilities can be overwhelming

● Residents prefercozier, home-like features

Current site - future location of facility

Site justification

After researching similar Assisted Living Facilities during my Research Summaries and Comparative Case Study, I knew I wanted to choose a location that was somewhere tropical, likely in Florida. Florida has good weather almost all year round, there is lots of natural vegetation and water features, and the cost living is below average. Jupiter, Florida specifically has a tropical small town feel, and is rich in beauty and history. This is where I chose to develop my Capstone Project.

The site I chose is 20 acres located off SE Mack Dairy Rd in Jupiter. The site already had many trees, lakes, and a golf course nearby which made me gravitate towards it, knowing I could remove some of the vegetation but still have great views for the residents. Florida is a great place to retire, and Jupiter a fantastic place to develop myAssisted Living Community.

Project statement

This newassisted living facilitydesign located in Jupiter, Florida focuses on providing the best sense of community, amenities, and personal care to ease the feeling of loneliness that is common in the aging population. Residents will have the opportunity to feel independent regardless of impairments using wayfinding techniques, human-centered design, accessibility features, and social encouragement through activities.The37,000squarefootfacilityfeaturesdiningrooms, a fitness center, a game room, a theater, a library, and a fully equipped wellness center with doctors and nurses on site providing residents with any physical or mental help they may need. Residents can also choose between a one or two bedroom apartment that will suit all of their day-to-day living necessities.

Concept imagery

Floor Plan

EVIDENCE-BASED DESIGN KEY

A: Implemented natural light when possible to improve mental health among elderly. Can boost mood and help maintain circadian rhythm.

B: Wayfinding techniques such as different wall materials and lighting used in large spaces such as lobby and corridors to help ease resident confidence and promote independence.

C: Design of structures and services to compensate for functional or cognitive impairment → Increased space for easy movement, automatic doors, flat walkable surfaces, facility design enables residents to feel independent

D: Provided ample and various seating arrangements where long stretches of walking may happen to reduce fatigue in residents.

E: Various amenities offered to increase socialization in facility

F: Easy outdoor accessibility encouraging residents to be active

G: 2-4 exits on every floor for fire safety and code standards

H: 75 foot maximum travel distance to exits each way

I: ADA accessibility in every space necessary including 60” corridor widths, compliant sinks and countertops, roll-in showers, grab bars, and 5’ minimum turning radius in restrooms

J: Materials matching geographic location and promoting tranquility through neutral and warm colors in residence apartments

K: No-step main entry with covered roof for easy accessibility

L: Flooring materials are slip-resistant and easy to clean

Exterior elevation

Interior rendering Lobby

Interior rendering

Interior rendering

LIBRARY

Interior rendering RESIDENT LIVING ROOM

Interior rendering RESIDENT BATHROOM

02

The fritz resort

Boutique Hotel Spring 2023

The Fritz Resort in Fredericksburg is a boutique hotel resort tailored to fit the needs of young adults. There are 3 floor plan variations designed to meet the needs of different sized groups, a wine bar/lounge, and an outdoorgathering space.

When entering the The Fritz Resort the guests will be greeted with pine wood flooring and large scale wood beams emphasizing vertical aspects of the hotel. Avariety of offered amenities such as cape-cod style cottages, a restaurant and bar, full-scale wine-tasting, and outdoor activities will be available to all guests in the hotel. A combination of classic neutral colors on the interior mixed with the appealing exterior views of the Texas Hill Country creates a relaxing andwelcomingenvironmentfortheguests.

EXTERIOR COTTAGE

CONCEPT IMAGERY

“MARTHA’S

VINEYARD” TWO BEDROOM COTTAGE - NTS

“MARTHA’S VINEYARD” KITCHENETTE & LIVING ROOM

WINE BAR & LOUNGE - NTS

WINE BAR & LOUNGE

The Base in Brickell

Co-Working Space Fall 2023

The Base in Brickell was a shared Co-Working space tailored to many work styles and available 24/7 to occupants for a variety of business functions. The space was to be secure, offer flexibility to users and provide access to daylight and outside views. All public spaces in The Base used universal design approaches and implemented all required codes. A varietyof amenities were provided within the workspace.

The Base in Brickell was designed to showcase the outdoor scenery and exciting aesthetic that Miami is known for, by using clean and sleek furniture and architecture. Natural light and smooth lines throughout the space created a luxurious but also comfortable feeling, to accommodate everyone’s desired office environment.

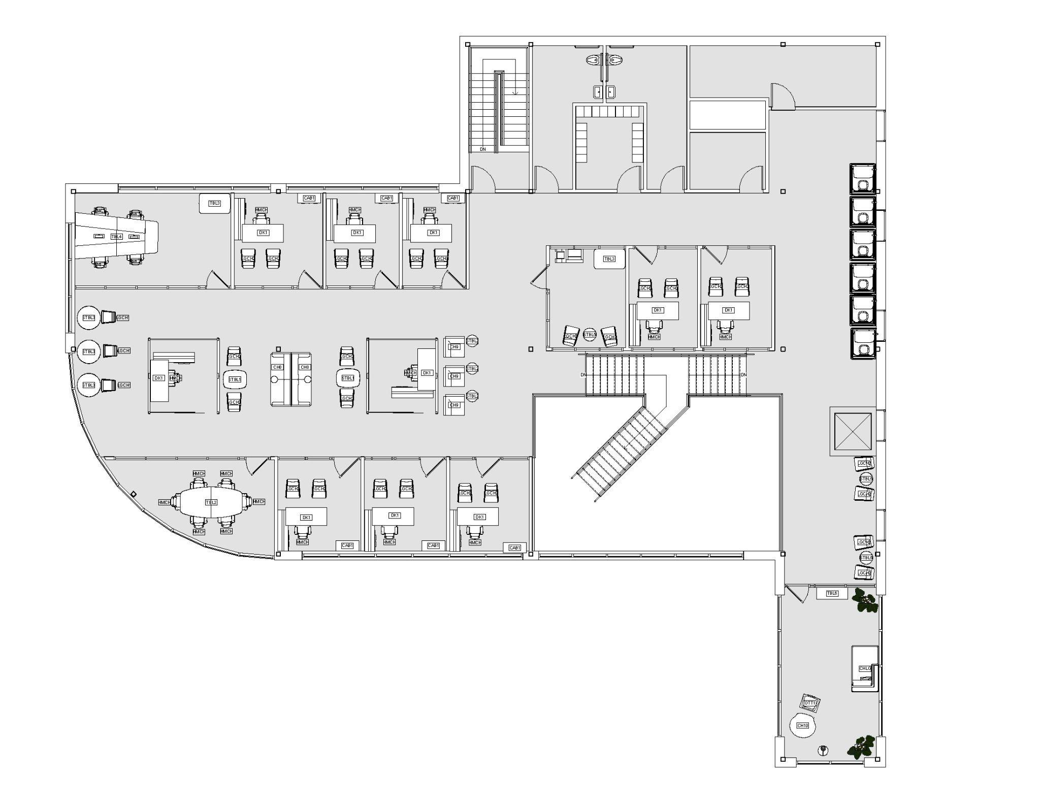
A - Vestibule

B - Lobby/Reception

C - Open Collaboration Space

D - Level 1 Business Center

E - Private Conference Rooms

F - Classroom

G - Janitor Closet

H - Women’s Restroom

I - Men’s Restroom

J - Gym

K - Outdoor Leisure Space

L - Kitchen

Level 2 Furniture Floor plan - NTS

A - Open Leisure Space

B - Private Offices

C - Conference Rooms

D - Level 2 Business Center

E - Lockers

F - Private Restrooms

G - Mother’s Room

Nooks
Open Leisure Space

Cross Section

Longitudinal Section

Base: “have as the foundation for (something); use as a point from which (something) can develop.”

Washington D.C. Residence for the japanese ambassador to the united states

Spring 2022

The Project - The goal of the Washington D.C. Ambassador Residence project was to completely redesign a 4 million dollar brownstone home, recently purchased by Koji Tomita and hiswife, NorikoTomita. Integrating Japanese culture throughout the home in the furniture, accessories, and finishes, created the perfect space for the Japanese Ambassador to the United States, and his family. In order to make this transitional style home easily accessible in the future, aging-in-place accommodations were also taken into consideration.The couple loves to entertain and cook, therefore a large kitchen and multiple gathering spaces were designed on the bottom two floors. Koji Tomita is an author who has recently taken up golf, so a quiet home office and exercise room, featuring a golf simulator, was incorporated on the lowest level. The third level of the home designwas dedicated to bedrooms fortheirchildren, two girls and a boy.

The Concept - Nature is highly valued in the Japanese culture. The Japanese culture is known to have one of the most intimate and harmonious relationships with nature out ofanyotherculture, and thiswas taken into considerationwhen designing the home. To create a harmonious feeling, a nature inspired color palette was used to follow the same mood throughout the whole house. Low furniture with smooth straight lines represented a minimalistic, but earthy feeling in the home. Neutrals, light greens, and light blues were implemented in order to remind the client of the nature elements in Japanese culture, including the Japanese Sea, the earth, andvegetation.

When designing this home for the Japanese Ambassador, I decided it would be beneficial for each floor of the home to reach a specific occupancy goal.

The First Floor was designed with a majority of the public spaces, for when Mr. Tomita has clients over or wants to host.

The Second Floor was designed to have a more intimate feel, including all of the typical family gathering spaces.

The Third Floor was designed to have the most private spaces in the home, such as bedrooms and private bathrooms.

Master Closet Concept Sketches

Oak Flooring
Stone Fireplace Wall Paint

MARFA CASITA PROJECT

LocatedinMarfa,Texas

Spring2021

The Project - The purpose of the Marfa Casita project was to create a modern and simplistic space that reflected the clients’ love for thoughtful design and the fine arts. The clients’ were redesigning their 1920’s farmhouse and had no budget. The couple was moving from Austin, TX to the small town of Marfa to slow down and seek inspiration from the town’s culture and landscape. Client 1 was a freelance writer, who works from home and enjoys cooking gourmet meals for friends and family. Client 2 was a full-time painter, who specialized in abstract paintings. Client 2 worked at a studio away from home, but loved to showcase their favorite works of art at home. The renovated home was to have two bedrooms and one bath, and will accommodate the clients’ love of entertaining friends and cooking. Within their home, the clients’ wanted the capabilities to entertain large parties, enjoy the natural surroundings, and draw creative inspiration. The clients’ wanted to embrace Marfa's new take on modernistic and minimal design with their love for high-end style. The Marfa Casita renovation transformed the clients’ home into a new space that serves the couple and theirguestswell.

The Concept - The Davis Mountains, Chisos Mountains, and Chinati Mountains are very prominent scenes in Marfa, Texas. The architectural color scheme would complement the beautiful mountains with light warm colors like tans and creams displayed throughout the home. Clean lines within all of the architecture created a resemblance to the rocks in the mountains, along with light and dark contrast. The home's modern charm and light open space would be perfect for entertainment.

KITCHEN SKETCH NORTH ELEVATION

KITCHEN SKETCH WEST ELEVATION

MASTER BEDROOM ELEVATION

GUEST ROOM

KITCHEN

MASTER B.R.

MASTER CLOSET

MASTER BEDROOM

LIVING ROOM

DINING ROOM OFFICE

Turn static files into dynamic content formats.

Create a flipbook
Issuu converts static files into: digital portfolios, online yearbooks, online catalogs, digital photo albums and more. Sign up and create your flipbook.