PORTFOLIO ARCHITECTURE

![]()
PORTFOLIO ARCHITECTURE

B. INTERIOR ARCHITECTURE W. FIRST CLASS HONOURS
B. ARCHITECTURAL STUDIES W. DISTINCTION
STUDENT - M. ARCHITECTURE
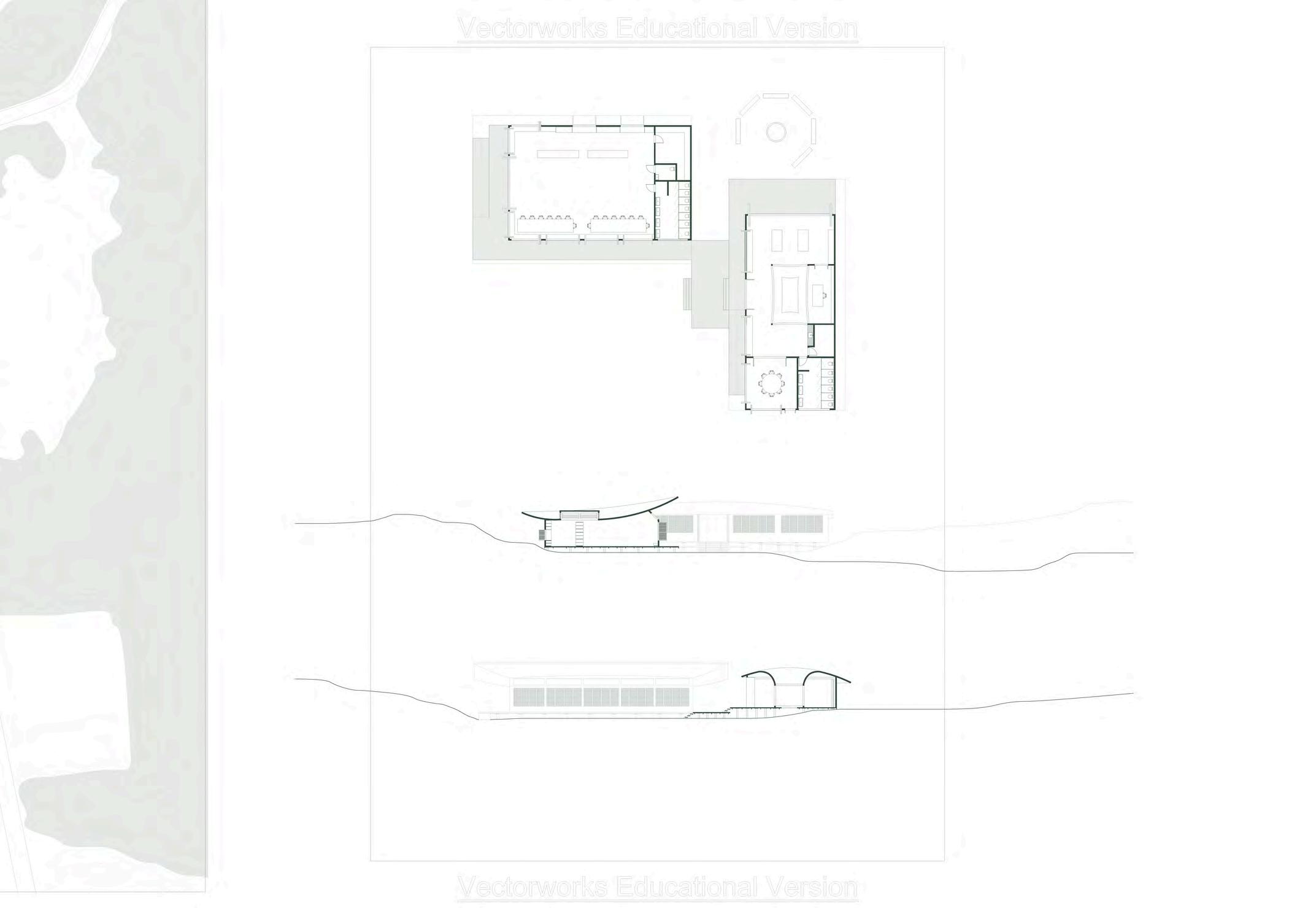
This architectural proposal envisions a transformative facility for IndigiGrow, a 100% Aboriginal-owned, not-for-profit native plant nursery dedicated to regenerating the Eastern Suburbs Banksia Scrub within the Kamay Botany Bay NationalPark.
Central to this design is the incorporation of Indigenous design principles and the concept of "enoughness," emphasising minimal environmental impact through a reduced footprint and minimised material waste. The proposal features two modular buildings linked by a boardwalk, designed to be relocated once the landscape is regenerated in the area. A brick aggregate fire pit made from an old colonial building, along with sandstone seating which speaks to the land on which it sits, are arranged in a circle and intend to be the only ‘permanent’ structures within the site, serving as legacy elements for community gatherings, honouringthesite’shistoryandculturalsignificance.
SECTIONALMODELSHOWCASINGBUILDING1ANDITSINTERACTIONWITHEXISTINGNATURALLANDSCAPE+SITECONTOURS


GATHERINGSPACEOUTSIDEOFBUILDING1-INDOORINTERPRETIVECENTER


KEY DESIGN PRINCIPLES
HONOURINGANCESTRALWISDOM
Acknowledging and respecting the principles of Indigenous Storywork. Embracing values such as respect, responsibility, reciprocity, reverence, holism, interrelatedness, and synergy as foundational elements. This is done through not overdesigning, allowing for feet on country,anddesigningstorytellingspaces.
CULTIVATINGRECIPROCALRELATIONSHIPS
Embedding within the design ethos a commitment to reciprocity and care, recognising the interconnectedness between humans, landscapes, and all living beings, fostering relationships that nurture rather than exploit. This is done through practicing the concept of ‘enoughness’, de-centering humans, andfosteringcommunitygathering.

EMBRACINGSHIMMERINGCONNECTIONS
Infusing the design with the concept of "shimmer," drawing inspiration from Indigenous perspectives on the vibrant interconnectedness of life, seeking encounters and transformations that celebrate diversity and vitality while mitigating the impacts of human-centric actions on the biosphere. This is done through designing out barriers, minimising solid walls and blurring the boundaries between internal and external, public and private, human and nonhumanspaces.








COMMUNITY CENTER (2023) ARCHITECTURE
Thebriefwastodesignacommunitycentreandpublicspace, locatedinAlburyonthebanksoftheMurrayRiver. Considerationhadtobepaidtotheplacementofthebuildings onaverylargesitewithflood-proneandfire-proneareas.
Thisarchitecturaldesignconceptenvisionsacommunitycenter thatservesasalivingbridgebetweenpeopleandtheir environment.
Thestrategiesfocusonrelationshipsbetweennature,people, andarchitecture,investigatingtheseamlesstransitionsbetween theserealms.
TheharmonyofvisualandphysicalconnectionstotheMurray Rivernurtureface-to-faceinteractions,communityvalues,and gatheringsthatfosteraprofoundsenseoftogetherness.
DESIGNWITHREFERENCETOTHE NARRATIVEOFTHERIVERANDEXISTING NATURALLANDSCAPE

GREENTREES-NATIVE
REDTREES-INTRODUCED
BROWNPATH-WALKINGTRAIL
GREENPATH-ROAD




SITE PLAN
ARTS WING - BUILDING 2
PERFORMANCE WING - BUILDING 1 MAINWINGOFTHECOMMUNITYCENTER-THE LARGESTBUILDINGWITHTHEMOSTDIRECT ACCESSFROMTHEMAINROAD.INCLUDESTHE VISITORSCENTER,COMMUNITYHALLS,CAFE, ANDOTHERCOMMUNITYFACILITIES.
SECONDARYWINGOFTHECOMMUNITYCENTER.HOUSESTHE EDUCATIONCENTERATTHEFRONTOFTHEBUILDING,EASILY ACCESSIBLEFROMTHEMAINROAD.HASANOUTDOOR SEATINGAREATOACTASABUFFERBETWEENTHE
CHILDCARECENTERANDTHEARTSFACILITY,ACOMMUNITY HALLCONNECTEDTOTHEGALLERYSPACEFORCRAFTS.
CAPITALISINGONLOCAL KNOWLEDGEANDTRADITIONS THROUGHVERNACULAR ARCHITECTURE
ALLOWTHEORIENTATION OFBUILDINGTOHERO THELANDSCAPE UTILISE

CANOE STORAGE ACCESSTOTHERIVERTHROUGHTHEEXISTING BOATRAMP.INCLUDESCANOESTORAGE, RESTROOMSANDCHANGINGROOMS,ASWELL ASASMALLMEDICALROOM.HASDIRECT ACCESSTOTHEMAINROADFORAMBULANCE ACCESS.


PARKING PARKINGSPACESCLOSETOTHE FACILITYANDTRAVELLINGTOWARDS THEMAINROAD.WIDEENOUGHTO ALLOWFORBUSES,ANDHASAMPLE SPACEFORBIKES.




DIVISION INTO TWO WINGS
Twoadjacentsmallerbuildingsratherthan onelargebuildingforadivisionoffunction &easiercirculationpathstobedesigned aroundthem.
Smallerandsinglestoreybuildingsprovideda softertouchtothelandscape&amore invitingandhumblecommunitycenter.
SHELTERED SPACES
Thecreationofexternalgatheringspacesintangibly definedbythesheltersofitsadjoiningbuildings allowsforsmallerpartsoftheparktobecome communalgatheringareas






ANGLES AND CURVES
Angularbuildingsincorporatingsoftcurves intocertainaspectsofthedesignprovided formswhichcouldfloweasilywiththe landscapeandsoftlyguidevisitorsfurther intothespacewhilestillprovidingfunctional interiors.
DIRECTION OF FLOW
Orientationofthebuildingsfunnelsvisitors intoacentralcommunalareaandeases themintothelargescaleexperienceofthe park.
STAGGERED ORIENTATION
Staggeredorientationcreatesavisual hierarchyandclearerpathofentryfor visitors. BUILDING SECTION













This project brief looks at designing a 25-apartment building in Surry Hills, Sydney, that incorporates the concept of porosity at different scales while adhering to specific constructionguidelinesandexploringthepossibilitiesoftimberframestructuralsystems.
The proposal aims to retain the existing building on site through a comprehensive Structural Assessment, prioritising material reuse by preserving key elements like brickwork, columns, and concrete slabs, thereby honouring the building's historical significance while promoting sustainability. The functional adaptation will involve redesigning the internal layout to create modern apartments, complemented by two new dwellings that will "hang lightly" alongside the existing building, ensuring a harmonious massing and scale, thoughtful materiality that highlights the contrast between old and new,andenhancedporositythatfostersconnectivityandnaturallight.

KEY ADDITIONS TO THE BRIEF
ADAPTIVEREUSE
Wepropose retainingtheexistingbuilding atourSurryHillssiteforthenew25apartment development in the pursuit of sustainable development. Adaptive reuse, as an integral part of sustainable urban development, aims to minimise demolition waste and reduce the carbon footprint associated with new construction. This approach is particularly pertinent in urban settings like Surry Hills, where existing structures, such as old factories, contribute to the historic fabric and architectural identityoftheneighbourhood.

Retaining the original building also seeks to design with respect of Indigenous values and philosophies, particularly with the idea of “enoughness”. Adopting "enoughness" in architectural practice means designing with restraint and avoiding overdesign.
SOCIALHOUSING
We propose adopting a "unit-by-unit integration" approach to incorporate mixed tenurehousing,blendingsocialandprivatehousingunitswithinthesamebuildings. ThismodeladdressesNSW's pressingsocialhousingdemand bymaximisingland useefficiencyandleveragingprivatesectorinvestment.
Unit-by-unit integration offers financial sustainability by generating revenue from privateunitsalestofundnewsocialhousing,avoidingadditionaltaxpayerburden.It aimstocreateinclusivecommunitiesthatreducestigmaandpromotecohesion.


Reducing tenant parking and integrating car share programs within an apartment building near a central train station, light rail services, and bus services aims to discouragecarownership,providingaccesstoavehiclewhenrequired.TheCityof Sydneyrecognisestheenvironmentalbenefitsofcarsharing,statingthat carshare users typically avoid or reduce car ownership, resulting in fewer cars on city streets,reducingcompetitionforparkingandvehicleemissions.
This strategy will enable the community to use on-street parking spaces more efficiently, reduce vehicle traffic and greenhouse emissions, support the local economy, increase social inclusion, and increase health as people walk and cycle more.













RESERVOIRSTREET






RETAINEXISTINGBUILDING ADDADDITIONALLIFTCORE+FIRESTAIRS



SUBDIVIDEINTOAPARTMENTS CUTLIGHTWELLS+CARVEINTOITHEBUILDINGFORM

INTEGRATEBALCONIES EXTENDSTRUCTUREFROMTHEBUILDING


BUILDADDITIONALBUILDINGSTOHANGOFFOF EXISTINGSTRUCTURE COVERINLIGHTWEIGHTMESHTOLIGHTEN APPEARANCE














SHOEIYOHADAPTIVEREUSEPROJECT(2023) KYUSHUUNIVERSITYXUNSW
(ThiswasacollaborativeprojectbetweenstudentsfromUNSWandKyushu University.Myrolewastodesignanddraftthefloorplanswithinputfromfellow groupmembers,aswellasdigitallybuild,renderandeditthe3Dvisualisationsofthe spaceforapresentationtotheMinamiasostakeholders&council.)
The brief was to repurpose the iconic Music Atelier designed by Japanese Architect Shoei Yoh in the mountain town of Minamiaso in 1986. The local council aimed to preserve the existing building and highlight its iconic truss structure, while also identifying a new purpose for it to prevent it from remaining vacant. Research found that as the population in the regional town continued to decrease in numbers and age, council hoped to grow the population of young people migrating to the area.
To aid this issue, this proposal seeks to convert the music atelier into a migrant housing trial scheme, in which families across Japan are invited to experience the space and the village before moving. This design has tread lightly upon the existing building, making minimal changes to ensure the echoes of history remain intact. This space is not just a home for living but a vessel for preserving the essence of its original design.
DESIGN INTENT

遺産
ShoeiYoh の視覚的言 語とこの場所の遺産を 維持する
HERITAGE MaintainingShoei Yoh‘svisuallanguage andheritageofthesite
繋がり 自然との 繋がりを育む

PROPOSEDLIVING/DININGAREA

CONNECTION Fosteraconnectionto thenaturallandscape
PROPOSEDLIVING/DININGAREA-LIGHTINGSTRATEGY
適応性 地元の⼈々の変化する ニーズに適応できる デザインを作成する
ADAPTABILITY Createanadaptable designwhichfitsthe communitieschanging needs
教育 価値ある建築の重要性 について地元の人々に 知識を広める
EDUCATION Spreadknowledgeto thelocalcommunityof thesitessignificance

DESIGN STRATEGIES
MAINTAININGTHEICONOGRAPHYOFTHESITE bycreatingadesign whichcouldberemovedforfutureadaptations&returnthebuildingtoits originalform

RESPECTINGTHEHERITAGE byshowcasingShoeiYohsiconictruss structureandrepurposingitasaasalibrary,alivingarchiveofknowledge andhistory.
CONNECTINGTOTHELANDSCAPE throughfloortoceilingwindow planestobringtheoutsidelandscapetotheinteriors.
SLIDINGSHOJISCREEN allowfortheversatilityofspace,creating intimategatheringsorexpansivecelebrations.
ADAPTABLELIVING BEDROOM


The brief was to repurpose the White Bay Power Station in Rozelle into a vibrant and connective community center. A restaurant was placed within the interiors of the historic ‘coal handling shed’, a building which is currently Heritage Listed in NSW. All of the existing components of the shed which could be salvaged were preserved and showcased as part of the design, and minimal changes were made tothestructureofthebuildingtoallowittobeadaptedagaininfutureifneeded.
Acacia is proposed to be a fine dining restaurant which aims to share and rediscover native Australian culinary ingredients in a contemporary Australian setting and an environmentally conscious way. The restaurant is connected to the Flora Plantation, which nurtures native vegetation and promotes the planting and regrowth of native flora lost due to settlement and industrialisation. This food sourcing allows the menu to be seasonal and deeply connected to country and place.



Theplastertexturedwallsarescatteredwithcanvasesofartworksmadebylocalindigenousartists,with therendersshowingthebeautifulworksofKonstantina,aproudGadigalwoman.
WattleSeedtreesarebroughttotheinteriorinlargeearthpots,bringingthecolourandscentofthisiconic nativeAustralianfloratothediningexperience,formingaclearsenseofplace.YouarediningonGadigal land.
Theexperienceisnolongertomerely‘dine’,butrathertoengagewiththeworksoflocalartists,immerse yourselfinahistoricalsite,cometogetherwithmembersofthecommunity,andsharestoriesaroundafire.









