Interior Design Portfolio

Page 1

Interior Design Portfolio

Bellevue

College

Liandra Sankalis

Retail Project | Studio 3

Project Objective

Design a two level commercial retail space for the designated client which will include but will not be limited to needs for product sales area and a repairfabrication area

Concept | Dynamic Motion

Drawing inspiration through the brand’s own bicycle designs, and how they express an energetic flow which is synthesized by the racer. The bicycle is always moving forward but contains a rhythmic motion through stable radial geometry that contrasts dynamic lineal elements. A balance is brought through the juxtaposition of symmetry and asymmetry.

In 1947 the company was named after and founded by professional cyclist Cino Cinelli. He used his own experience with mechanical failures while cycling to create new technologies and design better components for bicycles, striving for durability. One of his most iconic models is the Supercorsa, which is the longest bike still in production today. The company was acquired in 1978 by the founder of Columbus Tubing, Antonio Colombo. The current and historically significant logo was created by architect Italo Lupi; not only is it one of the most imitated of its kind, but it was also the first to deviate from the heraldic symbol. In 1991, their Laser Evoluzione model became an award winner for its aerodynamic design. They continue to collaborate with artists to create new merch. Not only does the brand represent innovation and movement toward the future, it values reliability and commemoration of the past. Cinelli achieves modern performance combined with a sleek and classic aesthetic.

Brand | Cinelli Bicycles

Concept | Dynamic Motion

Study Model 1 Study Model 2
Study Model 3 Study Model 4 Brand | Cinelli Bicycles

Concept | Dynamic Motion

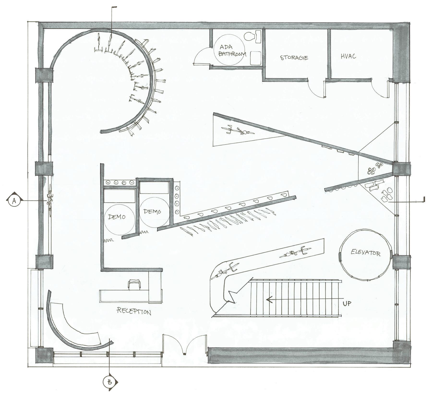
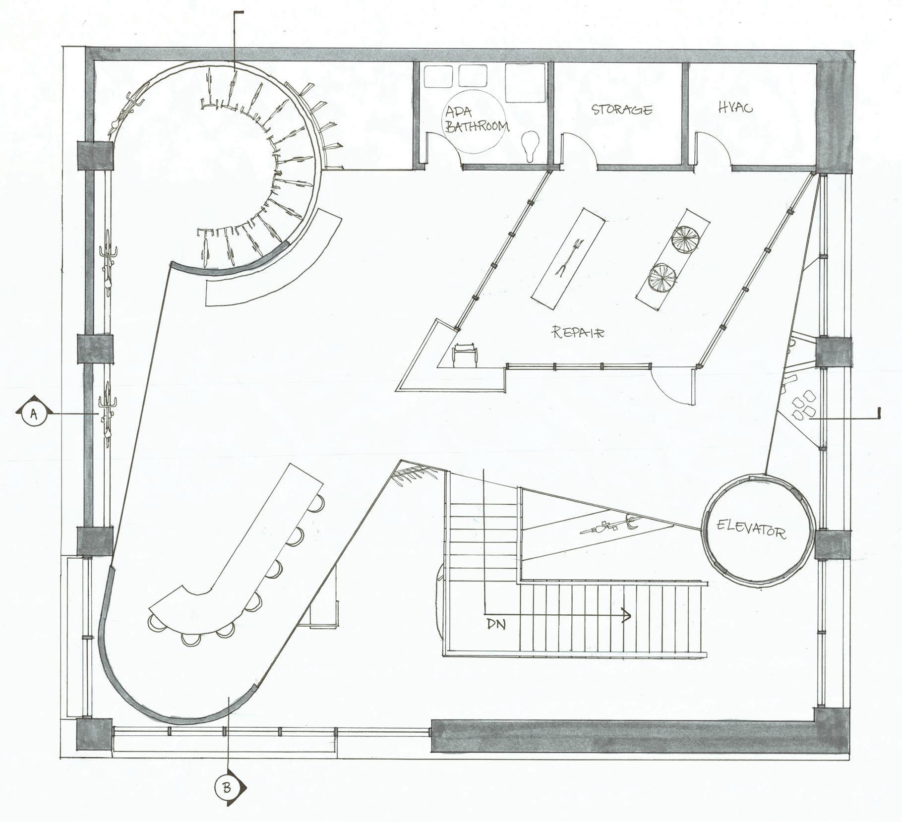
2nd Level Floor Plan 1st Level Floor Plan Section B Section A
Brand | Cinelli Bicycles Oberhead Views
Watercolor Renderings
Brand | Cinelli Bicycles Concept | Dynamic Motion
Watercolor Renderings

Turn static files into dynamic content formats.

Create a flipbook
Issuu converts static files into: digital portfolios, online yearbooks, online catalogs, digital photo albums and more. Sign up and create your flipbook.
Interior Design Portfolio by Liandra Tippett - Issuu