

LUZ HELENA MURILLO MACIAS
PORTAFOLIO ARQUITECTURA
CURRICULUM VITAE
Perfil profesional
Educación
Cursos | Habilidades
Experiencia laboral
VIVIENDA CAMPESTRE - REVIT
Plantas Arquitectónicas
Secciones y alzados
Red hidrosanitaria
CAV GRAMALOTE - BIM
Formulación del BEP
Integración de especialidades
Hallazgo de interferencias
Coordinación del equipo de trabajo
CONTENIDO
PORTAFOLIO
ARQUITECTURA - BIM
LUZ HELENA MURILLO MACIAS

Desde el entendimiento del impacto que genera la aplicación de la Metodología BIM en un proyecto y acorde a la afinidad con dicha metodología durante la experiencia laboral he despertado un gran interés tanto por aplicarla en proyectos personales como por continuar mi desempeño laboral desde tal conocimiento adquirido y continuar consolidándolo.
A continuación un breve paso por mi trabajo con Revit y mi aporte al proceso BIM de un proyecto.




CURRICULUM VITAE
Perfil profesional
Educación
Cursos | Habilidades
Experiencia Laboral

Septiembre, 1997
Medellín
Arquitecta de la Institución Universitaria Colegio Mayor de Antioquia, con conocimientos adquiridos y experiencia en: Diseño arquitectónico de vivienda. Levantamiento arquitectónico y actualización de planimetría técnica. Elaboración de renders o imágenes 3D. Verificación técnica y patológica de infraestructuras. Modelación e integración BIM de proyectos. Amplio manejo de software de diseño arquitectónico: AutoCAD 2D Y Revit. Persona organizada y objetiva con orientación al detalle y capacidad de trabajo con equipos multidisciplinares.
Adaptabilidad, enfoque al detalle, predisposición para el aprendizaje continuo
LUZ HELENA MURILLO MACIAS
Ofimáticas
AutoCAD 2D
Revit
Navisworks
EDUCACIÓN
Arquitecta
I. U. Colegio Mayor de Antioquia
Febrero 2015 - Agosto 2020
Bachiller académico
I. E. Colegio Arenys de Mar
Enero 2009 - Noviembre 2014
CURSOS / HABILIDADES
Infoarquitectura de Interiores
Unreal Engine 5
Domestika
Febrero 2023 – Actualmente
Diplomado en Licenciamiento y Aplicación de Norma Urbanística
Universidad del Rosario - CPNAA
Febrero 2021 – Abril 2021
Revit Básico
Servicio Nacional de Aprendizaje - SENA
Agosto 2019 – Septiembre 2019
Photoshop
Illustrator
SketchUp
Lumion
Unreal Engine
EXPERIENCIA LABORAL
ESTRUCTURAR SAS | Arquitecta
Abril 2023 - Actualidad| Medellín
• Diseñar y representar gráficamente proyectos, generando la información necesaria para su construcción.
• Realizar modelos arquitectónicos y de sitio siguiendo los parámetros indicados por el protocolo de modelado de la compañía.
• Gestionar los procesos de contratación de los diseñadores, coordinar los diseños y la entrega oportuna de los mismos.
• Integrar y detectar las colisiones entre las diferentes especialidades que integran el proyecto
JINCO SAS | Arquitecta
Octubre 2021 - Enero 2023 | Medellín - Bogotá
•Diseño arquitectónico
•Actualización de planimetría, dibujo de detalles arquitectónicos y elaboración de imágenes 3D.
•Verificación técnica de infraestructuras y recibo de zonas comunes
•Integración y detección de colisiones en la coordinación BIM del proyecto Centro Veterinario Universidad CES - Gramalote
Ingeplus SAS Ampliación Vía El Escobero| Arquitecta
Septiembre. 2020 - Noviembre 2020 | Envigado
• Verificación del estado actual de las edificaciones próximas al área de intervención de la obra, para la realización del acta de apertura correspondiente a cada inmueble.
Alcaldía de Medellín Programa Buen Comienzo | Practicante de Arquitectura
Febrero 2020 - Junio 2020 | Medellín
• Asistencias técnicas y verificación del estado de las infraestructuras de los jardines y centros infantiles, habilitación de nuevas sedes para centros infantiles.


co.linkedin.com/in/luz-helena-murillo-macias

VIVIENDA CAMPESTRE
Cocorná, Antioquia
Surge del concepto de integración, unión y compartir familiar
Un lugar para el recreo y el descanso que da prioridad a los espacios comunes


Imagen exterior Revit | Lumion | Photoshop

VIVIENDA CAMPESTRE
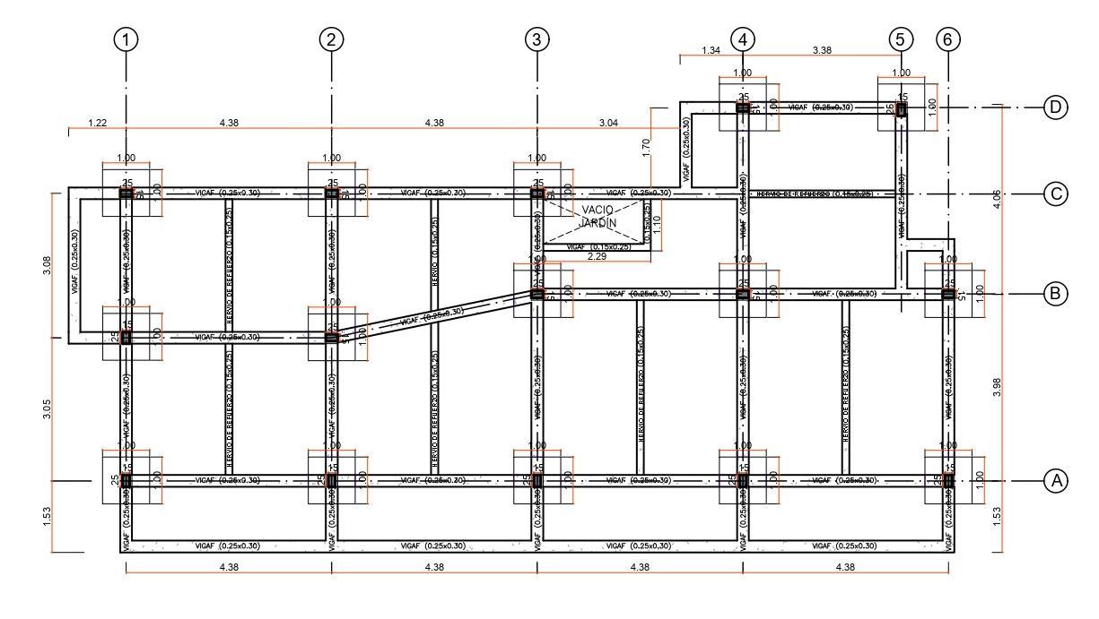
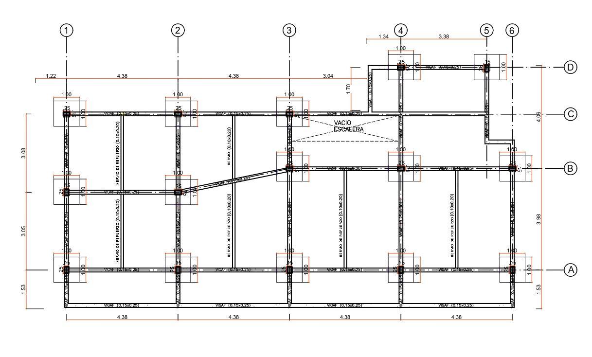
Plantas Arquitectónicas
Revit









ISOMÉTRICO ESTRUCTURA
Revit
1 : 200


1 : 200
Planta Estructura N +2.90
Planta Estructura N +0.00

ISOMÉTRICO RED DE GAS
Revit

Planta Red de Gas N +2.70 1 : 200

ISOMÉTRICO RED DE ABASTOS Revit
1 : 200

1 : 200
Planta Abastos N 0.00
Planta Abastos N +2.90

ISOMÉTRICO RED DE DESAGÜES
Planta Desagüe N 0.00
1 : 200

Planta Desagüe N +2.90
1 : 200

ISOMÉTRICO AIRE ACONDICIONADO



“Construir dos veces” Implementando adecuadamente la gestión de la información se logra prever importantes conflictos que impactaran contundentemente el proceso constructivo


CAV GRAMALOTE
San Roque, Antioquia


Imagen exterior Revit | Lumion | Photoshop
INFORMACIÓN DEL PROYECTO
CAV GRAMALOTE CONDISEÑO - DISEÑADORES

HABILIDADES ADQUIRIDAS
PLAN DE EJECUCIÓN BIM
Planteamiento de las directrices necesarias para el desarrollo BIM del proyecto CAV GRAMALOTE

HABILIDADES ADQUIRIDAS
GESTIÓN DE LA INFORMACIÓN
Administración y actualización de los archivos generados por cada especialidad

INFORMES DE COLISIONES
Hallazgo de interferencias entre las diferentes especialidades que integran el proyecto


MODELACIÓN 3D
Red eléctrica por cada Módulo CAV GRAMALOTE

“Gestión de la Información”
Un equipo coordinado en pro de garantizar un proyecto integral con un funcionamiento optimo





