Portafolio Arquitecta Modeladora BIM

Page 1

LUZ HELENA MURILLO MACIAS PORTAFOLIO ARQUITECTURA

CURRICULUM VITAE

Perfil profesional

Educación

Cursos | Habilidades

Experiencia laboral

VIVIENDA CAMPESTRE - REVIT

Plantas Arquitectónicas

Secciones y alzados Red hidrosanitaria

CAV GRAMALOTE - BIM

Formulación del BEP

Integración de especialidades

Hallazgo de interferencias

Coordinación del equipo de trabajo

CONTENIDO
PORTAFOLIO
ARQUITECTURA - BIM LUZ HELENA MURILLO MACIAS

Desde el entendimiento del impacto que genera la aplicación de la Metodología BIM en un proyecto y acorde a la afinidad con dicha metodología durante la experiencia laboral he despertado un gran interés tanto por aplicarla en proyectos personales como por continuar mi desempeño laboral desde tal conocimiento adquirido y continuar consolidándolo.

A continuación un breve paso por mi trabajo con Revit y mi aporte al proceso BIM de un proyecto.

CURRICULUM VITAE

Perfil profesional Educación

Cursos | Habilidades

Experiencia Laboral

8 PORTAFOLIO AQUITECTURA

LUZ HELENA MURILLO MACIAS

Septiembre, 1997

Medellín

Arquitecta de la Institución Universitaria Colegio Mayor de Antioquia, con conocimientos adquiridos y experiencia en: Diseño arquitectónico de vivienda. Levantamiento arquitectónico y actualización de planimetría técnica. Elaboración de renders o imágenes 3D. Verificación técnica y patológica de infraestructuras. Modelación e integración BIM de proyectos. Amplio manejo de software de diseño arquitectónico: AutoCAD 2D Y Revit. Persona organizada y objetiva con orientación al detalle y capacidad de trabajo con equipos multidisciplinares.

Adaptabilidad, enfoque al detalle, predisposición para el aprendizaje continuo

INTRODUCCIÓN CURRICULUM VITAE 9 PORTAFOLIO AQUITECTURA

Ofimáticas

AutoCAD 2D

Revit

Navisworks

EDUCACIÓN

Arquitecta

I. U. Colegio Mayor de Antioquia

Febrero 2015 - Agosto 2020

Bachiller académico

I. E. Colegio Arenys de Mar

Enero 2009 - Noviembre 2014

CURSOS / HABILIDADES

Infoarquitectura de Interiores

Unreal Engine 5

Domestika

Febrero 2023 – Actualmente

Diplomado en Licenciamiento y Aplicación de Norma Urbanística

Universidad del Rosario - CPNAA

Febrero 2021 – Abril 2021

Revit Básico

Servicio Nacional de Aprendizaje - SENA

Agosto 2019 – Septiembre 2019

Photoshop

Illustrator

SketchUp

Lumion

Unreal Engine

INTRODUCCIÓN CURRICULUM VITAE 10 PORTAFOLIO AQUITECTURA

EXPERIENCIA LABORAL

JINCO SAS | Arquitecta

Octubre 2021 - Enero 2023 | Medellín - Bogotá

•Diseño arquitectónico

•Actualización de planimetría, dibujo de detalles arquitectónicos y elaboración de imágenes 3D.

•Verificación técnica de infraestructuras y recibo de zonas comunes

•Integración y detección de colisiones en la coordinación BIM del proyecto Centro Veterinario Universidad CES - Gramalote

Ingeplus SAS Ampliación Vía El Escobero| Arquitecta

Septiembre. 2020 - Noviembre 2020 | Envigado

• Verificación del estado actual de las edificaciones próximas al área de intervención de la obra, para la realización del acta de apertura correspondiente a cada inmueble.

Alcaldía de Medellín Programa Buen Comienzo | Practicante de Arquitectura

Febrero 2020 - Junio 2020 | Medellín

• Asistencias técnicas y verificación del estado de las infraestructuras de los jardines y centros infantiles, habilitación de nuevas sedes para centros infantiles.

lhmurillo.arq@gmail.com

319 502 5956

co.linkedin.com/in/luz-helena-murillomacias

INTRODUCCIÓN CURRICULUM VITAE 11 PORTAFOLIO AQUITECTURA

VIVIENDA CAMPESTRE

Cocorná, Antioquia

Surge del concepto de integración, unión y compartir familiar

Un lugar para el recreo y el descanso que da prioridad a los espacios comunes

14 PORTAFOLIO AQUITECTURA

Imagen exterior

Revit | Lumion | Photoshop

PROYECTOS VIVIENDA CAMPESTRE 15 PORTAFOLIO AQUITECTURA
PROYECTOS VIVIENDA CAMPESTRE 16 PORTAFOLIO AQUITECTURA

VIVIENDA CAMPESTRE

Plantas Arquitectónicas Revit

PORTAFOLIO AQUITECTURA
PROYECTOS VIVIENDA CAMPESTRE 17
PORTAFOLIO AQUITECTURA PROYECTOS VIVIENDA CAMPESTRE 18
PORTAFOLIO AQUITECTURA PROYECTOS VIVIENDA CAMPESTRE 19
PORTAFOLIO AQUITECTURA PROYECTOS VIVIENDA CAMPESTRE 20
PORTAFOLIO AQUITECTURA PROYECTOS VIVIENDA CAMPESTRE 21
PORTAFOLIO AQUITECTURA ISOMÉTRICO
Revit PROYECTOS VIVIENDA CAMPESTRE 22
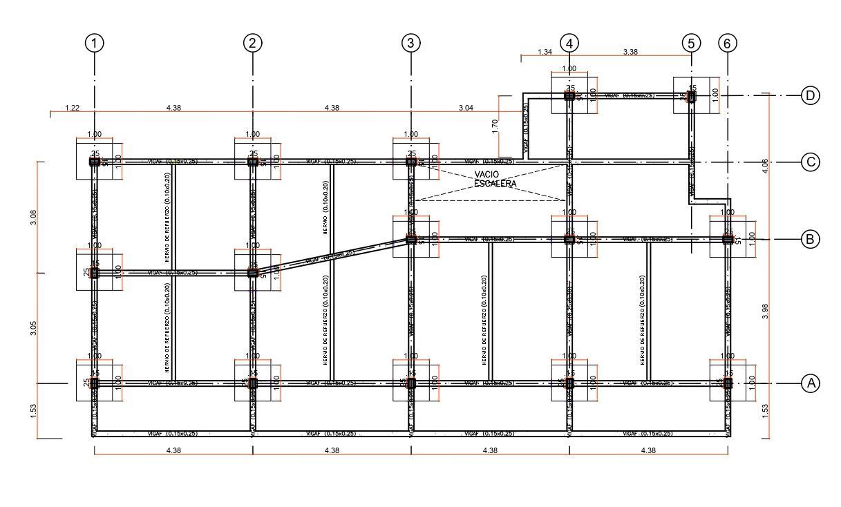
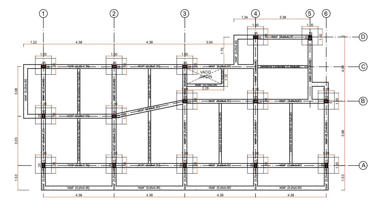
ESTRUCTURA
PORTAFOLIO AQUITECTURA
Planta Estructura N +2.90 1 : 200 Planta Estructura N +0.00
PROYECTOS VIVIENDA CAMPESTRE 23
1 : 200
PORTAFOLIO AQUITECTURA
Revit PROYECTOS VIVIENDA CAMPESTRE 24
ISOMÉTRICO RED DE GAS
PORTAFOLIO AQUITECTURA
Planta Red de Gas N +2.70
PROYECTOS VIVIENDA CAMPESTRE 25
1 : 200
PORTAFOLIO AQUITECTURA ISOMÉTRICO RED DE ABASTOS Revit PROYECTOS VIVIENDA CAMPESTRE 26
PORTAFOLIO AQUITECTURA
Planta Abastos N 0.00 1 : 200 Planta Abastos N +2.90
PROYECTOS VIVIENDA CAMPESTRE 27
1 : 200
PORTAFOLIO AQUITECTURA ISOMÉTRICO RED DE DESAGÜES Revit PROYECTOS VIVIENDA CAMPESTRE 28
PORTAFOLIO AQUITECTURA
Planta Desagüe N 0.00 1 : 200
PROYECTOS VIVIENDA CAMPESTRE 29
Planta Desagüe N +2.90 1 : 200
PORTAFOLIO AQUITECTURA
Revit PROYECTOS VIVIENDA CAMPESTRE 30
ISOMÉTRICO AIRE ACONDICIONADO
PORTAFOLIO AQUITECTURA PROYECTOS VIVIENDA CAMPESTRE 31

“Construir dos veces” Implementando adecuadamente la gestión de la información se logra prever importantes conflictos que impactaran contundentemente el proceso constructivo

PORTAFOLIO AQUITECTURA
PROYECTOS VIVIENDA CAMPESTRE 32
PORTAFOLIO AQUITECTURA
Imagen exterior
PROYECTOS VIVIENDA CAMPESTRE 33
Revit | Lumion | Photoshop
CAV GRAMALOTE San Roque, Antioquia
PORTAFOLIO AQUITECTURA PROYECTOS CAV GRAMALOTE 36
PORTAFOLIO AQUITECTURA
Imagen exterior
PROYECTOS
GRAMALOTE 37
Revit | Lumion | Photoshop
CAV

INFORMACIÓN DEL PROYECTO CAV GRAMALOTE CONDISEÑO - DISEÑADORES

HABILIDADES ADQUIRIDAS

PLAN DE EJECUCIÓN BIM

Planteamiento de las directrices necesarias para el desarrollo BIM del proyecto CAV GRAMALOTE

PORTAFOLIO AQUITECTURA
PROYECTOS CAV GRAMALOTE 38

HABILIDADES ADQUIRIDAS

GESTIÓN DE LA INFORMACIÓN

Administración y actualización de los archivos generados por cada especialidad

INFORMES DE COLISIONES

Hallazgo de interferencias entre las diferentes especialidades que integran el proyecto

MODELACIÓN 3D

Red eléctrica por cada Módulo CAV GRAMALOTE

PORTAFOLIO AQUITECTURA
PROYECTOS CAV GRAMALOTE 39

“Gestión de la Información”

Un equipo coordinado en pro de garantizar un proyecto integral con un funcionamiento optimo

PORTAFOLIO AQUITECTURA
PROYECTOS CAV GRAMALOTE 40
PORTAFOLIO AQUITECTURA
PROYECTOS CAV GRAMALOTE 41
Imagen exterior Revit | Navisworks
lhmurillo.arq@gmail.com 319 502 5956 co.linkedin.com/in/luz-helena-murillo-macias

Turn static files into dynamic content formats.

Create a flipbook
Issuu converts static files into: digital portfolios, online yearbooks, online catalogs, digital photo albums and more. Sign up and create your flipbook.