Skip to main content

Professional Design Portfolio

Page 1

Design Portfolio - 678 . 267 . 5982 - lhamm528@gmail.com
LAUREN HAMM

Lhamm528@gmail.com

I want to focus my career and life on creating spaces that inspire, that help those using them, and create ease for those within them. My strong background in healthcare architecture has taught me how to make inclusive spaces for varied uses and designs that last. I have also worked limitedly on residential and educational spaces as needed, which I enjoyed greatly. I enjoy the collaborative and creative nature the design field has given me and hope to join your creative hub and assist on many amazing projects to come.

Student of Interior Design , Summa Cum Laude || Georgia State University

08.2019 - 05.2021

Graduated Summa Cum Laude with a Bachelor of Arts with a focus in Interior Design

Student of Architecture || Kennesaw State University

08.2012 - 05.2016

Student of the Professional Architecture program, completion of pre-design program. Awarded for semester end project in 2012, honorable mentions in program wide portfolio competition to gain entrance to professional program, frequented the Dean’s List

Emerging Professional || MAY Architecture + Interiors

05.2022

Primary production staff on multiple projects from a 3-story new build to small renovations in healthcare and higher education environments. Construction administration to include OAC meetings and punches.

Staff Designer I || Levino Jones Medical Interiors

03.2021 - 04.2022

Involved in multiple projects simultaneously from the field verification, to schematic design, furniture and finishes through to the construction documentation and permitting process.

Interior Design Assistant || Art & Design Partners

11.2017 - 08.2018

Contributed room schematics, sourced furniture and finishes, orchestrated orders and deliveries, maintained project organization, diagramming floor plans, prep for client presentations

Strengths

Design Thinking

Collaboration

Detailed Planning

Customer Relations

Communication

Skills

Design Schematics

Project Flow Organization

Finish Specifications

Design Documentation

Digital AutoCad

Revit

AutoCad Build

Adobe Creative Suite

Microsoft Office Experience Education Abilities
132 S FairfieldDrive,PeachtreeCityGA30269
678 . 267 . 5982

lauren hamm

I began my design path the moment I stepped into the architecture building on a college tour. Fascinated by the models and presentations and the ideas they proposed I immediately knew I wanted a career in design. Design gives us an opportunity to make the world a better place to live. Being able to sculpt the environment and make such a huge impact on the people existing within it drives me to design to the highest of my ability for the people interacting with my spaces. With my career, I aim to take on a breadth of projects that allow me to learn from each one and apply to the other ways in which we can improve the human experience. Thus far, I have placed myself in highly technical roles within the healthcare industry that has taught me magnitudes on design efficiency, durability, and the most technical aspects of designing spaces where the details matter. In the next part of my journey, I want to engage in other types of spaces so I can expand my knowledge base. Having worked in both the interior design and architectural side of projects, I work well with seeing things in both the big and small pictures and how those translate throughout projects. Having a hand in such vast projects, I have learned the ins- and outs of design and construction, all the way to furniture and finishes.

Dunwoody MOB

A ground-up medical office building including seven separate tenants with various needs grew my knowledge of architecture and interior design exponentially. Coming into the project near the beginning, I was able to take client meetings from the start with schematics, all the way to publishing and permitting final CD’s. We worked both with Emory and its practicing doctors to create a cohesive building that suited the needs of each type of practice. I was responsible for finishes, document creation including final CD’s and presentation graphics for client meetings, and coordination with various consultants to include MEP, security, equipment, and FFE, and coordination directly with representatives for Emory.

Interior Rednering by Other
Main Finishes
Exterior Rednering by Other
Finish Rendering -Aesthetics Exam Room Finish and Design Rendering- Nurse Station Main Finishes

Finish and Design Rednering - Aesthetics Reception

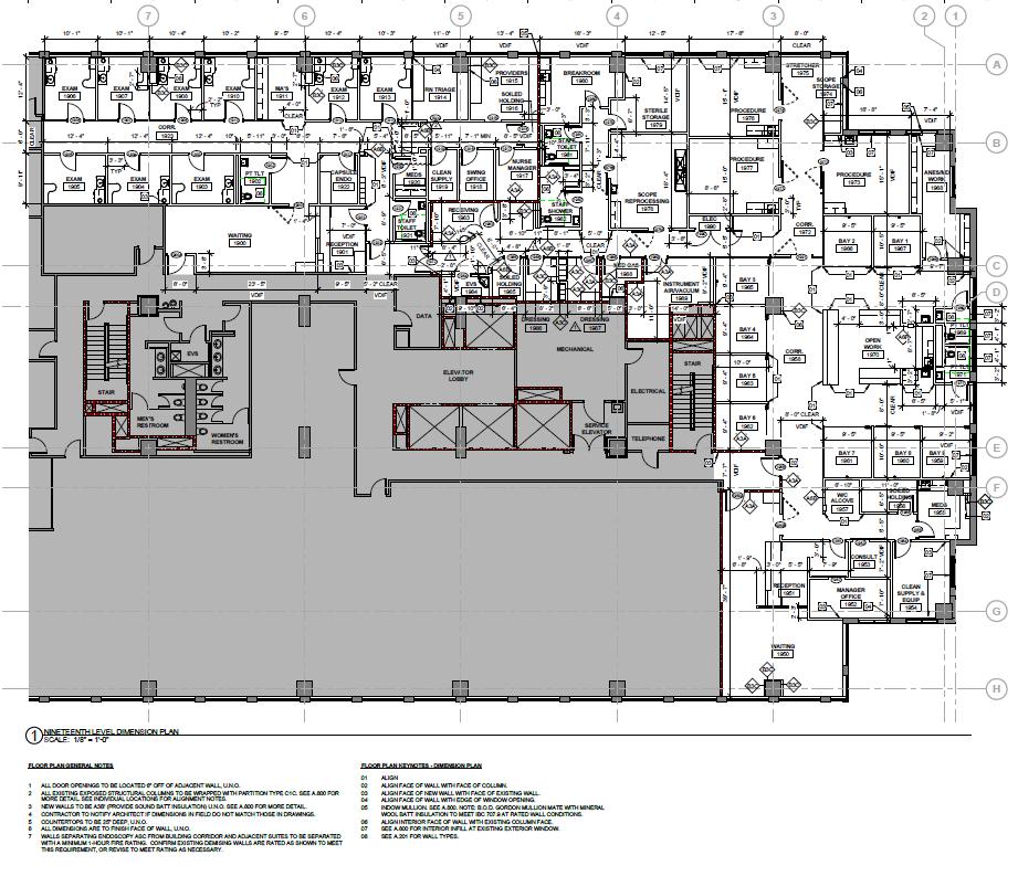
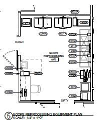
MOT-19 GI/Endo

A dual-purpose suite of Gastroenterology and Endoscopy Center had many hidden challenges, including separations of the two suites for code and FGI guidelines. On this project I expanded my knowledge both in the fundamentals of full architectural CD’s and in the realm of codes and guidelines for medical practices. I was responsible for all finish renderings, finishes, construction documents and presentations with the client. I was able to take on this project beginning with schematic diagrams and hopping directly into Design Development phases and able to see it through to submitting the documents for permitting.

Finishes and Design Rendering - GI Clinic
Main Finishes

Atlanta Womens Care Center

Atlanta Women’s Care Center is rooted in making their patients feel comfortable in a situation that cause many women anxiety and could lead to life altering news. Working with this local woman-owned small business, I decided to take a more inspiring and less sterile route in their design. After expanding to a larger suite, they asked for help with art, furniture and décor. The art was centered around promoting their brand while instilling calm in patients through beautiful abstracts. The furniture is meant to inspire more of a lounge feel, avoiding ganged furniture and having a more residential feel while maintaining infection control through design and material choice.

Main Finishes

Atlanta plastic surgery specialists

Atlanta Plastic Surgery Specialists needed a face lift when they were forced to move to a new space. Wanting to enshrine the beauty of old Hollywood glamour while also being inclusive, they opted for an interior that dazzled. I was tasked with this project from beginning to end, including original design, construction documents, to furniture, finishes and art. This project taught me how to think on my toes and provide great design options for a medical aesthetic market while still honoring the original design done by the doctor’s late wife.

gallery of completed projects

As a designer, I have been lucky enough to take part in so many fascinating and succesful projects. Here are some other projects that I have taken part in along my journey and wanted to share with you because I am proud of the projects I’ve worked on, the people I’ve worked with, and the journey I have taken as a designer.

While not in the office, I enjoy many artistic and creative art forms such as book binding, leather work, painting and collage, and analog photography. I believe these passions help drive me as a designer and give me fresh eyes to look at design problems with.

extracurricular design

Turn static files into dynamic content formats.

Create a flipbook