Portfolio_Leticia_Oliveira_Olsen_2023

Page 1

PORTFOLIO

LETICIA OLIVEIRA
TABLE OF CONTENT 01 02 03 04 ABOUT ME SOCIAL MEDIA REHABILITATION AND REFORMS HARBOUR
01. ABOUT ME
02 . SOCIAL MEDIA

03.REHABILITATION AND REFORMS

BRIEF

Develop a Design solution for a building changing it´s destination with original approach by applying the methodology of intervention related to sustainable recovery and reuse of the building according to an innovative approach of Biomimicry and Biophilic Design. The Building chosen for this project is located in Coin, Malaga.

Coin is a town located 210 meters above sea level and around 36 kilometers west of the provincial capital, Málaga, and 30 kilometers north of Marbella. The officialpopulation of the town is 22,673 (2020) people with foreigners currently makingup a significant percentage of the town’s population.

What is R&R

Renovation architecture and design includes projects that transform, maintain, restore and/or preserve elements of existing constructions. here, architects and designers give new life to historic buildings, forgotten properties and other outdated spaces.

Most buildings are resilient. They can accommodate change, they can evolve, expand, contract; they can adapt as the needs and priorities of those who occupythem become different.

Places that are adaptable can generate associations with the past and with the future; they create interconnections through time and space. They retain a sense of their previous existence while also providing an opportunity for the next.

INTERVENTION INSERTION INSTALATION

When working with an existing structure, the approach developed is basedon the current condition as well as the needs of the new users. Betweenthe old and the new, a bond is formed.Architects or designers can use three diferent strategies when reformingand rehabilitating. Intervention, Insertion and Installation are thestrategies and the one chosen will generate the final design.

ARCHITECTURAL STRATEGY

SITE ANALYSIS

TERRENO SUP.R.16 114, 29100 COÍN, MALAGA

The location is located in a devoloped area where schools, residential and retail stores takes space. It also has easy connections to otheer municipalities by car or by bus.

LOCATION

COURT HOUSE SUPERMARKETS

PHARMACY

VET

NEIGBOURING BUILDINGS

RESTAURANTS & CAFES

THE BUILDING

Terreno SUP.R.16, 114, 29100 (Coín Malaga)

The structure was built in 2000 and is standing on a plot of 2.802 square meters and has a total area of 326 square meters, divided into a storage room of 142 square meters, a ground floor of 133 square meters, and the first floor of 51 square meters.

BUILDING ANALYSIS

The building is in a poor condition and the main material used is red bricks. In some part of the building,

The bricks were damaged but the structure still managedto stay stable.

The materials for the ground is concrete but as shown in the pictures it is damaged on multiple places.

The roof material included metal as the skeleton which was rusty and tin as the skin.

The building has several pillars to be taken in consideration

EXISTING DRAWINGS

SWOT ANALYSIS

S TRENGTH

Location

Space

Weather

Nature

Accessibility

Circulation Open Plot

International neighbours.

W EAKNESS

No shade fom other buildings or trees

Lacking greenery areas

No water resources

Cimate - extreme hot and cold

O PPURTUNITY

Make the area more developed

Improve the user´s physical health

Connect people to nature

Enhance meaninfull life and consious living

T HEARTS

Plot level

Building´s structure conditions

S W O T

CONCEPT TERMITE MOUNDS

The initial consideration of this project was based on the needs of the place.In Coín it is very hot in summer and sensitively cold in winter.

While researching how organisms interact with nature through biomimicry research, I learned how termites live and how they affect nature.

These insects live in mounds, their underground and aboveground dwellings that they build using biological passive cooling techniques.

They create strategically placed internal tunnels for air and water to enter. This natural air conditioning keeps them cool in the summer and creates a type of irrigation system.

INSPIRATION BOARD

MATERIAL BOARD

One of the important techniques is the use of natural materials. The diversity of natural building materials, its uniqueness in terms of both physical and decorative properties, environmental friendliness, ease of use are undeniable advantages for the formation of sustainable architecture.

Stone Wood Water Steel Ceramic Glass Plants

DESIGN DEVELOPMENT

Keywords :

Sustainability, Natural cooling, Climate control, Ecosystem, Vegetation, Water, Air, Environment,Thermodynamic, Cost saving, Healthy living

TECHNICAL DRAWINGS

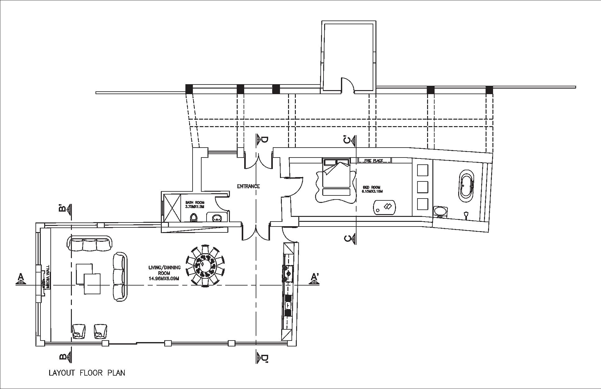
LAYOUT FLOOR PLAN

LAYOUT FLOOR PLAN

LAYOUT FLOOR PLAN FINISHING FLOOR PLAN

TECHNICAL DRAWINGS

FRONT ELEVATION OF LIVING

LEFTSIDE ELEVATION

RIGHTSIDE ELEVATION

FRONT ELEVATION OF BED

SECTION AA SECTION DD SECTION BB SECTION CC

3D IMAGES

04.A FUTURE FOR MARBELLA

BRIEF

The development is designed to be a modern and stylish complex that complements the surrounding environment.

The aim of this project is to create an architectural design that complements the brand-new Harbur development, while meeting the needs of the residents and visitors.

LOCATION

Bajadilla Harbor is a beautiful marina located in the Bajadilla neighborhood of Marbella, Andalusia, Spain. The harbor is situated at the eastern end of the beach, adjacent to the fishing port of Marbella.

The harbor has been in operation for several decades, but it has recently undergone a significant renovation to modernize its facilities and enhance its overall appeal. Today, the harbor is one of the most popular marinas in Marbella, attracting visitors from all over the world.

The harbor is surrounded by a promenade lined with restaurants, bars, and shops, making it a popular destination for tourists and locals alike. The promenade offers stunning views of the Mediterranean Sea and the surrounding coastline, providing a perfect setting for a leisurely stroll or an evening out.

O PPURTUNITY T S W O
SWOT ANALYSIS S TRENGTH W EAKNESS

BRAINSTORMING

PROJECT PROPOSAL

Yacht inspired Luxury gallery

The yacht-inspired luxury gallery is a unique and luxurious space that celebrates the coastal lifestyle, the ocean, and the world of yachts.

The gallery will feature a curated collection of art, design, and fashion pieces that embody the essence of the sea and the coastal lifestyle, and will be designed to resemble the interior of a luxury yacht.

The space will be functional, comfortable, and eco-friendly, while creating a sense of exclusivity and luxury for visitors. Overall, the yacht-inspired luxury gallery will be a high-end destination that appeals to those who appreciate art, design, and the coastal lifestyle.

INSPIRATION BOARD

Flow

Like the ocean waves,Sculpted by wind and water Natural lines, Sustainable materials, Bright colors, Ocean, Fluid forms

TECHNICAL DRAWINGS

GROUND FLOOR PLAN

FIRST FLOOR PLAN

SECOND FLOOR PLAN

ROOF TERRACE FLOOR PLAN

TECHNICAL DRAWINGS

GROUND FLOOR-CEILING PLAN

FIRST FLOOR-CEILING PLAN

SECOND FLOOR-CEILING PLAN

SECTION

TECHNICAL DRAWINGS

ELEVATIONS

SECTION
ELEVATIONS ISOMETRIC VIEW

3D IMAGES

THANK YOU

LETICIA OLIVEIRA

Turn static files into dynamic content formats.

Create a flipbook
Issuu converts static files into: digital portfolios, online yearbooks, online catalogs, digital photo albums and more. Sign up and create your flipbook.