Do sonho ao traço, do traço à
LetíciaAlves REALIDADE.

Sobre
mim
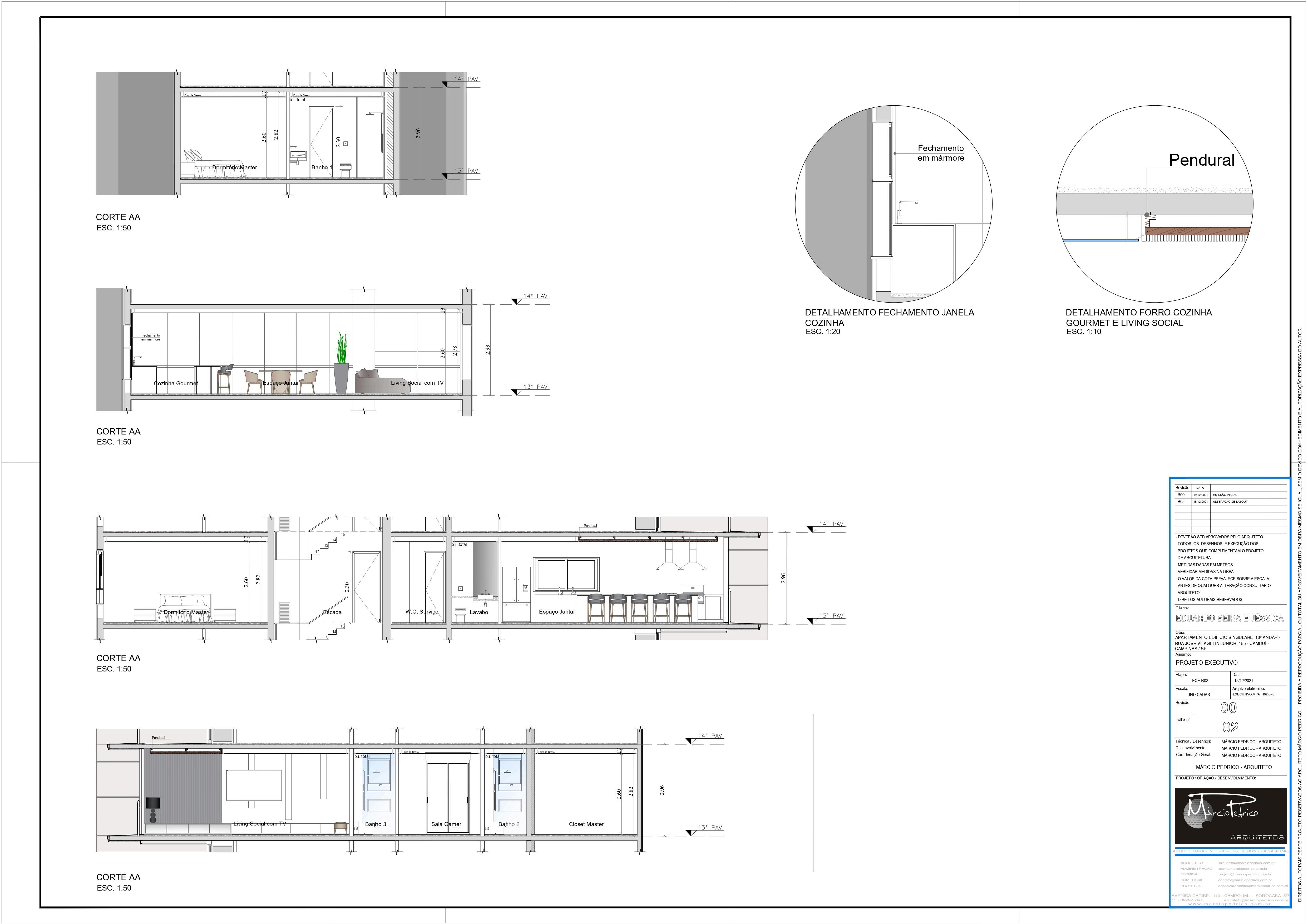
Sou arquiteta e urbanista e atuo na área de projetos executivos prediais e residenciais Atuei em escritórios de arquitetura e em construtoras, adquirindo vivência prática tanto no desenvolvimento de projetos quanto na compatibilização técnica entre disciplinas como estrutura, elétrica, hidráulica e prevenção contra incêndio
Durante minha trajetória, desenvolvi habilidades em detalhamento técnico, acompanhamento de obras e elaboração de documentação técnica Sou apaixonada pela construção civil, porque nela posso ver o projeto tomar forma no canteiro de obras e sonhos ganharem vida
Tenho como objetivo concretizar os sonhos daqueles que me confiam a responsabilidade de tornálos realidade Acredito que cada projeto deve refletir a identidade de quem o habita, respeitando as necessidades individuais e acolhendo as histórias e experiências que acontecerão em cada espaço Minha missão é desenvolver projetos únicos, que unam inovação, funcionalidade e sensibilidade Para mim, a arquitetura vai além da técnica é sobre captar o tamanho real de um sonho e traduzilo em formas, materiais e detalhes que fazem sentido Busco atender com excelência, escuta ativa e comprometimento, valorizando cada etapa do processo e cada pessoa envolvida Mais do que criar ambientes, quero criar experiências Será um prazer fazer parte da sua história!
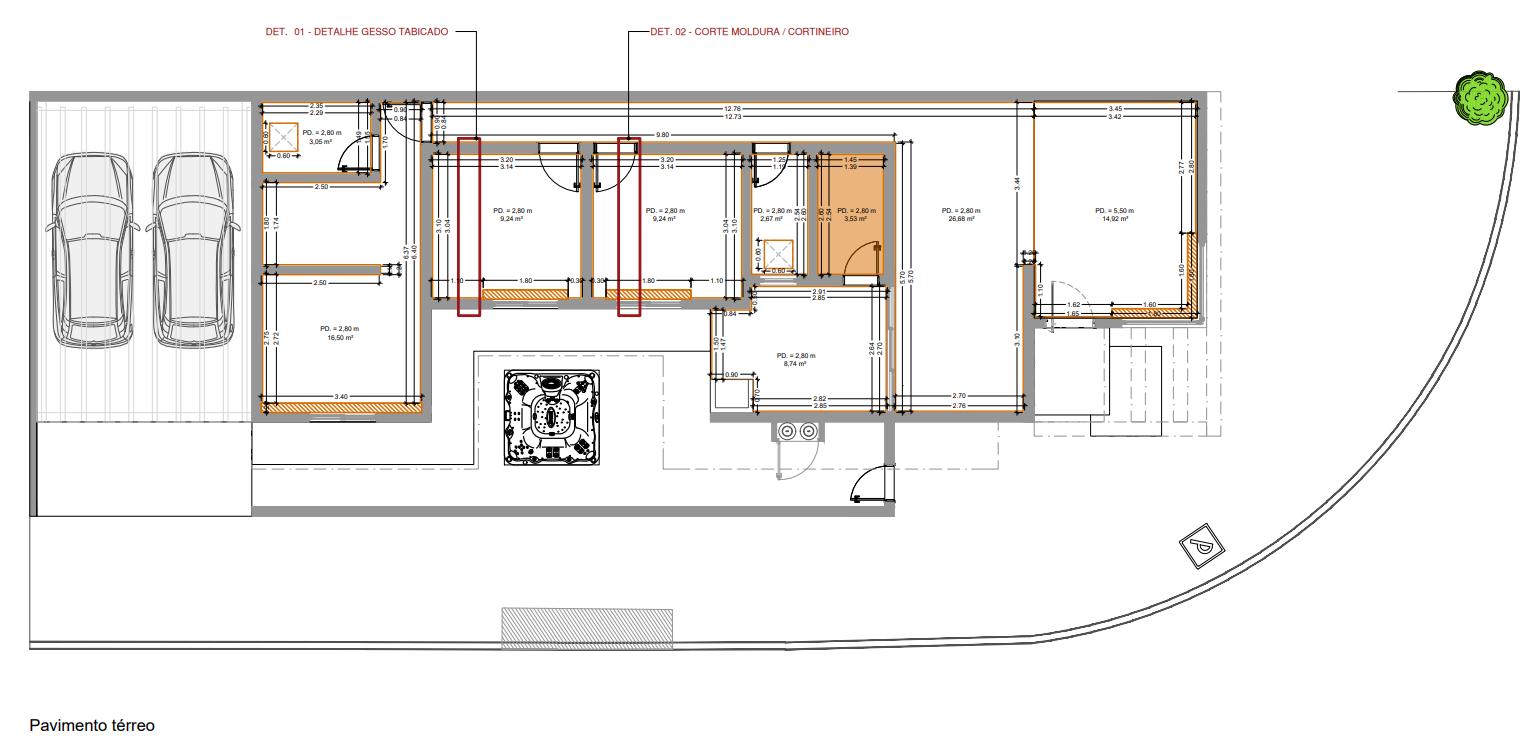
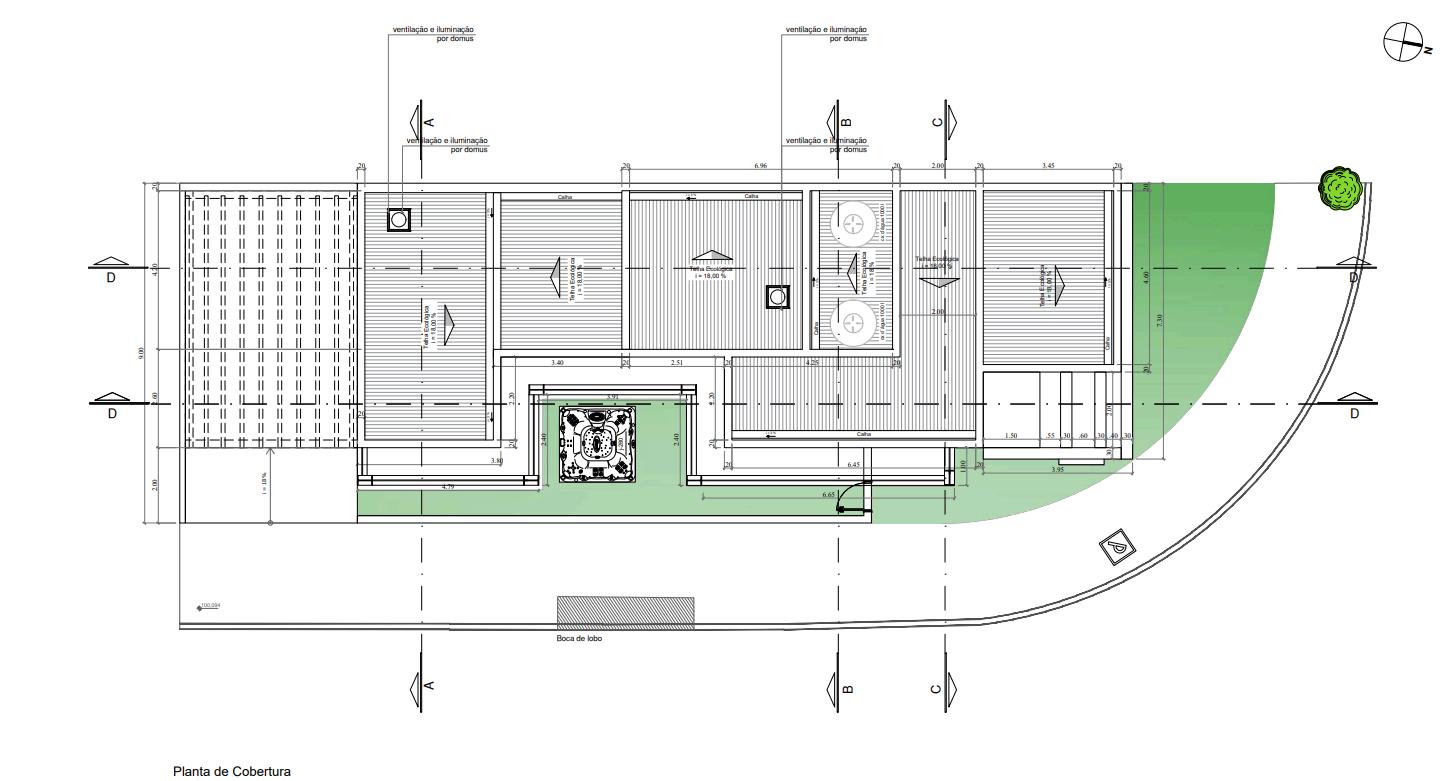
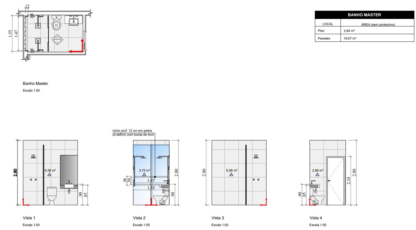
Serviços prestados
✓ Arquitetura Residencial
✓ Comercial e Corporativa
✓ Interiores
✓ Reformas
✓ Regularização











































Elevação lateral esquerda




















