Portfólio de Arquitetura Letícia Aquareli

Page 1

PORTFÓLIO

LETÍCIA AQUARELI

❑ OBJETIVOS

▪ Ganhar experiência na prática tanto em projeto quanto em execução de obras, buscando sempre os melhores resultados, com determinação, muita vontade de aprender e atenção aos detalhes.

▪ Obter a oportunidade de estágio.

❑ EXPERIÊNCIA PROFISSIONAL

▪ Estagiária no Studio André Delfino em São Carlos-SP desde de 21/08/2023;

▪ Experiência com levantamentos para estudos preliminares para o desenvolvimento de projetos.

▪ Experiência com desenvolvimento de Projetos de Prefeitura (simples e completo) e acompanhamento de processos;

▪ Experiência com desenvolvimento de Projetos Executivos.

❑ CURSOS/WORKSHOPS INTERNOS E EXTERNOS À UNIVERSIDADE

• Autocad 2020 – 3dm Maquetes Eletrônicas;

• Concreto Armado Do Zero – Nelso Schneider;

• Desempenho Acústico na Construção – Realização: AECweb/Patrocínio: Amanco Wavin;

• Excel Intermediário – Dinâmica Treinamentos;

• Fundações do Zero – Nelso Schneider;

• Formação em Lighting Design: Iluminação Para Criar Atmosferas – NTZ Iluminação Arquitetônica;

• Introdução a Construção Saudável – Healthy Building Certificate;

• Master Gestor de Obras – Wanessa Fazinga.

• Série Concreto Armado – Concepção E Modelagem De Estruturas: Capítulo 1 – Fatores Que Influenciam Na Concepção Da Estrutura De Concreto – Altoqi/Qisat;

• Série Tecnologia Do Concreto – Especificação E Dosagem: Capítulo 1 – Conceitos Básicos Sobre Concreto –Altoqi/Qisat;

• Workshop de Fusão da Engenharia e TI (Modernização das FVs no Canteiro com Tablets) – XX Semana de Engenharia Civil – EESC/USP;

• XX Semana de Engenharia Civil – EESC/USP;

❑ DISCIPLINAS CURSADAS NO PROGRAMA DE DUPLA FORMAÇÃO – IAU/EESC - USP

➢ 1º SEMESTRE – 1/2021

• 1800107 – Introdução à Engenharia Civil;

• SET0403 – Sistemas Estruturais;

• SET0413 – Mecânica dos Sólidos I;

• SHS0409 – Hidráulica dos Condutos Forçados;

• SHS0411 – Hidrologia 1;

• SMA0300 – Geometria Analítica;

• SMA0353 – Cálculo I;

• STT0408 – Fundamentos de Engenharia de Transportes.

➢ 2º SEMESTRE – 2/2021

• SEP0587 – Princípios de Economia;

• SET0400 – Isostática;

• SET0414 – Mecânica dos Sólidos II;

• SHS0410 – Hidráulica dos Condutos Livres;

• SHS0412 – Hidrologia 2;

• SGS0405 – Geologia de Engenharia 1;

• STT0410 – Geomática II.

➢ 3º SEMESTRE – 1/2022

• SEP00175 – Princípios de Gestão de Projetos

Aplicados à Construção Civil;

• SET0406 – Estruturas de Madeira;

• SET0409 – Estruturas de Concreto Armado I;

• SET0415 – Estática 1;

• SET0417 – Estruturas Metálicas 1;

• SGS0407 – Mecânica dos Solos 1;

• SGS0602 – Introdução à Geotecnia;

• SHS0413 – Saneamento 1;

• STT0406 – Estradas I.

➢ 4º SEMESTRE – 2/2022

• SET0410 – Estruturas de Concreto Armado II;

• SET0629 – Patologia e Recuperação das Estruturas

De Concreto;

• SGS0404 - Fundações;

• SGS0408 – Mecânica dos Solos 2;

• SHS0414 – Saneamento 2;

• STT0405 – Planejamento e Análise de Sistemas

De Transportes.

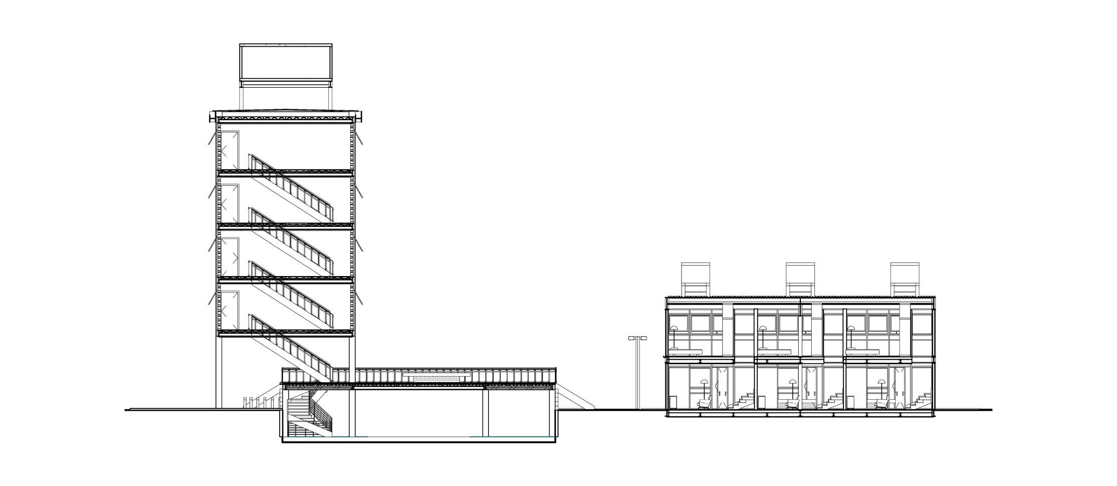
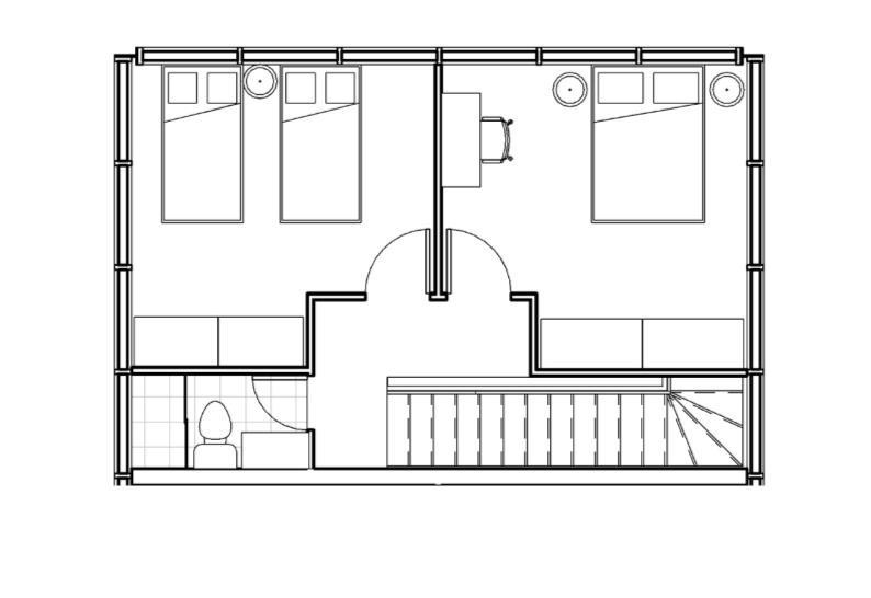
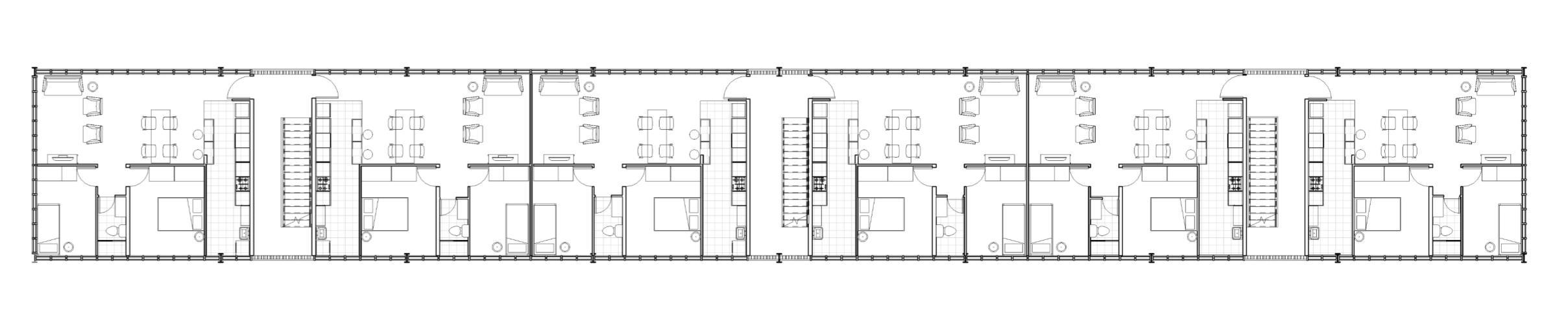
ARQUITETURA E PRÉFABRICAÇÃO

IAU 0751 - PROJETO II-A

PROFESSORES RESPONSÁVEIS: GIVALDO LUIZ MEDEIROS, LUIZ

ESPALLARGAS GIMENEZ E MÁRCIO MINTO FABRÍCIO

DESENVOLVIDO EM GRUPO COM INGRIDTH HOPP, FERNANDA NORATO E JOÃO BATISTA STIVANIN NO PRIMEIRO SEMESTRE DE 2019

Este projeto consiste em um conjunto residencial de média densidade composto por um edifício multifamiliar laminar e sobrados, todos projetados com elementos modulares pré-fabricados em aço numa malha estrutural de 7,5 x 7,5 m.

Ademais, como princípio base está a inter-relação entre forma arquitetônica e forma urbana, criando, assim, espaços comuns de vivência, estar e lazer que visam a qualificação da arquitetura como agente de construção da cidade.

PLANTAS

IMPLANTAÇÃO

ESCALA 1:200

TO = 24%; CA = 1,12; CP = 48%

7

PAVIMENTO TIPO

ESCALA 1:200

TIPOLOGIA SOBRADOS

ESCALA 1:100

PAVIMENTO TIPO APARTAMENTOS

ESCALA 1:100

8

NORDESTE

ESCALA 1:200

SUDOESTE

ESCALA 1:200

9

NOROESTE

ESCALA 1:200

SUDESTE

ESCALA 1:200

10

CORTE AA’

ESCALA 1:200

CORTE BB’

ESCALA 1:200

11

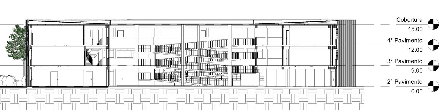
PROJETO GALPÃO CANTEIRO ESCOLA

IAU 0750 – TECNOLOGIA DAS CONSTRUÇÕES II-B PROFESSORAS RESPONSÁVEIS: AKEMI INO E LÚCIA SHIMBO

DESENVOLVIDO EM DUPLA COM ISABELA FURLAN NO

SEGUNDO SEMESTRE DE 2020

Neste projeto, foram aplicados os conceitos de sistemas em estruturas independentes com a escolha do sistema estrutural em Madeira Lamelada Colada (MLC), vedação em painéis parede de Cross Laminated Timber (CLT) e cobertura em telhas metálicas autoportantes. Para isso, foram elaborados prédimensionamentos da estrutura principal e da de cobertura, ambos utilizando os ábacos de Yopanan Rebello, disponíveis no livro “A Concepção Estrutural e a Arquitetura”, e detalhes construtivos.

Ademais, como partido do projeto, tem-se a definição de uma cobertura de duas águas, em telhado borboleta, e a utilização de painéis de madeira que configuram brises para o controle da insolação, buscando, assim, configurar um ambiente agradável e convidativo para as práticas didáticas.

17
PLANTA ESCALA 1:100

ESCALA 1:100

COBERTURA
18

LESTE

ESCALA 1:100

OESTE

ESCALA 1:100

19

NORTE

ESCALA 1:200 SUL

ESCALA 1:200

20

CORTES

CORTE AA
21
ESCALA 1:100

BB ESCALA 1:100

22
CORTE

ESCALA 1:100

CORTE CC
23
24
CORTE DD ESCALA 1:100

DETALHES

25
26

LAYOUT CANTEIRO

PLANTA LAYOUT CANTEIRO DE OBRAS

ESCALA 1:250

27

PROJETO ESCOLA FDE

IAU 0734 - PROJETO III-B

PROFESSORES RESPONSÁVEIS: BRUNO LUÍS DAMINELI E

MARCELO C. TRAMONTANO

DESENVOLVIDO EM GRUPO COM ANDRESSA NORA, BEATRIZ SOUZA, ISABELA FURLAN, JULIA MÉDICI E LIZ MACEDO NO SEGUNDO SEMESTRE DE 2020

A essência deste projeto consiste em criar um ambiente escolar que seja diferente, convidativo e confortável para seus usuários. Por isso, foi pensado, para a escola, um desenho mais geométrico inspirado na “Yangliu County Community Primary School and Kindergarten”. Assim, partindo dessa geometria mais triangular, tem-se a criação de um pátio interno e, consequentemente, de um espaço de estar, de vivência e integração. Ademais, também inspirada na referência acima, tem-se a utilização de brises de madeira que, além de auxiliarem no conforto térmico, controlando a insolação no edifício, propiciam à edificação um aspecto de unicidade.

Yangliu County Community Primary School and Kindergarten

de Pedestres e Espaço Recreativo Bostanli - Studio Evren Basbug

Além disso, outra premissa muito importante para o projeto é a integração da edificação com o Parque do Kartódromo, que se faz tanto pelos brises serem móveis no pavimento térreo, possibilitando uma maior ou menor permeabilidade no interior da escola, quanto pela passarela de madeira, inspirada na “Passarela de Pedestres e Espaço Recreativo Bostanli - Studio Evren Basbug” , que os conecta e cria um espaço de convívio, uma vez que também serve de mobiliário urbano.

Ademais, compondo o sistema construtivo do projeto, tem-se a estrutura principal da edificação em concreto pré-moldado, conforme pré-determinado pelo FDE (Fundação para o Desenvolvimento da Educação), fundação em sapatas, vedação externa em alvenaria e interna em paredes de dry-wall e cobertura com telhas metálicas trapezoidais, sendo que, os últimos dois elementos possuem isolantes em sua composição, contribuindo, assim, para um maior conforto térmico-acústico da escola.

Passarela

LOCALIZAÇÃO E IMPLANTAÇÃO

IMPLANTAÇÃO

ESCALA 1:100

TO = 32%; CA = 0,72; CP = 20%

LOCALIZAÇÃO

36

1° PAVIMENTO

1- ESPAÇO DE ESTAR

2- QUADRA ESPORTIVA COBERTA

2° PAVIMENTO

1- SECRETARIA

2- ALMOXARIFADO

3- SALA DIRETOR

4- SALA VICE-DIRETOR

5- CONJ SANITÁRIOS

ADMINISTRATIVO

6- DEP MAT PEDAGÓGICO

7- GRÊMIO

8- REFEITÓRIO

9- COZINHA/DESPENSA

10- CANTINA

11- CONJ. SANITÁRIOS FUNCIONÁRIOS

ESCALA 1:100

1 2 1 2 3 4 5 5 6 7 9 10 8 11
37

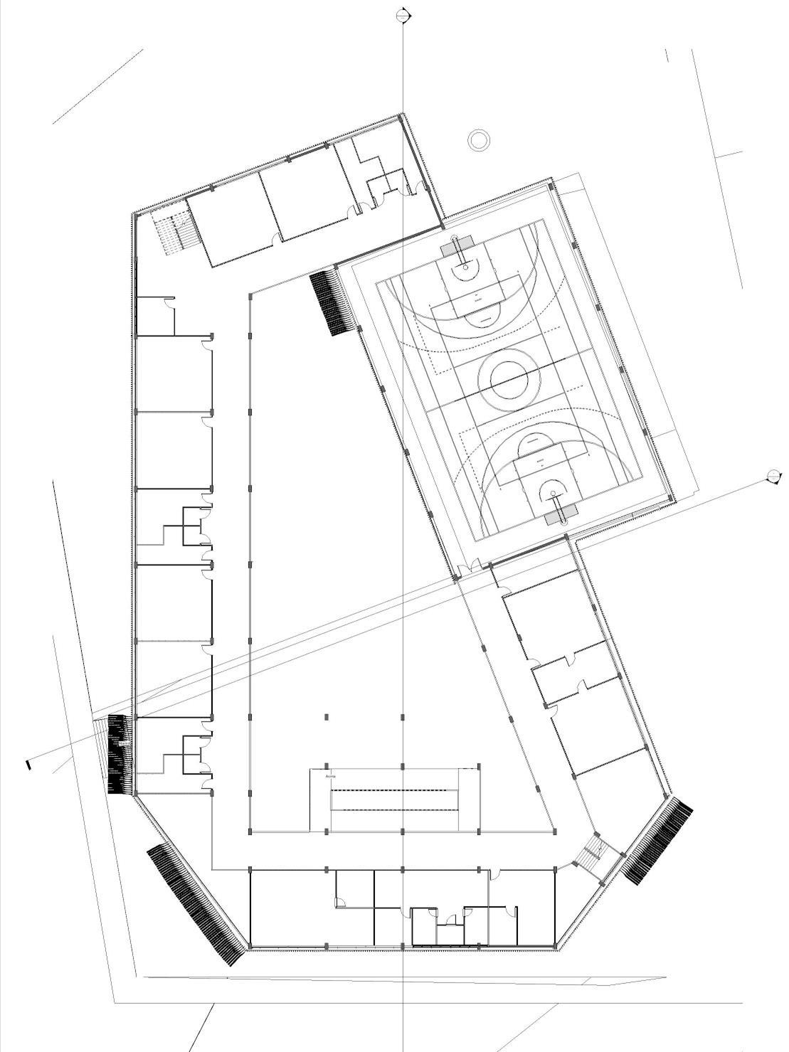
3° PAVIMENTO

1- SALA DE AULA

2- CONJ SANITÁRIOS

3- SALA DOS PROFESSORES E COPA

4- COORD. PEDAGÓGICO

5- CONJ SANITÁRIOS ADMINISTRATIVO

6- DEP MAT LIMPEZA

7- LAB. BIOLOGIA E QUÍMICA

8- SALA DE PREPARO

9- LAB. MATEMÁTICA E FÍSICA

10- VESTIÁRIO

11- DEP. ED. FÍSICA

12- SALA DE EXPOSIÇÕES

13- QUADRA ESPORTIVA

4° PAVIMENTO

1- SALA DE AULA

2- CONJ. SANITÁRIOS TIPO A

3- CONJ SANITÁRIOS TIPO B

4- SALA DE LEITURA

5- SALA DE INFORMÁTICA

6- SALA DE RECURSOS

1 1 1 1 2 2 3 4 5 5 6 7 8 9 10 11
1 1 1 1 1 1 1 1 2 2 2 1 1 4 5 6 3 38 ESCALA 1:100

LESTE

ESCALA 1:100

NORTE

ESCALA 1:100

39

OESTE

ESCALA 1:100

SUL

ESCALA 1:100

40
CORTE AA’ ESCALA 1:100
41
CORTE BB’ ESCALA 1:100

SOLSTÍCIO DE VERÃO 9H, 12H E 15H

SOLSTÍCIO DE INVERNO 9H, 12H E 15H

42

Turn static files into dynamic content formats.

Create a flipbook
Issuu converts static files into: digital portfolios, online yearbooks, online catalogs, digital photo albums and more. Sign up and create your flipbook.