Portfolio arquitectura - Leonardo Cruz Rojas

Page 1


ARQUITECTURA PORTFOLIO

- Introducción

- C.V.

- Proyectos Universitarios

- TALLER IV: Arquitectura y Funcionalidad

- TALLER V: Arquitectura y Medio Ambiente

- TALLER VI: Arquitectura y Construcción

- TALLER VII: Taller de Integración

- TALLER VIII: Arquitectura y Ciudad

- Acabados / Tecnología de la madera -Certificados

- Autodesk 3DS Max 1: Visualización y animación - Semco

- Autodesk 3DS Max 2: Visualización y animación - Semco

- Revit Desde 0 y Bim User - Grid Studio

LEONARDO MOISES CRUZ ROJAS

INTRODUCCIÓN

Este portafolio contiene los ultimos proyectos y trabajos realizados dentro de la universidad . Se tomó en cuenta los proyectos más relevantes de cada ciclo en los que fui desarrollando criterios de diseño y diagramación digital de los mismos.

Se presentan además unos certificados por cursos fuera de la universidad para mejorar mi desempeño en la digitalización de algunos proyectos.

Considerese bienvenido a mi pequeño trayecto dentro de la carrera de arquitectura.

C.V. LEONARDO MOISES CRUZ ROJAS

Estudiante de Arquitectura

PERFIL PROFESIONAL

www.linkedin.com/in/leonardocruz-arquitecto/

Estudiante de 9no ciclo de la facultad de Arquitectura de la Universidad Peruana de Ciencias Aplicadas (UPC), con buena capacidad de trabajo en equipo, actitud positiva y responsable ante los proyectos.

EDUCACIÓN

EDUCACIÓN SECUNDARIA | DICIEMBRE 2017 | TRILCE BACHILLER DE ARQUITECTURA| MARZO 2018 - ACTUALIDAD | UPC

EXPERIENCIA LABORAL

ASISTENTE DE ARQUITECTO | JGF INGENIERIA Y CONSTRUCCIÓN (10/2023 A 03/2024)

•Desarrollo y levantamiento de plantas de arquitectura.

•Creación de memorias descriptivas de arquitectura, aforos, seguridad y evacuación de proyectos.

•Elaboración de propuestas de redistribución arquitectónica para viviendas.

•Elaboración de propuestas de diseño interior, mobiliario y remodelación de ambientes.

•Elaboración de planos a detalle de remodelación de arquitectura y mobiliario.

•Renderizado de proyectos interiores.

CUSTOMER CARE SERVICE | NORDSTROM TELEPERFORMANCE (09/2024 A 12/2025)

•Interactuar con clientes de habla inglesa escuchando activamente sus inconvenientes y expresando ideas lo más claro posible.

•Atender consultas y resolver inquietudes de clientes con pensamiento crítico, y encontrando soluciones rápidas y efectivas.

•Manejar situaciones con clientes comprendiendo sus perspectivas y manteniendo la calma, incluso en situaciones difíciles, lfortaleciendo la inteligencia emocional.

•Trabajar en un entorno dinámico y multicultural que exige flexibilidad para ajustarse a diferentes situaciones y necesidades de los clientes.

•Colaborar en equipo, reforzando las habilidades de cooperación y coordinación grupal.

•Gestionar bien el tiempo al atender múltiples consultas de manera eficiente, priorizando tareas y administrando el tiempo de forma efectiva.

HABILIDADES

•AUTOCAD AVANZADO

•SKETCHUP – AVANZADO

•LUMION – AVANZADO

•INDESING - AVANZADO

•PHOTOSHOP - AVANZADO

•REVIT - INTERMEDIO

•ARCHICAD INTERMEDIO

•RHINOCEROS INTERMEDIO

•3DS MAX - INTERMEDIO

•VRAY - INTERMEDIO

•TWINMOTION - INTERMEDIO

•ILLUSTRATOR INTERMEDIO

•PREMIERE RPO - INTERMEDIO

•AFTER EFFECTS – INTERMEDIO

•MS OFFICE (EXCEL/POWER POINT) – INTERMEDIO

IDIOMAS

•INGLÉS (ICPNA)- AVANZADO

•FRANCÉS (UPC)- BÁSICO

Vivienda Multifamiliar PREVI

REDISEÑO DE UNA TIPOLOGÍA EXISTENTE

Usando las tipologías, terrenos y estilos de vivienda que se encontraban en este conjunto de viviendas llamado PREVI se desarrollo dos proyectos grupales en los cuales se modificó una vivienda ya construida , para que se adaptara a las necesidades del cliente manteniendo la estructura principal de la casa.

El proyecto constaba de replantear la distribución de un conjunto multifamiliar juntando 4 lotes. Teniendo como base la forma que se planteó en el concurso, debiamos desarrollar una nueva distribución para otro tipo de usuario que contuviera 8 departamentos de 60, 90 y 120 metros cuadrados. Además, se debia tomar en cuenta el diseño en relación a la huella definida de forma grupal.

La idea de diseño principal giraba entorno a las terrazas compartidas como espacios comunes entre los residentes del proyecto.

Vivienda
Vivienda
Vista exterior terraza Vista exterior 2
Vista interior baño
Vista exterior 1
Vista interior cocina
Vista interior dormitorio principal
Vista interior sala
Vista interior dormitorio secundario

Refugio para Montañistas Huancaya

INTEGRACIÓN DE UN REFUGIO EN UN

ENTORNO MONTAÑOSO

Teniendo como usuario principal a los montañistas, se plante un refugio que pueda albergar como mínimo a 8 y que posea áreas comunes para los mismos y los montañistas de pasada. Planteando ambientes como área de preparado de comidas, comedor, baños, área de casilleros y zona de fogata.

El proyecto busca mantener un contacto estrecho con la naturaleza generando visuales hacia las cascadas del rio, asejemando así la forma del refugio al movimiento del agua y al emplazamiento topográfico.

Unos de los puntos más importantes a tomar en consideración fue el material para el proyecto, puesto que el impacto clímatico de la zona podría llegar a afectar al usuario. Es por ello que se optó por usar muros de tapia con un refuerzo de geomalla para mantener el confort interno.

Vista interior locker
Vista interior habitaciones
Vista interior fogata común
Vista interior fogata común

Centro Cultural Cesar Vallejo

ENFOQUE EN LOS DETALLES INTERIORES PROGRAMA ARQUITECTÓNICO

A lo largo del taller desarrollamos un centro cultural hubicado en San Isidro enfocandonos en el tratado de estructuras y detalle interior. Para ello plateamos un concepto que defina las intenciones principales del proyecto y el programa del mismo. Es por ello que al desarrollar un concepto ligado a la literatura peruana, específicamente a Cesar Vallejo, se plantearon áreas de lectura, biblioteca, salas de exposiciones y un auditorio, además de otras areas complementarias como restaurantes y áreas de servicio.

Vista terraza
Vista interior biblioteca
Vista interior patio
Vista interior corredor
Vista interior terraza
Vista interior biblioteca

Parque Híbrido + Viviendas

Barrios Altos

SOLUCIÓN A UNA ZONA EN CONFLICTO

Nuestro proyecto está ubicado en Barrios altos, específicamente entre las avenidas Rivera y Dávalos, Sebastián Lorente y Av. Ancash, cerca al rio rimac y con vistas hacia el cerro San Cristobal. Para el análisi completo del lugar se nos propuso trabajar en grupos investigando diferentes puntos que aportarian al sustento de nuestra solución de los problemas en la zona, además de proyectos referenciales que ayudarian con el diseño del mismo.

Decidimos trabajar con la topografia a manera de desniveles y que jugase con nuestra propuesta de escalonamiento en general. De esa forma el recorrido conversaria con los volumenes y podria sentirse un solo lenguaje. Tambien decidimos modificar los silos para que siguiese esta idea y mimetice con el proyecto.

ALUMNOS:

CORTE A - A

CORTE A - A

CORTE B - B

CORTE B - B

Vista interior 1
Vista interior 3
Vista interior central
Vista interior2
Vista interior 4

Mercado + Centro Gastronómico

Lima - Zona Industrial

PROPUESTA URBANA RENOVADORA

Al comienzo del taller se nos mostró el terreno a investigar, el cual está situado en la parte industrial del Cercado de Lima. Teniendo un cruce importante como la Av. Argentina con la Av. Nicolas dueñas, se nos encargaría plantear una renovación urbana en el lugar para solventar los problemas existentes.

Se me encargó desarrollar un Centro gastronómico + mercado ubicado en el cruce de la Av. Argentina y Av. Nicolás Dueñas. El terreno posee un aproximado de 5200 m2, sin embargo existe un area segmentada de 63 000 m2 en el cual planteariamos cada uno una propuesta de regeneración urbana.

Teniendo en cuenta las dimenciones del terreno plantearia una grilla que pudiese favorecer los espacios amplios en su interior para los puestos del mercado y centro gastronómico, asi mísmo pensando en el estacionamiento y el espacio que ocuparia cada auto.

Vista interior patio central
Vista interior patio de comidas
Vista interior patio central
Vista interior patio de comidas

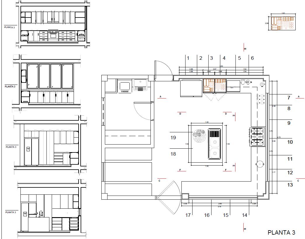
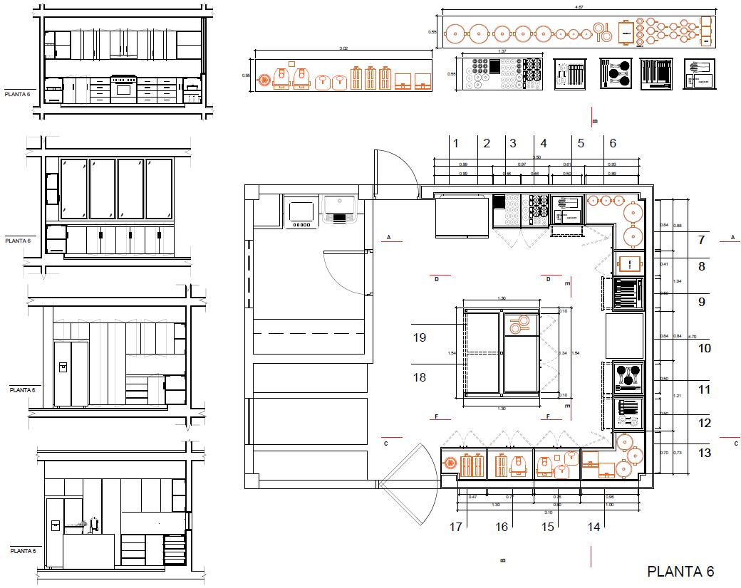
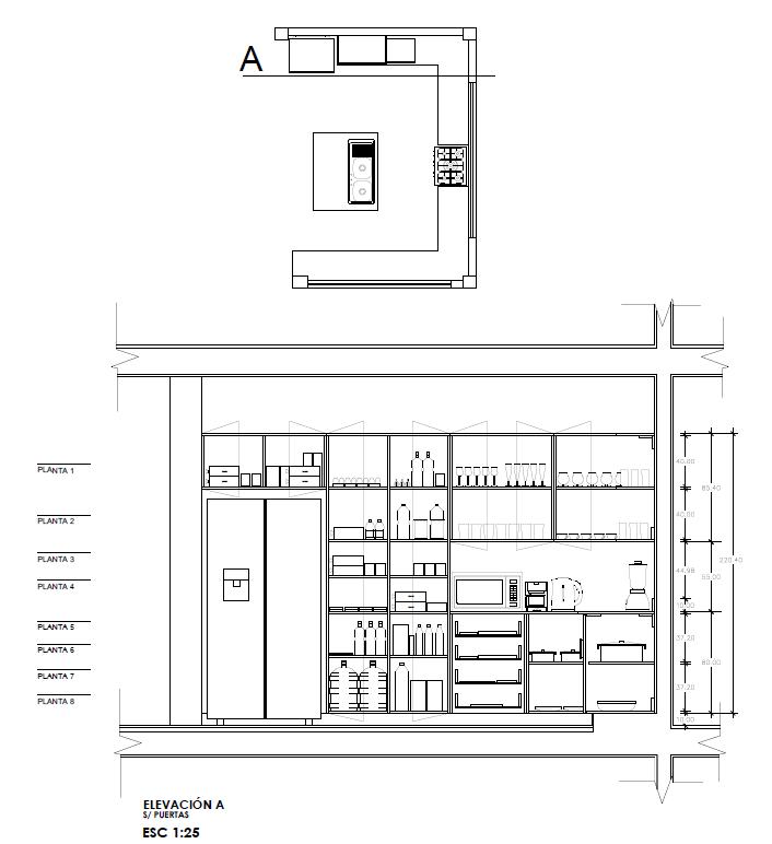
ACABADOS Y TECNOLOGÍA DE LA MADERA

Remodelación de cocina preexistente para 15 backpackers, realizando una inspección de todos los utensilios que se almacenarán en cajones y repisas, además de implementar una isla en la parte central con desayunero.

Vista interior cocina
Vista interior cocina
Vista interior cocina
Vista interior cocina
Vista interior cocina
Vista interior cocina
Vista interior cocina Vista interior cocina Vista interior cocina

Turn static files into dynamic content formats.

Create a flipbook
Issuu converts static files into: digital portfolios, online yearbooks, online catalogs, digital photo albums and more. Sign up and create your flipbook.