La Casa Orbegoso

Page 1


INTERVENCION-CASONA MARISCAL DE ORBEGOSO

CARRION BERNAL LEONARDO IGNACIO

Quien soy 1. Datos Generales 2. Linea de tiempo 3. Ubicacion-analis de entorno 4. 5.Introducción Analis vial 6. Zonificacion y programa arquitectonico 7. 8.Axonometria Planos preexistentes 9. 10.Propuesta-planimetria cortes y elevaciones 11. detalles constructivos 12. 13.Anexos-renders

CARRION BERNAL LEONARDO IGNACIO estudiante de arquitectura en el séptimo ciclo, en la ciudad de Piura. Estoy actualmente cursando Ciudad y Patrimonio Histórico, una materia que me apasiona profundamentedebidoasuenfoqueenlapreservación y revitalización de espacios históricos y monumentales...

Ubicacion

jr.Orbegoso N°553 N° de pisos 2

Fecha de construcion

siglo XIX

Año de remodelacion 1987

Tipologia

Civil Domestica

Area del lore

3285m2

Propietario Interbank

Uso actual Sede cultural del banco interbank

LINEA DE TIEMPO

1534-2020

1909 1534

Propietario Eduardo Gonzales de Orbegozo Se le concede un solar a Pedro Gonzales.

después Poco este vende la mitad al conquistador Francisco de Fuentes

1928 1987 2020

Incorporo una fachada de orden jonico y ventanas de madera

Propietario Interbank y residen los restos del marizcal

Uso cultural y turistico

LIBERTAD TRUJILLO

CASA DEL MARISCAL LUIS

EJE COMERCIAL (CCM)

COMERCIO DE BORDE (CB)

SERVICIOS - COMERCIO ESPACIALIZADO (M:CC - RDM)

EJE CÍVICO/ADMINISTRATIVO - CULTURAL (OU: CAC)

RECREACIÓN (PZm - RP)

(RDA - CS)

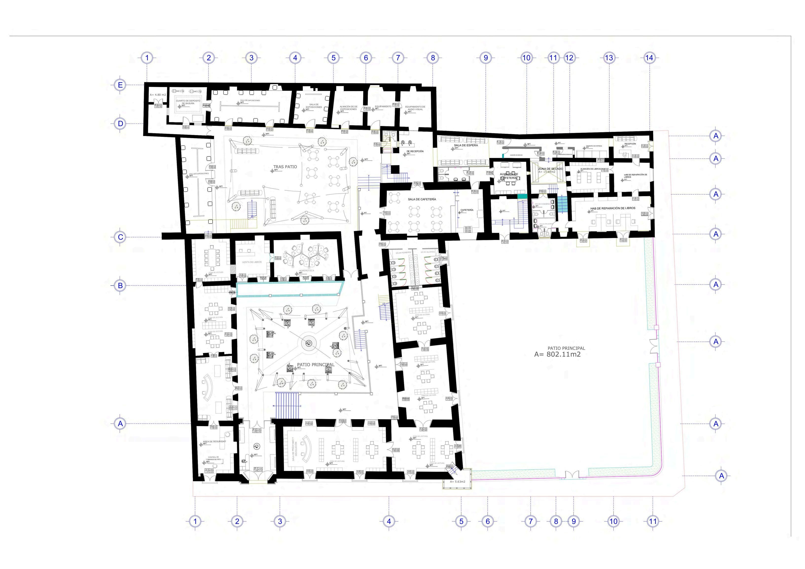
La Casa Orbegoso, un monumento histórico de incalculable valor cultural, será objeto de un ambicioso proyecto de intervención para su adaptación como biblioteca municipal. Este proyecto tiene como finalidad preservar la riqueza arquitectónica de la casa mientras se transforma en un espacio dinámico y multifuncional que responda a las necesidades contemporáneas delacomunidad.

El nuevo diseño contempla la creación de acogedoras zonas de lectura que invitan al estudio y la reflexión, áreas de exposición dedicadas a la historia local y nacional, así como espacios especializados para la reparación y conservación de libros. Estos esfuerzos no solo revitalizarán la estructura física del edificio, sino que también fomentarán la educación y el acceso a la cultura.

Con esta intervención, la Casa Orbegoso se convertirá en un núcleo de conocimiento y actividad cultural, reforzando su legado histórico y asegurandosurelevanciaparalasfuturasgeneraciones.

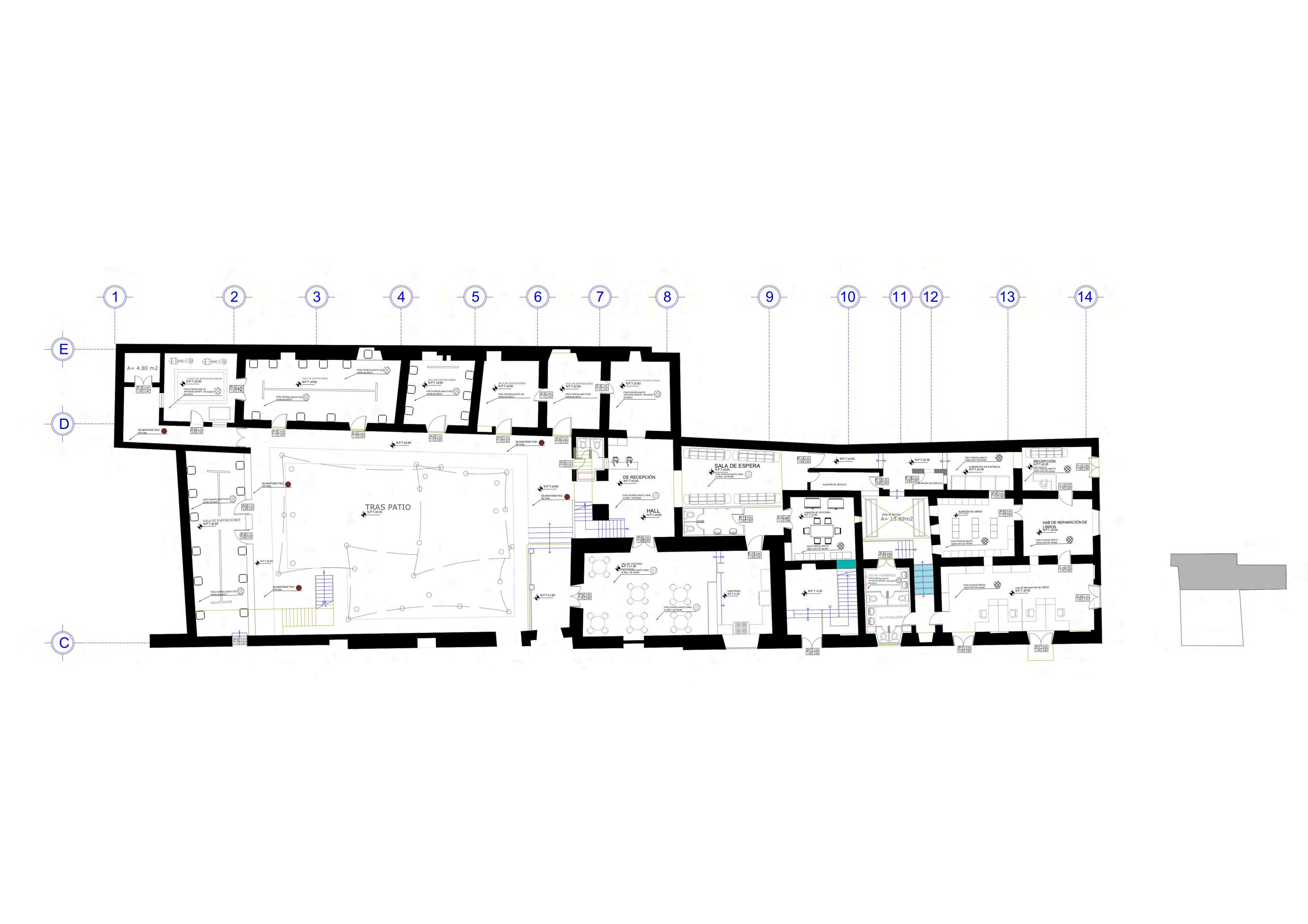
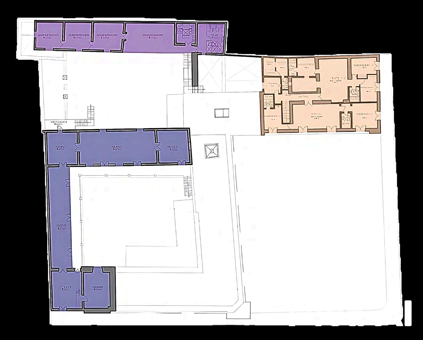
PATIO PRINCIPAL

PRIMERA PLANTA

INGRESO PRINCIPAL

LEYENDA

Antes: Cámaras

Ahora: Galerías

Sala- Cuadra Zaguán Patio principal y traspatio Corredor

SALONES PRINCIPALES

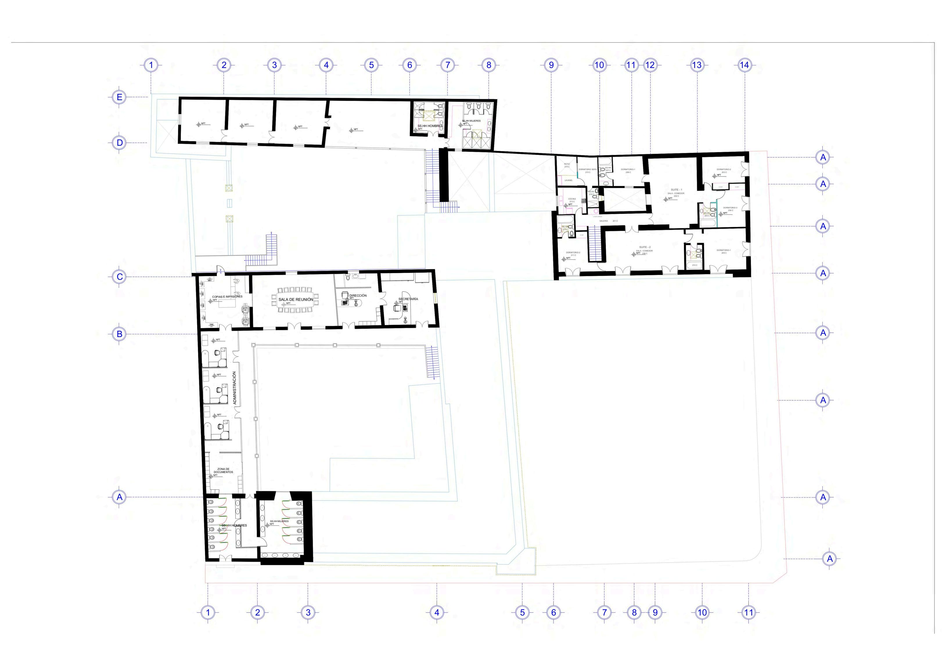
LEYENDA

Área de Servicio

Galerías Administración

Área de Servicio

Plazuela Orbegoso

Galerías

Antes: Tras cámaras

Ahora: Galerías

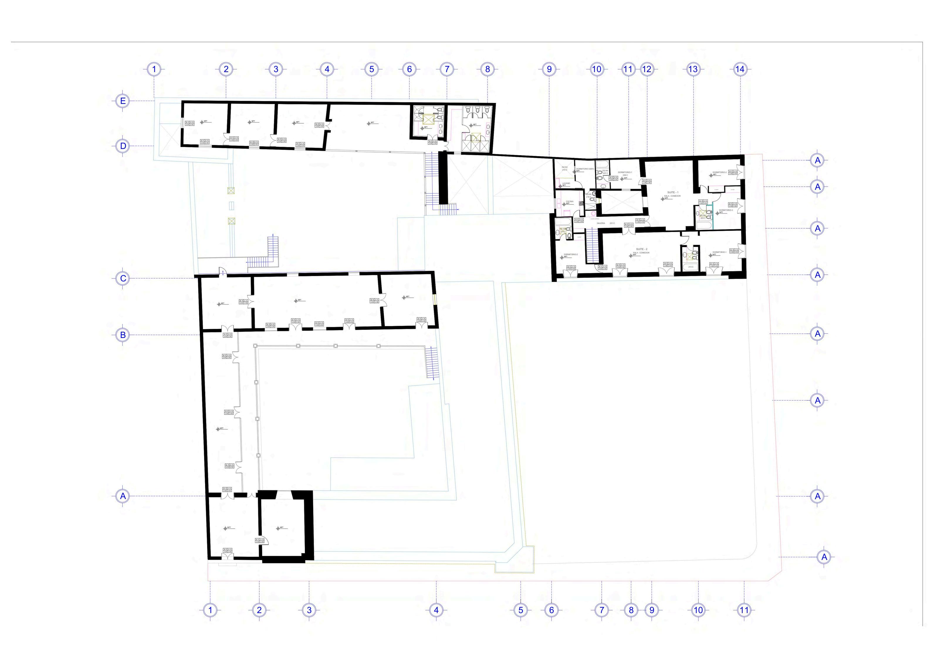
SEGUNDA PLANTA

ZONIFICACION

PRIMERA PLANTA
SEGUNDA PLANTA

CORTES Y ELVACIONES

Turn static files into dynamic content formats.

Create a flipbook
Issuu converts static files into: digital portfolios, online yearbooks, online catalogs, digital photo albums and more. Sign up and create your flipbook.