AVI_Quals_2026

Page 1


Aviation Design

LEO A DALY is an internationally recognized, award-winning firm, which is consistently ranked among the top design firms in the world.
Over 70 years of Aviation experience provides 21st century solutions to enhance safety, sustainability, convenience, & comfort for tomorrow’s traveler. Aviation Practice

Over the past 70 years, LEO A DALY has been a leading designer of passenger terminals, air traffic control towers and security operations worldwide. Collectively, the firm has designed every type of airport facility – from small general aviation terminals, hangars, and aprons to state-of-the-art large hub terminals, rental car facilities, airport parking garages, air traffic control towers, FBOs, airline operations facilities, and a complete array of support facilities.

Significant projects from the firm include the Miami International Airport (MIA) North Terminal Development A-B Infill project, designing the iconic new Louis Armstrong New Orleans International Airport (MSY) North Terminal, transforming and expanding Cleveland Hopkins International Airport (CLE) Facade,Ticketing Hall and Master Plan, renovating Tom Bradley International Terminal at LAX, and leading the design team for Ronald Reagan Washington National Airport (DCA) North Terminal.

The firm’s projects respond strategically to the complex needs of modern airports, from the creation of an iconic “first impression” for travelers, to a safe and convenient passenger experience, to the integration of technology, to the operational efficiency of carriers. Our projects transform regions, brand cities, revitalize economies and create a meaningful experience for every passenger on life’s journey.

LOUIS ARMSTRONG NEW ORLEANS INTERNATIONAL AIRPORT (MSY) TERMINAL REPLACEMENT
We believe when function informs design, exceptional airport environments will emerge.

Airports are an amazing form of infrastructure–technologically challenging, crafted to serve many different users, and reflecting a community’s aspirations. To manage this process takes an experienced hand.

Terminal Design

We are connectors of people and places. Our wholesystem understanding gives LEO A DALY a unique strength when orchestrating the complex mix of operations that make an airport work.

Terminal facilities are the important link between passengers and aircraft. Accommodating increased passenger capacity impacts all terminal areas, from ticketing and baggage handling to gates and concourse width. Advancements in aircraft design, security, and concessions fuel the need for continued renovations and refinement in terminal design.

We work with clients to create terminals that maximize passenger convenience, improve safety and flow in security areas, and provide advanced, profitable solutions for our airports and airlines alike. Consistently at the forefront of designing efficient, enduring air travel environments, we’re proud of our 70 years in the industry and to be part of enhancing the travel experience for tomorrow’s passenger.

As an industry leader in terminal design, we:

• Designed the first boarding lounges and gates to accommodate the Airbus A380 super-wide body aircraft at the Los Angeles International Airport.

• Pioneered the use of Common Use Terminal Equipment (CUTE) to improve the passenger experience and significantly reduce terminal staffing.

• Optimize concessions to provide amenities for passengers and increase revenue for operations.

• Improve security planning and layout for enhanced flow and collaborate with TSA, FAA, airport authorities and airlines to support the highest security design standards.

Our specialized expertise areas include:

• Baggage claim

• Baggage handling systems

• Club rooms/lounges

• Communication and display systems

• Concessions design

• Concourses

• Hold rooms

• Interior and graphic design

• Mechanical/Electrical/HVAC/Fire protection systems

• Tenant improvements

• Ticketing

The best terminals maximize passenger convenience, improve safety and flow in security areas and provide advances, profitable solutions for airports and airlines alike.

Air Traffic Control Towers (ATCT) and Terminal Radar Approach Control (TRACON)

All airport facilities are important to operations, but none is as critical as the air traffic control tower. As the most visible feature of an airport, towers not only make an architectural statement, but serve as the most effective tool in ensuring the safety of airport workers, passengers, airline employees and surrounding businesses and homes.

Control tower design is a significant specialty of our aviation team, with more than 300 completed tower projects at commercial and regional airports and military installations. We have tower experience in all airport types–from small general-aviation airports to the world’s busiest hubs, to military facilities nationwide.

To create the most efficient, effective and safe towers possible, we have consulted with the Federal Aviation Administration for more than 40 years, developing, modifying and site adapting many FAA air traffic control standards in place today.

Our tower studies include:

• Building Code Analysis

• Structural – seismic/wind/ASDE

• Engineering – mechanical/electrical/acoustical

• Siting

• Energy

• Short Circuit Analysis

• Protective Devices Coordination

• Progressive collapse and blast resistance

Additional miscellaneous tower design services include:

• Construction consultation

• Shop drawing review

• ASDE – 3 & X modifications

• Microwave path/surveys

• Construction cost estimating

• Renderings

• Computer animation

• Computer modeling

• Programming

• Site analysis

• Airspace studies

• Life cycle costing

• Construction observation

• Environmental engineering

• Project models

• Vulnerability and threat assessment

• Anti-terrorist and force protection design

• NAVAIDS

• Radio/communications equipment

• Design-Build

• Building Information Modeling (BIM)

Palm Springs International Airport includes a 10,000-SF, 150-kW photo-voltaic system to generate electricity, which is fed back into the electrical grid to offer power used to run the facility and save approximately 310,00 kW hours annually.

With more than 300 control tower projects completed, control tower design is a significant specialty of our team.

Ensuring safety and security of the traveling public and airport personnel

When it comes to traveler and employee security, we make it our primary focus to create systems that maintain passenger and worker safety at all times. Compliance with security guidelines and standards goes hand-in-hand with traveler and airport personnel wellbeing.

Additional Locations: Guam

Saipan

Kwajalein

Johnson Atoll

Midway Island

Pago Pago

San Juan

St. Thomas, Virgin Islands

St. Croix, Virgin Islands

SECURITY INNOVATIONS & STANDARDS

Not only has the team provided technical support to facilities planning, but they have streamlined processes to get the job done more effectively. We are very appreciative of LEO A DALY’s outstanding support.

In partnership with TSA, FAA, airport authorities, airlines and various regulatory agencies, LEO A DALY has a proven track record of advancing security infrastructure and protocols for the nation:

Including:

• Published standards for security screening checkpoints across the United States, in partnership with Boeing.

• Led Federal implementation of explosives detection scanning systems for checked baggage.

• In par tnership with Unisys, implemented the IT infrastructure for the Federal Security Directors network across U.S. airports.

LEO A DALY Security-related work with Boeing and TSA
Missle Range

Awareness. Accountability. New experiences.

Our influence on the natural environment reflects our commitment to design excellence.

We serve as champions of sustainable design practices and are signatories of industryleading sustainability commitments. Together, we can build a sustainable future.

Our commitment to design excellence.

The 2030 Commitment aims to transform the practice of architecture to respond to the climate crisis in a way that is holistic, firm-wide, project-based, and data-driven. Signatories have committed to transform their practices to deliver carbon neutral buildings by 2030.

The Structural Engineers 2050 Commitment Program and was developed in response to the SE 2050 Challenge issued in 2019 by the Carbon Leadership Forum (CLF) and the Structural Engineering Institute (SEI). This comprehensive program has been designated to ensure substantiative embodied carbon reductions in the design and construction of structural systems by the collective structural engineering profession all in the name of achieving zero net carbon structures by 2050.

The AIA Materials Pledge intent is to inspire a shift in how the industry evaluates the products and finishes specified on a daily basis. Participants commit to five overarching statements that will lead to more intentional product specifications across their portfolios over time.

Sustainability Case Study

Newark Liberty International Airport (EWR) Terminal A Study and Design Concept

LEO A DALY conducted a long-term sustainability study at EWR which resulted in the “Integrated Sustainable Design & Strategies” guide for future project development at the airport.

Through comprehensive building performance energy modeling and an integrated design process, site-wide sustainability goals were identified and high-performance building concepts were developed for the facade and mechanical systems. Life-cycle costing was also developed, incorporating the potential future costs associated with carbon emissions.

5 Pillars of our Sustainable Design Practice

HIGH PERFORMANCE DESIGN

Using experience, data and analyses, we uncover and share information so owners and operators can make informed decisions for their projects. We have the team, technology and the tools to help our clients determine and achieve goals for efficient building operations, maintenance and occupant wellbeing.

RESPONSIBLE MATERIALS

Using materials responsibly has always been integral to our practice. We continually work with our clients to achieve their goals by selecting sustainable materials and energy efficient systems and designing healthy indoor environments.

DECARBONIZATION

We help clients explore and manage embodied, operational and transportation carbon emissions. While energy efficiency and clean energy are still important parts of the decarbonization conversation, there is more to consider and address as we work to enhance the built environment. Our experienced professionals provide, measure and evaluate a range of carbon-reducing and carbon-free options that align with clients’ project and operational goals.

WELLBEING

LEO A DALY is a part of the AIA 2030 Accord reporting on sustainable progress and committed to working towards a Carbon Neutral built environment.

POST-OCCUPANCY EVALUATION

This critical step in our integrated design process captures realtime performance data linked to the implementation of design decisions and solutions. Using defined research methodologies, we work with owners to gather operational data and user feedback from building occupants after construction is complete and business operations are underway.

Meet our Aviation Leadership

Multiple voices, numerous perspectives and true talents enrich our vast portfolio of work. The richness in artistry and collaboration is woven into the core of our practice, guided by visionaries whose leadership inspires great design.

Avery Sarden

AIA, NCARB, LEED AP BD+C

Enrique Greenwell

INTL. ASSOC. AIA, LEED AP, IDSA

NATIONAL AVIATION DIRECTOR INOgarro@leoadaly.com

VP, DIRECTOR, DESIGN BUILD AMSarden@leoadaly.com

DIRECTOR OF DESIGN EGreenwell@leoadaly.com

Ivan has 20 years of experience leading design teams and delivering complex projects bringing a strategic, client-focused approach to his role as National Aviation Director. He is responsible for shaping the strategic direction of the firm’s aviation practice, fostering design excellence, and aligning project delivery with client goals. His portfolio spans over $300 million in built work, including award-winning projects across the U.S. and internationally. Ivan is known for his ability to align design vision with operational goals, foster collaboration across disciplines, and guide teams through all phases of project delivery. His leadership is grounded in a deep understanding of design excellence, stakeholder engagement, and the business of architecture.

Avery has over 44 years of experience leading complex projects with multiple stakeholders and numerous logistical challenges. He reviews all designs, plans, specifications and reports prior to issuance at all phases of the project. His aviation proficiency is based on his long and deep experience in the industry, having completed assignments at more than a dozen airports, as well as multiple projects for Delta Air Lines and several military aviation facilities. His superior skills in QA/QC are a direct result of his many years of directing successful projects from early planning through to ribbon-cutting.

Enrique has over 29 years of experience as a skilled designer, having successfully completed numerous projects both nationally and internationally. His expertise spans across various sectors, including aviation projects at DFW, SFO, and JFK, as well as mission critical, commercial, hospitality, and healthcare facilities. His exceptional work has garnered multiple design awards and gained recognition in esteemed publications across the US, Mexico, China, and the Middle East. Enrique’s approach to each project is driven by a deep sense of connection to the site and its surroundings, allowing him to incorporate historical and cultural elements of the region seamlessly into his design concepts.

Ivan O’Garro AIA, NCARB

Rey Funes

IIDA, NCIDQ, LEED AP

PROJECT DIRECTOR, AVIATION RPFunes@leoadaly.com

Shane Keplinger

AIA, NCARB, LEED AP BECxP

ASSOCIATE, SR ARCHITECT SKKeplinger@leoadaly.com

Kim Cowman

PE, LEED AP, HFDI

VP, NATIONAL DIRECTOR ENGINEERING & SUSTAINABILITY KRCowman@leoadaly.com

Fernando Mingo RA

SR PROJECT MANAGER, AVIATION FAMingo@leoadaly.com

Emily Michalek Associate IIDA

INTERIOR DESIGNER, AVIATION EGMichalek@leoadaly.com

Jaime Sobrino

FAIA, LEED AP, PMP

VP, DIRECTOR OF OPERATIONS JESobrino@leoadaly.com

Kate Henry PE

PROJECT MANAGER, AVIATION LKHenry@leoadaly.com

Nick Lassek PE, CBCP

MECHANICAL ENGINEER HIGH PERFORMANCE DESIGN NALassek@leoadaly.com

Client Focused

LEO A DALY’s Aviation practice is known for its ability to execute complex airport projects. Some of our clients include:

American Airlines

Chattanooga Metropolitan Airport (CHA)

Cleveland Hopkins International Airport (CLE)

Dallas/Fort Worth International Airport (DFW)

Delta Air Lines

Denver International Airport (DEN)

Federal Aviation Administration (FAA)

George Bush Intercontinental/Houston Airport (IAH)

Hartsfield Jackson Atlanta International Airport (ATL)

Honolulu International Airport (HON)

Jackson Municipal Airport Authority (JMAA)

John F. Kennedy International Airport (JFK)

John Wayne Airport (SNA)

Los Angeles International Airport (LAX)

Metropolitan Washington Airport Authority (MWAA)

Miami International Airport (MIA)*

Minneapolis International Airport (MSP)

Myrtle Beach International Airport (MYR)

Louis Armstrong New Orleans Intl. Airport (MSY)

Newark Liberty International Airport (EWR)

Omaha Airport Authority (OMA)

Palm Springs International Airport (PSP)

Philadelphia International Airport (PHL)

Phoenix-Mesa Gateway Airport (AZA)

Richmond International Airport (RIC

Ronald Reagan Washington National Airport (DCA)

Sarasota-Bradenton International Airport (SRQ)

Transportation Security Administration (TSA)

Tocumen International Airport (PTY)

Tucson International Airport (TUS)

United Airlines

Qantas Airlines

William P. Hobby Airport (HOU)

Wilkes-Barre/Scranton International Airport (AVP)

>TERMINALS

Cleveland Hopkins International Airport, Master Plan Study

Akron Canton Airport Terminal Modernization

Louis Armstrong New Orleans International Airport Terminal Replacement

United Airlines In-Flight Lounge Renovation

Ft. Wayne Airport Terminal Master Plan Study

Cleveland Hopkins International Airport, Exterior Facade and Ticketing Hall Rehab

DFW TRIP Program On Call

Miami International Airport North Terminal Development A-B Infill

Ronald Reagan Washington National Airport Terminal & ATCT

William P. Hobby Airport North Terminal Modifications

LAWA Tom Bradley International Terminal Renovation

100 + years

Integrated Design Elevated Experiences

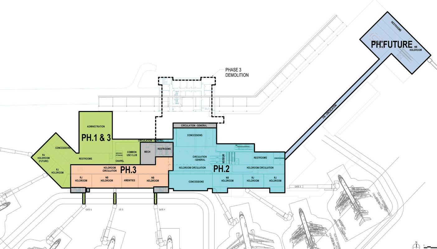
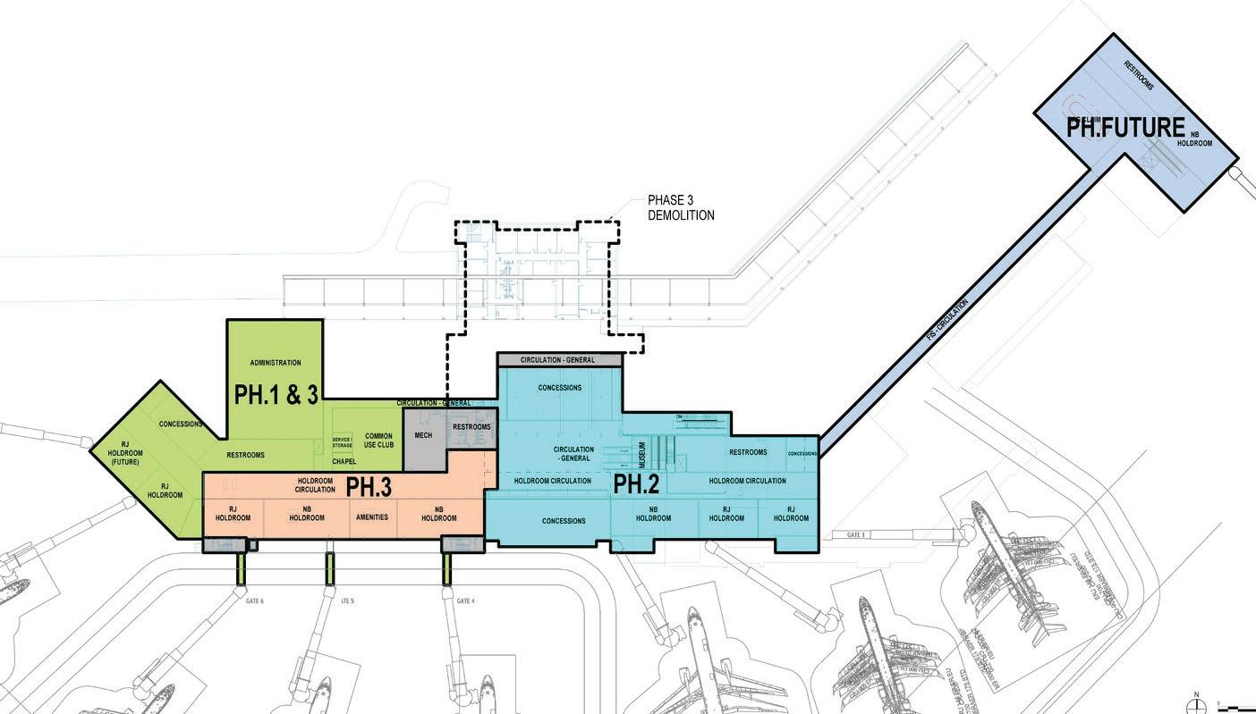
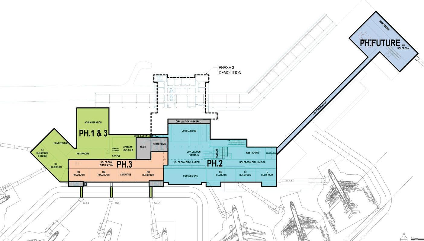
Louis Armstrong New Orleans International Airport (MSY) North Terminal

KENNER, LOUISIANA

OWNER

New Orleans Aviation Board

SIZE

972,000 SF; 35 gates

COST

$650,000,000 (construction cost)

$1,000,000,000 (program value)

SCOPE

Master Planning, Concept Design, Architectural Design, Construction Administration

COMPLETION DATE

November 2019

Conceived as a major economic driver for New Orleans postKatrina, the new North Terminal at Louis Armstrong New Orleans International Airport (MSY) has been called “the most transformative project for New Orleans since the Superdome” by Mayor Landrieu. The 972,000-SF terminal replaces an outdated, inefficient terminal with a state-of-the-art 35-gate (expandable to 42 gates) international gateway serving five million passengers a year. Convenient access, intuitive wayfinding, spacious departure and arrival halls and increased international capacity position the airport and the city for economic growth.

Design for the terminal was developed and completed by the Crescent City Aviation Team (CCAT), a joint venture (JV) of LEO A DALY and Atkins, based on an initial concept by Pelli Clarke Pelli. Additional design services were provided by estudio Architecture. CCAT led the design of the airport terminal, its three concourses, concession program, two parking garages, outdoor parking lot, airside aprons, and landside roadway systems. The project was built by a joint venture of Hunt-Gibbs-Boh-Metro. WSP served as the Program Manager.

Akron-Canton Airport Terminal Modernization

NORTH CANTON, OHIO

OWNER

Akron-Canton Airport

SIZE

50,000 SF

Five-gate addition

COST

$34,000,000

SCOPE

Terminal Planning, Design, Construction Documentation, FAA Coordination

COMPLETION

November 2020

Akron-Canton Regional Airport turned to LEO A DALY to help replace their 54-year old gate facilities. Originally designed for DC-6 aircraft, the ground level hold rooms are being replaced with a light-filled and modern two-story concourse which provides a higher level of service and enhanced passenger experience.

The new 50,000 SF, five-gate addition can accommodate seventypassenger regional jets to 737-800 aircraft. Passenger amenities such as mobile-friendly work stations, a service animal relief area, additional restrooms, a lactation room, a new business center and a children’s play area ease traveler’s journeys.

Revenue is being enhanced with the addition of a new 3,000 SF food and beverage concession in a two-story space filled with full height windows with views to the airfield. New and refurbished passenger boarding bridges improve operations and provide weather-protected boarding for all passengers. The design provides for a shelter-in-place area for passenger protection during severe weather events.

To enhance aircraft movement at the terminal area, nearly 20,000 square yards of new concrete pavement were installed.

Miami International Airport North Terminal Development

MIAMI, FLORIDA

OWNER

Miami Dade County

SIZE

505,000 SF

COST

$360,000,000 (construction value)

SCOPE

Architecture and Engineering Design Service, Construction Documents, Construction Contract Administration

COMPLETION

July 2011

AWARDS

2011 Honor Award, National Terrazzo and Mosaic Association

2013 Global Best Project-Airports/Ports and Award of Merit-Rail, Engineering-News Record

As part of a $5.4 billion Capital Improvement Program, LEO A DALY served as prime architect for major renovations to Miami International Airport’s North Terminal. Adapting to a series of project changes while still satisfying client, tenant, and passenger needs, without interruptions of service, this project is a study in flexibility and successful change management.

The terminal’s north facade was removed and the existing adjacent space was remodeled to add 500,000 SF, accommodating a new baggage system, support offices, five wide body passenger hold rooms, circulation areas, and the world’s only rooftop automated people mover.

The project’s scope was later divided into pre-demolition, tenant, and utility relocation packages. Due to successful completion of larger projects for the client and Dade-County Aviation Department, LEO A DALY handled a lion’s share of additional projects, providing a single source of responsibility.

The team quickly adapted and restructured to deliver solutions that were on time and within budget. Recognizing the inevitable ever-changing conditions of major aviation projects, our experienced aviation specialists diligently stayed informed of system and facility changes as Miami International Airport remained operational.

DoubleTree by Hilton

Newark Airport Hotel

NEWARK, NEW JERSEY

OWNER Pyramid

SIZE

320-key hotel

COST

$3,500,000

SCOPE

Interior Design

COMPLETION

July 2019

The transformation of the first floor of the DoubleTree Newark Airport Hotel changed the entire entry experience and touched the lobby, meetings rooms, atrium, restaurant, bar, grab-n-go and fitness center. The design was inspired by the property’s proximity to the Newark Airport and the travel experience.

Think of a classic business traveler. The design was crafted with a tailored, nostalgic theme in mind. The feel of 1950’s menswear and suit fabrics can be seen throughout, with strong plaids and deep colors featured.

The floor plan was updated, bringing the bar out of an enclosed area and into the open to generate more activity, and in hand, more revenue. Dark wood cabanas were added to create an intimate escape from the expansive atrium’s hustle and bustle. Like the privacy of an airport club, these spaces give guests a place to get away for a cocktail and conversation. Flowing drapery and soft furniture soften the sounds that once echoed throughout a large atrium.

William P. Hobby Airport Terminal Modifications

HOUSTON, TEXAS

OWNER

Houston Airport System

SIZE

785,000 SF

COST

$263,000,000 (construction value)

SCOPE

Planning Study, Conceptual Plans, Programming, Architectural and Interior Design, Airfield Planning and Design, Contract Documentations

COMPLETION

September 2011

AWARDS

ACI 2008 Airport Service Quality Awards, Fourth Best Airports by Region- North America

ACI 2008 Airport Service Quality Awards, Fourth Best Airport by Size- 5-15 Million Passenger

As prime designer and architect of record, LEO A DALY upgraded and expanded William P. Hobby Airport. The 440,000 SF terminal, built in 1950, transformed into a 785,000 SF regional airport that better prepares Houston and Southwest Airlines for contemporary air-passenger service.

The project incorporates a new 25-gate central concourse for Southwest Airlines, apron expansions, taxiway relocation, veryhigh-frequency omnidirectional range facility (VOR) relocation to the parking garage roof, retail concessions design, standards package, renovation, expansion of ticketing facilities and baggage claim facilities, and airline tenant improvements.

Unique Challenges/Lessons Learned

The modernization and redevelopment’s most pressing issue, was development of a phased temporary and permanent relocation plan for all carriers throughout the course of the project. Initial energies focused on facility condition reports to establish and verify the airport’s anticipated needs and appropriate actions. They resulted in a phasing implementation plan that facilitated construction without disrupting airport operations.

Another prominent aspect of the HOU facelift is its relocation and expansion of concession areas. Before the project started, the airport’s few concessions were located mostly on its nonsecure side. Passenger profile studies determined that the optimal location for the majority of the concessions was in the concourse beyond the security checkpoint. As a result, four different concession core areas were incorporated into the new concourse. The expanded and relocated concessions have significantly increased HOU’s revenue per passenger.

“The

remodeling has a positive ripple effect. The customers enjoy the new facility, so passenger numbers go up. The airlines notice that trend and as a result, start to bring in even more air service and the economic engine of HOU is taken into an even higher gear.”

Expanded and relocated concessions have significantly increased HOU’s revenue. Two years after completion of the central concourse, retail sales increased and beverage sales by 330 percent.

DFW TRIP Program On-Call

DALLAS, TEXAS

OWNER

DFW International Airport

DMJM/EJES JV (client)

SIZE

125,000 SF (Terminal E)

COST

$2,600,000,000 (program)

$300,000,000 (construction Terminal E)

$19,000,000 (construction Terminal B-D connector)

SCOPE Planning and Development through Construction

Administration

COMPLETION

September 2015 (Terminal E)

September 2012 (Terminal B-D connector)

LEO A DALY was part of the development team, as on-call architectural consultant, for the DFW TRIP Program, or Terminal Renewal & Improvement Program. The effort brought high-value improvements to operations, passenger processing and aesthetic appearance at DFW.

TRIP’s Terminal B-to-D connector project joined three Terminal B domestic gates to Terminal D’s Federal Inspection Services (FIS), allowing them to operate as either domestic or international. We also rejuvenated the interiors to create a harmonious look with Terminals B and D.

Terminal E’s renovation began with reactivation of its “satellite” terminal, and features enhanced tunnel connections, a newly designed airline common club and expanded Terminal E ticketing and baggage claim facilities. The renovation also included updated HVAC and electrical systems, updated information technology, new interior finishes, and enhanced entries.

United Airlines In-flight Lounge Renovation

LOS ANGELES, CALIFORNIA

OWNER

United Airlines

SIZE

13,384 SF COST

$3,500,000

United Airlines required an upgraded base for their regional Inflight staff, pilots, and flight attendants. LEO A DALY provided architectural and interior design services to fully renovate the existing United Air Lines Inflight Domicile space. The previous domicile was a fully enclosed space with outdated fixtures, unorganized layouts, and without any natural light. The newly renovated space included windows with ample natural light, new light fixtures, private offices, and lounge areas.

With limited real estate at Los Angeles International Airport, the domicile needed to remain operational to support the 365-day operations. The project was divided into two phases; providing temporary accommodation to Inflight staff while construction occurred with each phase.

Prior to phase 1, enabling work was performed. This included minor modifications to the existing rooms on the south area, installation of temporary work stations, additional power, and surface-mounted data outlets.

Phase 1 consisted of the demolition and construction of the north area. Employees were relocated to temporary spaces on the south side. The north area comprised of reception area, staff lounge area, briefing rooms, conference rooms, private offices, coffee station, restrooms, and office supply rooms.

Phase 2 consisted of the demolition and construction of the existing south side. Scope of work included common areas, conference rooms, breakroom, and sleeping room.

Cleveland Hopkins International Airport, Exterior Facade and Ticketing Hall Rehabilitation

CLEVELAND, OHIO

OWNER

City of Cleveland – Department of Port Control

SIZE

60,000 SF

COST

$22,613,700

SCOPE

Pre-design Planning and Architectural Design Services

COMPLETION

June 2016

The rehabilitation and modernization of the exterior facade and the ticketing hall is designed to provide an improved, efficient, and user-friendly passenger experience at Cleveland Hopkins International. Additionally, the project will improve terminal safety, sustainability and security.

Approximately 900 lineal feet of the airport’s exterior facade will be modernized and upgraded at both the upper ticketing level and lower baggage level. The project provides enhancements to the exterior and vestibule lighting; canopy extensions at the terminal entry vestibules and passenger loading and unloading areas along the roadway curb; canopy fascia and ceiling and column cover upgrades; new doorway vestibules, electronic media locations; security CCTV re-installation; replacement of the exterior front window system; and recommendations for terminal curb signage support locations.

The ticketing hall rehabilitation includes installation of new terrazzo flooring throughout the ticketing and security checkpoint areas, ceiling and lighting design improvements, and replacement of wall and column finishes.

“It was an enormous commitment among all parties to get everything done on time. We wanted to get everything accomplished with time to spare. We have a significantly improved look.”
Fred Szabo Airport Interim Director

Cleveland Hopkins International Airport Master Plan Study

CLEVELAND, OHIO

OWNER

City of Cleveland – Department of Port Control

COST

$354,000 (study)

SCOPE

Master Plan Study

COMPLETION

June 2021

In association with RS&H, Inc., LEO A DALY provided aviation planning expertise for the terminal portion of a 20-year Master Plan Study for Cleveland Hopkins International Airport. An evaluation of existing terminal facilities, parts of which are more than sixty years old, was conducted to identify deficiencies and opportunities for improvement. Based on projections of future facility requirements, LEO A DALY developed six concepts for terminal development. Working with airport stakeholders, these were narrowed down to three concepts for detailed evaluation. The evaluations were divided into seven metrics: vision/passenger experience, operational efficiency, flexibility, cost, non-aeronautical revenue potential, environmental impact and constructability/ implementation complexity.

Based on the evaluations and discussions with stakeholders, a recommended scheme was selected and further developed to illustrate a plan for phased terminal redevelopment and expansion within financial analysis constraints.

The ultimate planning horizon development plan for 13.5 million annual passengers included: new and expanded concourses accommodating 58 gates, increasing the width and depth of the ticketing hall, consolidating three security screening checkpoints into one, new Federal Inspection Service facilities, expanded baggage handling systems, improved passenger circulation, opportunities for improved passenger amenities and opportunities for improved concession development.

Ft. Wayne / Allen County Airport Terminal Master Plan Study

FORT WAYNE, INDIANA

OWNER

Ft. Wayne-Allen County Airport Authority

SIZE

50,000 SF

COST

$300,000 (study)

SCOPE Master Plan Study

COMPLETION October 2017

The Fort Wayne/Allen County Airport engaged LEO A DALY to provide a detailed and implementable path for development for the terminal and landside areas based upon their updated 2013 Master Plan. The effort looked at both industry developments that had occurred since the last major terminal update in 1992, in addition to organic growth and significant passenger increases as a result of Low Cost Carrier Allegiant’s entry into the market.

The team studied these impacts and space needs on the concessions, security screening, ticketing, outbound baggage, and passenger hold rooms. Areas that were of lesser concern, such as the bag claim, were identified, thus allowing the airport to prioritize investment where the need was greatest.

In conjunction with this effort; a condition assessment was prepared for the major building systems to categorize and anticipate replacement schedules and provide the ability to respond to future expansion.

The selected option would improve passenger service and concession revenue by locating all passengers up on the second level and provide a consistent experience by providing boarding bridges to all aircraft.

Options to accommodate a Federal Inspection Services (FIS) operation for international traffic, were also studied. With a preferred option identified, a financial plan was assembled analyzing debt loads, funding sources, anticipated revenue enhancements. This was integrated with a proposed short midand long-term development scenario.

Delta Air Lines / AeroMexico Joint Maintenance Facility

QUERETARO, MEXICO

OWNER

Delta Air Lines / AeroMexico

SIZE

500,000 SF

COST

$32,000,000

SCOPE

Programming, Concept Design, Design Review, Construction Oversight

COMPLETION

January 2015

LEO A DALY was selected to provide concept designs and programming for Delta Air Lines and AeroMexico’s new joint maintenance facility in Queretaro, Mexico. We teamed up with contractor GMI to create an innovative, cost-effective, and lowmaintenance design for the 500,000-square-foot joint facility. Using GMI’s innovative hub-and-spoke space frame system, designed for clear spans, construction costs were kept low and future upkeep to a minimum. The three-hangar concept provides for up to nine narrow-body aircraft positions, or four larger, widebody aircraft positions.

One of the largest design-build projects in Mexico, the development includes three hangars, new landside access service drives and loading docks, support shops and mechanical rooms, personnel support spaces, a recreation building, and an executive/ administrative suite. In addition to programming and concept design, the firm incorporated numerous sustainable design strategies, including photovoltaic solar panels that generate 75 percent of the facility’s power, daylight harvesting, rainwater capture systems for gray-water reuse, aircraft-wash wastewater recycling, and the use of locally manufactured materials where possible.

LEO A DALY

MWAA Washington Dulles International Airport Police Range and Training Facility

DULLES AIRPORT, VIRGINIA

OWNER

Metropolitan Washington Airports Authority

SIZE

7,200 SF

COST

Confidential

SCOPE

Architecture, Engineering

COMPLETION

March 2017

The Metropolitan Washington Airports Authority (MWAA)facility provides the tactical and classroom training facilities for the multi-site airport police force and two other multi-jurisdictional users near Washington DC. The project includes a 7,200 SF classroom training building for use by both the Authority and Arlington County police and sheriff forces that contains:

• two instructor offices

• two armory rooms

• two general purpose classrooms

• one defensive tactics training area

• one outdoor gun cleaning area

• kitchenette

• restrooms

• shower and locker rooms

• a climate controlled range material and ammunition storage facility

• a defensive tactics training space

• armorer’s spaces

• two 50-yard, 18 lane ranges

• one 300-yard, 11 lane rifle range, and

• the relocation of 14 explosive storage containers and the site development for 75 cars and associated road improvements.

The range, which is operated year round to meet the needs of the department, was designed to achieve acoustical compliance with MWAA’s Design Manual 2010 standards for facilities of this type.

The 26.4 acre site sits within a unique wildlife-rich environment paying careful attention to mitigate migratory patterns and environment of local wildlife and noise sensitivity to surrounding areas. The project additionally planned for a future third 50- yard range, expansion of the 300-yard range to 500 yards with engineered berms as well as potential development of additional training structures, including a shoot house and gas house for tactical training.

Phoenix-Mesa Gateway Airport Air Traffic Control Tower

MESA, ARIZONA

OWNER

Phoenix-Mesa Gateway Airport Authority

SIZE

194 foot tall tower

500 GSF control cab

COST

$26,900,000

SCOPE

Architecture, Engineering, FAA and NAVAIDS Equipment Selections/Procurement Specifications, and Independent Cost Estimation

COMPLETION DATE

March 2022

Partially funded under the FAA Contract Tower Program, this new ATCT replaces the a 1968-vintage tower originally constructed to serve the former Williams Air Force base airfield.

The 194-foot tall ATCT includes a 500 GSF control cab with a 164feet AGL controller eye level, suitable for eight controller positions. The lower tower shaft portions are unoccupied, accommodating vertical circulation (egress stair tower and elevator) and various mechanical, electrical, communications, fire protection, and NAVAIDS utility risers. The upper tower shaft features a 2-story expanded occupied ring that houses various electronic and computer equipment spaces, a staff breakroom, meeting/training room, air traffic manager office, restrooms, mechanical/electrical and storage spaces. The stair tower is pressurized to facilitate occupant egress while preventing smoke during a fire event.

The tower’s seismically resistant 12-sided precast concrete shaft rests on an expanded concrete mat slab in turn mounted atop an augered cast reinforced concrete pile network. Intermediate floor slab and stair construction is also of precast design, with the upper tower expanded ring construction employing steel framing with insulated metal panel cladding and high-performance insulated glazing bands. Civil site work included regrading, paving, and native Arizona sustainable xeriscape landscaping, with a fence-secured site perimeter.

Newark Liberty International AirportTerminal A Study and Design Concept

NEWARK, NEW JERSEY

OWNER

Port Authority of New York and New Jersey

SIZE

1,000,000 SF terminal

SCOPE

Planning of Alternate New Facility, Long Range Airport, Multi-Modal Transportation, Integrated Sustainable Design Strategies; Concept Design Alternatives

COMPLETION DATE

December 2011 (design)

LEO A DALY led the planning efforts for the first phase of the Terminal A Expansion and Modernization Program at Newark International Airport. Initially this program called for renovation of the existing facility and a 12-gate expansion that would saturate the capacity of the existing airfield. Due to complexity and cost it was recommended that a replacement terminal be constructed rather than moving forward with renovation.

The team then identified a potential site and performed a thorough comparative analysis of the two alternatives, with a focus on airfield utilization, customer service, cost, simplicity of construction, and flexibility for future airport growth. Analysis proved the replacement terminal to be the superior value.

Under the new terminal alternative, the team conducted planning studies to identify the best viable options for future development at the airport including:

• A 45-gate domestic terminal with much improved airfield capabilities, expanded access roadways, short and longterm parking, and an Air Train extension that would serve the terminal directly

• Partial international arrival gate capabilities and inclusion of an FIS facility

• Introduction of a post-security inter-terminal transit system

• An airport hotel conveniently connected to the terminal

• A PATH railway connection to Newark and New York City that would provide a “one seat ride”

A long-term sustainability study was conducted at EWR which resulted in the “Integrated Sustainable Design & Strategies” guide for future project development at the airport.

• Addition of a third parallel north-south runway Long term airport growth with three runways

• An “airport city” with parking facilities and a terminal that allows for future gate expansion

• Bus and taxi staging areas

• Convenient cell phone parking

The project that proceeded was a 33-gate replacement domestic unit terminal with the capacity to incorporate many of the identified options listed above. In all, 43 options were considered evaluating service, flexibility, cost and convenience.

Unique Challenges

The Port Authority of New York and New Jersey is committed to sustainable design and achieving carbon neutral operations. Through comprehensive building performance energy modeling and an integrated design process, site-wide sustainability goals were identified and high-performance building concepts were developed for the facade and mechanical systems. Life-cycle costing was also developed, incorporating the potential future costs associated with carbon emissions.

Operations Control Center

Building 2, Flight Training Simulator Bay Expansion

ATLANTA, GEORGIA

OWNER

Delta Air Lines, Inc.

SIZE

45,753 SF

COST

$10,815,105

SCOPE

Architectural Design, Programming, Interior Design, Construction Administration

COMPLETION

June 2016

To meet its mission, Delta Air Lines Flight Training required an increased training capacity beyond its existing facilities. Plus, after its purchase and notice of expected delivery date for its new fleet of aircraft had been confirmed, Delta determined that its new Flight Training facility had to be online within 12 months.

Delta retained LEO A DALY to design a four-bay expansion of one of its flight simulator buildings. The expansion included a core area dedicated to briefing and debriefing pilots and computer support areas.

The project required special attention to foundation and clearances to accommodate the fully articulated, full range of movement flight simulators. One particular aspect of the project was its redundancy systems, with full emergency back-up and tie-in to the UPS system, not just for the facility, but for the simulator itself. A full fire suppression system was also specified.

In addition to the simulators, the project included open office space for future expansion of the operations control center. The addition was designed to allow for future vertical expansion with the addition of floors four and five.

Designed and constructed under an extremely fast track schedule, the entire addition was accomplished in 9 months. The design strategy called for multiple design and construction packages: Deep foundation and pile caps package; grade beams and civil package; concrete and structural steel package; special equipment package for UPS, HVAC, and other systems; Flight Training Device procurement and installation package.

Turn static files into dynamic content formats.

Create a flipbook
Issuu converts static files into: digital portfolios, online yearbooks, online catalogs, digital photo albums and more. Sign up and create your flipbook.