portfoléo



PARCOURS habitat individuel
logement collectif
équipement
recherche
projet de fn d’études
projet personnel

![]()



PARCOURS habitat individuel
logement collectif
équipement
recherche
projet de fn d’études
projet personnel


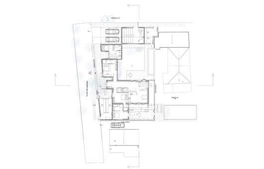
Près de l’écusson de la ville de Montpellier, se trouve une dent creuse. Le projet qui s’y implante doit loger une famille. Le projet se décompose en quatre niveaux. Un escalier central, gravitant autour du bac végétal à l’étage le plus bas, structure le projet et assure la distribution de ses différents espaces privés. Le projet s’intègre dans une thématique éco-responsable Il dispose d’un grand nombre d’ouvertures qui permettent d’assurer une ventilation en été et une pénétration maximale de la lumière en hiver. Les eaux grises sont récupérées pour subvenir aux besoins en eau non-potable. Le projet trouve son élancement dans l’élaboration de deux axes majeurs s’émancipant de toutes cloisons : un traversant, partant de l’entrée du projet et passant par les différents espaces à ce niveau, et un ascendant, partant d’un bac végétal et allant jusqu’à une ouverture zénithale trois étages plus haut. Ces axes, permettant une et une propagation optimale de la lumière , structurent les différentes fonctions à chaque étage.









L’enveloppe se compose de blocs de pierre massive. Certaines pierres subissent un façades à l’aspect mouvant. Ce matériau se marie parfaitement avec les façades des bâtiments environnants. Des solives apparentes en bois soutiennent les planchers et apportent une authenticité au projet. Ces deux matériaux à l’apparence différente mais complémentaire, brutale pour la pierre et légère pour le bois, confèrent au projet une ambiance chaleureuse . Le revêtement des murs intérieurs en pierre massive permet de marquer une continuité avec les façades.
















La réhabilitation de la maison est basée sur un programme précis, guidé par la vision utopique du projet. centralité et l’ expressivité du projet. La maison fait allusion à l’importance des lieux par le biais de la conservation de certains éléments phares, le plain-pied, les fermes, et les murs porteurs.
La création de l’extension s’est établie grâce à l’ étirement des lignes existantes et des espaces dans les pièces adjacentes de la maison, et met en place une liberté

L’objectif est d’agrandir psychologiquement et visuellement l’espace en mutualisant certains éléments de composition ; le boulodrome, l’atelier, l’allée, la salle de musique et le garage partagés créent une proximité de voisinage. Visuellement, l’atelier de peinture se transforme en vitrine d’un musée personnel et suggère un les lieux comme des espaces vécus . Il faut alors discerner une coexistence de différents occupants : des parents qui travaillent, un enfant qui grandit, un étudiant qui “cohabite”, des amis qui rendent visite et des voisins qui entourent et interviennent. Le projet peut ainsi jouer avec les rapports intérieurs / extérieurs / semi-extérieurs tout en les manipulant autour de l’idée de rapport intimité / partage. La serre bioclimatique et sa sur-ventilation nocturne, la ventilation naturelle, la végétation omniprésente et le bassin viennent apporter un confort global , qu’il soit thermique sensoriel ou psychologique . Les murs blancs recouverts de chaux représentent des écrans sur lesquels est révélé le jeu d’ombre des arbres. Dans cette intention de donner aux habitants des l’ appropriation plus instinctive. Ainsi, l’idée de partage vient s’ancrer jusque dans les murs de la maison pour y laisser une trace de l’intention principale du projet.










COUPE PAYSAGÈRE
SCHÉMATIQUE



Le projet de logement collectif trouve son empreinte dans la liaison entre les villes de Frontignan et de La Peyrade dans le sud de la France. Le programme fait face à une stratégie urbaine complexe au vu du contexte végétal , minéral et marin , et de la forme initiale de la parcelle proposée. Des lignes directrices sont tracées en réaction aux courbes et fux déjà existants, dans le but d’attirer le piéton au centre de l’îlot collectif, de le faire traverser , de l’amener vers les activités. La limite entre espace public et logement collectif

CROQUIS D’AMBIANCE






1 Couvertine
2 Acrotère béton 300mm
3 Relevé d'étacnhéité
4 Bavette 50m
5 Rail de supportage métallique
6 Gougeon de fixation
7 Tringle rideaux
8 Rideaux blancs occultants
9 Baie vitrée coulissante double vitrage
10 Espacement entre dallette 10mm
11 Dallette béton 400x400mm
L’attention portée aux seuils et aux limites est la base du projet : scénarisation des entrées de logements avec les poteaux, profondeur des murs en briques et décalages, végétation et calepinage, légère surélévation, alternance entre espaces couverts et ouverts. Grâce au découpage parcellaire, le projet abrite une diversité de logements et une multiplicité d’espaces uniques et confortables mis à distance de l’espace partagé. Sans rentrer dans l’exhaustivité, une logique de composition se met en place et se répète dans les différents appartements. Le traitement de l’espace extérieur privé est aussi un axe primordial : l’apport de terrasses et loggias a permis de faire exister une façade habitée et singulière. Spectacle des différents modes d’habiter, de s’approprier , de se montrer ou se dissimuler, la façade prend vie grâce au processus d’ adaptation mené par son utilisateur. Par ailleurs, tout en garantissant l’intimité de l’habitant, les espaces partagés permettent de favoriser et d’encourager l’ interaction sociale et le partage
12 Plot 150mm
13 Bavette 5mm
14 Relevé d'étanchéité 150mm
15 Rupteur thermique
16 Système store enrouleur
17 Lame de bois
18 Barre d'appui du volet enrouleur
19 Garde-corps inox blanc
20 Dalle béton 270mm
Le projet peut se résumer en la volonté de créer des espaces appropriables et donner l’opportunité à l’habitant de concevoir et faire vivre son espace, mais aussi ceux qu’il partage et qu’il franchit chaque jour. Ici réside tout le sens et la philosophie du vivre ensemble .
Bande noyer
22 Fourreau (acier, PVC...)
23 Brique blanche verticale linea 9001 240x120x40mm
24 Joint 6mm
25 Joint non garnis
26 Lame d'air 20mm
27 Agrafe acier galvanisé
28 Pare-pluie 2mm
29 Pare-vapeur 2mm
30 Console de support
33 Dormant

Brique blanche horizontale linéa 9001 240x120x40mm
42 Sous couche fibre de bois 5mm et parquet

Selon l’auteur Marc Augé, les « non-lieux » sont des espaces d’anonymat qui accueillent chaque jour de nombreux individus. Ce sont aussi bien les installations nécessaires à la circulation accélérée des personnes et des biens (voies rapides, échangeurs, gare, aéroports) que les moyens de transport eux- mêmes (voitures trains, trains ou avions). Le non-lieu est tout le contraire d’une demeure, d’une résidence, d’un lieu au sens commun du terme. Seul, mais semblable aux autres, l’utilisateur du non-lieu n’entretient avec celui-ci qu’une relation superfcielle.
Aujourd’hui, les repères de l’identité et le statut de l’histoire changent en même temps que l’organisation de l’espace terrestre. Marc Augé ouvre de nouvelles perspectives en introduisant le terme d’« ethnologie de la solitude ». Le projet « Bons-Lieux » diversife les échelles de projet : il aménage un vaste territoire en terme de mobilité , de spatialité et de centralité , tout en travaillant sur une plus petite échelle afn d’intégrer les différentes entités du programme.
Les entités en question - à savoir un restaurant au Mas-de-Londres et un espace de services publics de proximité à Cazevieille - ne s’implantent pas seulement sur un site : elles dialoguent avec lui et entretiennent un véritable rapport avec son histoire . Elles le révèlent. L’ultime objectif étant de rétablir le lien entre paysage et architecture
Tout en respectant les éléments existants, le projet dynamise les intéractions humaines en créant des lieux de croisement, de regroupement et de repos. Ouvertes sur le paysage, les entités représentent une invitation vers la découverte et l’appréhension du territoire , vers l’apprentissage « d’habiter et vivre le milieu ».









Près du centre de Cazevieille, un espace de services publics de proximité verra le jour. L’entité est positionnée de façon stratégique : elle s’émancipe du village dans le but de favoriser une découverte des milieux et une mise à distance avec les routes environnantes, notamment la départementale, afn de s’éloigner des nuisances visuelles, sonores et olfactives induites par les véhicules. Le chemin initial, en forme de fourche, est alimenté par des espaces sous la forme de plateformes marquant des pauses , des escales , des circulations et des carrefours . Ces éléments qui ponctuent les mobilités donnent de la vie et un élan dynamique au projet. Une homogénéité dans le traitement des sols extérieurs est aussi conservée. Le projet s’étire dans cette masse végétale afn de créer des espaces immersifs en terme d’ ambiance acoustique, visuelle et olfactive



MAQUETTE NUMÉRIQUE
Cette même densité végétale environnante (forêt) constitue un masque à l’ensoleillement naturel et est accentuée par l’insertion d’autres végétaux d’essences similaires au restaurant à l’intérieur des circulations du projet, offrant des espaces de repos et d’ombre.
Le projet est structuré par trois différentes zones incarnées par trois plateformes de dimensions similaires : une plateforme santé (kinésithérapeute, dentiste, médecin généraliste, pharmacie), une pateforme utilitaire (poste et livraison, sanitaires publics) et une autre de restauration rapide (snack, boulangerie). Ces entités sont accessibles depuis le chemin originel, mais aussi depuis les passerelles secondaires qui cherchent à s’avancer vers le paysage et entrer en cohésion avec celui-ci. La coupe ci-dessous démontre ce rapport soigneux que le projet entretient avec le site d’implantation en pente. Ce procédé de surélévation des structures fait le parallèle avec les voies cyclables et piétonnes, de par leur hauteur similaire.
La totalité des volumes est traversant, ce qui permet une aération naturelle globale du projet, et un éclairage lumineux et doux dans les espaces plus ombragés. La surélévation des bâtiments et le vide entre eux et le sol pourrait permettre la ventilation hygiénique du projet.

Entre le Mas-de-Londres et Cazevieille, des ruines sont revitalisées afn de concevoir une entité de restauration estivale. Pour garder une logique globale, un fl conducteur avec le travail effectué sur le paysage, le traitement de sol en bois surélevé (passerelle / pontons) est conservé. Cette continuité de matérialité peut aussi permettre une continuité de mouvement et un (re)dynamisme du territoire. Concernant les ruines, il est important de préserver et consolider cette préexistance historique sans forcément la recycler en tant qu’espace bati, mais plus en tant qu’espace de circulation et de vie extérieure. Les nouveaux bâtiments bordent les ruines sans jamais les toucher, et sont perçus comme des observateurs du passé . Les seules actions effectuées sur les ruines sont un travail de déblaiement, de terrassement, d’assainissment, de renforcement et de percement (création d’ouvertures dans les parois anciennes). Le site trouve sa particularité dans son






FONCTIONNEMENT DES CUISINES
caractère très minéral et végétal. La masse végétale qui entoure le projet et l’insertion de végétaux en son sein-même permet sa protection naturelle contre le soleil. L’utilisation du béton local n’est qu’une réaction à cette minéralité des sols. Il est, de plus, coulé par lits successifs qui dialoguent avec les différentes strates archéologiques des ruines. Il est important que ce béton soit local : une carrière de granulats se trouve à moins de 5 minutes en voiture du site. Dans la cuisine du restaurant, régie par le principe de « marche en avant », la ventilation est traversante dans le but de favoriser le dégagement des odeurs de cuisine dérangeantes et d’offrir un espace de préparation de nourriture ouvert , sain et hygiénique
En plus d’un parcours historique explorant les strates du site, le projet a une grande dimension sensorielle avec une volonté de cultiver un véritable jardin des sens . Espace de culture de la terre, matériaux aux textures attrayantes, jardin aromatique, odeurs des cuisines et repas gastronomiques utilisant les ressources du potager, musique de la scène sous l’espace couvert, sons naturels de la caresse du vent sur les végétaux : son objectif premier consiste à éveiller, surprendre et stimuler les sens afn de créer chez le visiteur un sentiment de bien-être et de sérénité .

Au carrefour de la Seine et du périphérique dans le 12ème arrondissement de Paris, dans ce qui était jadis les réserves frigorifques de la ville, se dressent les ‘Grands Ateliers de Bercy’. Des fermes propagent longitudinalement des activités telles qu’une serre (lieu de permaculture, d’horticulture, d’ateliers pédagogiques, d’initiation à la terre et au jardinage, pépinière et espace d’exposition), une bibliothèque , un vaste espace ouvert au public, une école de danse (studios, salle polyvalente, salles de cours), un auditorium , de grands ateliers de bricolage , et enfn d’une cafétéria . Le projet recherche à dialoguer avec l’existant et l’histoire de l’édifce : la structure en bois est conservée, ainsi que les voûtes en béton qui étaient auparavant cachées du public. Ce lieu du ‘faire’, accessible par les différents types de mobilité douce (métro, tramway, bus, vélo) pourrait apporter de la vitalité, et répondre aux besoins formulés par le quartier et ses voisins. Le projet dispose aussi de logements duplex, sous lesquels pourrait se tenir un marché couvert.



PLAN DE RDC

COUPE TRANSVERSALE - AA’

COUPE LONGITUDINALE - BB’

LES ACTIVITÉS DES ‘GRANDS ATELIERS’


AXONOMÉTRIE DES LOGEMENTS
Ce projet s’inscrit dans une démarche de réhabilitation à grande échelle entre les villes de Bobigny, Pantin et Romainville, un positionnement stratégique au cœur d’un territoire en plein essor. Il vise à revitaliser plusieurs parcelles comprenant des édifces patrimoniaux variés, avec un focus sur la transformation d’une ancienne tôlerie industrielle en médiathèque intercommunale, ainsi que la rénovation et la surélévation de logements le long de l’artère principale liant les communes. La médiathèque conserve l’architecture industrielle du bâtiment avec ses matériaux d’origine, tout en s’adaptant à son usage programmatique. La mission intègre également des logements étudiants avec des activités commerciales en rez-de-chaussée pour dynamiser le quartier. La connexion entre la rue de Paris et les berges du canal de l’Ourcq a été optimisée par une hiérarchie des hauteurs, offrant des vues dégagées et favorisant l’installation de commerces de restauration au bord de l’eau. L’ensemble articule harmonieusement espaces clos et ouverts, répondant ainsi aux besoins d’un territoire en pleine transformation.


VUE DEPUIS LE CANAL DE L’OURCQ
AXONOMÉTRIE DES INTERVENTIONS
COUPE DÉTAILLÉE
AXONOMÉTRIE DÉTAILLÉE DE LA BIBLIOTHÈQUE
PLAN DÉTAILLÉ DES LOGEMENTS

l’ancrange d’un modèle ethnologique, anthropologique, paysager, urbain et architectural



La ville est un mécanisme en constant changement : elle se meut, se déploie, se transforme et s’enrichit au contact des réalités humaines qui l’animent. Avec elle, les mentalités qui l’habitent se façonnent et se renouvellent inlassablement. En ce sens, l’être articule la ville, et elle le structure en retour. Ce cercle vertueux est un facteur indissociable du milieu urbain qui affche son omniprésence au sein-même de nos sociétés antérieures et contemporaines.
Son Histoire est impulsée par le puissant rugissement du capitalisme et ses rapports matérialistes ressentis à partir du XVIIIe siècle. Ce régime consumériste, régi par le culte de la propriété privée, fait naître un étalement urbain autoritaire. Celui-ci se compose d’une forme architecturale rigide — le logement pavillonnaire —, qui n’accorde aucune liberté, et restreint à défaut d’être un outil de développement personnel et d’expérimentation sociale.
Comme l’expliquera le philosophe français Henri Lefebvre, «le mode de production organise – produit – en même temps que certains rapports sociaux, son espace et son temps». Il poursuit son propos avec une parole profondément expressive : «À l’horizon du monde moderne monte le soleil de l’ennui». Ces mots semblent, à eux seuls, récapituler le regard porté sur la ville contemporaine. Mais plus grave encore que l’ennui qui ôte toute saveur et poésie à la vie, s’amenuisent la liberté et la véritable expérience de l’existence
Au sein de cette jungle urbaine , la place instinctive laissée à l’imprévu et à la créativité s’est vue remplacée par celle de la standardisation et de l’assujettissement. Pour cette raison, et par le biais d’une pluridisciplinarité de domaines — psychologique et iconographique, littéraire et cinématographique, architectural et urbain, social et sociétal — et d’un répertoire de références riche, nous centrerons le thème abordé autour de nombreuses interrogations primaires telles que : qu’est-ce que l’habitant ? Quelles sont ses représentations ? Quels rapports entretient-il avec la maison ?
D’autant plus, ces questionnements concernent l’avenir de l’architecture, ainsi que le rôle controversé de l’architecte dans nos sociétés. En outre, quel rôle joue-t-il dans ce processus d’ étalement urbain ?
L’artiste « anarchitecte » italien Gianni Pettena est une fgure de l’architecture radicale. Il déclare à Bruxelles en mars 2021 : « oui, j’ai ma licence d’architecte... J’ai le permis de tuer le paysage, mais je ne veux pas ! ».



regard, nouvel agir, au coeur de l’espace du mourir


Quels rapports et interactions existent entre la pratique de l’espace et la spatialité du cimetière ? En explorant les usages , fonctions et symboles qui en émanent, je me suis interrogé sur ce qui « qualife » le cimetière et « de quelles manières les expérimentations humaines et écologiques ont interrogé la rupture entre monde des vivants et lieu des morts ? »
Ma première expérience du cimetière fut liée à la perte d’un être cher. Je le percevais alors uniquement à travers le prisme de la mort, comme un espace organisé en compartiments – des tombes, mausolées et zones délimitées suggérant un « ordre » presque oppressant. Ce sentiment d’organisation, mêlé à des notions de dissimulation et de conservation , donnait au cimetière une atmosphère neutre, presque indifférente, laissant place à un malaise face à cette matérialisation directe de notre rapport à la mort.
C’est à Berlin, durant mon séjour de janvier à juillet 2022, que mon regard sur les cimetières a évolué. Mes découvertes architecturales ont nourri mes questionnements : comment les cimetières s’intègrent-ils au patrimoine, qu’il soit matériel (tombes, stèles, styles artistiques) ou immatériel (inscriptions, mémoires individuelles) ? Quels rôles et fonctions remplissent-ils aujourd’hui ? Sont-ils des espaces fgés ou « habités » ? Comment les pratiquons-nous et nous y comportons-nous ?
L’exemple qui a particulièrement nourri ma réfexion se trouvait tout près de moi : le Neue St. Jacobi Friedhof, dans le quartier de Neukölln . Ce parc urbain, envahi par la nature, abrite des tombes oubliées. Contrairement à l’angoisse qu’il inspirait à d’autres, ce lieu m’apparaissait paisible, presque apaisant, offrant une nouvelle manière de concevoir la relation entre les vivants et les morts.
Mort et vivant ; mot et silence ; solitude et partage ; savoir et indigence ; ranger et exposer ; rythme et temps ; espace et geste ; faire et recevoir ; anthropocène et symbiocène. Par-delà un parcours jonché de signifcations, d’interprétations et de détours au sujet de la mort, en naviguant dans le territoire fou qui ponctue chaque existence, nous réalisons que d’autres réalités sont possibles. Des expérimentations qui nous inviteraient à dresser le diagnostic autre d’un paysage plus libre , contextuel , et humain , dans une démarche d’observation du monde.



Établir une continuité entre mon mémoire de master et mon Projet de Fin d’Études m’est apparu comme une évidence, car la relation entre théorie et pratique a toujours guidé mes réfexions. Je souhaite donner du sens à ma démarche prospective en rapprochant mes travaux pour analyser les méthodologies, identifer les lacunes ou opportunités et évaluer les résultats obtenus. Cette continuité me permet de prendre du recul sur ma recherche et d’explorer en profondeur un domaine spécifque, développant ainsi un cheminement de pensée et une structure plus solides.
Le Projet de Fin d’Études enrichit ma démarche de recherche en abordant le contexte , les acteurs , les temporalités et les usages pour répondre à la problématique : « Face à un contexte changeant, comment réinventer le cimetière en alliant valorisation du ‘déjà-là’ et réponse aux besoins du quartier ? ».
la profondeur avec des « usages-tampons », et annoncer le cimetière-parc
Conserver et dialoguer avec le patrimoine historique
RÉÉCRITURE DE L’ENTRÉE EST



• Bonne utilisation ;
• Enterrements réguliers
• Pas de zone vacante ;
• Revenus suffsants pour entretien des tombes.
Plan de situation
PHASE 0
1870 - 1980
Fonctionnement régulier
• Bonne utilisation
• Enterrements réguliers
• Pas de zone vacante ;
• Revenus suffsants pour entretien des
PHASE 1 1980 - 2010 Faible utilisation
• Tombes éparses ;
• Déclin des enterrements
• Revenus chutent ;
• Tailleur de pierre et feuriste à l’Est ;
PHASE 2 2010 - 2019
Fermeture partielle
• Aucun nouveau droit d’usage accordé
• Cimetière fermé partiellement
• Dizaine de funérailles chaque année

d’intervention
PHASE 3 2019 - 2021
Fermeture complète
• Fermeture aux futures inhumations
• Revenus disparaissent
• Tailleur de pierre expulsé
• Zone vacante à l’Est
• PZ Kollektiv pour l’entretien du
• Certains droits d’usage expirent ;
• Tombes progressivement supprimées ;
• Zones vacantes apparaissent ;
• Bail accordé au Rollheimer expire ;
• Tombes éparses ;
• Déclin des enterrements
• Revenus chutent
• Tailleur de pierre et feuriste à l’Est ;
• Rollheimer sur à l’Ouest ;
• Plan pour protection des espaces verts.

• Aucun nouveau droit d’usage accordé
• Cimetière fermé partiellement
• Dizaine de funérailles chaque année
• Revenus insuffsants.

• Fermeture aux futures inhumations
• Revenus disparaissent
• Tailleur de pierre expulsé
• Zone vacante à l’Est
• PZ Kollektiv pour l’entretien du cimetière
• Boutique et café dans ancien feuriste
• Concertations avec le Rollheimer
• Zone vacante (ou partagée) à l’ouest ;
• Façades aveugles et surfaces libres deviennent des extensions du Kollektiv ;
• Statut des zones change avec
• Dernière période de piété expire ;
• Plus aucune pierre tombale ;
• Programme scolaire et résidentiel planifé et amorcé aux extrémités

CROQUIS D’AMBIANCE
TRAITER LA TRAVERSÉE
Récupérer les eaux pluviales à partir des toits, et alimenter le réseau avec des panneaux photovoltaïques
Le belvédaire, un jardin vertical
INVESTIR LES EXTRÉMITÉS
TRAITER LA TRAVERSÉE INVESTIR LES
INVESTIR LES EXTRÉMITÉS HABITER LES FAÇADES
Mon objectif est de révéler les valeurs décelées lors du diagnostic — historique, mémorielle, environnementale, urbaine, fonctionnelle et sociale — tout en adoptant une vision pragmatique et programmatique pour envisager le développement et l’intégration du site dans le Neukölln de demain. Bien qu’il s’agisse d’un cimetière, mon intérêt porte plus largement sur les enjeux liés à la gestion du plein et du vide en milieu urbain.
HABITER LES FAÇADES
TRAITER LA TRAVERSÉE
Les réponses, qu’elles soient paysagères, urbaines ou architecturales, doivent embrasser les valeurs du site, les renforcer pour promouvoir habitabilité , durabilité et hospitalité dans le contexte urbain. Construire, rénover, conserver, préserver : la projection ne se réduit pas simplement à ériger des structures, mais représente un processus complexe qui s’inscrit dans une responsabilité . L’acte de bâtir n’est pas anodin, il s’enracine dans un sol, cohabite avec des acteurs et s’agrippe au temps. Ce temps, profondément inhérent à la fonction passée de l’espace, trouve son importance dans sa capacité à faire le lien entre les mémoires , les rythmes et les scénarios futurs . Ma méthodologie s’est structurée à travers une approche immersive, incluant des expérimentations sur place, la photographie, le graphisme et le jardinage aux côtés du collectif local. Cette fdélité au lieu m’a permis d’affner ma compréhension de son caractère unique et de développer une réfexion ancrée dans le réel
HABITER LES FAÇADES
Installer des récupérateurs pour la distribution et le filtrage
Étendre les activités de jardinage et répartir des bassins de rétention et de décantation
Orienter l’écoulement des eaux, signaler et border l’allée centrale de jardins de pluie
UNE RESSOURCE TOMBÉE DU CIEL
Un parcours central poreux et balisé















































