TCC @ EDGEWOOD LOGISTICS CENTER SHOP DRAWINGS

Page 1


AFF- ABOVE FINISH FLOOR

ALUM.-ALUMINUM

C/O- CONSISTS OF

D.I.O- DAYLITE OPENING

D.O.- DOOR OPENING

D/A- DOUBLE ACTING

ELEV.- ELEVATION

E.Q.- EQUAL

F.H.- FRAME HEIGHT

F.W- FRAME WIDTH

FIN.- FINISH

G.A.-GAUGE

GALV.- GALVANIZED GL.-GLASS

0.H.- OPPOSITE HAND

INSUL.-INSULATION

M.O.- MASONRY OPENING MAT.- MATERIAL NOM.- NOMINAL

N.T.S.-NOT TO SCALE

OPNG.-OPENING

QTY-QUANTITY

REV.-REVISION

S/A-SINGLE ACTING

R.O.-ROUGH OPENING

V.I.F- VERIFY IN FIELD WDW.- WINDOW

W.D.- WINDOW DIMENSION

W.O.-WINDOW OPENING

TCC @ EDGEWOOD LOGISTICS CENTER (SHELL PERMIT ONLY)

1300 BUSINESS CENTER WAY

GENERAL NOTES

EDGEWOOD, MD 21040

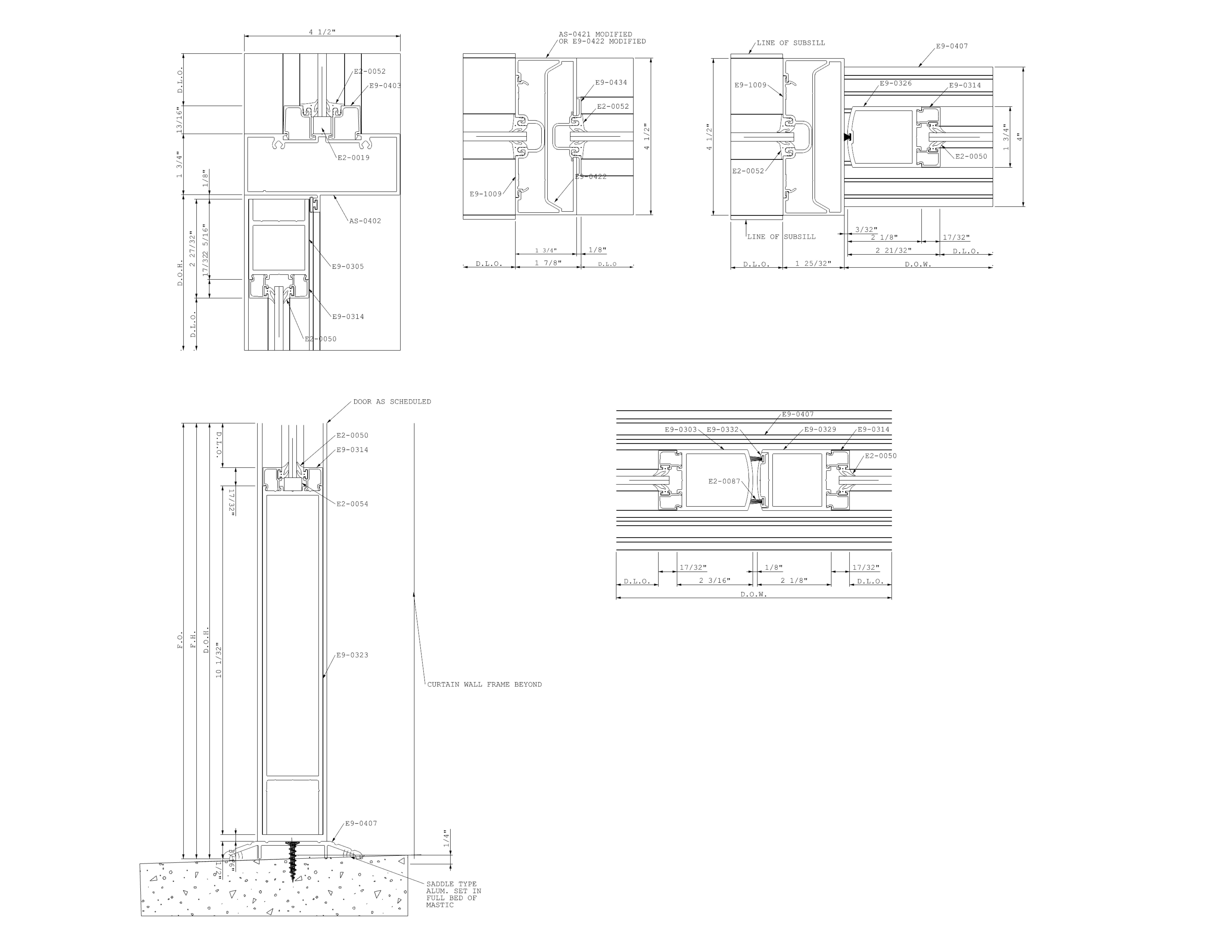
1. ALUMINUM EXTERIOR STOREFRONT GLAZING TO BE YES 45TU (2” X 4 1/2”) FLUSH CENTER GLAZED THERMAL BRIDGED SYSTEM, MFD BY YKK CORP.

2. ALUMINUM EXTERIOR STOREFRONT TO BE GLAZED FROM THE “OUTSIDE”

3. INTERIOR & EXTERIOR ALUMINUM MANUAL SWING DOORS TO BE SERIES 20D NARROW STILE STILE WITH 10” BOTTOM RAIL, MFD BY YKK CORP.

4. INTERIOR ALUMINUM STOREFRONT GLAZING TO BE YES 45FS (1/4” INTERIOR SYSTEM) (1 3/4” X 4 1/2”), MFD BY YKK CORP.

5. INTERIOR GLAZING TO BE 1/4” TEMPERED

6. FINISH TO BE BLACK ANODIZED

*ALL DIMENSIONS TO BE VERIFIED IN FIELD*

DOOR HARDWARE SCHEDULE

MANUFACTURER STANDARD:

1. TOP, BOTTOM & INTERMEDIATE OFFSET PIVOT HINGES

2. MS LOCKING WITH KEY CYLINDER OUTSIDE & THUMBTURN INSIDE

3. PUSH/PULLS

4. SURFACE MOUNTED CLOSERS

5. 4” X 1/2” ADA THRESHOLD

6. DOOR SWEEPS

*REFER TO YKK HARDWARE CUTS FOR SPECIFICS*

GLEN ARM BUILDING COMPANY

658 KENILWORTH DRIVE, SUITE 101, TOWSON MD 202204

STANDARD MATERIAL SYMBOLS

GLAZING SCHEDULE

1” (1/4” GREY/SN68 #2 TEMPERED OVER 1/4” CLEAR ANNEALED)

1” (1/4” GREY/SN68 #2 TEMPERED OVER 1/4” CLEAR TEMPERED ANNEALED)

1/4” CLEAR TEMPERED

1300 BUSINESS CENTER WAY N

1. BUILDING STRUCTURE SUPPORT

2. ANY MATERIALS OR SCOPE OF WORK OUTSIDE OF THESE DRAWINGS

3. ANY WATER VAPOR BARRIERS OF MATERIALS

4. FINAL CLEANING OF INSTALLED PRODUCTS

MORGAN, GICK, McBEATH ASSOC.,PC (MGMA)
GREAT FALLS ST FALLS CHURCH, VA 22046
Narrow Stile doors with 10” bottom rails
C1

ELEVATION B2

ELEVATION B1

STOREFRONT ELEVATION D1

STOREFRONT ELEVATION A2

ELEVATION A1

STOREFRONT
STOREFRONT
STOREFRONT

STOREFRONT ELEVATION C2

STOREFRONT ELEVATION C1

STOREFRONT ELEVATION E1

STOREFRONT ELEVATION G1 (THUS-10) STOREFRONT ELEVATION E12

STOREFRONT ELEVATION G1

KEY CONSTRUCTION PLAN-EAST PARTIAL CONSTRUCTION PLAN-EAST

LEFT DOOR JAMB @ TRANSOM
SLOPE
10” BOTTOM RAIL
LEFT DOOR JAMB
MEETING STILE
LEFT DOOR JAMB @ TRANSOM

Turn static files into dynamic content formats.

Create a flipbook
Issuu converts static files into: digital portfolios, online yearbooks, online catalogs, digital photo albums and more. Sign up and create your flipbook.
TCC @ EDGEWOOD LOGISTICS CENTER SHOP DRAWINGS by Leigh Ridgely Hardy - Issuu