LEI CHEN

ARCHITECTURE AND LANDSCAPE
ARCHITECTURE PORTFOLIO OF WORKS 2017-2024
![]()
LEI CHEN

ARCHITECTURE AND LANDSCAPE
ARCHITECTURE PORTFOLIO OF WORKS 2017-2024
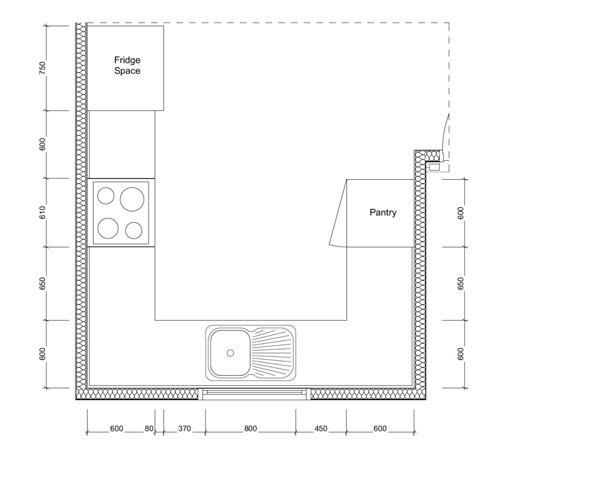
Kainga Ora State House Development
Architectural RC and BC drawings (include multiple projects)
Date: 10.2022 - 05.2024
Project Type: Professional Project
Location: Auckland, New Zealand
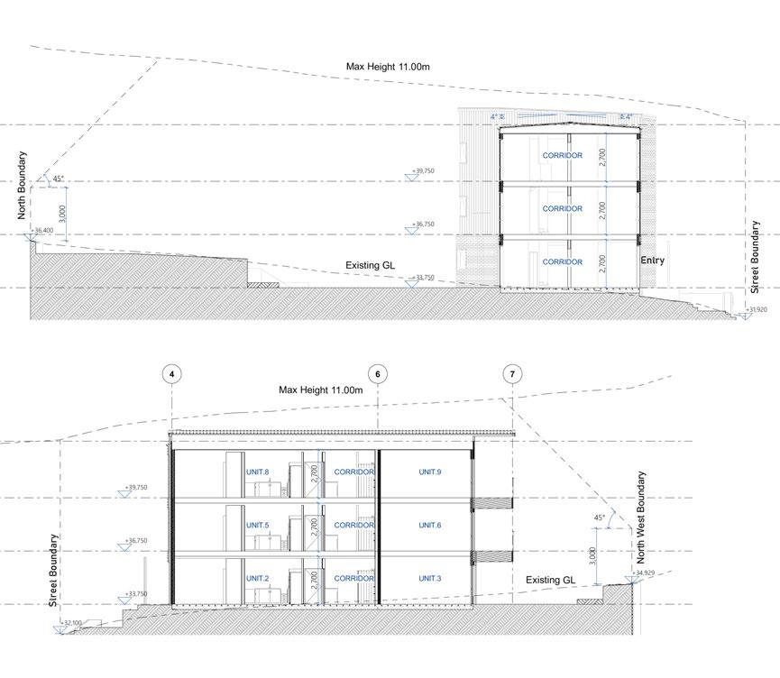
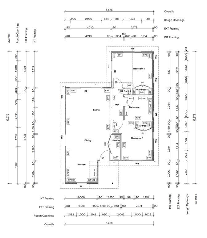
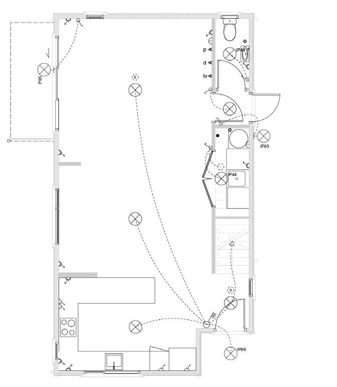
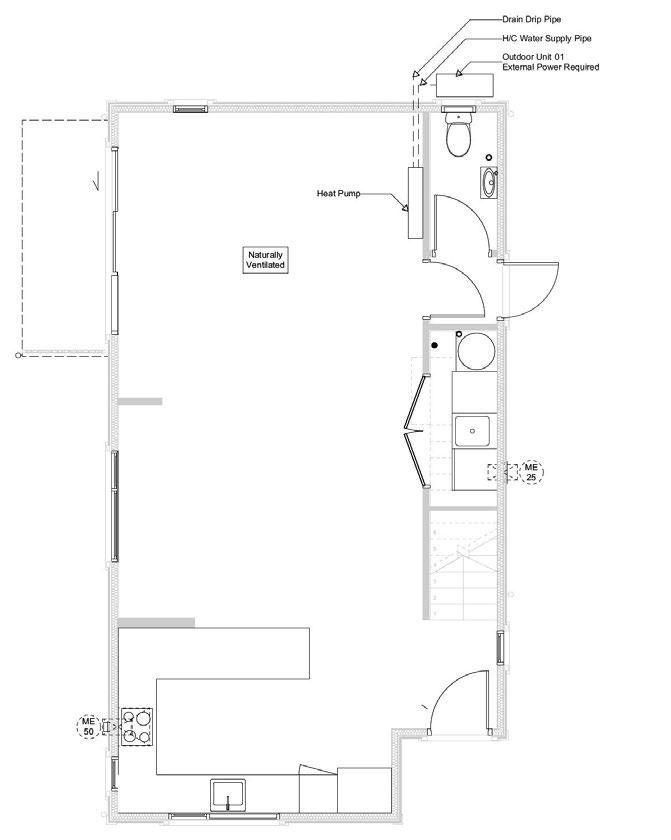
HDS (Velocity) is a state housing development project managed by the government agency Kainga Ora, which is also my primary work focus at Context Architects. My key responsibilities include preparing RC and BC drawings and documents, hosting bulk and location meetings, coordinating with engineers and clients, attending pre-application meetings, and handling final submissions.
In HDS, I have led multiple standalone, duplex, terraced housing, and walk-up projects. In addition to completing my tasks on time, I also assist other disciplines in solving various design issues. This experience has not only provided me with practical knowledge of residential development but also improved my software proficiency, project management, and communication skills.


























Kainga Ora State House Development
Landscape RC and BC drawings (include multiple projects)
Date: 10.2022 - 05.2024
Project Type: Professional Project
Location: Auckland, New Zealand
HDS (Velocity) is a state housing development project managed by the government agency Kainga Ora, which is also my primary work focus at Context Architects.
My key responsibilities include preparing RC and BC drawings and documents, hosting bulk and location meetings, coordinating with engineers and clients, attending pre-application meetings, handling final submissions and replying RFI.
In HDS, I have led multiple standalone, duplex, terraced housing, and walk-up projects. In addition to completing my tasks on time, I also assist other disciplines in solving various design issues.
This experience has not only provided me with practical knowledge of residential development but also improved my software proficiency, project management, and communication skills.



Nohonga Design Challenge
Landscape Architectural Competition
Date: 07.2022 - 10.2022
Project Type: Professional Team Project
Location: Auckland, New Zealand
‘The Sound of Life’ proposes an auditory experience of collective dreams, a place of healing and of learning from nature. Through its delicate gesture of autonomous sensory meridian response (ASMR), its filtration to the purest seeks to attend one to the fundamental that has always been present - the breath of Tane, guiding one how to adapt to change.
The timber boxes are inspired by the sound visualisation of sea waves. Its weaving inbetween the ‘railway beams’ alongside the soothing sound of sea waves from the scanned QR code among the towering landscape of retails, offices and apartments in Britomart, invites one to question and ponder. Raising awareness around the concerns of sea-level rising behind the gentle melody.
As the Nohonga finds itself at the Brick Bay sculptural trail, the timber boxes’ metamorphosis into ‘insect hotels’ invite insects and little creatures to inhabit. Overtime, the Nohonga that is once silenced with the removal of QR code, adapts and begins to play its own symphony of buzzing and chirping. ‘The Sound of Life’ is a shared haven for the children of Tane, a guidance that we all breathe and live together too as tamariki of Tane.









In a landscape undergoing constant evolution,the ability to adapt becomes more important than ever. The team behind The Sound of Life offer an auditory experience of collective dreams, a place of healing and learning from nature. Made from recycled structural beams and offering a range of seating options, the timber boxes will become ‘insect hotels’, a shared haven for the children of Tāne.


The











Firstly, the design reduced the building footprint of the west side to provide a long sightline from High St. to Britomart and an open environment. Then an exterior timber framework with walkable platform was created to use the vertical space that increases the volume of the natural landscape, and also provides a better connection with urban space. Secondly, the interior space was divided into many small blocks by the grid of the exterior framework, deleted 90% of them, turned the reserved blocks into several gallery boxes, and added walk paths and stairs to create an organic interior space. Finally, the connection of the ground floor was enhanced by developing an underground space, including gardens for underwater and wetland species, and underground square and corridor.

































Grey Ave. Vertical Papakainga
Date: 03.2021 - 06.2021
Project Type: Individual Academic Project
Location: Auckland, New Zealand
During the Covid19 pandemic, the whole world is locked down, and later, people found that the environment is bouncing back within a short time. Without human’s interruption, the life force can heal nature quickly; however, the over-development of urban space is dragging it down. The site of Grey Avenue links Myers Park and the aihorotiu tream was once flowing through it; I can only imagine how ecological lush it was, yet, right now, the site is nothing but a car park next to the Civic car park.
In Maori Mythology, Rata and the tree, the children of Tane (birds and insects) are trying to remind Rata to value and respect nature by rebuilding the tree he chopped down. The site is in a similar scenario, and I believe it is an excellent opportunity to honour nature by recovering its ecological function and restoring the Waihorotiu Stream. Eventually, creating a natural corridor in the Auckland CBD start from the site to the Waitemata Harbour.
The ground level associates with the restored Waihorotiu Stream to form an urban wetland park; natural habitats are established at each level for creating a welcome space for the wild species. Thus, reducing the negative effects of urbani ation and enhancing the urban bio-diversity at the same time.






The restored tree in the myth inspires the design; the envelope is a reappearance of leaves inhaling and exhaling, the interior structure is a simulation of branches spread and across, and the living units inside are an imitation of the nest. The design uses only a few space percentages for human residence, and the rest are constructing a natural environment. It is not only a vertical papakainga (village) for humans but also for the children of Tane.


































Date: 04.2020 - 06.2020
The case is located in the centre of Manukau, it is composed of two buildings, a five-story mixed-use building and a semiopen commercial use glasshouse.
The mix-use building has two stories of commercial use, and three stories of residential use. It aims at increasing housing supply and choice, forming a stable community and offering more job and entrepreneurial opportunities.
The ground floor of the glasshouse is for the catering business, the first floor is for community activity purpose. It aims at expanding and diversifying the local small business, providing more leisure and social value to enhance inhabitant experience. In the design, there is five space with different functions, the reasonable space organization makes the use of each space is able to co-operate together, thereby activating not only the design site but also a wider range in Manukau Centre.





The design of the mix-use apartment is inspired by the pā, a strategic and defensive approach will be required to ensure our communities remain resilient in the face of the challenges and conflicts of the 21st century.
Defensive pā provide an appropriate development form that brings communities together into compact settlements connected to adjacent areas for food production and resource gathering.
The floor layout of the mix-use building would be settlement zone - residential area, working terraces - office area, and market sitestore area from top to bottom. The three stories of the apartment area are in the shape of stairs to represent the form of pā.
A large amphitheatre is seated at the west edge of the building for people to take a rest or watch the performance on the stage across the walking path.

























The design of glasshouse is inspired by the Great Market Hall of Budapest. The massive area of sloping roof glazing and curtain wall makes the whole site sundrenched, and create an open and welcome atmosphere.
The scattered layout of the storefronts inside the glasshouse letting people from the bus station is able to access the glasshouse and the mix-use building easily.
The ground floor bars and restaurants provide a wider range of lunch options during the daytime and enhance leisure life during the nighttime.
The art studio, music studio, gym, and senior activity centre are above the eatery shops, they mainly serve the nearby resident, but open to the public as well.


















The design aims to develop the site into a Pacific cultural centre of Auckland region, with a vibrant community and high commercial and recreational potential.
To achieve the goal by:
Increasing the rate of long-term residence and promoting the local economy of the low-income community.
Establishing the site into a characteristic urban space to attract more visitors from other parts of Auckland and to provide more modern ecological health, leisure and cultural destination opportunities.
Improving the walkability and accessibility between the existing and proposed facilities.


Establishing multiple styles of mixed-use architecture.
- Increasing housing supply and choice and forming a stable community.
- Offering more job and entrepreneurial opportunities.
- Expanding and diversifying the local small business and retail offer.
- Increasing recreation and social value to enhance inhabitant experience.
Using Pacific style and native vegetation to build a series of public facilities.
- Enhancing the sense of belonging and pride of the local Pacific residents.
- Promoting a distinctive cultural value of Manukau.
- Increasing the biodiversity of the site, both vegetation and animal species.
Transforming the site into a vehicle-free area.
- Creating a safe, neat and accessible pedestrian space.
- Using the existing parking space to provide more values.
- Promoting public transports.

















‘NaTian’
Date: 08.2017 - 09.2017
Project Type: Professional Team Project
Location: Jiangsu, China
Drawing inspiration from the “Qiao Luojin” (Beautiful Silk Towel) narrative, this proposal explores the process of weaving as a means of creating a shifting, linear ‘ribbon’ of infrastructure that stitches together the five park spaces (zone functions) of the Suqian Lakeside District Central Park plan. The continuous band of flowering cherry trees proposed in the Suqian Lakeside District Central Park plan will provide a dramatic spatial experience when trees are flowering. To enhance and support this experience,this proposal aims to create a distinct but complimentary experience outside of the flowering season to provide year round interest. The constructed ‘ribbon’ will be arranged or ‘wrapped’ around a continuous linear walking and cycling path to create a woven, sculptural and interactive corridor that winds its way across the site providing unique and variable experiences to park users.

FINDING A PATTERN




















Design components or ‘fibers’ are spun into a series of unique ‘threads’ to provide a rich palette of materials for the construction of the ribbon. These threads are selected and designed to respond to the uniques aspects of the site and wider region, providing opportunities for recreation and reflection. Colour, materials, and plant types take cues from the NaTian Flower Farm with the aim of threading some of the character and experience of the flower farm into the Suqian Lakeside District Central Park
The pattern of ‘threads’ is reorganised throughout the extent of the site to create a ‘fabric’ that reflects and compliments the shifting priorities of each of the five park spaces (zone functions). Threads of components are ‘woven’ together to create dynamic spatial arrangements and unique ways of experiencing the site and interacting with elements and other park users.
STITCHING TO THE SITE
The concentration of ‘fabric’ through different spaces will adjust according to site specific opportunities and constraints, creating a variable and shifting corridor of elements. For a large portion of the path this may take the form of simple ground plane and edge treatments, shifting into more concentrated structures and elements in specific areas where opportunities present.

The largest portion of corridor treatment will take the form of ground plane and edge seating elements with a small number of overhead structures in select locations. This sets a baseline of treatment that continues throughout the project site, stitching the park spaces (zone functions) together.



A second level of treatment which starts to incorporate a more denser ‘weaving’ of elements is proposed at locations throughout the corridor. These will be located to take advantage of specific site opportunities and will provide regular points of interest and interaction.



Where opportunities exist for a more radical design expression, a larger and denser concentration of elements can be developed that provide a focal point(s) within the corridor. These sections of the corridor provide for a more concentrated level of activity and interaction and act as vibrant landmarks within the wider Central Park.


Date: 07.2018
Project Type: Professional Team Project
Location: Auckland, New Zealand
This proposal presents a vision for the development of the Ōpanuku arawhata (bridge) where mana whenua and their values inform the entire design process. In support of this is a conceptual framework that is also shaped by Te Ao Māori. Here, concepts including kaitiakitanga (environmental stewardship) and manaakitanga (hospitality) shape the process and narrative of the proposed design. Thematically, our work draws on the Māori legend of Rata, as it provide a critical lesson about respecting the whenua and Ngā Atua Māori. In doing so we seek to reinstate Māori values and approaches towards the environment and urban landscape design. In the legend of Rata, Rata enters Te Wao nui o Tāne (the great forest of Tāne) and cuts down a tree to fashion a waka for his journeys. Having felled the tree He then heads home to return the next day. To his surprise though the tree is restored. Rata cuts down the tree a number of times to find it back up again. Puzzled by this, he hides in the ngahere (forest) one evening to watch. He sees that nga tamariki o Tāne (the children of Tāne) birds and insects are putting the tree back together.




Our design takes inspiration from three interrelated areas; the legend of Rata, Māori methods for building waka and felling large trees, and the Corban Estate site and it's history. The larger bridge design and supporting elements (taurapa and tauihu) are derived from a waka tāua (war canoe). This relates directly to the Rata narrative, as in most accounts of the story Rata was attempting to build a larger canoe as opposed to a smaller waka tīwai or waka tētē. We have abstracted the waka form somewhat though as the intention is not to create a bridge that looks exactly like a waka. Instead, in our design we are hinting at both waka forms and the process behind waka building. This might mean that the bridge structure retains elements that look like branches or tree bark. Two distinct forms from waka taua, the tauihu (prow) and taurapa (stern), are placed either side of the bridge on the landing sites. This allows us to extend the waka concept into the surrounding area. The tauihu, rendered in part as a burnt tree stump, takes inspiration from traditional Māori ways of felling large trees where fires were often used. The taurapa, as a prominent structure protruding towards Ranginui, acts as a marker guiding people towards the bridge on the lower side.
References to waka building are also seen in the use of adzed like textures, lashings and toki (adze) inspired seating designs. We would also like to use charred wood textures and blackened colours throughout to again connect to the use of fires in waka building. While used to fell trees, fire was also used to burn the inside for the hull. Critically, the referencing of fire here links to the important Māori concept of ‘ahi kā’, burning fires of occupation. Here the ahi kā are those maintained by mana whenua.







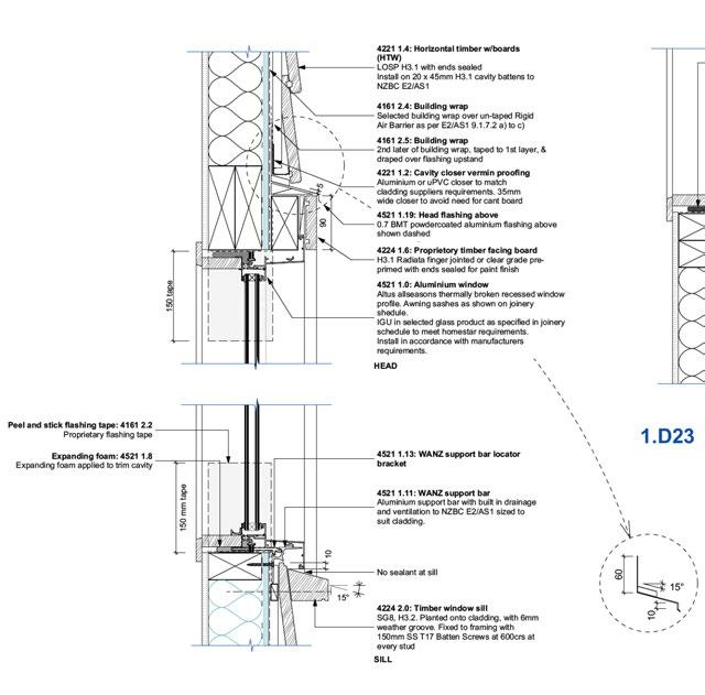
ELLERSLIE NOISE WALLS
SECTIONS A1 & A2 Challenges the
Date: 06.2017 - 05.2018 Project
The project consists of nearly 1km of acoustic barrier, divided into 3 sections. This comprises of 233, 3m high panels which have varied extrusion depths between 30mm and 60mm, and a concrete fibre cement footing which varies in dimensions to fit the existing narrow corridor.

ELLERSLIE NOISE WALLS












FEATURE ‘PUNCTUATION’ WALL
The design and construction of the project lead innovations in stakeholder engagement processes, prototyping using 3D printing and special mould design to replicate the panel design. The panel design is directly influenced by the local Iwi and are symbols of guardianship and protection echoing the benefits of the acoustic barrier. The narrative of the design depicts a waka within a river, represented by the motorway, transporting people such as it was in the past.
A conceptual framework and series of cultural narratives was developed to inform the design of the noise wall panels. The primary theme draws comparisons between historic river transportation corridors used by Maori, and the motorway corridor as modern day equivalent. This idea is explored through a reimagining of the motorway corridor as an awa (river), and expressed through the use of a bold blue/green colour scheme representing the depth, movement, and reflectivity of water. This theme is further reinforced through reference to waka, and the incorporation of taurapa (sternpost) and tauihu (prow) elements at each end of the project (still to be installed).


