Megan Leger's Sophomore Portfolio

Page 1

Wentworth Institute of Technology Architecture Portfolio 2021-2023
Megan Leger

Table of Contents

3
Wooden Boat Building School Studio 04 Precedent - Auditorium del Parco MFA Teen Center Fine Art and Exploratory Analysis 4-15 16-23 24-33 34-37

The Origins

Brooklin WoodenBoat Building School

Brooklin, ME

Studio 03

Patrick Cunningham & Natalie Bellefleur Fall 2022

The objective of this project is to design a new boat building facility using wood framing design. Engaging the students and the community through boat building is seen in this design with the creation of an amphitheater encasing the building and the boat shed lacking walls. The design for the amphitheater came from original dugout canoes Native Americans would build out of solid tree trunks. The concept of the building was based off of a birch bark canoe, the Native Americans’ next progression in canoe design. The idea of the space is to create a grounded connection between students learning wooden boat building techniques and the history of wood boats being built in the walls around them. On the site, the building is placed to engage circulation from the current road to the water by opening up between the buildings and the amphitheater.

4
Professors
Concept
Ground Circulation Diagram Topography Change Diagram Amphitheater Parti Structure Parti Phase 1 Concept Model

Site Analysis

Wind Speed | Real life feel

1 mph - 3 mph | little if any movement of flags

3 mph - 7 mph | leaves rustle and twigs move

7 mph - 12 mph | blows dry leaves from the ground, flags are extended out

12 mph - 17 mph | moves small branches, rises dust and paper off the ground

17 mph - 23 mph | large branches and small trees with leaves begin to sway

Wind Analysis

Vegetation analysis

7
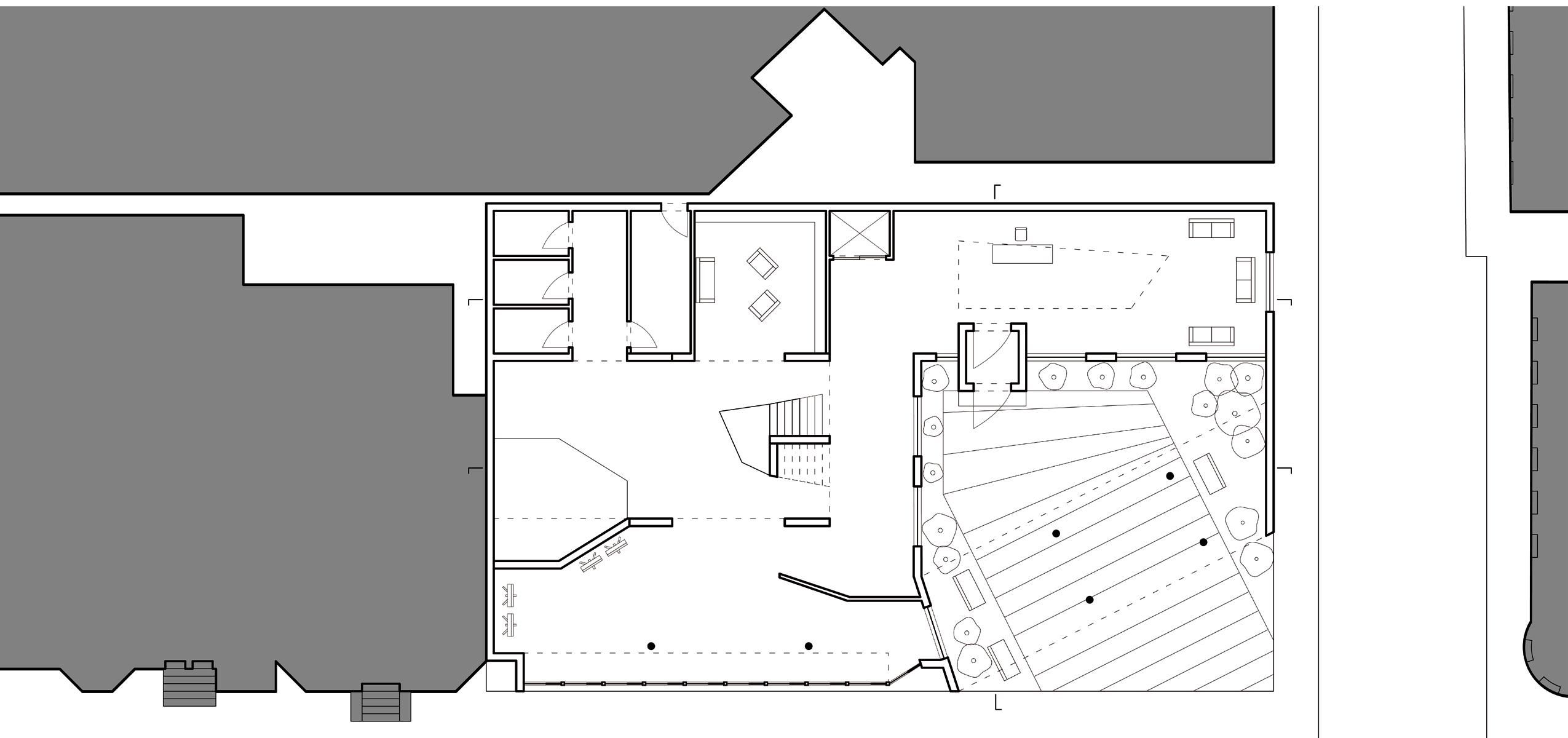
Site Plan
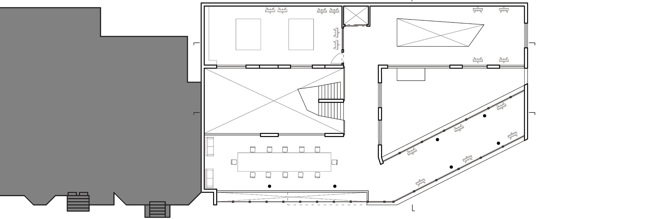
KEY 1.Lobby 2. Dining Area 3. Kitchen 4. Bathroom 5. Gift Shop 6. Classroom 7. Library / Meeting Space 8. Bug Shed 9. Wood Shop 10. Wood Storage Ground Floor Plan
9
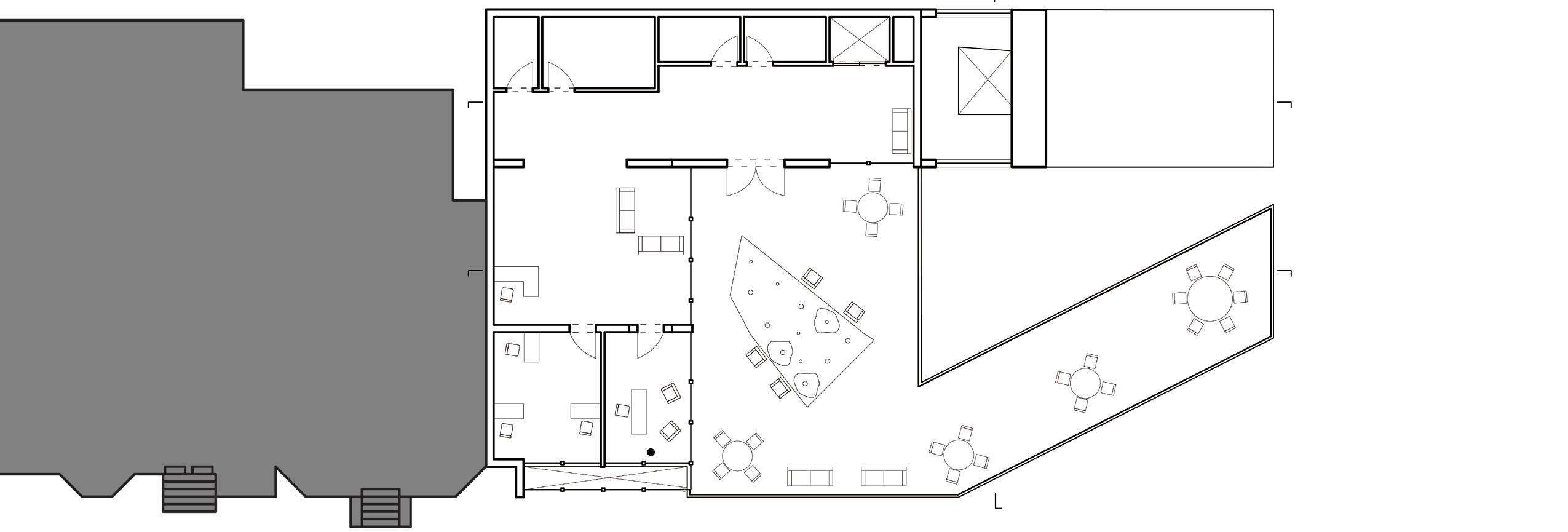
KEY 11. Drafting / Planning Room 12. Sewing Room Second Floor Plan
A B
Section A Section B
11

Renderings

13 Big Shed View
Lobby/Entrance View

Models

Massing Model Image Site Plug-In
15
Group Site Model with Personal Plug-In

Precedent Study

Auditorium del Parco - Renzo Piano

Group project - Sarah Carpenter, Logan Lombard, Liam Mobley. Megan Leger Studio 04

Group precedent study focusing on auditorium spaces and connection to the community. This project challenged students with working in teams, large scale model work, and a tight deadline. Deliverables for this project consisted of researching a famous theater building and discovering what makes it work for the performers and the spectators. Researching the Auditorium del Parco allowed insight into how music is important to cultures and the building was designed to facilitate that cultural need. Working on such a tight deadline forced focus on the most important aspects the building offered and what was unique about it. My group received 3rd for Student Choice - Best Project.

16
Site plan drawn by Megan Leger Images added by Sarah Carpenter Tectonic Reaction Diagram
Drawings
19
Vertical Wall Section Corner Wall Section
20
Model by team

Each panel was individually colored with alcohol based markers by Megan Leger and Liam Mobley

22

Palette des Couleurs

Museum of Fine Arts Teen Center

Boston, MA

Studio 02

Prompted with designing a Teen Center of the Museum of Fine Arts, I designed a modern building that would facilitate artistic programming for the high school students the space is designed for. A large glass facade makes up most of the street facing walls and the bridging art gallery over the main entrance courtyard welcomes visitors. The moment one passes under the bridge they would be greeted with hidden street art done by one of the visitors on the bottom of the raised floor plate then greeted with a double height atrium introducing visitors to the rest of the building’s language.

24
Program Key Reception Elevator Flex space Mechanical Bathroom Curation room Library Gallery Office Outside Vestibule
Circulation Diagram Program Diagram
Patri Diagram
27
Sun Analysis
Structural Diagram

Third Floor

Second Floor

Floor
Ground
29
Section A
A B C
Section B

Section Perspectives

30 C
Section C - Exploded Section C - Butterfly
Pedestrian Circulation Vehicle Circulation Site Plan
Site Section A Site Section B
Site Drawings
33

Fine Art and Exploratory Analysis

Sketches and Extras

Boston, MA

Studio 01-03

A compilation of works varying media and criteria. These pages contain more examples of models, design exploration, and precedent study. Different techniques and tools were used for each model exploring various modes of representation.

34
Studio 03 Precedent Model Basswood, plexi, sticks, wire
37
Studio 01 Final Model Plaster, metal mesh, tin foil Studio 03 Project 1 Massing and Site Model Museum board, chip board, 3-D printing
Megan Leger (978)-833-9291 legerm4@wit.edu

Turn static files into dynamic content formats.

Create a flipbook
Issuu converts static files into: digital portfolios, online yearbooks, online catalogs, digital photo albums and more. Sign up and create your flipbook.
Megan Leger's Sophomore Portfolio by Megan Leger - Issuu