Job Application portfolio Lee jia Yee

Page 1


PORTFOLIO

Academic and works. selected

Lee Jia Yee Masters graduate Summer semester 2024 I Hochschule Anhalt University of

CONTACT

Lee Jia Yee

Selangor , Malaysia

+60-17-668-5518

leejiayeearchi@gmail.com

EDUCATION

APR 2019 - NOV 2021

Bachelor of Science (Honours) in Architecture

Taylor’s University Lakeside Campus CGPA 3.23

OCT 2022 - OCT 2024

Master of Arts in Architecture (DIA)

Hochschule Anhalt University of Applied Sciences CGPA 3.8 l German Grading 1.3

Experience

NOV 2021 - DEC 2021

Competition team - Design l 3D Modelling

Eric Chang Architect

Jan 2024 - JUNE 2024

External Architecture works - Design l 3D Modelling l Rendering

Under Prof. Dr. Rudolf Lückmann at Hochschule

OCT 2024 - NOV 2024

Art Installation works - Manufacturing l Constructing

Unreality Studio

Skills

CAD

Rendering

Adobe CC

Microsoft Office Autodesk Revit l AutoCAD Lumion l Enscape Photoshop l InDesign l Illustrator

CONTENT

TOP - UP :

A new affordable housing scheme in Hong Kong’s urban landscape

MASTER THESIS Semester 3 - 4

COPY :

Urban Transition l Reimagining the Petrol Station as Living Space

MASTER Semester 2

CHOW KIT GARDENS :

Assistance & Community Hub

Degree Semester 6

THREE / FOURTHS RESIDENCE :

BIM Coordination Project

MASTER Semester 1

PATH OF REMEMBRANCE :

A Journey of Reflection and Resilience

BACHELOR Semester 3

RIPPLE BRICK :

One - Off Brick l 3D Clay Printing

MASTER Semester 2

TENSILE PLAYSCAPE :

Membrane Structures

MASTER Semester 3

BOAT HOUSE :

Work Project

JAN 2024 - JUNE 2024

A PRODUCTIVE NEIGHBOURHOOD :

1st Prize Winner : BAU Munich l Students l Design l Future l

MASTER Semester 1

TOP - UP

A new affordable housing scheme in Hong Kong’s urban landscape

TERM : FINAL THESIS SEMESTER 3 - 4

SITE :

HONG KONG

SUPERVISOR 1 : Peter Ruge

SUPERVISOR 2 : Leonhard Clemens

Through the course of this thesis, delving into the complexities of housing in Hong Kong, I’ve come to a profound realization: the essence of Utopia lies in something as basic and essential as having a home. Not just in Hong Kong, where the housing crisis has led to unimaginable challenges and stark living conditions, people are forced into cramped spaces like cage homes or coffin homes, not out of choice, but out of sheer necessity for shelter. It’s a stark reminder that amid the quest for ideal living environments, the fundamental need for a secure place to live transcends all other aspirations.

As I conclude this thesis, I am reminded that the pursuit of Utopia is not about achieving an unattainable perfection but about ensuring that every person has access to the basic human right of dignified housing. It’s a call to action to rethink our approach to urban planning, housing policies, and social equity— to create spaces where everyone, regardless of their background or means, can find solace, security, and the possibility to dream.

The primary objective of this proposal is not to entirely resolve the housing crisis in Hong Kong’s urban areas but rather to suggest solutions that can quickly enhance the well-being of those most effected.

The lower to middle-class families in Hong Kong have been enduring years on the public housing waitlist, high rents and low income have forced them into subpar living environments, ranging from cage homes to rooftop huts. As the demand for public housing rises, the government is also facing challenges in finding suitable land for development.

The government has massive land reclamation plans but that will pose significant environmental risks to the sea and its ecosystem. Additionally, the process requires a high cost and a lenghty timeframe for completion. What’s needed is a faster , more sustainable solution that can address the affected and improve their living environment and overall well-being. Vision

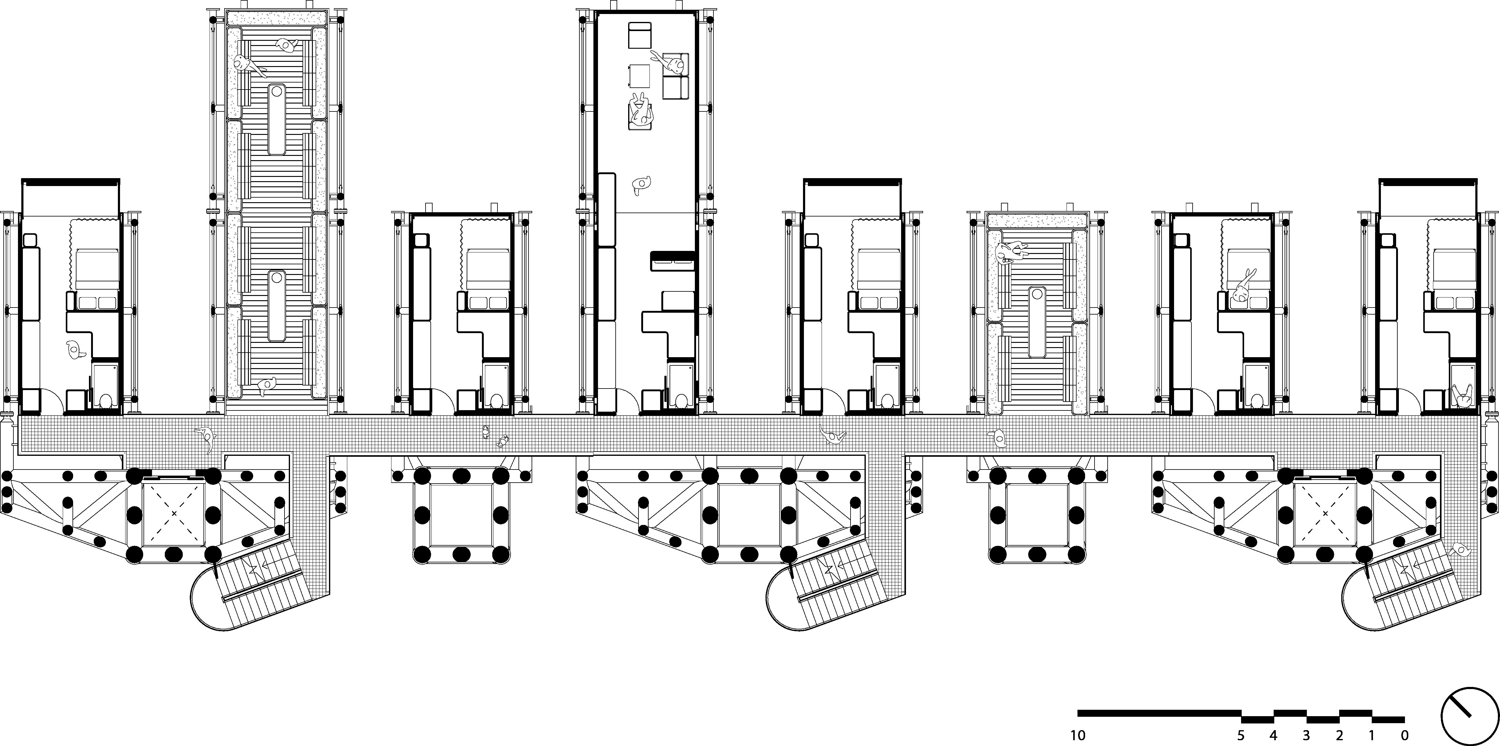
This diagram highlights a section of the Sham Shui Po district, home to Ki Lung Street. The area is known for its historical Hong Kong shophouses (Tong Lau) and street vendors spilling onto the roads, creating a bustling shopping district for which the area is renowned.

Several issues in these historical Hong Kong shophouses need to be addressed. With time, these buildings have been populated with subdivided apartments,and their roofs and backyards have undergone unpermitted renovations. In these areas, people frequently erect huts made of low quality materials, which presents serious safety problems, including potential fire hazards. Therefore, it is essential to redesign and renovate these buildings to comply with current fire and safety regulations, which they currently lack.

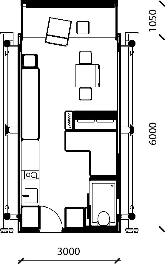
The plan illustrates the different cores designed to support both single and double modules, optimizing space utilization. This approach provides flexibility for various site sizes, allowing smaller sites to use single module cores instead of the double modules, which require more space.

Single and double module cores

Each single module has an area of 18m² and is equipped with the same movable furniture modules designed for the existing building apartments. However, half of the space is fixed, including the kitchen and toilet modules, due to plumbing requirements. Aside from these fixed areas, the users can rearrange the furniture as they like, ensuring a flexible and adaptable living space even within the small module.

By adding an additional module, the internal area expands to 36.6m², accommodating up to three beds suitable for a household with two children. This extension offers greater spatial flexibility, allowing all other furniture to be pushed aside to create a spacious living area at the front, as illustrated on the following pages.

HOISTING THE MODULES

The frames and modules are equipped with mounting points designed to be lifted and maintained in a horizontal position using a crane attached to counterweights. This setup facilitates easy customization, addition, or removal of modules, which can be done from the front rather than from above. This approach not only simplifies installation but also enhances maintenance efficiency.

TERM : THESIS l SEMESTER 2 SUPERVISOR : Leonhard Clemens

SITE :

Urban Transition

Reimagining the Petrol Station as Living Space

SONNENALLEE

BERLIN

GERMANY

This studio, titled COPY, explores the value of replication as a method of learning in architecture. While copying is sometimes seen as synonymous with plagiarism, this studio reframes it as a way to study and internalize the principles of exemplary designs. Each student was assigned a specific building to analyze, focusing on its architectural elements and design strategies. I was given a restaurant designed by Smiljan Radic, which served as the foundation for my initial exploration.

In the second phase, we were presented with a new challenge: to create an original project for a randomly assigned site. The goal was to translate the architectural insights from our studied building into a distinctive and contextually responsive design.

Studio Task
SITE : SANTIAGO CHILE
RESTAURANT MESTIZO FUNCTION : ARCHITECT : Smiljan Radic

The physical abstract model showcases the architectural elements of the case study building, highlighting the layered platforms, each with specific functions. A key focus of the model is the restaurant's unique structural system: large boulders serving as columns that support what appear to be randomly arranged beams, which in turn hold up the roof. This design reflects the creative and distinctive structural approach of the original building.

The given site is an abandoned petrol station situated in the lively district of Sonnenallee, Berlin. Located on a corner lot, it is surrounded by mixed-use buildings featuring retail spaces on the ground floors and residential units above. The site itself shows significant neglect, with sections of the roof missing, litter scattered throughout, and moss and grass overtaking parts of the structure.

Structural beam
Structural beam boulder roof
terrace

CHOW KIT GARDENS

Assistance & Community Hub

TERM : SUPERVISOR : Ar. Eric Chang

SITE :

BACHELOR l SEMESTER 6

KUALA LUMPUR MALAYSIA

Chow Kit Gardens is a purposefully designed space dedicated to supporting the current and future residents of Chow Kit. In the aftermath of the pandemic and the surge of urban development radiating from the city center, the area has been transformed by high-rise buildings and corporate structures. These developments have disrupted local businesses, erased green spaces, and diminished the community fabric, resulting in lifeless structures that fail to connect meaningfully with the people they surround.

As Chow Kit evolves into a bustling business hub, the area faces growing challenges, including rising unemployment and homelessness. Chow Kit Gardens aims to reverse this trend by providing a lifeline to the community. The center offers job opportunities in partnership with NGOs and revitalizes the area with vibrant green spaces and rooftop gardens that frame stunning views of the city skyline.

This project stands as a call to action —

This project stands as a call to action—reminding future developments to prioritize the well-being of people and the environment, fostering a balanced, sustainable urban future for Chow Kit.

Overflow drain pvc pipe with atrium gate inlet

Plants

Sandy l Organic soil

Clean sand

Humidity retention material

Drainage cell

Waterproof membrane

Masonry block

Cement screed

Perforated collection pipe wrapped in non-woven geotextile membrane

300mm reinforced concrete

12mm steel bar

THREE / FOURTHS RESIDENCE

BIM Coordination project

TERM : MASTER l SEMESTER 1 Marco Mondello

SUPERVISOR : DESSAU-ROßLAU GERMANY SITE :

CONTRIBUTION : Design development 3D Modelling l Landscaping l Rendering TEAM : WinShen Tay

PATH OF REMEMBRANCE

A Journey of Reflection and Resilience

Ms. Delliya Mohd Zain

RIPPLE BRICK

One-Off Brick l 3D Clay Printing

SUPERVISOR : - SITE :

CONTRIBUTION : Design development 3D Modelling l Drawings l Manufacturing TEAM : WinShen Tay

Tensile Playscape

Membrane Structures

TERM : MASTER l SEMESTER 3 Henning Dürr

SUPERVISOR : BAUHAUS SITE :

DESSAU-ROßLAU

GERMANY

CONTRIBUTION : Design development Fabrication

TEAM : WinShen Tay

Boat House

Work Project

TERM : JAN 2024 - JUNE 2024 Prof. Dr. Rudolf Lückmann

SUPERVISOR : DESSAU-ROßLAU SITE :

CONTRIBUTION : Design development 3D Modelling l Landscaping l Rendering TEAM : WinShen Tay GERMANY

A PRODUCTIVE NEIGHBOURHOOD

1st Prize Winner : BAU Munich l Students l Design l Future l 2023

TERM : MASTER l SEMESTER 1 Prof. Ralf Niebergall

SITE :

HALLE (SAALE) GERMANY

SUPERVISOR 1 :

SUPERVISOR 2 : Prof. Nadja Haeupl

CONTRIBUTION : Design development 3D Modelling l Landscaping l Rendering TEAM : Sylvester Ch’ng Ying Erin Kong Shue Men l WinShen Tay

Turn static files into dynamic content formats.

Create a flipbook
Issuu converts static files into: digital portfolios, online yearbooks, online catalogs, digital photo albums and more. Sign up and create your flipbook.
Job Application portfolio Lee jia Yee by Lee Jia Yee - Issuu