SELECTED WORKS
Summary | Selected Projects
DESIGN (P.3-23)











![]()
DESIGN (P.3-23)















JIBsheet MAINsheet VANG REEF2
CODE0sheet
JIBhalyard
MAINtraveller HARKEN RACING WINCH 1111
HARKEN RACING WINCH 1111
HARKEN RACING WINCH 1111
MAINtraveller
CODE0sheet JIBfurler
HARKEN RACING WINCH 1111
MAINhalyard
CODE0halyard REEF1
MAINsheet JIBsheet

Academic concept
groupe project



Academic concept
groupe project




Academic concept
groupe project






Academic concept
groupe project


Academic concept
groupe project

Academic concept
groupe project

Academic concept
groupe project



Academic concept
groupe project



Academic concept
groupe project



Academic concept
groupe project



Academic concept
groupe project


Internship Concept



Academic concept













Academic concept





personal sketches





personal sketches



By welcoming two artists for a period of two months, Amalgam combines sculpture and photography, offering an open and enriching program within an artist residency. Located in the vibrant Plateau Mont-Royal neighborhood, it provides residents with the opportunity to explore Montreal in close proximity. Amalgam is an intriguing space that sparks curiosity through the overlay of transparent materials, showcasing the dynamics of the space while revolving around the staircase, the centerpiece of this interior sculpture.



Academic concept
FIRSTLEVEL


GROUNDFLOOR

UNDERGROUDFLOOR





MODULAR WORKSHOP/EXHIBITION 1 MODULAR EXHIBITION SPACE
MODULAR WORKSHOP/EXHIBITION 2











Academic concept

This residence allows its artists to be creative and open-minded while maintaining an organized and functional lifestyle. It is a place of amalgamation; a blend of heterogeneous elements that function through the guided overlay of the staircase framework.



Kinetic refers to the set of phenomena related to movement. In the development of this display, the goal was to create rotating modules that illustrate the idea of movement, incorporating multiple components. It is a multifunctional furniture designed for a company engaged in entertainment through virtual reality, Mont-VR. This interactive showcase allows users to engage with the space from the outside and gradually discover the subject, marking the beginning of their virtual reality experience.







concept







Stratera, synonymous with Yin and Yang, is the result of a renovation project for the library of the Faculty of Design. Now transformed into a center for young adults with autism, it focuses on their integration into the outside world and sensory zoning. The aim is to achieve inclusion of neurodiversity through a balanced space. This is an environment that allows young individuals with autism to connect with their community and normalize their spectrum on a daily basis. It is a day center that enables them to experience creative, relaxing, and community-oriented spaces while remaining within their comfort zone.








Stratera allows users to come together using sensory symbols that evoke non-verbal communication. Ranging from highly stimulating to less stimulating, this is achieved through the use of color indicators and observatories throughout the spaces. Stratera is a step forward towards the normalization of autism in today’s society, hence the inclusion of neurodiversity.





Symbiosis is a project that can be summarized as the harmony between different parts of a building and its environment, as well as the harmony among its occupants. This concept becomes even more meaningful in the context of a library for students. Thus, this project is the redevelopment of the library at Dalbé-Viau High School in Montreal. It creates an atmosphere that evokes nature and fosters success. The architecture is in symbiosis with its intended function, incorporating various spaces and seating options to accommodate different needs.



Academic concept





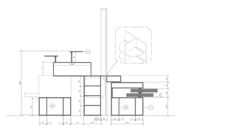
Almaya is a residential project that introduces the integration of a custom-made entrance furniture to frame the space. It is a functional piece of furniture that can provide convenient storage while following an easy flow of circulation. It offers a simple yet effective solution to frame the entryway space as well as the living room on both ends. Its linear movement creates a visually appealing focal point that captures the attention of visitors as soon as they enter the house.









WINDOW SEATING THAT EMPHASISES THE FIELD OF VISION WHILE ADDING UTILITY TO THE SPACE




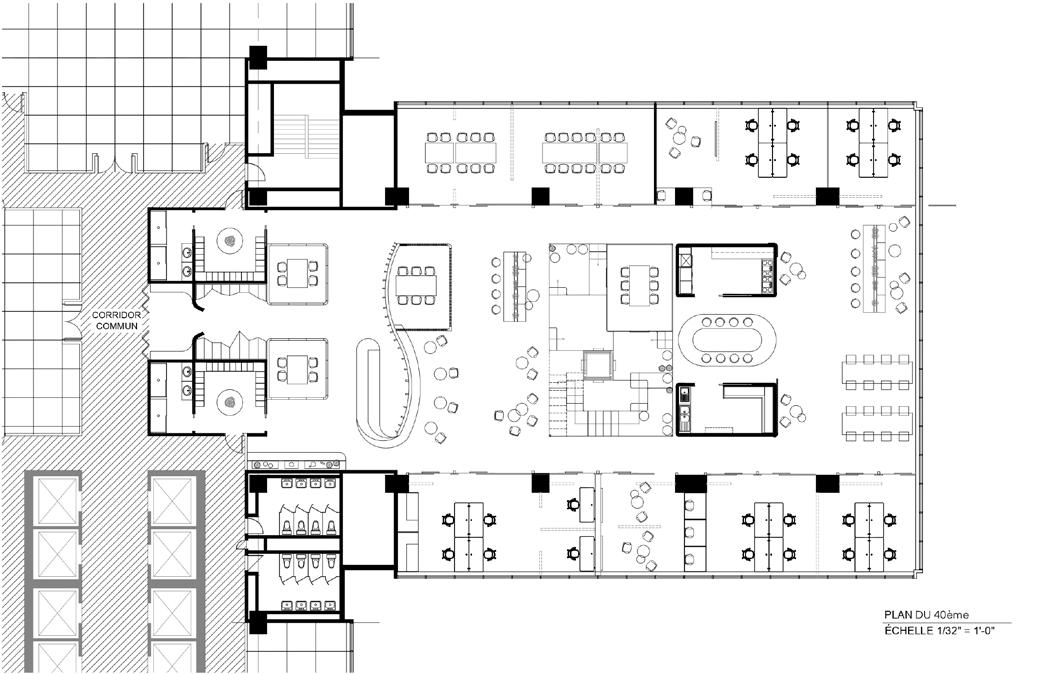
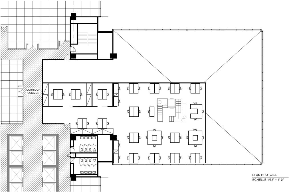
This project involves designing the headquarters of GOODEE, an eco-environmental goods and decor company. With a multicultural interest that celebrates cultural diversity, it was important to create a space that is based on the abolition of hierarchy within the offices, emphasizing the communal aspect of GOODEE. It is a multifunctional space that caters to the needs of its users through modular and flexible furniture. At GOODEE, the concept of slowness and contemplation is highlighted, hence the creation of an interactive staircase that extends between two floors.







BOUL. RENÉ-LÉVESQUE
Being the central point of vertical circulation, the staircase enables efficient communication and connectivity among the workspaces, which is key to the success of any company. By eliminating physical barriers between floors, employees are more likely to share ideas, skills, and knowledge with their colleagues. Rigid hierarchies and the «know-it-all» culture are replaced by a more collaborative environment.



