Leah Zeller Interior Architecture 2024

Page 1


leah zeller

Interior Design & Architecture Portfolio

Fitler Club | Members Only | Philadelphia, PA

Ariel Sands | Luxury Resort | Devonshire Parish, Bermuda

AutoCamp | Luxury Airstream | Yosemite National Park, CA

ServiceTitan | Tech Workplace | Glendale, CA

Gusto Green | Lifestyle Restaurant | Los Angeles, CA

Fitler Club

Fitler Club is a luxury, members-only experience created to cater to Philadelphia’s business leaders, social elite and emerging creative community. Fitler combines the best in class hospitality, dining, social and work elements with Art Deco inspired high design and an exceptional location to create an environment unlike any other in Philadelphia. The membership base holds somewhere around 2,500 members, target market ranging from successful business people to entrepreneurs to creatives. Fitler Club serves as a homebase in the heart of Philadelphia where they can entertain for business, host an event, enjoy a workout, or have a fun night out. Most importantly, it acts as a community - a second home for work, play and everything in between.

bar + restaurant

Ariel Sands

Arriving in spring 2025, Ariel Sands will occupy 12 acres in the beautiful Devonshire Parish, Bermuda, a once-vibrant tourism hub. The project boasts a 33-key hotel, 21 private villas, 30 condominiums, a full-service restaurant, and a private beach. The revitalized grounds and modern coastal interiors will usher the resort into the 21st century. Our design philosophy focused on crafting a tranquil and harmonious environment, encapsulating the essence of the beach while ensuring a fresh and inviting atmosphere. My primary role in the project was overseeing all FF&E, managing over 200 pieces of custom furnishings, lighting, casework and specification of all interior finishes which were meticulously designed and selected in close collaboration with the creative director.

4.

CONCIERGE AND GUEST TABLE - 32-N

CONCIERGE AND GUEST TABLE - 32-N

AUXILIARY TABLE - 32-N2

Inspiration images for reference only.

MANUFACTURER MUST PROVIDE

| SYNTHETIC CANE FINISH REFERENCE | VINYL

W-1 | TEAK OR SIMILAR

ALL ORDERS MUST BE MARKED AS SPECIFIED BY STUDIO PCH, INC. ALL INSTALLED FABRICS, UPHOLSTERY, CARPET, WALLCOVERING AND OTHER FINISH MATERIALS MUST MEET LOCAL FIRE CODES AND REGULATIONS. MANUFACTURER MUST PROVIDE FLAME CERTIFICATE TO OWNERSHIP/PURCHASER AT TIME ORDER IS SHIPPED. FABRICATOR AND/OR INSTALLER MUST CONFIRM THE EXACT SAMPLES, ARTWORK, AND / OR STRIKE-OFF’S MUST BE SUBMITTED TO DESIGNER FOR APPROVAL PRIOR TO PRODUCTION. Project Name: Location:

CERTIFICATE

CHASER AT TIME ORDER IS SHIPPED. FABRICATOR AND/OR INSTALLER MUST CONFIRM THE EXACT SAMPLES, ARTWORK, AND / OR STRIKE-OFF’S MUST BE SUBMITTED TO DESIGNER FOR APPROVAL PRIOR TO PRODUCTION.

W-2 | WHITE OAK OR SIMILAR
S-20

custom pieces

ALL ORDERS MUST BE MARKED AS SPECIFIED BY STUDIO PCH, INC. ALL INSTALLED FABRICS, UPHOLSTERY, CARPET, WALLCOVERING AND OTHER FINISH MATERIALS MUST MEET LOCAL FIRE CODES AND REGULATIONS. MANUFACTURER MUST PROVIDE FLAME CERTIFICATE TO OWNERSHIP/PURCHASER AT TIME ORDER IS SHIPPED. FABRICATOR AND/OR INSTALLER MUST CONFIRM THE EXACT SAMPLES, ARTWORK, AND / OR STRIKE-OFF’S

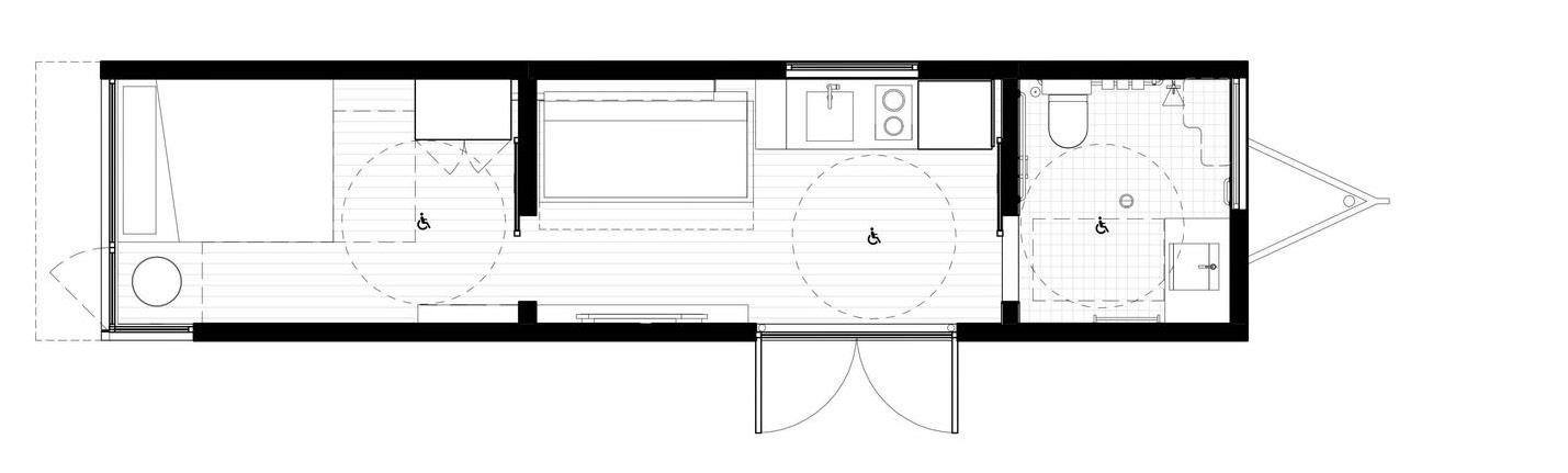
Autocamp

AutoCamp, a unique and luxurious camping experience, draws inspiration from “the wanderlust of camping and the great American road trip.” Largely referencing an American icon, the Airstream trailer, this particular project was sought after to create a universal experience and provide accessibility. The unit is able to comfortably accommodate a wheelchair to ensure that everyone can enjoy the newfound Airstream. Each is equipped with queen-size beds and soft linens; modern, sleek bathrooms with walk-in showers and vanity sinks; kitchenettes; and flat-screen TVs with cable and built-in sound systems. Among these lavish trailers is a central hub where all AutoCampers can experience local food and wine, mingle, or relax by the fire pits. With a timeless midcentury modern design, these units uphold the classic Airstream experience representing freedom and direct connection to the outdoors.

FLOOR PLAN

ServiceTitan

Quickly becoming one of the leading software providers for service companies, ServiceTitan’s rapid growth has relocated them into nine floors of a 21-story office building in Glendale, CA. As Architect of Record, we started the project by leading the ServiceTitan team in extensive design strategy sessions - interviews, workshops, and profilers to best understand how their brand culture and how employees work. This understanding enabled us to create the most beneficial adjacencies and space plans that the project’s program demanded. The building will be a complete brand experience for ServiceTitan employees and clients, boasting a soccer pitch, recording studio, trade pop-up shops, full outdoor BBQ, multiple bars, terrace lounges, and ample workspace.

Gusto Green is a plant-forward lifestyle restaurant located in DTLA, pushing the boundaries on food innovation and elevating hospitality experiences. With 6,000 square feet at the ground floor of consulting firm Green Street’s headquarters, Gusto Green hosts a retail experience, full bar, double-height greenhouse, private dining and 10-seat chef’s table. The high-end space provides enriching moments through connection and community; and unveils the cannabis and plant-medicine movements. It provides the chance to explore, engage in new food and promote wellness. We’re lucky to be living in a future-oriented time when it comes to creative thinking, and Gusto 54 group is successfully demonstrating the unforeseen health benefits in the new contemporary world of cannabis.

Collaborated on at M-Rad Architecture, Architect of Record

*Final design completed by Studio UNLTD

Green glazed tile
Green house structure (without glass) on polished concrete wall Green house structure
Wainscot
GUSTO GREEN
Wainscot Polished concrete
Painted
glazed

Turn static files into dynamic content formats.

Create a flipbook
Issuu converts static files into: digital portfolios, online yearbooks, online catalogs, digital photo albums and more. Sign up and create your flipbook.