léa fallet



HEALTHCARE ALLTYPES


LANDSCAPE MASTERPLAN




04 HEALTHCARE CLINICS STAGE 0 TO 5
HEALTHCARE CLINICS


TWIQUE CLINIC
HOLLAND PARK CLINIC
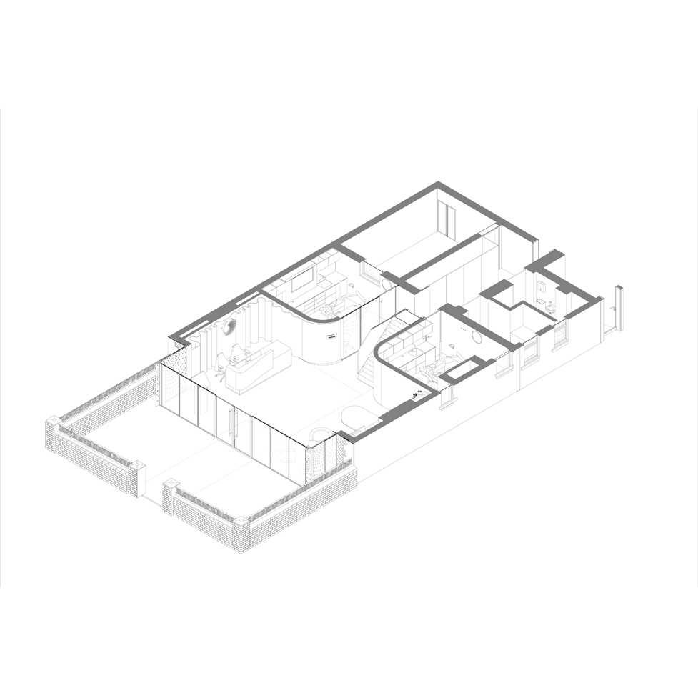
Holland Park Avenue

48 SQM / 516 FT2
DENTAL CLINIC
Road London
124 SQM / 1,335 FT2
61 SQM / 656 FT2


SANDFORD CLINIC
Kingsbury Road Bexleyheath
210 SQM / 2,260 FT2




Having mainly worked in the healthcare sector, I specialise in transforming and refurbishing existing buildings into private clinics. My experience includes working on listed buildings, where I manage projects from stages0to5.Ifocuson delivering designs that meet client needs while ensuring compliance with regulations. My duties include collaborating with the project team throughoutallstages. sandford clinic 3D in revit



By merging architecture and interior design, I emphasise listening to and understanding the client’s vision. I translate their ideas into a detailed project brief for the team, offering options through mood boards, reports, drawings and visuals to help decision making. Architecture and interior design should align seamlessly, as designing encompasses much more than just choosing finishes, it also considers functionality andaesthetics.


I have learnt to develop detailed 3D models based on my site surveys. I can represent both existing structures and proposed designs. From entire buildings to furniture details, my models provide clear and accurate visuals for communication Using BIM method, enhances collaboration with the team and guarantees accuracy throughout the project, because it ensures a thorough understanding ofthespace.




1. door leaf - solid timber - white matt signal RAL 9016 - dB rating/ sample to be approved.
2. timber architrave - 45mm solid timber matt white RAL 901615mm shadow gap and 15 rebate to surround door.
3. guardsmen pull handle (on both sides) - 1200mm length19mm dia - solid brushed bronze - data sheet to approved.
4. vision panel - 165 x 1400mm with arris edges - flush to doorlow iron glass.

Within my role I produce detailed drawings for the construction stage. I have also developed various schedules, such as door schedules and componentschedules,to facilitate communication. These documents are crucial in streamlining processes and ensuring that all specifications are in line with the project needs. Communicating with the suppliers and providing the right specifications for the projects is one of my favouritetasks.



I assist in preparing planning applications by gathering necessary documentation, creating drawings, such as site plans, elevations, etc and ensuring compliance with local regulations. I ensure that proposals are clear, and meet the planning requirements. I ensure project requirements are met throughout the process, not just during the application. I verify design alignment with Building Control by reviewing reports and addressingrisks.



collage with magazine paper and glue

in the city


HEALTHCARE LABORATORIES


KING EDWARD VII HOSPITALBeaumont Street London
436 SQM / 4,697 FT2
6 BUILDINGS ANALYSEDfrom 2,870 SQM / 30,892 FT2to 4,424 SQM / 47,631 FT2

HEALTHCARE HOSPITAL





I worked closely with the client to develop a detailed brief for their future laboratory project, including microbiology areas, auto-lab zones, offices, and support spaces. I evaluated and compared buildings against the requirements, presenting design reports on functionality, flow, and alignment with the brief. The axonometric views and diagrams (with Revit / Illustrator) helped to inform decisions, considering expansions for long-term solutions.


I collaborated closely with my colleagues on designing for the Health Space team, ensuring the interior design of the royal Edward VII Hospital met both their and the client’s demand. The project involved multiple people and frequent meetings, making it an intense experience. We utilised BIM for efficiency and communication. I also had to study the NBN volume to meet all clinical needs and dimensions, ensuring the project’s success.



collage with magazine paper and glue

over the sea


24 RESIDENTIAL ALL TYPES STAGE 5 TO 6

HANGING GARDEN
RESIDENTIAL
20 APPARTMENTS





TERRASSE ABRITÉE



LE HALL
RÉSIDENTIEL
LE HALL
RÉSIDENTIEL
LE HALL
RÉSIDENTIEL
Plan du troisième étage (R+3)
1 : 500
Plan du troisième étage (R+3)
1 an après ...

rez-de-chaussée (RDC)





parking level 0 at diana and benjamin at elise and charles

1 : 500
Plan du troisième étage (R+3)
1 : 500
Plan du premier étage (R+1)
1 : 500
Plan du premier étage (R+1)
1 : 500
Plan du premier étage (R+1)
1 : 500
plan accommodation level 4 plan accommodation level 3
6 mois après ...
Chez Céline et Jérome at elise and charles house 3D in autocad
2 mois après ...
évier et les

I developed a press kit for 20 participatory housing units. Delivered as adaptable volumes, they include essential facilities, like sanitary blocks, sinks and ducts. The design evolves over time with its inhabitants, based on plans imagined with architects, making the housing affordable. I collaborated closely with the lead architect to understand and read the project, enabling me to write, illustrate with diagrams, and layoutthematerials.

D&B decided to expand the family and they now need an extra bedroom.
D&B saved money and now expand their home with a mezzanine, they add a bathroom, a guest bedroom and an office space.
D&B wanted more privacy and add a partition between the bedroom and the living room.
D&B have moved their furniture and have done some finishing touches
D&B receive their accommodation "in a capable volume." It is equipped with a sanitary block, a sink, and ducts.
Etanchéitée
Isolant fibre de bois 20+20 cm
Chenaux retournement étanchéité habillage zinc h15cm

mécanique Isolant fibre de bois 20+20 cm








Isolant 15cm
Etanchéité:Delta MS Drainage raccordé eau réseau EP
carré zinc 15*15cm




HAUTEUR A REGLER AVEC TALUS

Bardage Douglas lames verticales non jointives 15*12*9 espacement 1
isolant aminci 10 cm pour lame d'air bardage
isolant 15 cm+enduit
Isolant 15cm
Etanchéité:Delta MS Drainage raccordé eau réseau EP


1 2


I produced construction detailed drawings, plans and sections for the reconstruction of an existing house. The goal was to preserve key elements, such as the reinforced concrete and solid foundations, while maintaining the original geometry of the house. I also visited the site with various contractors to ensure smooth coordination during the construction phase.



collage with magazine paper and glue

















