

at $9,700,000
Crafted with an unwavering commitment to quality and an exacting eye for detail, this grand south-facing single-family home on Chestnut Street emerges as a testament to French elegance in the vibrant heart of Beacon Hill. The journey of transformation undertaken in 2018 by the current owners, alongside the acclaimed Holland Construction, drew inspiration from their Parisian residence, culminating in a harmonious blend of classical grace and modern luxury.
Beneath this remarkable residence, an expansive lower level unfolds into a private spa sanctuary, featuring a swimming pool with an infinity current for an immersive swim experience. This spa area is further enhanced by a swim-under Hammam and steam room, crafting a retreat where relaxation and luxury intertwine. Ample storage, a bathroom, and a double set laundry room ensure functionality meets the sophistication of its leisure facilities.
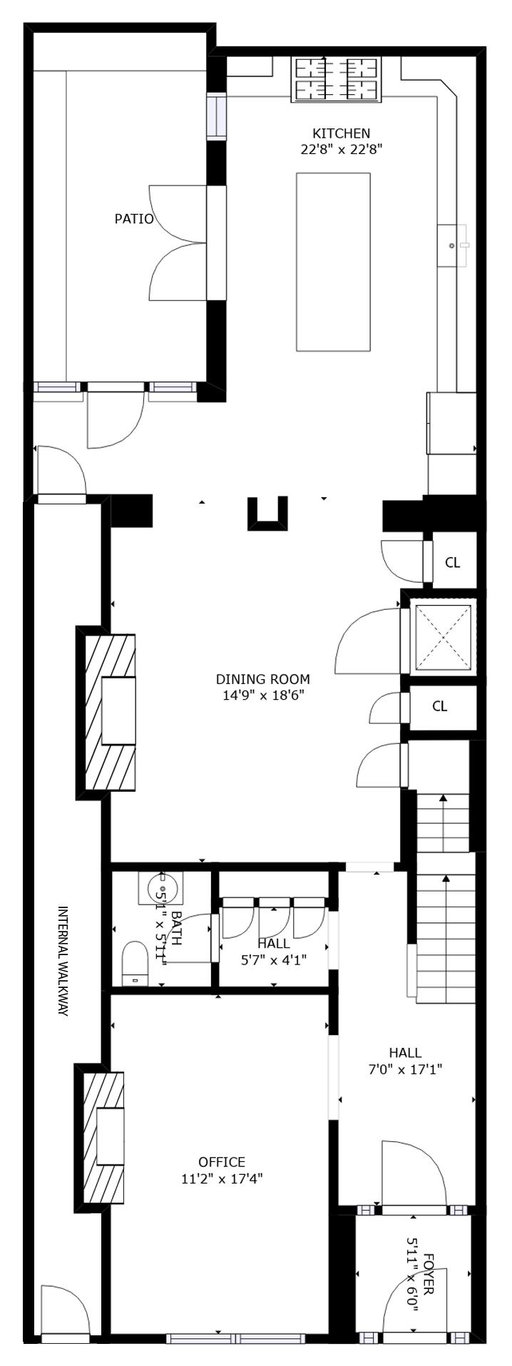
Upon entering through the double-door foyer, the home reveals its meticulously refined interior. The front office or family room transitions smoothly into a radiant dining room, promising an environment of warmth and welcome. The chef’s kitchen, equipped with a Lacanche stove, built-in wine fridge, and an expansive wooden island, overlooks quintessential neighborhood charm, bringing the outside in. A custom Delft tile backsplash signifies the homeowner’s personal touch, setting this space apart from typical renovations.
An outdoor patio adjacent to the kitchen, featuring a gas fireplace and grill, extends an invitation for dining under the stars. Inside, period-correct Versailles parquet and Hungarian Chevron flooring add historical integrity and sophistication. The living room, adorned with a wood-burning fireplace and coffered ceiling, offers tranquil views of the leafy street through three stately windows. A narrative of elegance continues with a billiards room, complete
with a wet bar and Juliet balcony, and a formal library or home office for contemplation or work.
Seamless elevator access connects five of the six floors, ensuring effortless navigation through the home’s expansive layout. With eight working fireplaces enriching various spaces, warmth and ambiance are never in short supply.
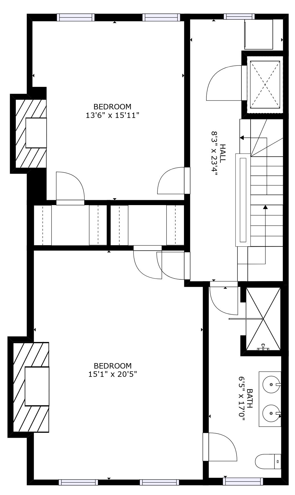
As one ascends to the residence’s private levels, the primary suite stands as a haven of tranquility, featuring a walk-in closet with a center island and a marble bath with a double vanity, underscored by a large sitting area with a fireplace. Additional bedrooms and bathrooms provide comfortable and private accommodations for family and guests.
The capstone of the home is a transformed attic space, now a vibrant family room. Exposed original beams, multiple skylights, a full bath, and a wet bar converge to create an inviting space for relaxation and entertainment.
This residence stands as a testament to unparalleled craftsmanship and meticulous attention to detail, offering an exceptional living experience that goes beyond the extraordinary. In creating this unparalleled Beacon Hill treasure, no expense was spared, and no detail was overlooked.
14 ROOMS
5.5 BATHROOMS
4 BEDROOMS
8 FIREPLACES

DIMENSIONS
Living
Partially Finished Brick, Stone Brick, Stone/Concrete Wood Shingles, Slate, Rubber Tile, Marble, Hardwood, Parquet 1 Rented
Bedroom #2.............................
Bedroom #3.............................
Bedroom #4............................
Bathroom #1.............................
Bathroom #2...........................
Bathroom #3...........................
Bathroom #4...........................
Library........................................ Game
Public Transportation, Shopping, Park, Walk/ Jog Trails, Medical Facility, Highway Access, House of Worship, Private School, T-Station, University

Beacon Hill
A NEIGHBORHOOD OF RICHES
Located on Chestnut Street, this stunning South Slope residence epitomizes Beacon Hill living, where being in the middle of it all is delightfully peaceful. Its prime location offers proximate tranquility and unmatched convenience, mere steps from the Public Garden and State House, and just two blocks from Charles Street’s vibrant tapestry of cafes like Starbucks and Tatte, alongside the literary haven of Beacon Hill Books & Café.
For those inclined towards an evening imbued with local flavor, the brick sidewalks guide you to 1928 for sophisticated cocktails or to the 7’s for a laid-back beer, reflecting the neighborhood’s rich and diverse social landscape. Beacon Hill is a bastion of over 100 independent shops and restaurants, offering exquisite dining experiences at Toscano, 75 Chestnut, and Ma Maison, and unique boutique finds at Covet, Flat of the Hill, and J. Grady.
This thriving community embodies the essence of connected living; it’s a place where you can entrust a skilled cobbler with your favorite shoes, have keys crafted at Charles Street Supply, collect your dry cleaning, and gather fresh ingredients from Savenor’s Market for your next culinary adventure—all within the comfort of your neighborhood. Beacon Hill is not just a location; it’s a lifestyle, offering an exquisite blend of urban convenience and serene, neighborly charm, making every moment in this distinguished South Slope home a profound tribute to the best of Boston living.






















