L Barsa Portfolio

Page 1

LB

D E S I G N P O R T F O L I O
L A U R E N B A R S A
PROFILE RENDERINGS AUTOCAD SPACE PLANNING PROJECTS PERSONAL WORK 1 2 3 4 5 6 CONTENTS Contact Information: Phone: 201.403.5847 Email: lbarsa31@gmail.com

ABOUTME

LB DESIGN PORTFOLIO

SinceIwasyoung,I havehadapassionforInteriorDesignandArchitecture.IgrewupwatchingHGTV,creatingfloor plansonscrappaperandcomputerprogramsanychanceIcould.Ienjoytakingmypassionfordesignandputtingmy allintoeverythingIdo.Iwoulddescribemyselfasacreative,hardworking,anddrivenindividualwhoisalwayseagerto learnmore.Ihavestrongattentiontodetailandalwayslookforwaystomakespacesmorefunctionalandbeautiful. I harnessedmyloveandskillsforInteriorDesignbyattending HighPointUniversity'sCIDAaccreditedInteriorDesign program.WhatIlovemostaboutdesignisthatyouarealwaysabletolearnsomethingnewandexpandcreative boundaries!

1 PROFILE
SKILLS Revit Enscape AutoCAD StudioDesigner Adobe:Photoshop,Illustrator,Fresco,andIndesign MicrosoftOfficeSuite:Word,Excel,PowerPoint HandRendering Drafting:Hand&Computer

2 RENDERINGS

LB DESIGN PORTFOLIO

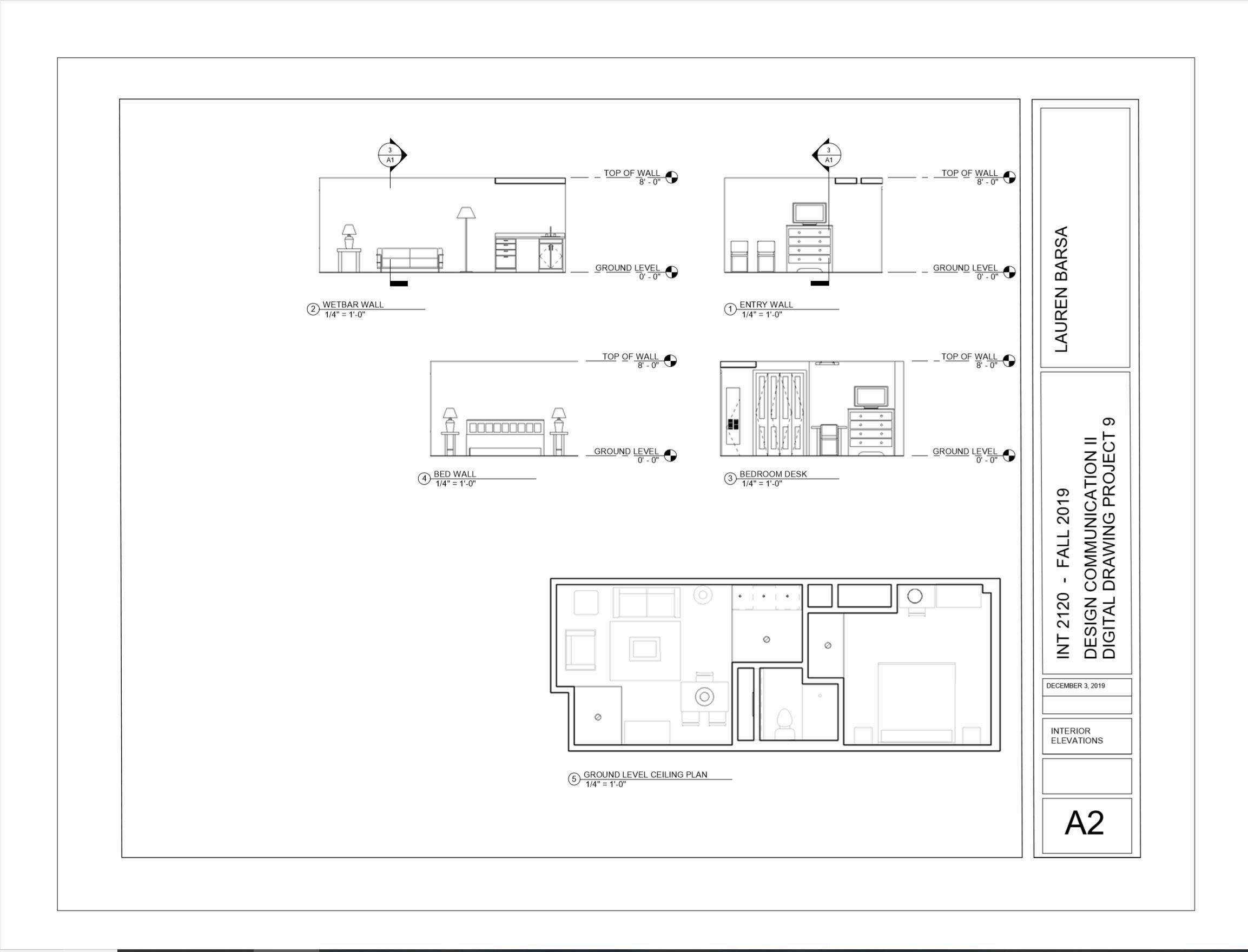
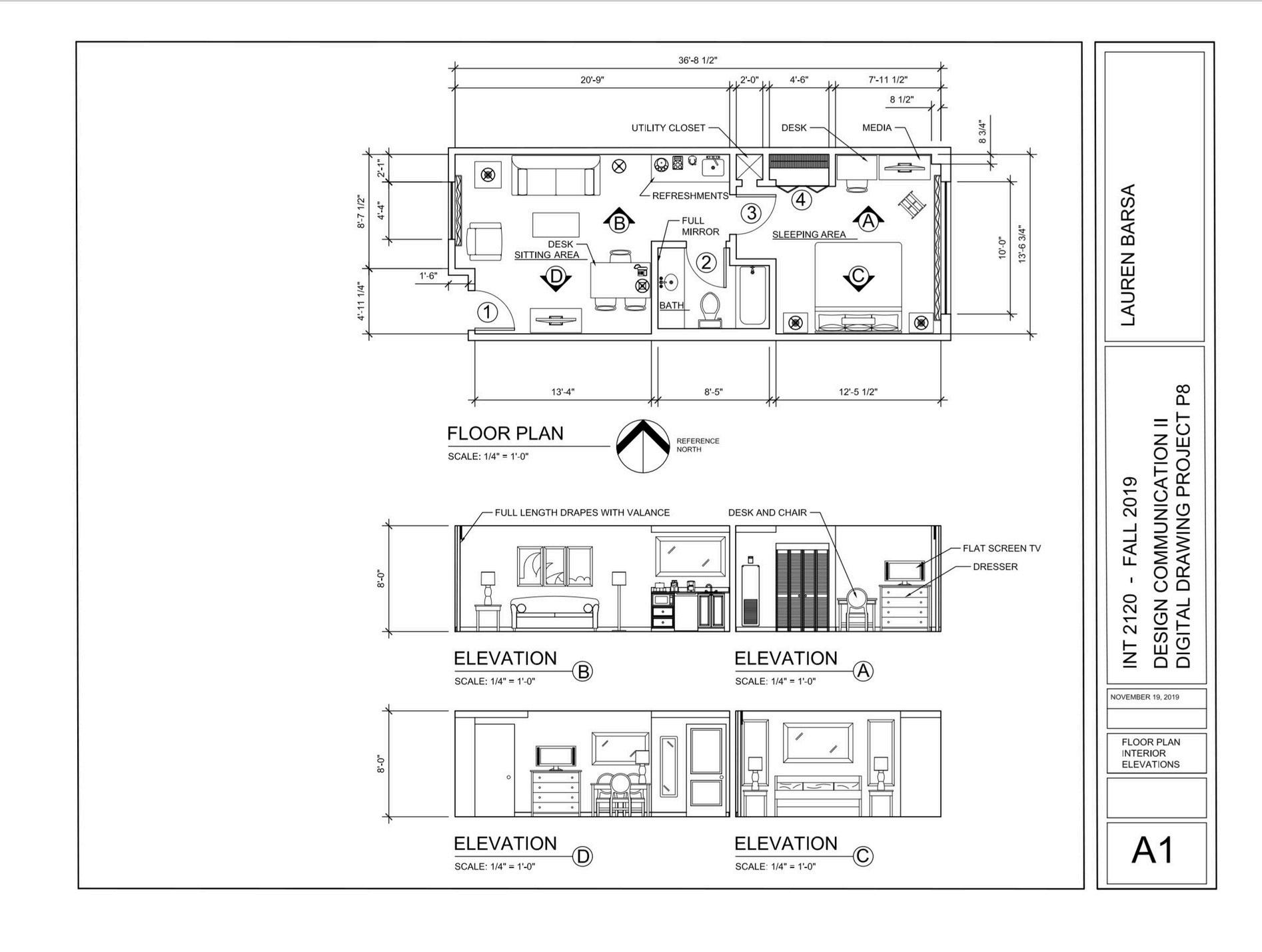
FOR THIS ONE-BEDROOM SUITE PROJECT, THE GOAL WAS TO CREATE A DETAILED CONSTRUCTION PLAN THAT INCLUDED A FLOOR PLAN, REFLECTED CEILING PLAN, AND ELEVATIONS.

OH

LB DESIGN PORTFOLIO

B U N G A L O W

P R O J E C T

THE BUNGALOW PROJECT, INVOLVED DEVELOPING SURVEY NOTES INTO ACCURATE EXTERIOR ELEVATIONS AND BUILDING SECTIONS.

3 AUTO-CAD

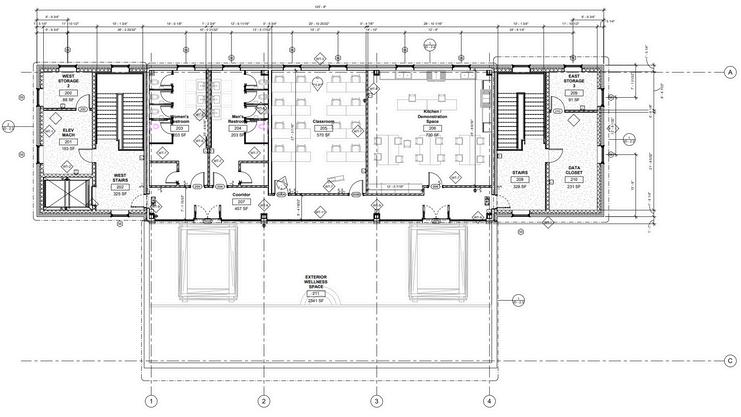
I V I N G F A C I L I T Y

A S S I S T E

THE ASSISTED LIVING FACILITY PROJECT FOCUS WAS UTILIZING SPACE PLANNING AND PROVIDING ADA ACCESSIBLE LAYOUT.

D L

U B L I S H I N G O F F I C

4 SPACEPLANNING

LB DESIGN PORTFOLIO

IN THE R&H PUBLISHING COMPANY OFFICE PROJECT, THE GOAL WAS TO CREATE A COMFORTABLE AND OPEN WORK ENVIRONMENT THAT PROMOTED PRODUCTIVITY AND ACCESSIBILITY TO THEIR VISITORS. THIS OFFICE SPACE NEEDED TO BE EASILY NAVIGATED TO AN ARRRAY OF LOCATIONS AROUND THE OFFICE BY POTENTIAL CLIENTS AND VISITORS THROUGH WAYFINDING.

REQUIREMENTS:

ADA ACCESSIBLE

EACH SPACE HAD A MINIMUM SQ FT REQUIREMENTS BASED ON BUILDING OCCUPANCY LOADS

REQUIRED SPACES: LOBBY, PRESIDENT OFFICE, (3) PRIVATE OFFICE, CONFERENCE ROOM, TRAINING ROOM, GYM, BREAK ROOM, STORAGE ROOM, AND A MINIMUM OF 8 OPEN WORKSTATIONS

P
E
EASTSECTIO WESTSECTIONCUT T I N Y H O M E
FIRSTFLOO

MATERIALS

LOCATION: NEW ORLEANS, LA

STYLE: TOWNHOUSE WITH FARMHOUSE CHIC INTERIOR PROGRAM: REVIT

LB DESIGN PORTFOLIO

5 PROJECTS

FOR THE TINY HOME PROJECT, THE TASK WAS TO WORK FOR A CLIENT TO CREATE A TINY HOME TO FIT THEIR SPECIFIC NEEDS. DURING THE PROGRAMMING PHASE RESEARCH WAS CONDUCTED ON THE END USER. RESEARCH WAS DONE ON HOW THE USER WOULD BE USING THE SPACE AND ON THEIR LIVING HABITS. WE ALSO LOOKED INTO DEMOGRAPHICS, SITE CONDITIONS, AND LOCAL CULTURE OF LOUISIANA TO TAKE INTO CONSIDERATION WHEN DEVELOPING THE CONSTRUCTION PLANS AND OVERALL DESIGN. ONCE THE PROGRAMMING WAS COMPLETED, THE INFORMATION WAS USED TO CREATE PRELIMINARY PLANS THAT DEVELOPED INTO A FULL CONSTRUCTION SET, INTERIOR & EXTERIOR FF&E SELECTIONS, AND 3D RENDERINGS.

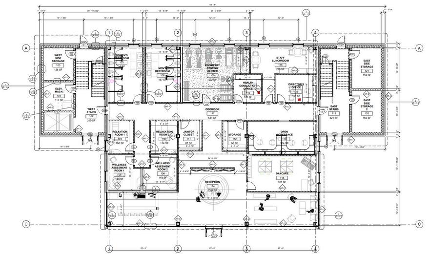
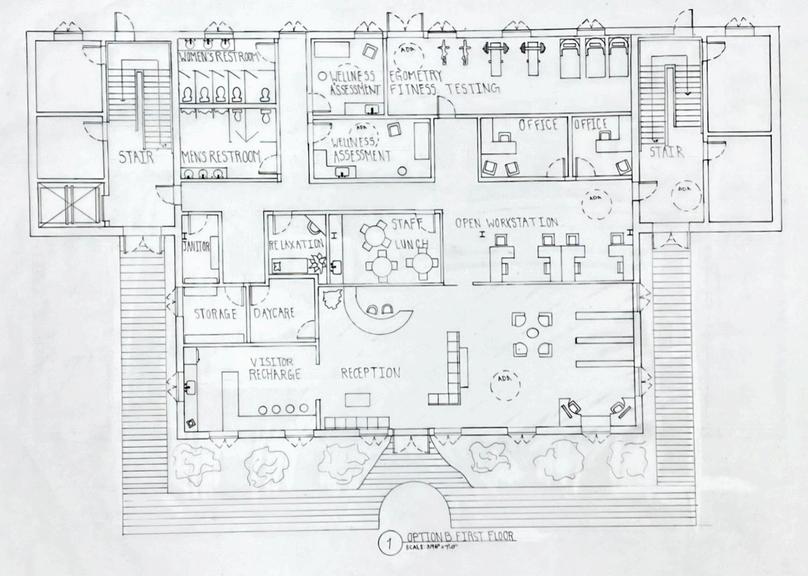
H E A L T H A N D W E L L N E S S C E N T E R

P R O J E C T

THE HAWC IS A HEALTH & WELLNESS CENTER DESIGNED TO PROMOTE HEALTHY LIFE STYLE CHOICES AND PROVIDE RESOURCES TO ACTIVE, RETIRED, AND FAMILIES OF MILITARY PERSONALE. THIS SPACE’S INTENDED USE IS TO GIVE THEIR COMMUNITY THE BUILDING BLOCKS TO EITHER REBUILD OR ENHANCE THEIR EVERYDAY LIFE.

THE HAWC BEING A GOVERNMENT RUN FACILITY, ALL EQUIPMENT AND FF&E SELECTIONS MEET GSA REQUIREMENTS.

THE HAWC FACILITY WENT THROUGH THE VARIOUS PROJECT PHASES: PROGRAMING, SCHEMATIC DESIGN, DESIGN DEVELOPMENT, FF&E, CONSTRUCTION DOCUMENTS, AND RENDERINGS.

PROJECT LOCATION: CAMP

DAWSON, WEST VIRGINIA

PROGRAMS: TECHINCAL SKILLS, AUTO-CAD, REVIT, ENSCAPE

CONCEPTMAP

PARTIMODEL ADJACENCYMATRIX

WALLTYPES

PHASE1-FIRSTFLOOR

FINALCONSTRUCTION

DOCUMENT-FIRSTFLOOR

PHASE1-SECONDFLOOR

FINALCONSTRUCTION

DOCUMENT-SECONDFLOOR

PROGRAMING&FLOORPLANDEVELOPMENT

W I L L O W C A N Y O N C OH O U S I N G C O M M U N I T Y

PROJECT LOCATION: TUCSON, ARIZONA STYLE: TUDOR REVIVAL

PROJECT FOCUSES: PROGRAMMING, SCHEMATIC DESIGN, SITE PLANNING, DESIGN DEVELOPMENT FF&E SELECTION ADA ACCESSIBLE PROGRAMS: TECHNICAL SKILLS, REVIT, ENSCAPE

PROJECT MISSION STATEMENT:

WILLOW CANYON IS A TRANSITIONAL COMMUNITY THAT AIMS TO MEET THE CHANGING NEEDS OF ITS MEMBERS. THE COMMUNITY IS LOCATED ON A 6.83 ACRE LOT IN TUCSON, AZ AT THE EDGE OF ESPERERO CANYON, INSPIRING THE SECOND HALF OF OUR COMMUNITY NAME. THE WORD "WILLOW" COMES FROM THE DESERT WILLOW, A TREE THAT THRIVES IN THE ARIZONA DESERT JUST AS WE HOPE THE MEMBERS OF OUR COMMUNITY WILL. LIVING IN A CLIMATE THAT EXPERIENCES SUNSHINE AND WARM WEATHER YEAR-ROUND PROMPTS EMPHASIS TO BE PLACED ON MAINTAINING INTENTIONAL OUTDOOR GATHERING SPACES

ACROSS THE ENTIRE COMMUNITY. WE INVITE YOU TO EXPLORE NEW BEGINNINGS AND FIND STRENGTH IN UNITY WITH US TODAY!

Lan y hn D gRom LvngRom M -up eRo We a C e Ba C e e om e om oae E v o Ge Rom G s Rom Gad
oyr

LIGHTING PLAN

DUPLEX PLAN

1BEDROOM

1BATHROOM 572SQFTEACH

BATHROOM 101SQFT

BEDROOM 142SQFT

LIVINGROOM 330SQFT

K1 BR1 LR6 LR6 K1
LR6
had Fo edGas Chande AJC-904 BR1 ohnR had Fo edGas Pea AJC-9 6 B4 ohnR had Cuve Aaba e Scnce AJC-92 K1 ohnR had Aaba e Pendan AJC-966 LR7 ohnR had Fo edGas Pea AJC-9 5
ohnR

PRELIMINARY DESIGN

LINEN/FURNITURE STORAGE

PREPAREA/BAR

POOLSTORAGE

FINAL LAYOUT

LINEN/FURNITURE STORAGE

PREPAREA/BAR

POOLSTORAGE

LB DESIGN PORTFOLIO

6 PERSONAL

THE CABANA PROJECT WAS CREATED TO TURN WASTED OUTDOOR SPACE INTO A RELAXING OASIS THAT ALSO DOUBLE AS STORAGE SOLUTION FOR THE POOL AREA. AFTER REVIEWING THE SPACE I PLANNED, MANAGED, AND BUILT THIS PROJECT FROM THE GROUND UP.

Turn static files into dynamic content formats.

Create a flipbook
Issuu converts static files into: digital portfolios, online yearbooks, online catalogs, digital photo albums and more. Sign up and create your flipbook.
L Barsa Portfolio by lbarsa - Issuu