o r t f o l i o
Í N D I C E
A S A S E R E N A
![]()
o r t f o l i o
A S A S E R E N A
ESTUDANTEDEARQUITETURAEURBANISMO
Residencial Colorado, Teresina (PI)
+55 86 99475-8382
laynemaria193@gmail.com

Sou uma estudante apaixonada por arquite ° período em Arquitetura e Urbanismo na UFPI- Universidade Federal do Piauí
Tenho 22 anos e interesso-me pelas áreas de arquitetura residencial e de interiores.
Minhas maiores qualidades são: comprometimento, proatividade, objetividade, criatividade e boa comunicação.
UNIVERSIDADE FEDERAL DO PIAUÍ
2021-2026
DIRETORA DE PROJETOS NA EMPRESA JÚNIOR PROJETECH 2023-2025
INTEGRANTE DO PROJETO DE EXTENSÃO DETALHA 2024
Arquietura Residencial e de Interiores
Arquitetura Comercial
Arquitetura Sustentável
AutoCad
Revit
V-Ray
Layout
Sketchup
Photoshop
Pacote Office
Enscape
ArchiCad
S
U D O




Este projeto nasceu do desejo dos clientes por um espaço que unisse funcionalidade e beleza. A proposta consistia em criar um pergolado junto à área gourmet, que além de suavizar a incidência solar nas tardes quentes, também funcionasse como um encantador portal natural, adornado por flores, acolhendo e emoldurando com charme o ambiente ao redor.
O projeto foi modelado no software SketchUp, detalhado no Layout e renderizado pelo Enscape.




120 x 30

120 x 30

1/15

DETALHAMENTO DE ESPAÇAMENTO ENTRE AS TERÇAS
ESCALA 1/10 MEDIDAS EM MM 245

DETALHAMENTO DE ESPAÇAMENTO ENTRE AS TERÇAS CASO USE ACM
ESCALA 1/10 MEDIDAS EM MM
OBS: Caso a cliente opte pelo uso do pergolado em ACM deve-se remover a cada duas terças internas e colocar uma rede para sustentar as trepadeiras 60 x 120
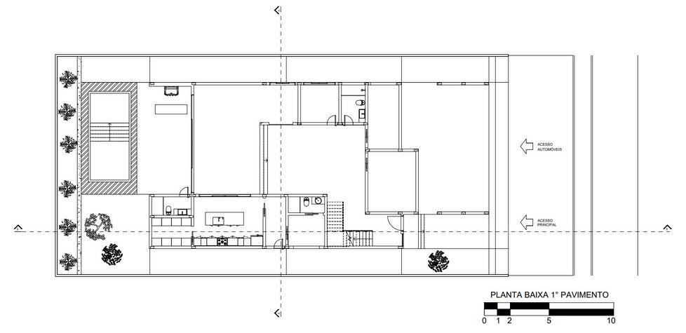
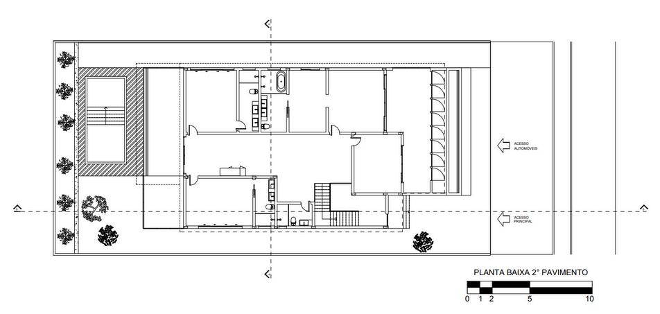
Projeto desenvolvido com a proposta de uma residência no condomínio Aldebaran localizada no lote 13 O lote possui um terreno de 17 x 40, com recuos de 6 e 5 metros na fachada e fundos respectivamente.
O projeto foi desenvolvido seguindo a proposta de ter um bloco retangular com espaços internos que respeitem a privacidade de seus moradores e que tenha como ideia principal uma área de lazer externa que possa ser relaxante e confortável.


O projeto foi desenvolvido utilizando os softwares V-Ray, Revit, SketchUp e AutoCAD.



A residência se subdvide em dois blocos, um acima do outro, onde no pavimento térreo há as áreas sociais contando com living, sala de cinema, área gourmet e jardim. Já no segundo pavimento, conta-se com uma área íntima onde há uma mini cozinha para refeições, todas as suítes, o quarto de hóspedes e externamente há uma varanda exclusiva da suíte master Ademais, na suíte principal, do casal, há painéis móveis para promover maior privacidade e que podem ser abertos para promover a entrada de ventos caso seja necessário. Perspectiva volumétrica esquemática realizada no software Revit

Render realizado no software V-ray da fachada principal em perspectiva
Render realizado no software V-ray da área externa em perspectiva

A escolha de materiais na casa veio de uma mistura de tons terrosos e preto, mostrando que há um equilíbrio entre o sóbrio e a claridade. Para quebrar um pouco todos estes tons, foi utilizado a ideia de bancadas e móveis brancos e um jardim comportando um Ipê roxo.


Perspectiva 3D realizada no programa Revit
Corte BB realizado no programa Revit
Detalhamento de telhado verde realizado no programa AutoCad

