ArchitecturePortfolio_2023

Page 1

LAYAN MUDALLAL

cal poly pomona architecture 2018-2022 selected works

LAYAN MUDALLAL

Torrance, California layan_mudallal@hotmail.com lmmudallal@cpp.edu

Education

California State Polytechnic University, Pomona

Bachelors of Architecture, Class of 2023

2018 - Present, GPA: 3.8

Modern Montessori School

Amman, Jordan

High School Diploma (International Baccalaureate), Class of 2018 GPA: 3.8/4.0

Experience

Dewberry

Architectural Intern : May 2022- Present

Bronco Dreamers Resource Center

Marketing Assistant : January 2021- May 2022

Al Nasser & Partners Architects

Architectural Intern : June 2017 - August 2017

Faris & Faris Architects

Architectural Intern : June 2016 - August 2016

Skills

Programs: Revit, Rhinoceros 3D, Sketchup, AutoCAD, V-ray, Enscape

Bluebeam, Adobe Creative Suite: InDesign, Illustrator, Photoshop

Model-making, Hand-drafting, Drawing, Painting

Microsoft Office Suite Languages

Fluent in English & Arabic

Resume

AMBULATORY SURGICAL CENTER

FALL 2022 | ARC 4021L

SPORTS MEDICINE CLINIC

FALL 2022 | ARC 4021L

AGRICULTURAL RETREAT

FALL 2021 | ARC 4011L

STEPPED HOUSING

SPRING 2021 | ARC 3021L

THE SCIENTIST’S HUB

FALL 2020 | ARC 3011L

ARCHITECTURE ACADEMY

SPRING 2020 | ARC 2021L

4TH STREET MUSEUM

FALL 2019 | ARC 2011L

SELECTED IMAGES

2018-2021

Table of Contents
02 03 04 05 06 07 08
01

AMBULATORY SURGICAL CENTER

a patient focused experience

The project aim is to create a stress alleviating environment with a clear and direct building design that organically connects patients, visitors, and workers to surrounding nature while promoting one’s mental wellbeing and calmness. This goal is achieved through contributing an abundance of natural lighting with panorama windows that wrap the building connecting it to the outdoors, which also creates positive diversions for patients indoors. There are two out-door gardens that people can go to unwind, outside the breast cancer clinic and to the back of the building where there is a calming waterfall to encour-age outdoor movement and cue audio sensory relief . The building is split with clinics and surgery departments on either end, while the middle and thinnest part behaves as a vertical triple height space solely providing an easy and clear space for circulation and wayfinding. The materi-ality is chosen as visual relief also to bring the patients closer to nature with a natural color palette with bright, calming whites, sky blues, greens and auburn woods to keep the patients in a setting that advocates for serenity. Lastly, the design takes into account sustainability from its green balconies, roofing, PV panels, shading louvers, and daylighting strategy.

ELEC. STORAGE DRWBLD. CASHIER PHARMACIST AREA WILLCALL BULKSTORAGE TEAREA EQUIP. CASTROOM DISCHARGE DISCHARGE CAFE FRIDGE PUMP FIRST FLOOR 1/32”=1’-0” UP UP Building Support Outptient Lab Outpatient Parmacy Ortho Clinic Building Support OP Imaging & Nuclear Medicine Oncology Daycare Women Breast Cancer Clinic BONE DESITOEQUIP. RAD EQUIP. CLEAN SEALED HOT LAB MEDS CONTROL PROCEDURE GYN ULTRASOUND CT SCAN ULTRASOUND ULTRASOUND

THIRD FLOOR 1/32”=1’-0”

SECOND FLOOR 1/32”=1’-0”

CLEAN CYSTO DRESS CAPSULE ENDOSCOPY STORAGE PRINT NURSE WORK FNA CLEAN EVS SURG PROCEDURE STORAGE DRESS SCALE SOILED CONFERENCE STAFF LOUNGE General Surgery Clinic Building Support ASC / OP Procedure Urology / Gastrenterology Public Outdoor Area
Central Sterile Processing Pre-Op & Post-Op Recovery Outdoor Area DN UP STERILIZING WASHING VESTIBULE & LOCKERS ROOM EQUIP. WORKSTAFF LOUNGE EQUIP. DN General Clinic
UP DN EXERCISE ROOM ADAPULM TREATMENT MEDS PULM FUNCTION LAB GASBLOOD LAB EQUIP. STORAGE SUPPORT EEGEMG/RAAD CARDIO RAAD ECHO HOLDER ECHO EKG STRESS TESTING INTAKE INTAKE INTAKE SOCIAL SERVICE Pulmonary / Cardiology Clinic Building Support Public Outdoor Area Physical Therapy Physical Therapy Outdoor Area CC SCALE

SPORTS MEDICINE CLINIC

a space for an athlete’s wellbeing

This Sports Medicine Clinic aims to provide an uplifting and energetic facility for recovering athletes. Honoring Kobe Bryant in this design, by fostering a space that promotes the “constant quest to be the best version of one’s self.” This is a mentality he followed both on and off the court, and thought it was an inspiring message for recovering athletes . Reflecting his “Black Mamba mentality,” the design of the facade incorporates a dark patterned, snakeskin exterior that wraps around the entire building. There are also hints of orange that peek out from underneath the skin, which is meant to reveal Kobe’s more playful personality and his life outside of being an athlete. Overall, emphasizing a distinction between having both a professional and personal life in this design.

AGRICULTURAL RETREAT

a connection to surrounding nature

The project sits on a flat landscape standing out from its neighboring buildings, but still corresponding to the surrounding buildings character. Following a courtyard typology and creating this central rectangular patio for residents and visitors to connect and communicate . The design form plays with different thicknesses , upon entering the building the thinness of the programs becomes thicker as you circulate around. Separating the shared, living and working spaces through the accomplished form developing this central density . The gable roof design follows a frequency going in one direction , with a consistent height throughout the project; however the roof area differs due to the different programs. The vaulted ceilings add volume to the space, which increases natural daylight entering the space making it crucial for the users of the space along with the lookout window openings that give a great view at the beautiful landscape and the skylight bringing in light throughout the day.The facade treatment shows a continuous exterior , the programs articulated around the central courtyard when strolling in the interior corridor one can sense that each volume of space exists separately. The simple volumetry and lightness of the gable roof in the project along with the grounding creates this harmony with the series of skylights and overall shaping this barn-like pavilion.

ELEVATIONS
SECTIONS

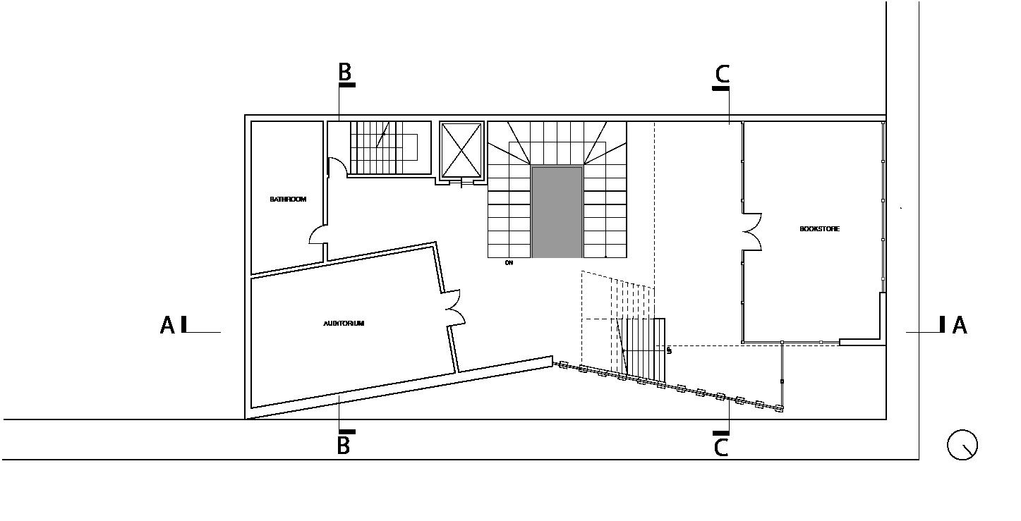
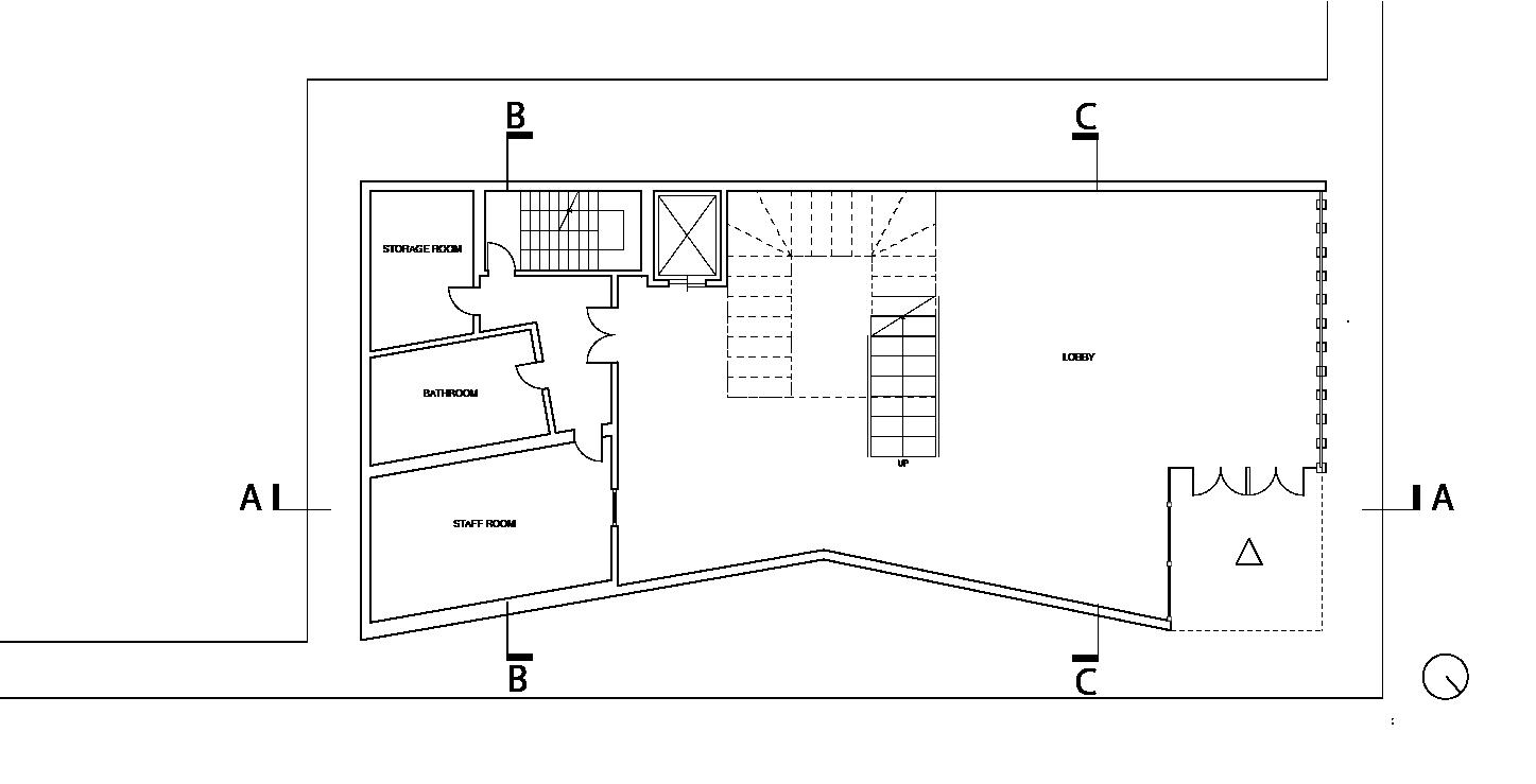
STEPPED HOUSING

a mixed use housing development

This project is a mixed use housing development located in Los Angeles, at the intersection of Hollywood Blvd. and Prospect Ave. The project has five levels and contains a variety of different units that include studios, one bedrooms and two bedrooms. The units are situated above the ground floor commercial spaces and commercial and residential parking lot. The building wraps around the site, dividing into two L-like shaped buildings on the two corners creating a central courtyard . The exterior of the building is modern and simple , whereby windows are placed in a zigzag manner with wood strips around. The ground floor consists of a private lobby for the residents and other various commercial spaces that include cafes, restaurants and small businesses. The majority of the housing units have balconies that face the inner court yard with a few that face outwards to the streets.

GROUND LEVEL PLAN SCALE 1/8”=1’ STORAGE LOBBY COFFEE SHOP STORAGE TRASH ELECTRIC TRASH RESTAURANT STORAGE YOGA STUDIO LOBBY DOWN LEVEL 01 PLAN SCALE 1/8”=1’ W/D W/D W/D D W LEVEL 01 PLAN GROUND LEVEL PLAN
MULLIONS MULLIONS GYPSUM BOARD FULLY ADHERED WATER MEMBRANE ROOF MEMBRANE GLASS CANT PARAPET FLASHING CONCRETE GFRC PANELS CONCRETE BATT INSULATION ISOLATION MAT RIGID TAPERED INSULATION PARTITION WOOD RAILINGS WOOD RAILING S CONCRETE DOUBLE PLATE GFRC PANELS AIR GAP SCREWS WEATHER BARRIER 3/4" SHEATHING 2X6 STUD STEEL WINDOW FRAME GLASS SCREWS WOOD FLOORING GROUND LEVEL PARKING LEVEL FIRST LEVEL SECOND LEVEL THIRD LEVEL FOURTH LEVEL FIFTH LEVEL WALL SECTION
PERSPECTIVE SECTION PERSPECTIVE SECTION

Level 06

TOTAL: 300 sf OPEN: 72 sf PCNT: 24%

Level 05

TOTAL: 1170 sf OPEN: 288 sf PCNT: 24.6%

Level 04

TOTAL: 1170 sf OPEN: 288 sf PCNT: 24.6%

Level 06

TOTAL: 300 sf OPEN: 72 sf PCNT: 24%

Level 03

TOTAL: 1170 sf OPEN: 396 sf PCNT: 33.8%

Level 05

TOTAL: 1170 sf OPEN: 288 sf PCNT: 24.6%

Level 02

TOTAL: 1170 sf OPEN: 396 sf PCNT: 33.8%

Level 04

TOTAL: 1170 sf OPEN: 288 sf PCNT: 24.6%

Level 01 TOTAL: 1170 sf OPEN: 1112 sf PCNT: 95%

Level 03

TOTAL: 1170 sf OPEN: 396 sf PCNT: 33.8%

Level 02

TOTAL: 1170 sf OPEN: 396 sf PCNT: 33.8%

Level 01 TOTAL: 1170 sf OPEN: 1112 sf PCNT: 95%

Level 06 TOTAL: 360 sf OPEN: 66 sf PCNT: 18.3%

Level 05

TOTAL: 1244 sf OPEN: 594 sf PCNT: 47%

Level 04

TOTAL: 1224 sf OPEN: 693 sf PCNT: 55%

Level 06

TOTAL: 360 sf OPEN: 66 sf PCNT: 18.3%

Level 03

TOTAL: 1244 sf OPEN: 594 sf PCNT: 47%

Level 05

TOTAL: 1244 sf OPEN: 594 sf PCNT: 47%

Level 02

TOTAL: 1244 sf OPEN: 693 sf PCNT: 55%

Level 04

TOTAL: 1224 sf OPEN: 693 sf PCNT: 55%

Level 01

TOTAL: 1244 sf OPEN: 0 sf PCNT: 0%

Level 03

TOTAL: 1244 sf OPEN: 594 sf PCNT: 47%

Level 02 TOTAL: 1244 sf OPEN: 693 sf PCNT: 55%

Level 01

TOTAL: 1244 sf OPEN: 0 sf PCNT: 0%

NORTH ELEVATION: OPENING AREA DIAGRAM

Level 06

TOTAL: 363 sf OPEN: 0 sf PCNT: 0%

Level 05 TOTAL: 480 sf OPEN: 72 sf PCNT: 15%

Level 04

TOTAL: 528 sf OPEN: 72 sf PCNT: 13%

Level 06

TOTAL: 363 sf OPEN: 0 sf PCNT: 0%

Level 03 TOTAL: 540 sf OPEN: 72 sf PCNT: 13%

Level 05

TOTAL: 480 sf OPEN: 72 sf PCNT: 15%

Level 02

TOTAL: 600 sf OPEN: 72 sf PCNT: 12%

Level 04 TOTAL: 528 sf OPEN: 72 sf PCNT: 13%

Level 01 TOTAL: 650 sf OPEN: 650 sf PCNT: 100%

Level 03

TOTAL: 540 sf OPEN: 72 sf PCNT: 13%

Level 02 TOTAL: 600 sf OPEN: 72 sf PCNT: 12%

Level 01 TOTAL: 650 sf OPEN: 650 sf PCNT: 100%

NORTH ELEVATION: OPENING AREA DIAGRAM

SOUTH ELEVATION: OPENING AREA DIAGRAM

Level 06 TOTAL: 300 sf OPEN: 0 sf PCNT: 0%

Level 05

TOTAL: 360 sf OPEN: 0 sf PCNT: 0%

Level 04 TOTAL: 480 sf OPEN: 0 sf PCNT: 0%

Level 06 TOTAL: 300 sf OPEN: 0 sf PCNT: 0%

Level 03 TOTAL: 540 sf OPEN: 0 sf PCNT: 0%

Level 05 TOTAL: 360 sf OPEN: 0 sf PCNT: 0%

Level 02

TOTAL: 600 sf OPEN: 0 sf PCNT: 0%

Level 04

TOTAL: 480 sf OPEN: 0 sf PCNT: 0%

Level 01 TOTAL: 600 sf OPEN: 0 sf PCNT: 0%

Level 03

TOTAL: 540 sf OPEN: 0 sf PCNT: 0%

Level 02 TOTAL: 600 sf OPEN: 0 sf PCNT: 0%

Level 01 TOTAL: 600 sf OPEN: 0 sf PCNT: 0%

SOUTH ELEVATION: OPENING AREA DIAGRAM

NORTH ELEVATION SOUTH ELEVATION

STUDIO STUDIO STUDIO STUDIO STORAGE BOOKSTORE 1 BDRM 1 BDRM PARKING STUDIO 2 BDRM ROOF 75'-0" GROUND 0'-0" LEVEL 01 14'-0" LEVEL 02 26'-0" LEVEL 03 38'-0" LEVEL 04 50'-0" LEVEL 05 62'-0" STUDIO STUDIO STUDIO SECTION CIRCULATION DIAGRAM ENTRANCE PEDESTRIAN CORRIDOR ELEVATOR STAIRWAY CIRCULATION DIAGRAM SECTION CUT

THE SCIENTIST’S HUB a

vetter mountain observatory

Overlooking the San Gabriel Mountains and situated at Veter Mountain, Los Angeles County. The project is a blend of a private space for astronomers and a public viewing area for visitors . The idea behind the project is based on creating an interaction between the private and public spaces through a connecting bridge while keeping spaces separate. Wrapping around the building the outdoor ramp serves as a public form of circulation allowing visitors to experience the beauty of the site until they reach the observation space.

A B STORAGE 120 SF. LAUNDRY 100 SF. KITCHEN 120 SF. DAY ROOM 300 SF. LEVEL 1 PLAN SCALE 1’=1/4” BEDROOM BEDROOM BATHROOM DAYROOM KITCHEN LAUNDRY STORAGE OFFICE OFFICE SECTION A SCALE 1=1/8” SECTION A
BEDROOM BEDROOM BATHROOM DAYROOM KITCHEN LAUNDRY STORAGE OFFICE STORAGE OFFICE SECTION A SCALE 1=1/8” SECTION B SCALE 1=1/8” RISE 2.5FT RUN 12FT SLOPE 1:12 RISE 6 IN RUN 12 IN SLOPE 1:2 A B TRASH OPEN DECK 300 SF. BATHROOM 60 SF. OFFICE 250 SF. BATHROOM 60 SF. BEDROOM 150 SF. BEDROOM 150 SF. OPEN MEETING AREA 400 SF.
SECTION B
LEVEL 2 PLAN SCALE 1’=1/4”
SOUTH ISOMETRIC D I A G R A M S NORTH ISOMETRIC CONCRETE SLAB ISOLATION MAT HARDWOOD FLOOR FINISH GYPSUM BOARD ANCHOR BOLT BATT INSULATION WOOD SHEATHING WATER BARRIER RIGID INSULATION AIR BARRIER GLASS FIBER REINFORCED CONCRETE LEVEL 1 4’-0” LEVEL 2 16’-0” ROOF 28’-0” SCREWS CAST IN CLIP I-BEAMS JOINTS ISOLATION MAT HARDWOOD FLOOR FINISH PLYWOOD SHEATHING CANT ROOF MEMBRANE 2-LAYERS OF RIGID INSULATION PARAPET FLASHING FULLY ADHERED WATER CONTROL TAPERED RIGID INSULATION W A L L S E C T I O N & D E T A I L E D E L E V A T I O N WALL SECTION
I S O M E T R I C EXPLODED AXONOMETRIC

D I A G R A M S

STRUCTURAL DIAGRAM

CIRCULATION SEMI-PRIVATE PRIVATE PUBLIC LATERAL VERTICAL DIAGONAL PARTI DIAGRAM
CIRCULATION DIAGRAM
SOUTH ISOMETRIC PROGRAM DIAGRAM
NORTH ISOMETRIC

D I A G R A M S

NORTH ISOMETRIC

SOUTH ISOMETRIC

LATERAL VERTICAL DIAGONAL
STRUCTURAL DIAGRAM

ARCHITECTURE ACADEMY

an architecture instituition at Cal Poly Pomona

The project is for the College of Environmental Design Architecture School at Cal Poly campus located in Pomona, California. The concept behind the design is to create a tower building that twists from the bottom to the top , by progressively rotating floor plates that look different on each level. The building’s facade consists of two different envelopes, a glass curtain wall and curved panels that suggest the flowing movement of the drape. The stairs and elevator cores are placed in the center of the plan and become the main element for structural support . Programs include galleries, presentation space, classrooms, fabrication labs, studio spaces, office spaces and a library. Spaces are meant to be shared to create this interactive and engaging environment for students. Looking at the tower one can notice that this building rises weightlessly and is itself an art installation in the middle of campus.

1-Library 2-Meeting Room 3-Studio 4-FabLab

1 2 3 A B
TOWER PLANS 1/16”=1’ 1 3 4
B
B
A
CIRCULATION VERTICAL HORIZENTAL PROGRAMS Reception Audotarium & Meeting Room Library Classrooms Seminar Room Long Gallery Office Break Offices Fish Bowl Gallery Public Space Kitchen Main Space Thesis Studio Multi-purpose Construction Plinth: Tower: CIRCULATION VERTICAL HORIZENTAL Studio+FabLab Senior Studio Classrooms Seminar Room Long Gallery Offices Gallery Public Space Cafe Main Space Thesis Studio Multi-purpose Construction Plinth: Tower: Core

4TH STREET MUSEUM

a los angeles art museum

The project is an art museum that is located in the busy city of downtown Los Angeles, California. The project’s central idea started with the elegance and refinement of the exterior that opposes the unconventional disorder and dissonance of the interior . The overall organization of the museum is engrossed with these overlapping spaces that act as galleries and auditoriums. Each space is designed differently to work best with the artist’s type of art. The circulation pattern depends on the program placement whereby visitors have to pass by every floor level to reach the gallery space so they experience the entire sense of the building’s awkwardness and informal organization that act as spaces. The museum’s facade consists of glass walls to allow for quality of light to come in as well as offering an overview of the outside environment.

COLLAGES 2018-2021
MODEL FABRICATION 2018-2021
PHYSICAL
ART PIECES 2018-2021

thank you

LAYAN MUDALLAL

architecture portfolio layan_mudallal@hotmail.com linkedin.com/in/layanmudallal

Turn static files into dynamic content formats.

Create a flipbook
Issuu converts static files into: digital portfolios, online yearbooks, online catalogs, digital photo albums and more. Sign up and create your flipbook.