Portfolio

Page 1

FOLIO. PORT-

Gediminas Laurinaitis 2023 Architectural technology student
01. Table of contents 02. 03. 04. About me Hjørnehuset Prefabrication PSV 13

Gediminas Laurinaitis

www.linkedin.com/in/laurinaitisgediminas

gediminaslaurinaitis@outlook.com

Education

2021 - ongoing

VIA University College • Denmark

Bachelor in Architectural Technology and Construction Management

2013 - 2015

EPAS Vocational school • Greece

Administrative Officer

2011 - 2013

Venetokleio Highschool • Greece

High school degree

Employment History

2018 - ongoing

Industri Beton - Production

2016 - 2018

Gl. Estrup Gartneri - Production

2013 - 2016

Paradise Royal Mare & Village HotelF&B Warehouse Clerk

Soft Skills

Communication

Problem solving

Adaptability

Work ethic

Teamwork

Languages

Lithuanian - Native

English - Proficient

Greek - Advanced

Danish - Beginner

Software

01. Revit Twinmotion MS Office BE18 Sigma MS Project Enscape
Velux Daylight Visualizer +45 91 92 39 42
02.
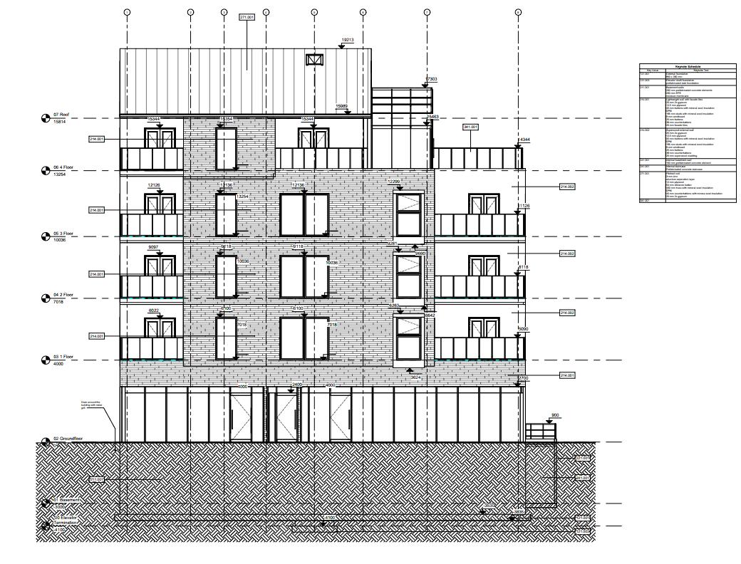
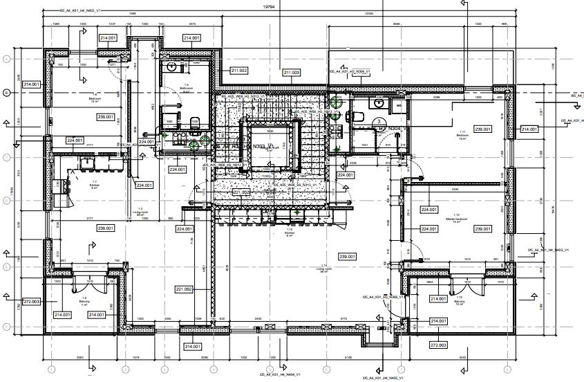
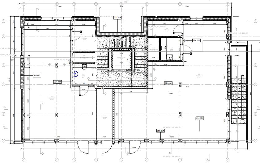
Hjørnehuset

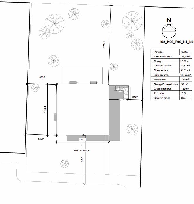
Located in a quiet neighbourhood of Åbyhøj, Aarhus, Denmark, Hjørnehuset is multi-storey social housing centred around the community, comfort, and sustainability. The area upholds Danish Design traditions which gives the area familiarity creating inviting atmosphere for its residents.

At Hjørnehuset, our top priority is to minimize carbon footprint. While developing the building, it was carefully analysed and chosen to implement rather new technology for Danish building industry, - Cross Laminated Timber slabs for floor system and Glulam beams and columns for load bearing elements. As a result, each building’s annual CO2 emissions are remarkably low, at 3.2kg/m2, which is calculated on 50year basis.

02.

Wastewater plan

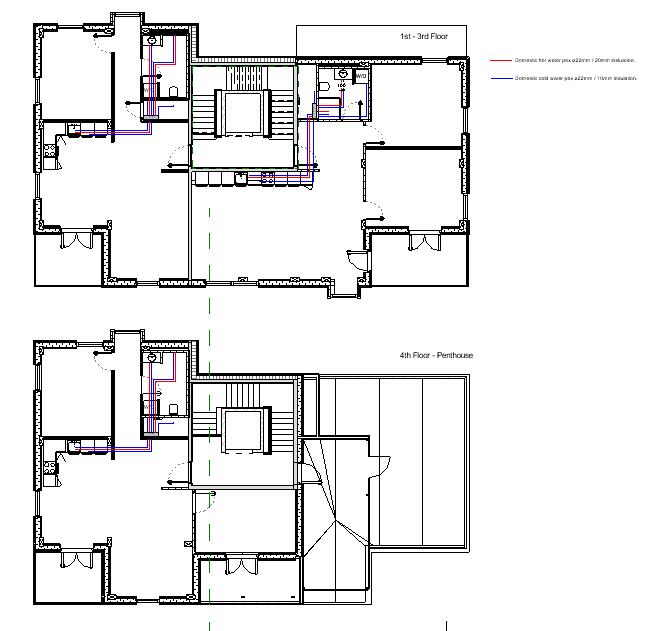
Domestic water plan

02.
02.
Foundation under elevator shaft Concrete int - Wood ext Flush cladding (Top View)
02.
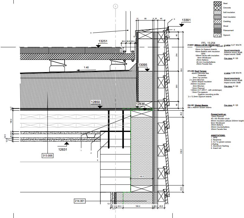
Roof terrace at ext wall on top storey + Parapet Main entrance
03.
Prefabrication

This semester, we focused on prefabrication and explored three roles: consultant, manufacturer, and contractor. We started by proposing a Multi-Purpose Sports Hall project in Grejs as consultants. After approval, we created tender documentation for prefabricated concrete elements, which we exchange with VIA Horsens.

During the manufacturing and contractor phases, our assignment included the preparation of all the necessary drawings and documentation to facilitate the execution of prefabricated wooden elements for the Bygholm Bakke Sports Hall. Grejs

03.
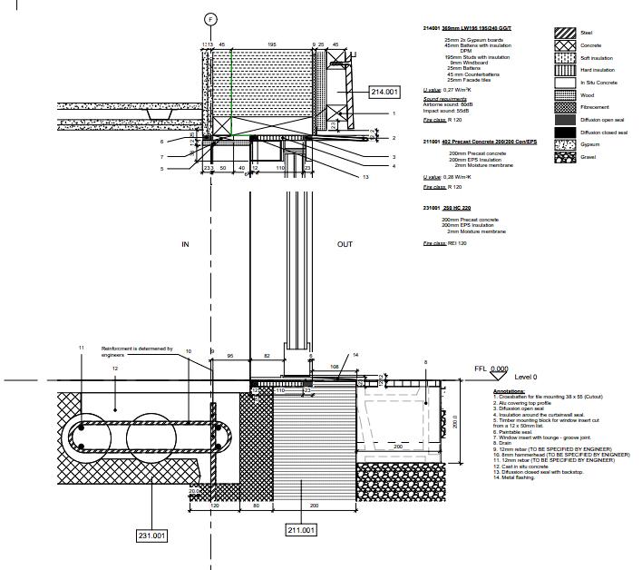
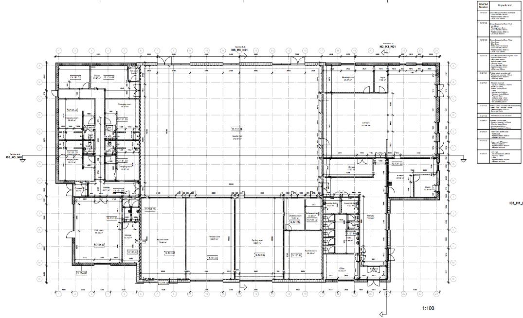
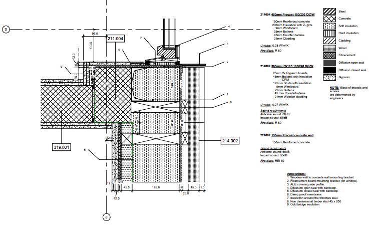
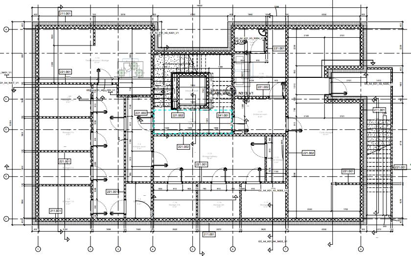
Multi Purpose Sportshall floor plan Concrete corner connection Concrete facade element connection Int Lb Foundation
03.
Prefabricated wooden element foundation detail Prefabricated wooden element parapet detail Prefabricated wooden element corner detail (Top View)

Prefabricated wooden element parapet mounting

Prefabricatedwoodenelementcornermounting

03.
Bygholm Bakke mounting and delivery sequence Prefabricated wooden element to foundation mounting
03.
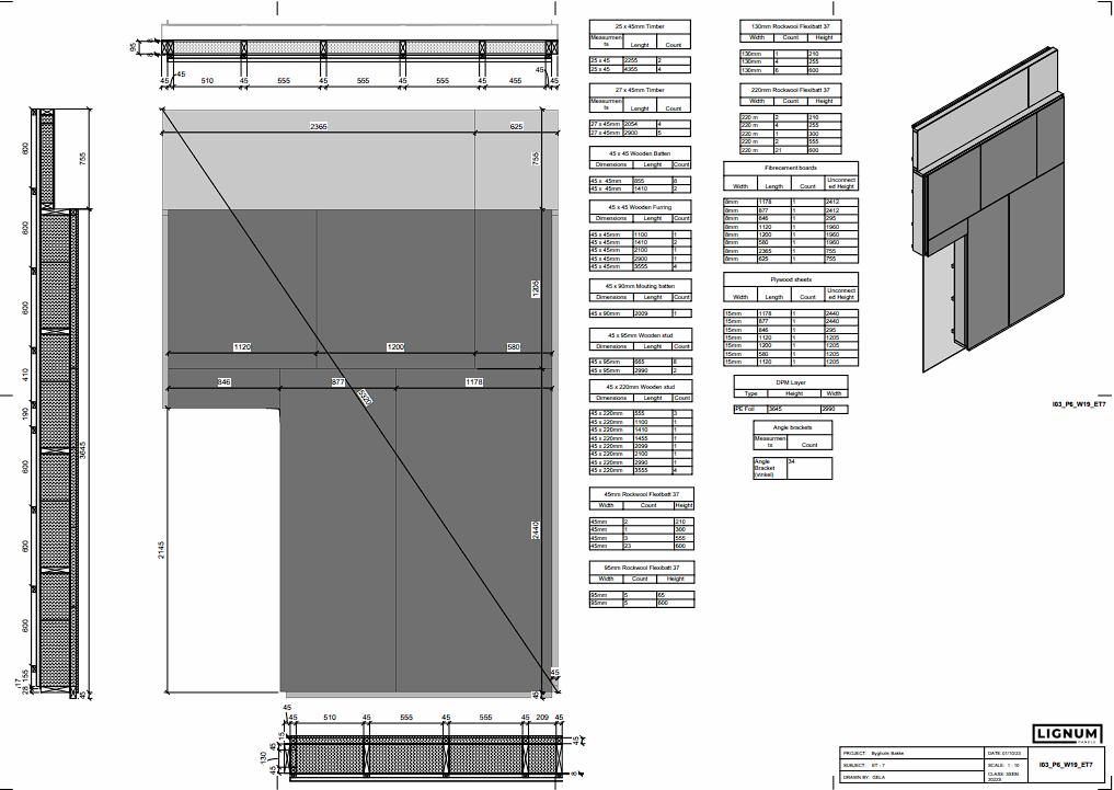
Prefabricated wooden element ET7
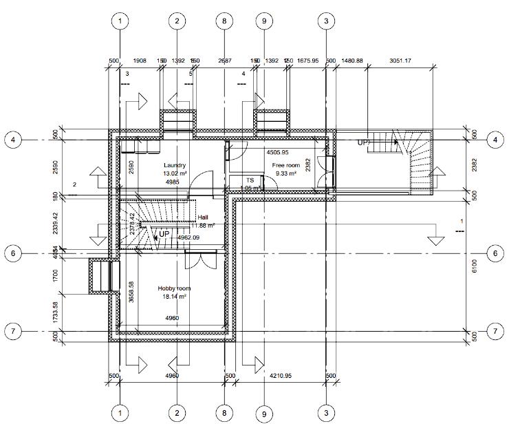
04. PSV 17

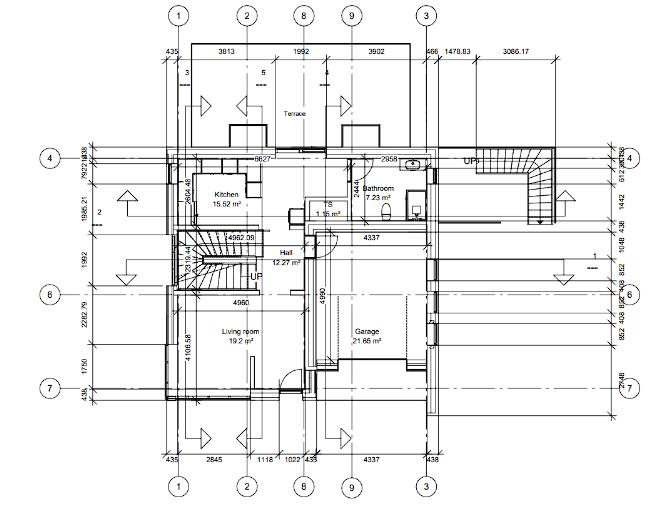
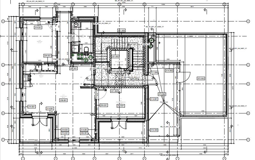
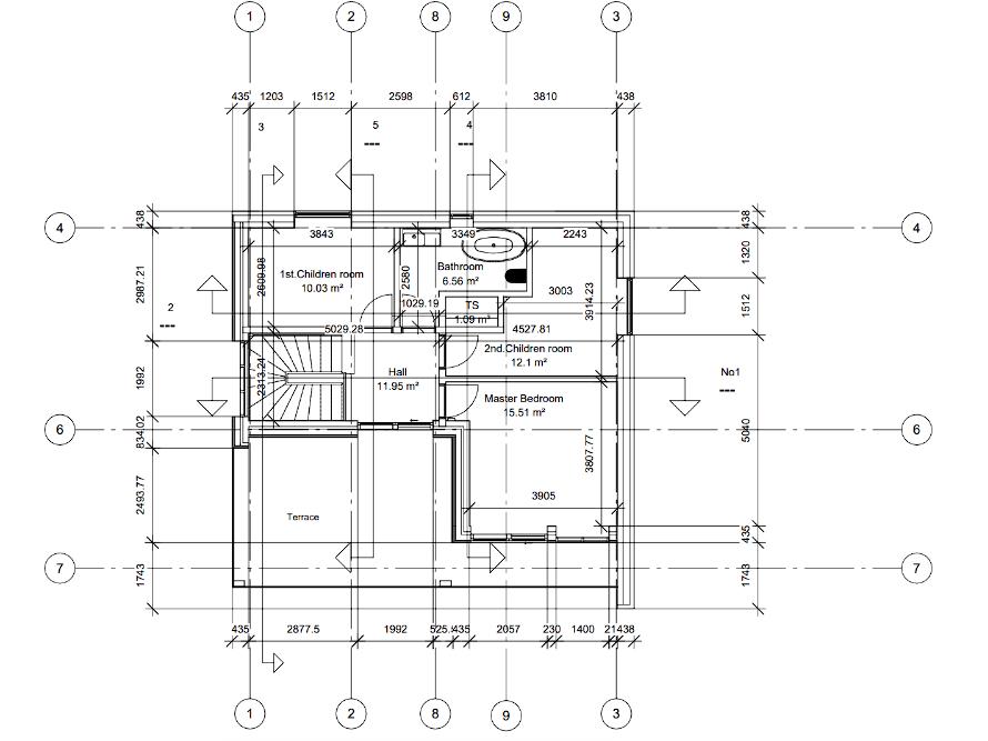
PSV 17 is our second semester project and can be found over in Skejby, right on Peter Stellfeld Vej, specifically on plot 17. It's a beautiful two-and-a-halfstory single-family house, crafted with a mix of classic Danish brick and timber light walls.

04.
04.
Bathroom with Posi joist
Int Loadbearing foundation
+45 91 92 39 42 gediminaslaurinaitis@outlook.com www.linkedin.com/in/laurinaitisgediminas Thank You!

Turn static files into dynamic content formats.

Create a flipbook
Issuu converts static files into: digital portfolios, online yearbooks, online catalogs, digital photo albums and more. Sign up and create your flipbook.
Portfolio by laurinaitisgediminas - Issuu