LAURA RODRIGUEZ
diseño y decoracion de obras
ABOUT ME

Soy una diseñadora de interiores con una sólida formación académica. Mi pasión por el diseño de espacios me ha llevado a destacar por mi gran originalidad en la creación de diferentes proyectos.
Poseo un grado superior en diseño y decoración de obras de la Escuela de Arte de Valladolid. Durante mis estudios obtuve habilidades clave en la distribución del mobiliario, la aplicación de materiales junto a la gama cromática y la habilidad del manejo de programas.
Mi filosofía de diseño se define en :
-Armonia
-Contraste
-Equilibrio
CURRICULUM
FORMACIÓN
GRADO SUPERIOR DE ARTES PLÁSTICAS Y DISEÑO DE PROYECTOS Y DIRECCIÓN DE OBRAS DE DECORACIÓN
Escuela de Arte de Valladolid 2022 - actualidad
BACHILLERATO ARTÍSTICO
Escuela de Arte de Valladolid 2018 - 2021
PERFIL PERSONAL
· Móvil 635 75 99 94
· Email rodriguezdelvallelaura@gmail.com
HABILIDADES
· Autocad
· Sketchup
· Ilustrator
· Photoshop
· Office
· Canva
· Dialux
· Cype
IDIOMAS
· Español nativo
· Ingles medio
+INFORMACIÓN
· Carnet de conducir
· Pasión por los espacios y la moda Creativa y resolutiva
EXPERIENCIA LABORAL
KUCHENHOUSE.GROUP
· Practicas profesionales
JD
Actualmente Junio 2024
· Atención al cliente, venta al detalle
· Visual Merchandising
PARFOIS
Campaña de Navidad 2022/23
· Atención al cliente, venta al detalle
· Cobro en caja, reposición de tienda
· Visual Merchandising
FLORISTERÍA BY ME
Junio 2021 - Diciembre 2021
· Organización bodas y ceremonias
· Artesanía floral
· Negociación, coordinación y promoción de conferencias y exposiciones





en orden cronológico




VIVIENDA DE ARTISTA
TIENDA DE MODA
PELUQUERIA ETNIA
RESTAURANTE SAKURA
01.
COCINA / COMEDOR FAMILIAR
Café y petricor
Ubicación
España, Castilla y León. El Bierzo.
Descripción del proyecto
En este proyecto de cocina familiar nos hemos basado en los requisitos imprescindibles para el cliente. Lo que este nos pedía para la estancia era que aportara ; calma, un toque de naturaleza, sencillez y sobre todo organización.
Para plasmar estas ideas me he basado en el estilo eco brutalista en el que se aprecian las carcteristicas esenciales para el cliente y con las que conseguimos aportar sencillez y neutralidad al espacio. A su vez junto a la parte "eco" mostramos esos toques verdes que nos da la naturaleza.
En cuanto al mobiliario de la estacia va a ser madera de roble aportando asi una absoluta calidez. Por último en los materiales que aplicamos a la estancia son el concreto, para las paredes y el suelo. La piedra para la encimera y madera para los muebles.
Jugando así con todo lo anterior ,he creado una estancia ideal y funcional para el trabajo de cocina, y para relajarse tomando un café.



Concept



CLIENTE
REQUISITOS
-Cocina espaciosa
-Ocupación de 4 integrantes
-Zona de estar
-Luminosidad
IDEA DE DISEÑO
-Organización
-Cálidez
-Calma
UBICACIÓN
El Bierzo, León




PROCESO CREATIVO














DISEÑO
Cocina petricor


















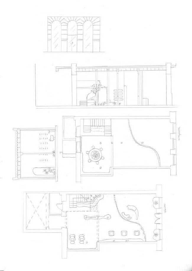
02. HABITACIÓN DE ESTUDIANTE
Sencillez y función
Ubicación
España, Madrid, Barrio Moncloa
Descripción del proyecto
Para la creación de este nuevo proyecto, el cliente nos ha planteado la necesidad de crear un espacio residencial para estudiantes. En el que haya habitaciones individuales y espacios conjuntos para estos.
Basandome en ambos requisitos, nuestra inspiración se apoya en la famosa escuela BAHUAUS. La cual tenia habitaciones de estudiantes, zonas residenciales, aulas...etc. Dentro de todas aquellas mentes brillantes que habia en la escuela, el que mejor encajaba para el proyecto como icono de inspiración, era el gran arquitecto Mies Van Der Rhoe.
Como principales caracteristicas que se han proyectado en la habitación son; la planta libre (para crear diferentes espacios sin necesidad de aparatosos muros), los materiales y la luminosidad. El diseño interior de las estancias estan inspirados en el proyecto Tugendhat de Mies, donde aplica esa separación de espacios con formas curvas.
En el proyecto habitación de estudiante, se consigue plasmar estas ideas, distribuyendo la planta de forma que haga conexión entre toda ella sin la necesidad de establecer muros, creando modulos de mobiliario en forma curvilínea mostrando la sensación de un espacio amplio, dinámico, organizado y luminoso. Aplicando a su vez el lema 'menos es más'.











Pablo De Campos
REQUISITOS
-Funcional
-Luminosa
-Orgánica
IDEA DE DISEÑO
-Núcleo central
-Zona de trabajo
-Zona de descanso
Madrid, barrio moncloa





PROCESO CREATIVO

















DISEÑO
Sencillez y función





















03.
VIVIENDA DE ARTISTA
Ubicación
Identidad y moda España, Madrid, Ciudad lineal
Descripción del proyecto
En este proyecto se nos plantea una reforma interior para una vivienda privada que data de los años 50, esta estaba incluida en el proyecto de la Ciudad Lineal de Madrid, que actualmente ya no existe. Esta vivienda era del arquitecto Luis Gutierrez Soto, consta de dos plantas con varias terrazas y el servicio que le daban era de hotel.
Nuestra clienta , Inés Arroyo es la creadora y fundadora de la firma de moda LAAGAM. Este es un proyecto de vivienda particular para la vida cotidiana de la artista y tambien es un espacio donde Inés pueda trabjar y crear desde casa.
El estilo que vamos a plasmar en el diseño es una fusión entre lo retro con pequeños toques de color en la vivienda y el wabi-sabi, aportando esa calma y cálidez que se necesita de un hogar que por otra parte este va a ser el predominante en la mayoria de las estancias.
Las caracteristicas esenciales para esta vivienda es; una libre circulación ya que se ha aplicado la planta libre, la gama cromática (grises, marrones, neutros..), los detalles llamativos en la decoración haciendo una aleción al estilo de su firma, etc..






Inés Arroyo
REQUISITOS
-Vivienda espaciosa
-Diseño
-Zona de trabajo
-Zona de descanso
IDEA DE DISEÑO
-Naturaleza
-Cálidez
-Calma
UBICACIÓN
Madrid, Ciudad Lineal




PROCESO CREATIVO











DISEÑO
Identidad y moda





















04. TIENDA DE MODA
Estilo y diseño
Ubicación
España, Madrid, Centro comercial MADRID X
Descripción del proyecto
En la creación de este nuevo proyecto el cliente nos plantea el diseño integro del local, para la firma SUGAR.
Esta empresa de moda es muy particular ya que realiza colecciones cápsula y de único valor. Tiene un estilo muy marcado y atrevido jugando con una amplia gama cromática junto a telas y patrones de gran calidad, lo que hace que tenga un publico selectivo y exclusivo.
Para plasmar todas estas caracteristicas hemos querido ir un poco más allá de un simple diseño fino y elegante, queríamos conectar con la firma y que el diseño se adaptara a su estilo, por lo que la tienda a ser una única experiencia de compra, al igual que son los diseños de SUGAR.
Para la ejecución de este proyecto me he inspirado en el nombre de la marca que es el dulce, concretamente en el estado líquido del azúcar. Los principales puntos que he plasmado en el local han sido; formas curvas, recreando el goteo por parte del mobiliario. En los materiales y texturas destacan (microcemento, ante, metraquilato, bronce...) todos ellos se inspiran en la interpretación del azúcar.





Concept





Diego Morales
CLIENTE REQUISITOS
-Funcional
-Llamativa -Única
IDEA DE DISEÑO
-Formas curvas
-Zona de tienda


UBICACIÓN
Centro comercial, MadridX


SUGAR











DISEÑO
Estilo y diseño

























Leyenda de materiales
Microcemento (revestimiento en el mobiliario de ropa y accesorios)
Bronce (láminas de grosor de 8mm, situado en el techo)
Terrazo (embaldosado en el suelo, colocado en la zona de los probadores )
Microcemento (revestimiento en paredes y suelo)
Metraquilato (situado en la caja y en el nombre de la tienda de la fachada, color terracotta oscuro)







05. PELUQUERIA ETNIA
Ubicación
España, Madrid, Ciudad lineal
Descripción del proyecto
Etnia, es una firma de cosmética natural con una filosofía muy clara, la de defender la belleza ética y sostenible.
Su creador Manuel de Juan, apostó por tener una forma sostenible hace 10 años, donde su línea cosmética fuera vegana y libre de la testación animal. Pero sobre todo que tuviera un producto de alta calidad.
Estas bases de la firma son las que he aplicado en mi proyecto, también basandome en la estética de sus productos, con los colores, texturas y formas curvilíneas que le caracterizan.
Texturas como madera, piedra, cristal, vegetacion...Todo ellos materiales naturales.
En cuanto a la gama cromática se ha incluido unos tonos fríos como; verde, azul, gris... y en los colores cálidos se ha decidido por los rojos, naranjas, marrones...












Para este proyecto hemos optado por crear formas curvas y amables con el mobiliario, representando la línea que caracteriza a la naturaleza y a la firma, logrando que transmita un un ambiente de paz y relajación.
Etnia
REQUISITOS
-Peluquería
-Estética
-Zona de trabajo
-Zona de descanso
IDEA DE DISEÑO
-Naturaleza
-Relajación
-Cuidado
PROCESO CREATIVO



C/Miguel Íscar,Valladolid UBICACIÓN




E T N I A








DISEÑO
Identidad y moda












Leyenda de materiales
REVESTIMIENTO DE MICROCEMENTO GRIS OSCURO
TEJIDO; POLYESTER ESTAMPADO ABSTRACTO
REVESTIMIENTO DE TUBOS DE METRAQUILATO LACADOS EN COLOR VERDE MADERA DE NOGAL
TEJIDO; LANA ESTAMPADA








05. SAKURA
Viaje a Japón
Ubicación
España, Valladolid, Calle Santiago
Descripción del proyecto
SAKURA: es una palabra japonesa que significa ‘flor de cerezo’ Las sakura son un símbolo de la cultura y la naturaleza de Japón, donde representan la belleza, renovación, esperanza y fugacidad de la vida.
El diseño se basa en la idea de evocar la belleza y serenidad de Japón.
Para la ejecución del restaurante, he jugado con dos estilos, el japones tradicional, que incluye: líneas rectas, jardines zen y formas puras, y materiales como el bambú, cerámica, vidrio, cuero, lino… y el estilo contemporáneo que engloba: líneas más suaves y en materiales hace uso de la madera, vidrio, telas, piedra y concreto.
La iluminación jugará un papel crucial en la creación de los ambientes aportando espacios cálidos y envolventes.
A pesar de haber adquirido ideas y materiales de ambos estilos, he aplicado el mío propio, transformando esas líneas y elementos rectos, a formas curvas y amables, adaptando zonas de gran color y colocando detalles tradicionales como puertas correderas fusuma, suelos de piedra tatami y tapices sobre paredes para añadir autenticidad al diseño de SAKURA.






Elisa Perez
REQUISITOS
-Cocina amplia
-Zona de bar
-Zona de restaurante
-Aseos

C/Santiago,Valladolid






SAKURA






DISEÑO

Viaje a Japón























































Leyenda de materiales
Revestimiento de Papel washi






Revestimiento de Madera de teca
Pavimento de Piedra caliza

Mueble de Acero inoxidable





Tejido de terciopelo nipón
Revestimiento de Madera de roble japonés
Mueble de Lascas de pizarra









LAURA RODRIGUEZ
CONTACTO rodriguezdelvallelaura@gmail.com
635 75 99 94