Sample Portfolio - Laurie Steele

Page 1

LAURIE STEELE SAMPLE PORTFOLIO

RIBAPART1

Sheffield School of Architecture

CONTENTS

1-5

The Store Society (Third Year)

- Exploring the theme of migration

- Retrofit project

6-10

Market Corner (Second Year)

- Social housing project

Extra-Ciricular Projects

2
11

THE STORE SOCIETY

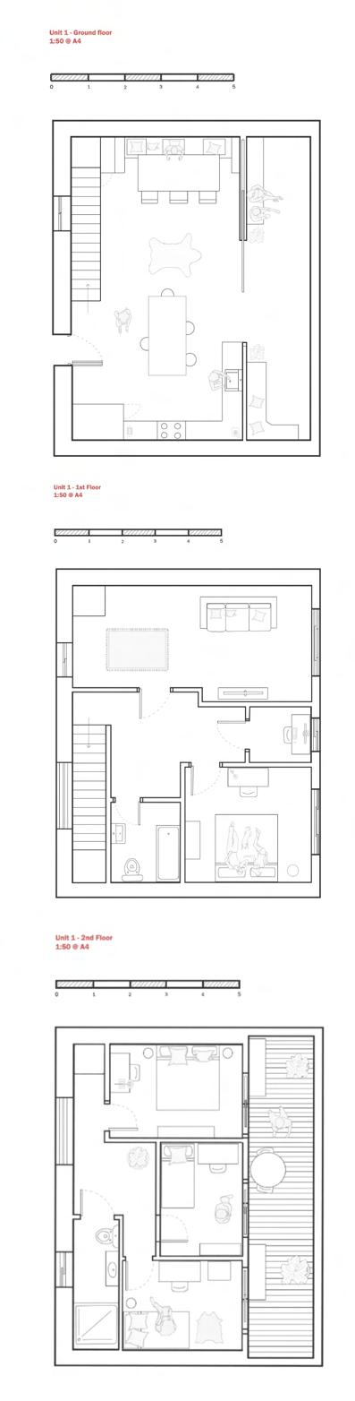
Hull is labeled as a ‘City of Sanctuary’. The tag is a signpost to show that the city welcomes migrants who travel to UK shores. Although the title is used to encourage migrants to feel welcome when settling into the country, many can often feel lost and helpless. The Store Society is a scheme looking to offer a safe space for migrants to create bonds within the community. Through the medium of food, users of my building get a chance to share the traditions and recipes of their homelands. The exchange of knowledge allows relationships to be established. Therefore, allowing users to settle themselves in.

1

Programme Aims

2
3
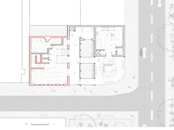
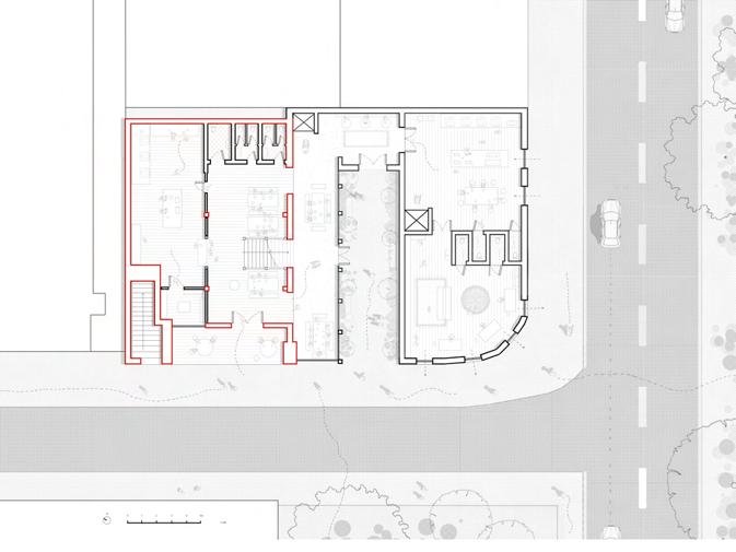
1:50 Hand-drawn section with environmental strategies Orthographic Drawings 1:100 Plans

Visualisations

4
Approach to the Store Society Community kitchen A moment in the courtyard

Hand-drawn Sketches

5

MARKET CORNER

The stigmatisation of people living in social housing is a huge problem in this country. The terms ‘council estate’ and ‘social housing’ often usher along negative connotations.

My social housing scheme strives to break the stigma, by making the area a place the community want to visit, rather than avoid. Market holders are the residents of my housingmaking, selling and living within the scheme. A market pops up every week,as the building’s facades shift and adapt to the needs of the clients. Facades fold open and out for market day, and back in to allow for privacy when living.

6
Hand-painted manifesto
7 Sketch Development Market perspective
Facade study
8
Model Making Exploration
9
to the Market Corner
Visualisations Approach
1:100 Elevation
10 Sectional Perspective

GRAPHIC MOCK UPS

Whilst at university I have helped both the University Women’s Rugby Team and a local team Barnsley Ladies RUFC with graphics to use on their social media pages.

Graphics I have produced range from team sheets, promotional posters and Instagram posts.

11
Email : Lhsteele1@gmail.com Contact Number : (+44) 7305554434 Instagram : @steele.arch

Turn static files into dynamic content formats.

Create a flipbook
Issuu converts static files into: digital portfolios, online yearbooks, online catalogs, digital photo albums and more. Sign up and create your flipbook.
Sample Portfolio - Laurie Steele by Lauriesteele - Issuu