LAURETTE PARRELLA

A R C H I T E C T U R E
P O R T F O L I O


![]()
LAURETTE PARRELLA

A R C H I T E C T U R E
P O R T F O L I O


Firm: CTA Architects
Project Manager: Craig Tooman
Ownership: Douglass Elliman Property
Location: Manhattan, New York


180 East End Avenue is a twenty story housing cooperative with 150 units. This project focused on the redesign and interior renovations of amenity spaces at two bulkheads on the roof deck. The north bulkhead consists of men’s and women’s changing rooms, bathrooms, showers, and an elevator vestibule. The majority of existing doors, windows, and framework were removed at the north bulkhead. The spacial layout was reconfigured to allow for smaller private toilets and showers. All vanities were moved from bathrooms to changing rooms and formatted for ADA compliance. The south bulkhead is comprised of a kitchen, seating areas, and an elevator vestibule.
Larger window openings at the south and east facades increase daylight and provide spectacular views of the East River. The installation of countertops and cabinetry expands kitchen prep space and storage. A wet bar and banquette seating were designed to adequately support community gatherings. My responsibilities included updating drawing sets to reflect the client’s and our team’s changes, reviewing shop drawings, updating all schedules with each revision, reviewing and approving submittals, sourcing fixtures and finishes, ensuring ADA compliance of the drawings and fixtures within them, filing to the Department of Buildings, drafting meeting minutes and agendas, and managing correspondence between the client, co-op board, contractors, and consultants.








Firm: CTA Architects
Project Manager: Shukri Sindi
Ownership: Douglass Elliman Property
Location: Manhattan, New York
145 West 86th Street is a 15-story residential cooperative. The building offers close proximity to multiple indoor and outdoor gathering spaces: Central Park, Riverside Park, the American Museum of Natural History, and the Children’s Museum of Manhattan to name a few. The cooperative had previously undergone an inspection and a FISP report was submitted to the Department of Buildings. It was marked as SWARMP. A project was given to me to carry out the bidding phase, starting with drafting a bid set. Subsequently, I received approval from the owner and sent the bid set, letters, and specifications out. I then evaluated proposals from five contractors as well as the expeditor, the environmental consultant, and the special inspector. Once I created the bid breakdown and sent out Requests for Information, I arranged and attended bid interviews and carried out the rest of the process until a contractor and all consultants were selected. I supervised the exterior repairs with the guidance of my project manager.




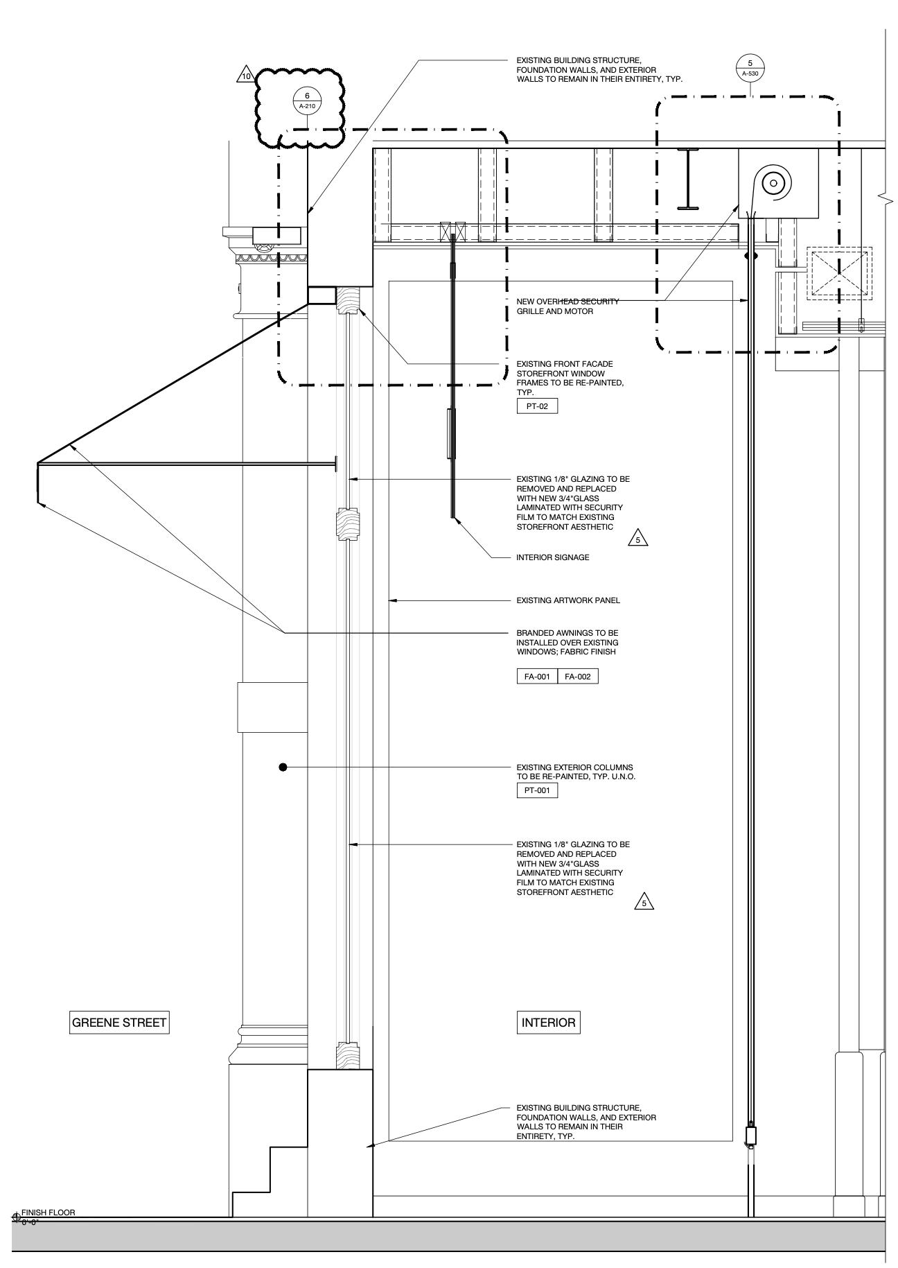
Location: Soho, New York


Cartier’s iconic style is coming to Soho in the form of a new flagship location. Standing on a 2,500 SF lot and stretching 5 stories, the complexity of this project allowed me to become involved in many stages and facets of design. My role on the team included updating the resonsibility matrix, updating millwork per shop drawings, adding power and data per electrical drawings, configuring millwork and fixture layouts, updating finishes per client’s notes, updating interior and exterior elevations per client’s notes and changes to the plans, drawing additions such as a boiler unit and modified bathroom appliances, adding finish and fixture tags per the schedules, and modifying details per structural changes.



REFLECTED CEILING PLAN - GROUND FLOOR



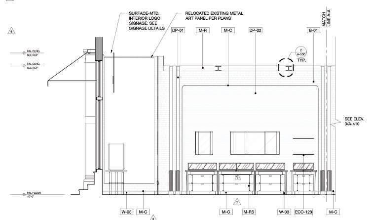
INTERIOR ELEVATION - GROUND FLOOR

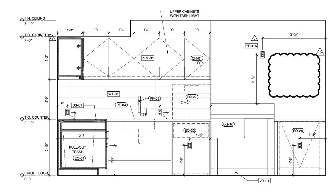
BOH PANTRY INTERIOR ELEVATION - CELLAR POWER SIGNAL & COMMUNICATIONS PLAN - CELLAR

BOH PANTRY INTERIOR ELEVATION - CELLAR



CEILING SECTION DETAIL OF TYPICAL PERIMETER COVE - GROUND FLOOR


CEILING SECTION DETAIL OF TYPICAL PERIMETER ARCHITECTURAL SLOT - GROUND FLOOR

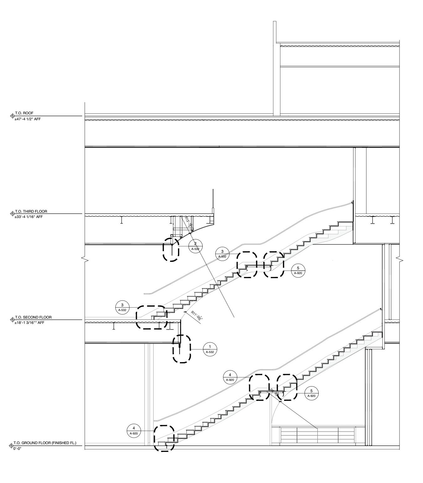
CEILING SECTION DETAIL OF SMOKE BAFFLE AT STAIR OPENING - GROUND FLOOR
CEILING SECTION DETAIL OF PERIMETER SOFFIT LIGHT COVE - SECOND FLOOR



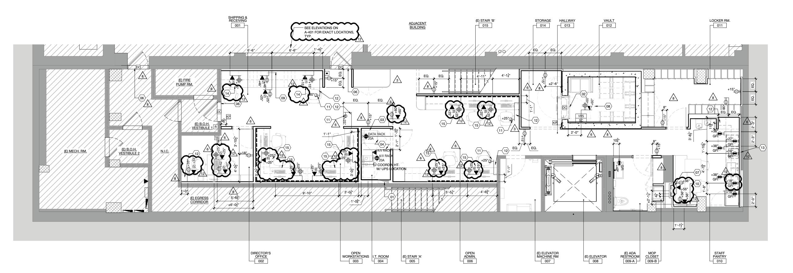
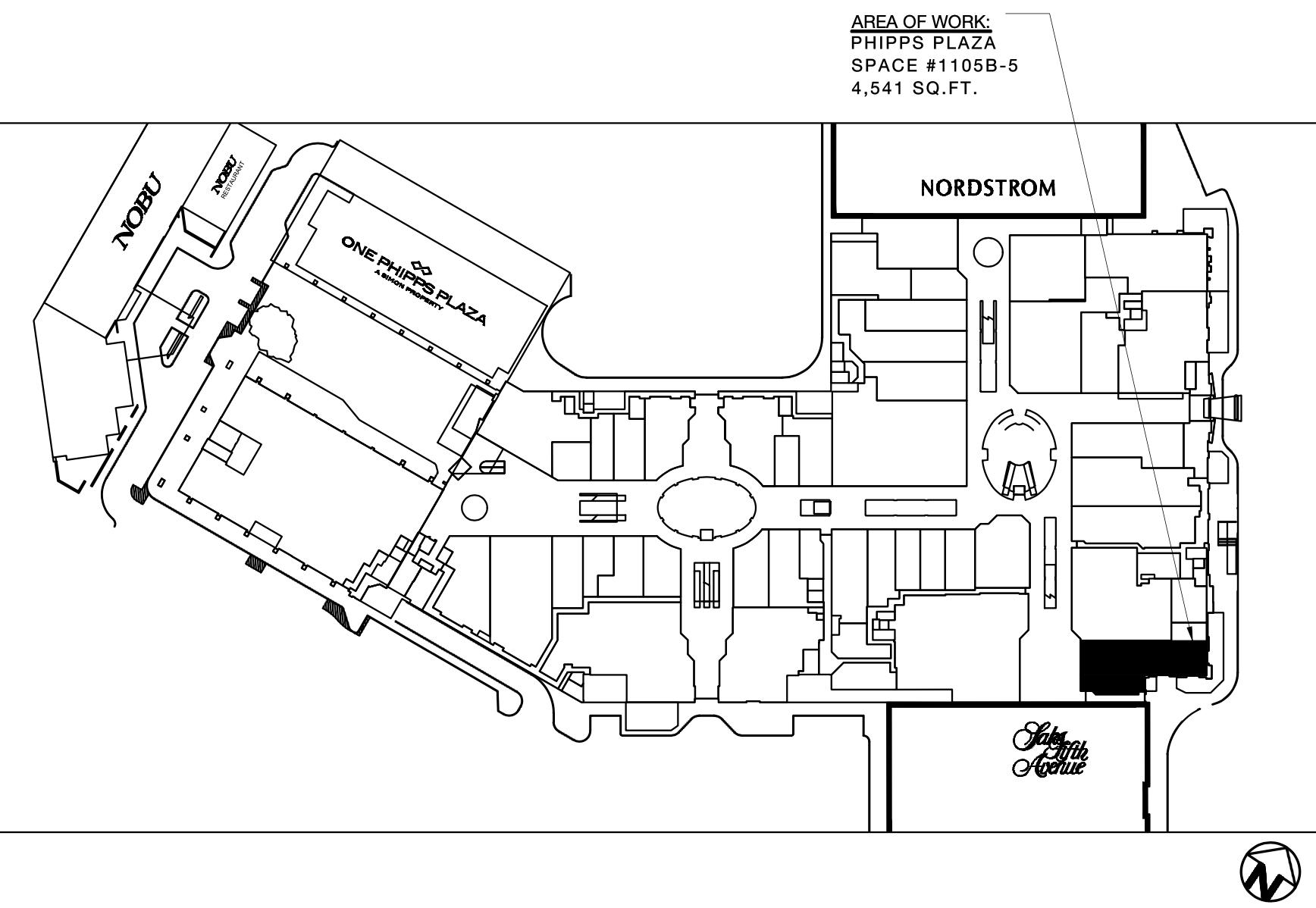
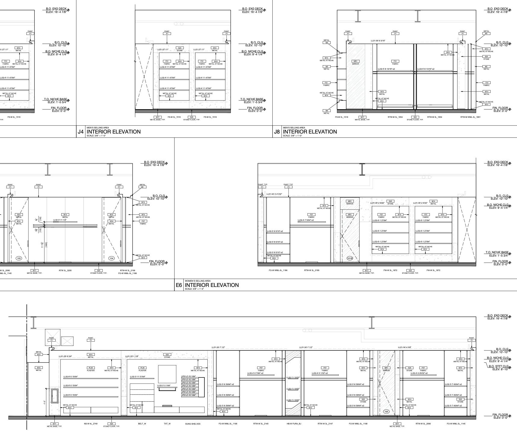
Firm: CallisonRTKL
Interior Design: Fendi
Project Manager: Nelson Medina
Location: Atlanta, Georgia

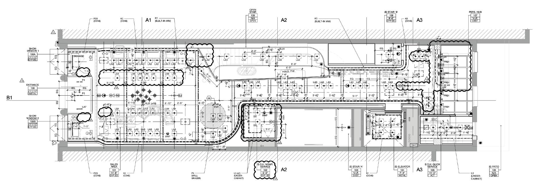
This project was a modification of an existing restaurant space within the Atlanta Phipps Plaza Mall. Fendi took over the lease to create a new retail space. The scope of work entailed demolishing existing windows and doors, as well as select demising walls. Modifications to existing mechanical, plumbing and electrical were made. Spanning 4,541 SF of retail and administrative space, I learned about millwork installation from the extensive amount of product displays and showcases. In comparison to other stores I have worked on, Fendi’s back of house is rather compact. This provided some constraints in terms of ADA and other code requirements. The tasks I took on included dimensioning the construction plan, ensuring ADA compliance, adding finish and fixture tags, placing fixtures on the sales floor, creating the fixture schedule, adding finishes, drafting interior elevations from plans (drafting display niches, racks, door cases, ceiling structure, etc.) and updating appliances to match specifications.















INTERIOR ELEVATION WOMEN’S SELLING AREA - GROUND FLOOR


FOH INTERIOR ELEVATION SELLING AREA - GROUND FLOOR

FOH INTERIOR ELEVATION MEN’S SELLING AREA - GROUND FLOOR


Firm: CallisonRTKL
Interior Design: Langham Hospitality
Project Manager: Nelson Medina
Location: Fifth Avenue, New York

The prestigious Langham, New York is a luxury suite hotel and skyscraper. Sixty-one stories and over half a million square feet, it’s a wonder it only took two years to construct. Working on this renovation was a privilege for me, being familiar with the site as a born and raised New Yorker. Callison brought me onto this project to make some layout changes to the fourth floor. I repurposed a large portion of their lounge area and converted it into office space. I drafted custom furniture, created private offices, and updated the egress plan accordingly.





















