

![]()



















Bachelor of Arts in Architecture
Clemson University
2020-2024
Email: laurenrauscher087@gmail.com
Phone: (201)-317-7564
LinkedIn: linkedin.com/in/laurenrauscher756
HC Mickel & LC Mickel Grant Dean’s List -Fall 2020 -Spring 2022 -Spring 2024
Architecture Intern
MRB Group
Jan 2024-May 2024
Acoustical Architecture Intern
Construction Sprecialties
May 2023-Aug 2023
Architectural Sustainability Intern
Clemson Univeristy
Aug 2022-May 2023
AutoCAD Rhinocerous 3D Lumion
InDesign Revit SketchUp
GRID LOW COUNTRY RENAISSANCE

01 02 03 05 04

URBAN SYNERGY CAYCE CANOPY


06
STRUCTURES PERSONAL


fall 2024
arch 4520
professors sam herin & rick del monte group: carlos richardson







FLOOR 7




FLOOR 4
FLOOR 1





This architecture project envisions a multi-use building located in the vibrant downtown district of Greenville, South Carolina. Drawing inspiration from the principles of modularity, the design incorporates a grid system that harmonizes the facade, floor plans, and landscaping, creating a unified and functional structure that reflects both modernity and respect for its urban context.
The building embraces the concept of adaptability, a key feature in urban environments, by accommodating a variety of functions within a single structure. The use of a grid system is central to this design, creating a sense of order and coherence while allowing for flexible, scalable configurations across the building’s different layers.
Facade and Exterior: The facade is a striking example of how the grid system can define architectural expression. The grid serves as the organizing framework for the building’s exterior elements—windows, sunshades, and cladding—arranged systematically to create a rhythmic, geometric pattern that offers visual interest while providing functional benefits such as shading and privacy. Large glass panels alternate with solid surfaces to balance transparency and enclosure, creating an inviting street-level presence.
Ground Floor: The ground floor of the building serves as the public face of the structure, hosting retail spaces and community amenities designed to activate the streetscape, especially emphasized by a double height glass first floor. These commercial areas are positioned along the sidewalk, creating an inviting atmosphere for pedestrians and fostering interaction between the building and the urban environment.
Floors Two to Four: The middle section of the building is dedicated to office spaces, providing flexible work environments for a range of businesses. These floors are arranged around a central atrium, which acts as the building’s social heart and source of natural light. The atrium not only enhances the experience of the workspace but also serves as a connector between the different levels. Large windows along the grid pattern provide expansive views, allowing the building’s users to feel connected to the surrounding urban landscape.
Floors Five to Seven: Above the office floors, the building shifts to a more private function with single-unit residential spaces on the upper levels. These residential units are designed to offer modern, efficient living while maximizing the use of natural light and views. The grid system is reflected in the layout of each floor, with the individual apartments organized to ensure optimal privacy and connectivity. The central atrium, though positioned as an open space for offices, continues to be a visual feature that unites the upper floors.





spring 2024
arch 3520
professor bradford watson group: andrew poole & mckinnon young





35 ON SITE 136 STREET
35 ON SITE 136 STREET APPROX
PARKING
36 on site 136 on street







TREE COVERAGE
3% TREE COVERAGE

TREE COVERAGE
3% covered

CIRCULATION
IDENTIFYING URBAN GRID









IDENTIFYING URBAN GRID TREE COVERAGE CIRCULATION
CIRCULATION urban grid















































GADSDEN CREEK

APARTMENT STYLE DOUBLE UNITS




ACTIVATING THE STREET/ SIDEWALK
- metal grill - perforated brick
- -di erentiation in brick colors and styles
open spaces on garage facade, extending to the ground to activate the ground level at a

UNIQUENESS responding to the context through materials and increases COVE percentages - more vertical windows - pitched roofs - addition of pops
UNIQUENESS OF CONTEXT
INTENDED USE OF SPACE
- public interaction in corridor spaces
- exposed parking adjacent to townhomes
pops of color activates the site. creates a more personable experience.
context and urban fabric and structural additions.

percentages with windows
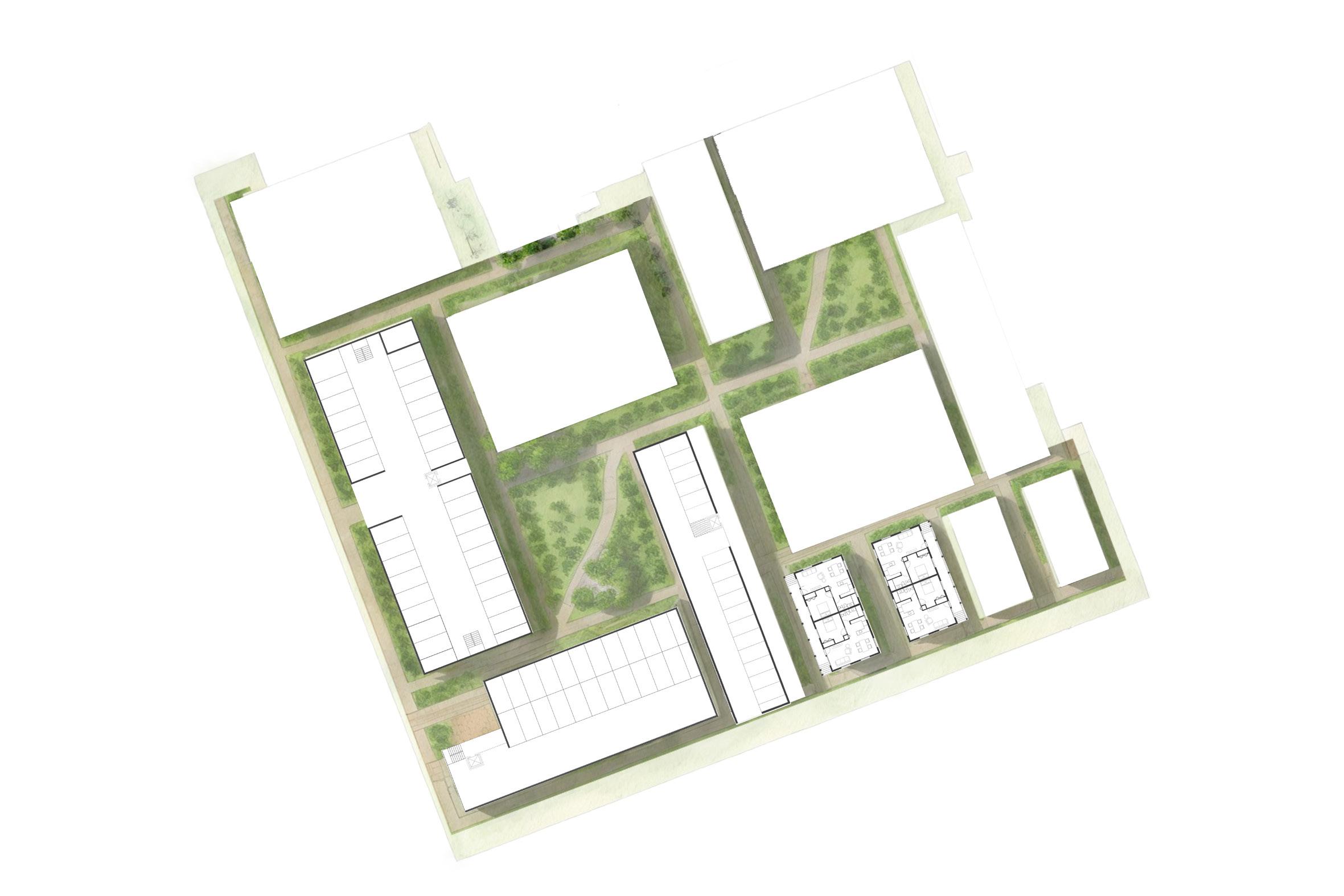
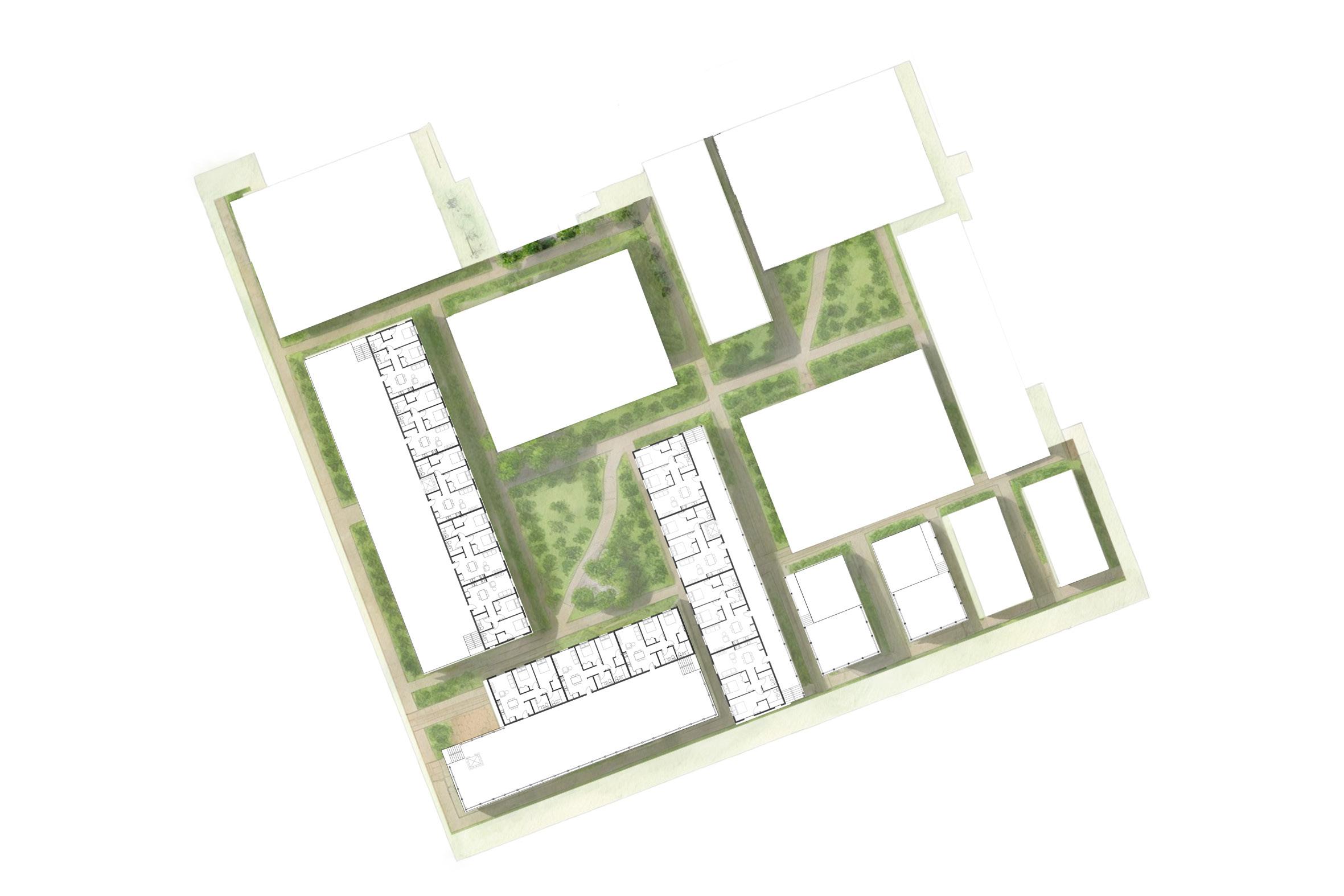
The Gadsden Green Housing project, located in the heart of Charleston, South Carolina, has long been a symbol of the city’s historic, working-class communities. Built in the mid-20th century, the housing complex has provided affordable living options for generations. However, it is currently under threat of redevelopment by the expanding Medical District, which aims to replace these low-rise units with high-rise buildings. While this potential redevelopment promises modernization and increased density, it risks erasing the rich history and charm that the Gadsden Green neighborhood represents.
Respecting Charleston’s Architectural Language: The design seeks to preserve the spirit of Gadsden Green by using materials and design elements consistent with Charleston’s historic architecture. Facades will incorporate traditional brick, wood paneling, and metal detailing, with designs that reflect the Charleston Single House style, characterized by long, narrow buildings with central courtyards and large windows. The overall aesthetic will maintain the traditional scale and proportions that are central to the area’s character, while subtly introducing modern building technologies and materials. Density and Layout: Achieving the target of 1,000 units on a limited 9-acre site is challenging, but the design optimizes space by introducing a variety of housing types. Instead of solely focusing on high-rise towers, a combination of midrise buildings, townhouses, and low-rise units will be interwoven with pedestrian pathways, courtyards, and communal areas. The development will be split into several clusters to reduce the monotony of high-density housing and to promote a village-like feel that aligns with the low-rise, human-scale urban fabric of Charleston. The layout includes multi-family apartment buildings, along with a mix of single-family homes and townhomes that offer affordable, community-oriented living. Each block will feature generous green spaces, courtyards, and plazas, ensuring that the site remains permeable to air and light while providing residents with much-needed outdoor areas. These green spaces will also function as stormwater management zones, absorbing rainwater and reducing flooding risks.


Flood Mitigation and Resilience: Given the site’s location in one of Charleston’s most flood-prone zones, flood mitigation is a key component of the design. Buildings will be elevated above expected flood levels, using stilts or raised platforms to ensure the safety of residents. Ground-level areas will be designed with floodresistant materials, while landscaping will focus on native, water-tolerant plant species that help absorb rainwater and reduce runoff. The project will incorporate bioswales, rain gardens, and permeable pavements to allow stormwater to flow naturally through the landscape and reduce the strain on city drainage systems. Sustainability and Climate Adaptation: The hot climate of Charleston calls for a design that can withstand high temperatures while being energy-efficient. Building facades will utilize shading devices such as louvers, overhangs, and verandas to block direct sunlight while allowing natural ventilation to cool the interiors. Solar panels, green roofs, and other sustainable technologies will be incorporated to reduce the building’s carbon footprint. Additionally, communal spaces will be designed to provide shade and encourage outdoor activities, promoting a healthier lifestyle for residents while addressing the urban heat island effect. Parking and Transportation: Addressing the issue of limited parking will be crucial to the success of the redevelopment. A combination of below-ground parking garages, bike storage facilities, and shared car spaces will minimize surface parking and free up valuable ground space for green areas and walkways. The design will prioritize public transportation access and pedestrian mobility to reduce car dependency, encouraging more sustainable modes of transport. Community and Cultural Continuity: The preservation of Gadsden Green’s cultural and community identity is critical. The design incorporates spaces for social interaction and community gatherings, such as a central community center, shared gardens, and event spaces. Local history will be honored through public art installations, memorials, and spaces that encourage storytelling and connection among residents. The redevelopment will aim to integrate the community into the design process, ensuring that the new space serves the needs of current residents and preserves the strong sense of belonging that has defined Gadsden Green for decades.


fall 2023
arch 3500
professor douglas hecker group: christian edwards







Situated in the vibrant neighborhood of Chelsea, New York, adjacent to the iconic High Line park, this architecture project envisions a dynamic co-working office building designed to foster creativity, collaboration, and well-being. The building integrates biophilic design principles, creating a seamless blend of indoor and outdoor spaces. Through the innovative use of terracing, a covered groundfloor plaza, and a striking glass exterior facade, the design aims to redefine the modern work environment while celebrating its urban context.
Terracing and Outdoor Connectivity: One of the standout features of the building is its terracing design, which cascades down from the upper levels to create a series of green outdoor spaces that progressively connect the building to the ground and the urban landscape. These terraces are strategically placed on various floors, offering employees and visitors the opportunity to step outside, enjoy the fresh air, and experience nature without leaving the building.
Ground-Floor Plaza: At the base of the building, a covered ground-floor plaza serves as both an entrance and a communal gathering space for the public and building users alike. This plaza is designed to be open and inviting, encouraging interaction between the people who work in the building and the larger Chelsea neighborhood. The covered design provides protection from the elements, while still maintaining an open and airy atmosphere. It features seating areas, green planting, and space for temporary events or markets, further enhancing the building’s role as an anchor in the community.
Glass Exterior Facade: The building’s glass exterior facade plays a key role in its biophilic design approach. With its expansive glazing, the facade allows natural light to flood the interior, providing employees with access to views of the surrounding cityscape and the nearby High Line park. The transparency of the facade creates a strong visual connection between the indoors and outdoors, offering a constant reminder of the surrounding natural and urban context.
Flexible Co-Working Spaces: The interior layout of the building is centered around flexibility, with a variety of spaces that cater to different work styles. From openplan offices and collaborative zones to quiet, private spaces, the design offers a range of options for freelancers, startups, and small businesses. The spaces are adaptable, easily reconfigurable to suit the needs of different tenants.








spring 2023
arch 2510
professor dave lee




Located on an empty site in Cayce, South Carolina, adjacent to both the railroad and the river, this proposed arts center is designed to be a cultural hub for the local community. With a focus on local art exhibitions, performances, and cafes, the building is meant to provide a dynamic space for both creative expression and community engagement. Drawing inspiration from Steven Holl Architects’ Winter Visual Arts Center, the design concept takes cues from the surrounding natural environment, where the building’s form is influenced by the organic shapes and canopies of the nearby trees. The building is designed to be nestled within the vast grove of trees on the site, allowing it to blend seamlessly with its natural surroundings while also creating an inviting and functional space for the arts.
Concept and Design: The placement of the building is crucial: it is sited amidst a dense grove of trees, chosen for its scenic beauty and ability to provide natural shade and protection. Rather than clearing the land for construction, the building is designed to nestle into the landscape, weaving through the trees and creating a sense of harmony with the natural surroundings.
Architectural Form and Structure: The building’s form is fluid and organic, with sweeping, canopy-like roofs that extend and curve to respond to the movement of light and wind. The roofline echoes the sinuous shapes of the trees above, creating an immersive experience where the architecture feels like an extension of the forest. These curving canopies offer both aesthetic beauty and functional benefits, such as providing shade and shelter for the interior spaces while offering a visual connection to the treetops above.
Relationship to the Site and Community: The arts center will serve as a community gathering place, offering a range of artistic, cultural, and social activities for residents and visitors alike. It will be a space that is not just about high art, but also about connecting the local community to their creative heritage and fostering a sense of pride and ownership over the space. Outdoor areas and plazas around the building will provide spaces for public art installations, performances, and outdoor gatherings, creating a continuous engagement with the landscape.























fall 2023 arch 2710
professor amy trick team: maryann royster & sarah grace swift






