Lauren McNamara Architecture Portfolio

Page 1


lauren mcnamara

laurenjmc@icloud.com

240-432-3368

Baltimore, MD

Bodo, Norway 2023

Copenhagen, Denmark 2023 Paris, France 2023

School of the Art Institute of Chicago 2021

Wallin Gomez Architects 2022

Banta Campbell Architects 2023- 2025

University of Maryland 2017-2021, 2024- present

International Studies Institute of Florence Spring 2020

Stabiae Research Project Castellammare di Stabia 2018-present

Athens, Greece 2023

The Greenhouse
Halsted Urban Forest
Beacon Library
Stabiae Research Work
Christopher Elementary School
Axis Exhibit and Park

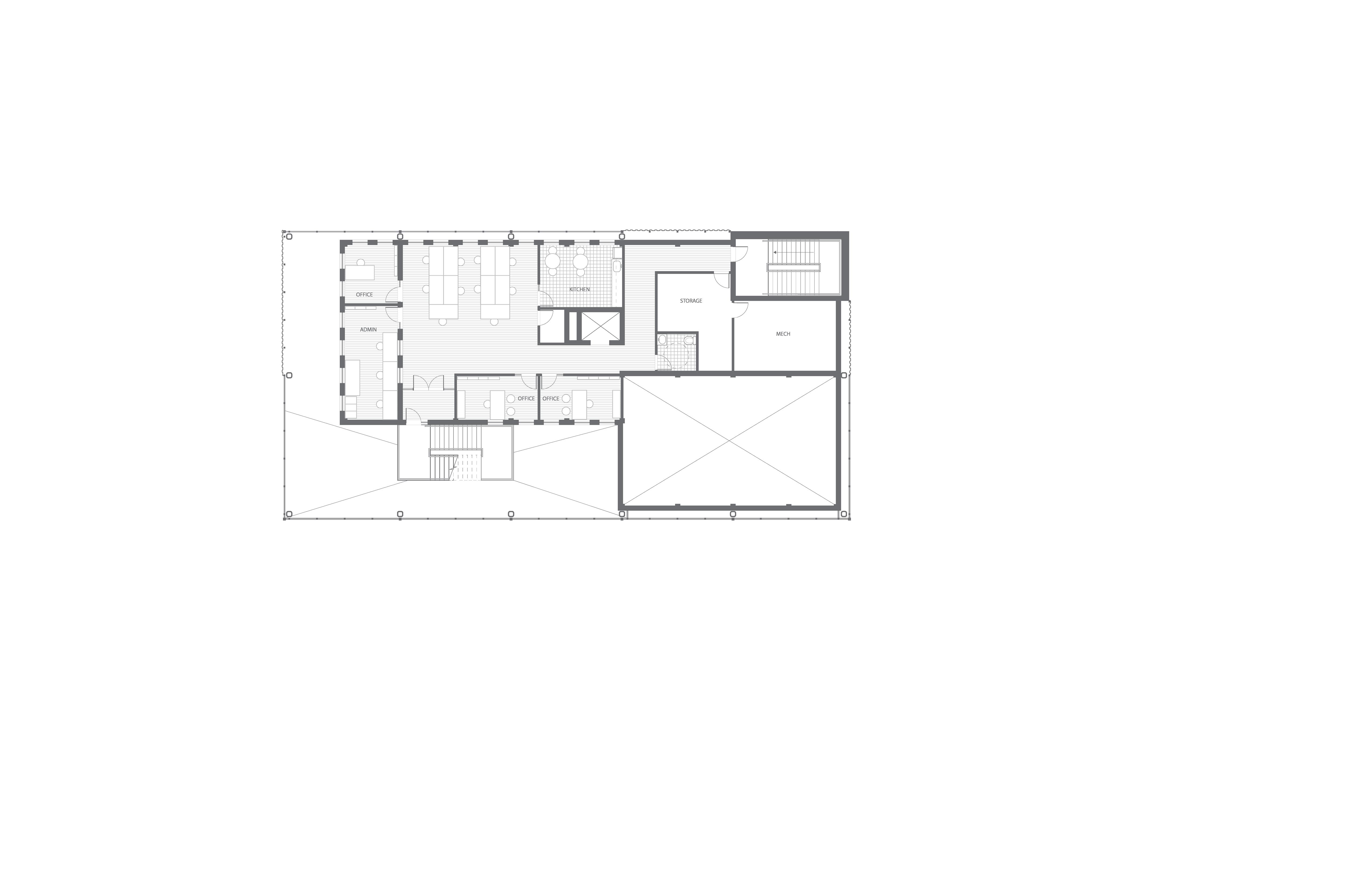
the greenhouse

Kensington, MD

Arch 600 15 weeks

Fall 2024

Professor Brittany Williams, Julie Gabrielli, Dan Curry

The Greenhouse is an office and community growing space. Its main hearth centers the mission of the NBI: encasing all the program spaces within a greenhouse that filters sunlight through alternating panels of glazing and semi-translucent polycarbonate. Within the structure, there is a second structure of mass timber supporting the event space and office space. Users enter the space under the office, and have a view directly into the greenhouse portion of the space. This portion is not climate controlled with the rest of the interior, and thus traps more heat passively. The space allows community members to become involved with agriculture on a small scale, and allows for the primary driver of the building to be creating more sustainable living.

For this project, the studio worked with mechanical and structural engineers to create structural drawings and accurate energy models, along with mechanical drawings.

OFFICE

EGRESS

CLASSROOM/EVENT

GREENHOUSE/EXHIBIT

SERVICE

CLASSROOM/EVENT

GREENHOUSE/EXHIBIT

halsted urban forest

Chicago and Halsted Intersection, Chicago IL

Arch 600

13 weeks

Fall 2021

Professors Monika Thadhani and Carl Ray Miller

This project focuses on the idea of harmony and balancing solid and void in different instances and different materials. The site becomes a green garden in the city, which hides the interior and leads visitors on a journey as they discover what is contained within the site. As the visitor approaches the site, it is hidden behind trees and they can only see the very top of the silos to know that anything is there. Then, the visitor continues through the forest to thermal baths, an ecological center, and a restaurant housed in the silos. They can also take the desire paths through the forest to various sculptures placed there. At the end of the procession, there is one complete circular pool. Visitors can then take the paths through the forest to various small community gardens and then further to the river for the boat launch. Overall, the space creates a welcome break from the busy area surrounding it and allows for a moment of green space in the city.

south elevation site plan floor plans in axon

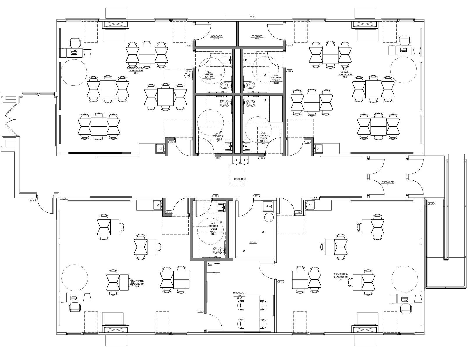
beacon art library

Dupont Circle, Washington DC Arch

AIA Baltimore FAR Award Winner

Professor Michael Abrams

The Beacon Art Library is a special library in Dupont Circle. It consists of four floor with classrooms, stacks, private reading rooms, and an outdoor terrace area.

The design focuses on the idea of embedding

There is a translucent box within the larger wooden and concrete building, which is lit up in the evenings and acts as a beacon for the city. The beams and columns create a visual sense of threshold, welcoming guests into the translucent box containing the majority of the stacks.

Additionally, there are light wells creating a sort of glowing effect in the building, as one must cross through the light wells on bridges to enter the stacks.

stabiae research work

Castellamare di Stabia, Italy

Summer 2018- present

Professor Joseph Chandler Williams

I have been on the Stabiae research project with the University of Maryland since 2018, working on documenting Roman fresco walls in a variety of techniques. In a partnership with the Restoring Ancient Stabiae Foundation and the Italian government, each summer the team works to 3D scan more rooms of a Roman villa which was buried and preserved by the eruption of Vesuvius which buried Pompeii in 79 AD.

In recent years, I have taken on more leadership roles and have taught technical photography to students and led fellow research assistants in the effort to field check existing drawings.

The images shown are the detailed photo and final autocad drawing which was submitted to the Italian government of one wall in the villa.

photos of myself and students on site

axon by Will Deutsch, in collaboration with 2d drawings produced by myself and other team members.

christopher elementary school

Bridgeport Neighborhood- Chicago

Wallin Gomez Architects

Architectural Designer on 2 person team

For this project, I redesigned the modular building which is attached to the main building of the school. These buildings were originally designed to be temporary, but have become permanent as costs of construction have risen. We updated the cosmetic aspects, added new ADA accessible restrooms, and redesigned the layout to allow for updated technology to be placed in the classrooms. Additionally, the school requested a feature wall design for the corridor using school colors. Constructed summer 2023.

east elevation
corrugated metal facade
rotated
corridor
south elevation

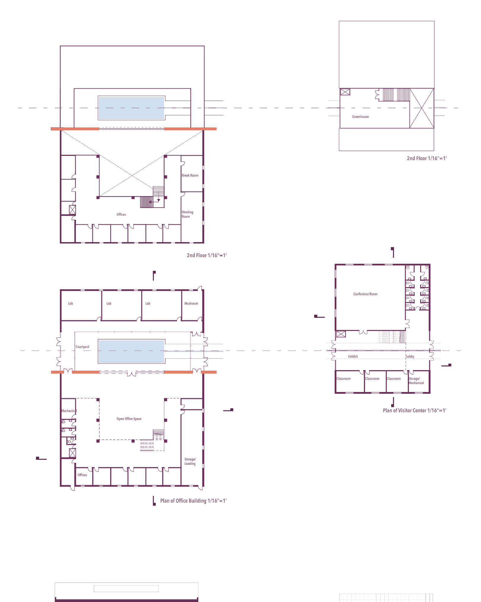
axis exhibit and park

Georgetown Reservoir, DC

Arch 403

10 weeks

Fall 2020

Axis Exhibit and Park is a unique experience in which water is a way finding axis throughout the site, just like it was been used by humans for millennia. As you enter, you see the concrete path with a tiny stream of water which leads to the visitor center and greenhouse. As you continue to follow the water (covered by glass in the buildings), you pass by the large pool of collected rainwater, the outdoor exhibit space, and then pass the basque of trees containing the outdoor education area. You then finally arrive at the office building.The space is organized in a quite linear fashion, but the winding paths denoted by differing grasses provide the opportunity for individual exploration and journey.

Axis Park respects the land by using native trees and a variety of native grasses, as well as collecting and reusing rainwater in the pool.

laurenjmc@icloud.com 240-432-3368 Baltimore, MD

lauren mcnamara

Turn static files into dynamic content formats.

Create a flipbook
Issuu converts static files into: digital portfolios, online yearbooks, online catalogs, digital photo albums and more. Sign up and create your flipbook.