

LAUREN
GERDES undergraduate portfolio
Fall 2022, Los Angeles Food Bank
Spring 2024, Art Studio and Homestay
Spring 2023, Competition Studio
Spring 2025, Row Housing, Chicago
Spring 2025, Accessory Dwelling Unit, Chicago



SYNERGISTIC DISTRICT
Fall 2022, Los Angeles Food Bank
Earl Prize Nomination
The Los Angeles food bank is designed to emulate the feeling of walking through a mini city. This feeling is achieved by organizing all of the food storage and community programs into individual buildings. This strategy provides the opportunity for more outdoor space to enjoy the nice LA climate, provide natural ventilation, and introduce an element of play to draw the community in to take advantage of what the food bank has to offer. The individual buildings have a sense of connection through the overhead network of pathways leading to habitable green roofs and outdoor program for all community members to enjoy.

LOWER FORKLIFT AND ROOF PATHWAY CIRCULATION
GLASS COVERAGE FOR WEATHER PROTECTION
“CITY”
PARTIAL ELEVATION AND SECTION DETAIL

LONGITUDINAL SECTION
NW ELEVATION

Rendering of exterior courtyard area with connecting views up to the walkable rooftop space.
TRANSVERSE SECTION
NE ELEVATION

Need for electrical lighting throughout the day is kept to a minimum as the double roof structure with skylights and a shading device above that also serves as a walkable roof allow for plenty of indirect light throughout the day.

DRAGON’S BRUSH
Spring 2024, Art Studio and Homestay
Earl Prize Nomination
China Travel Studio
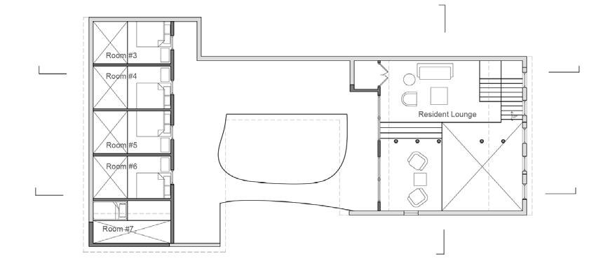
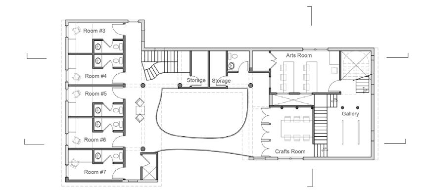
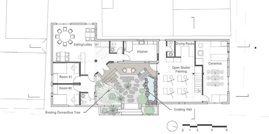
Dragon’s Brush Art Studio is an adaptive reuse artistic homestay in which professional artists and amateurs alike can spend time away from home for an artistic retreat. An existing house in the rural village of Donglindu, China, was redesigned in order to draw tourists and livelihood to the village. We had the opportunity to travel to Donglindu as a studio, visit and measure the existing houses we planned to redesign, and speak with locals to understand what was needed in the village. The art studio that emerged from this project is multifunctional as it holds classes for the public during the day, but becomes an open work/lounge space for the residents in the afternoon and night time. Its goal is to not only bring tourists and revenue to the village, but benefit the exisitng villagers by providing them a space to learn local craft and encouraging those who have left to return to their home village.
The design was based off of the fluidity and symbolism behind the dragon in Chinese culture. The house itself acts as a winding pathway of vertical connections, reminiscent of the dragon or mountains in Chinese fengshui principles, and the central courtyard acts as the main focus or xue (life-force) of the space that connects both the residential and artistic experiences.





Lofted Bed
Clerestory Window
Toilet & Sink



Ground Floor
Second Floor
Third Floor (Loft)




Art Studio
Central Courtyard
G A L L E R Y



L O B B Y
C

MYCELIUM MEDITATION
Spring 2023, Competition Studio
Project done in collaboration with August Fuelberth
Mushrooms signify both the beginning and end of life. They breathe and grow where life takes place. Many Latvians enjoy partaking in the joys of foraging and appreciating these interesting fungi. They are abundant in our site location for a yoga house in the Latvian bog. A yoga house taking on the form of a mushroom allows for a tranquil space to practice yoga while feeling one with the surrounding environment. The lifted structure and breathable shading devices allow for plenty of natural ventilation and passive cooling. It creates a space with opportunities for climbing and playful movement that brings us back to our childlike roots.

VIEWS NATURAL VENTILATION AND PASSIVE COOLING
VIEWS NATURAL VENTILATION AND PASSIVE COOLING
VIEWS NATURAL VENTILATION AND PASSIVE COOLING
PRIVATE FLOW
PRIVACY
PRIVACY CONTAIN HEAT AND PROTECT FROM ELEMENTS
CONTAIN HEAT AND PROTECT FROM ELEMENTS


PRIVACY TEMPERATURE CONTROL AND PROTECTION FROM THE ELEMENTS


Movable fins that allow for light intake, air circulation, and views
Structural frame that supports fins and creates a unique
Multi-level platforms that allow for yoga, eating, and sleeping
Connecting platform that creates a base for all levels
Concrete stems that support the three units and allows for minimal site impact


CLIMBING DIAGRAM .

STRUCTURE PLAN

URBAN MOSAIC
Spring 2025, Integrative Design Studio Project completed in collaboration with Zoya Chaudary
Urban Mosaic is a dynamic design for row housing in Chicago, IL which embraces variation across individual units to provide each resident with a unique experience and a distinct sense of identity. Traditional row housing can have the tendency to feel repetitive and overpowering among a typical streetfront experience. Urban Mosaic creates a unique identity for each of the units within the town housing complex by introducing variety in material choice and color of the front facade, utilizing two different unit types with unique architectural experiences, and pushing and pulling the face of the building to create a variety in depth at the streetfront level.




















Interior Isometric Diagrams




































































































































































Structure Diagram











































E-W Longitudinal Section

































































UMBRA SCAPE
Spring 2023, Competition Studio
Done in collaboration with August Fuelberth
Placed in the midst of the strong desert sun, UMBRA SCAPE seeks to use the abundance of available light to create a home of shadows in which rooms are defined by their natural lighting techniques and the emotions that follow. The home’s form and rammed earth material choice echoes the image of the sand dunes, which within themselves are a representation of how light and form influence each other and how they can be used to inform architectural decisions.
LIVING
DINING SLEEPING
ENJOYING



COOKING
ENERGIZE















LIGHT CATCHER
Spring 2025, Integrative Design Studio ADU design for Chicago, IL
“Light Catcher” is a design for an Accessory Dwelling Unit which seeks to take advantage of natural light by either absorbing or transmitting the sun’s rays for their most optimal use. The two roofs, which slope in opposite directions, are each angled to utilize either direct sunlight for harvesting solar energy, or indirect sunlight for pleasant lighting of interior spaces. Privacy, views, and quality of space are all a highlight of the design as well, with a double height living room space, balcony overlooking the nearby park, and private outdoor patio space.



Program Diagram
Light Catching











SKETCHES, DRAWINGS, AND PAINTINGS
An ongoing passion and skill
Drawing and painting has always been a passion of mine that initially helped grow my interest towards pursuing architecture as a career. Many of the following architectural sketches and drawings were done during my time studying abroad in Barcelona and traveling throughout Europe. These sketches and drawings all help me to see and interpret architecture in a new light and further analyse existing designs. I also have a portfolio of oil paintings which is a personal passion of mine that I enjoy keeping up with whenever I get the opportunity. This allows me the space to continue creating and working on my artistic skills.
S K E T C H E S & W A T E R C O L O R S
f r o m t i m e s p e n t a b r o a d








A P s t u d i o a r t p o r t f o l i o









O I L P A I N T I N G





e r s o n a l w o r k


lsg2@illinois.edu | laurengerdes1@gmail.com 224-636-6289