Lauren Weiss Architecture Portfolio






















































![]()






















































Firms Shown
Location When
JAM, En Masse
Brooklyn, New York + Chicago, Illinois
Fall 21 + Summer 24
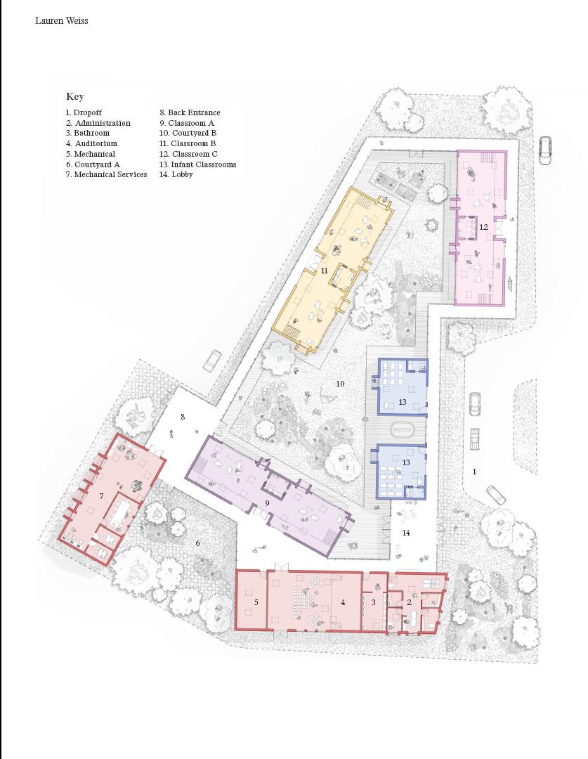
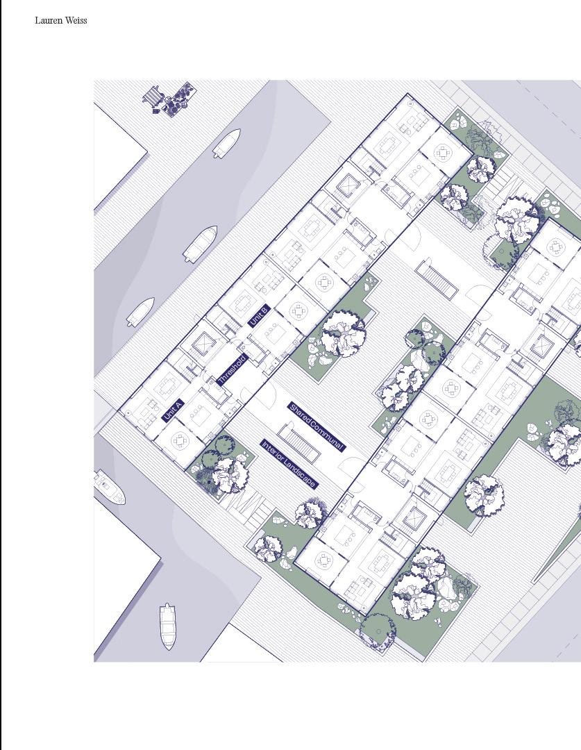
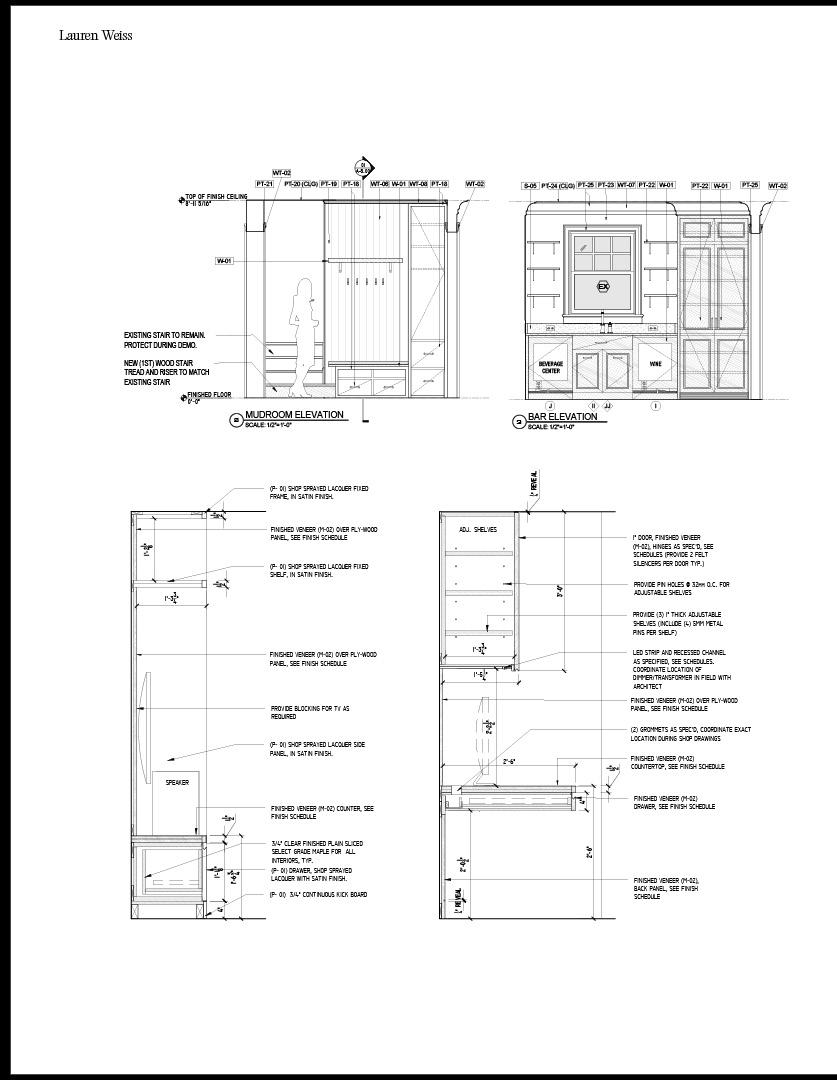
My professional experience has been a rich exploration of residential, more specifically single-family. The customization of architectural elements in this sector has honed my skill of detail drawing and using multiple tools to communicate design intent to clients.
While the following shows examples of this, I have additional experience in assisting completed project photoshoots, communicating with vendors, sourcing interior architectural components, and taking as-built measurements on site to develop into a set.
*Photography by Gieves Anderson




