Lauren Murlette Portfolio 2023

Page 1

LAUREN MURLETTE

2 TABLE OF CONTENTS 01 HEALTHCARE ALORAH SKILLED NURSING PACE DAY CENTER TABLE OF CONTENTS 02 HOSPITALITY HARD ROCK HOTEL & CASINO AMP BAR
TABLE OF CONTENTS 3 03 WORKPLACE THE VAULT 04 MIXED-USE CORE COMMUNITY CENTER ANNA MITCHELL CULTURAL & WELCOME CENTER

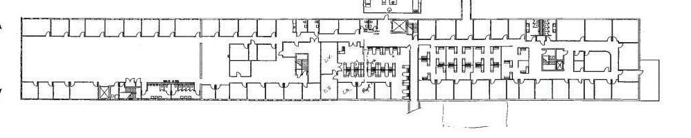
ALORAH SKILLED NURSING

Alorah Skilled Nursing Facility serves the Elderly as a place to receive care and rehabilitation.

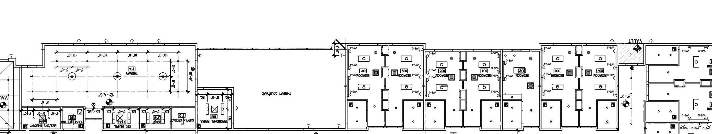
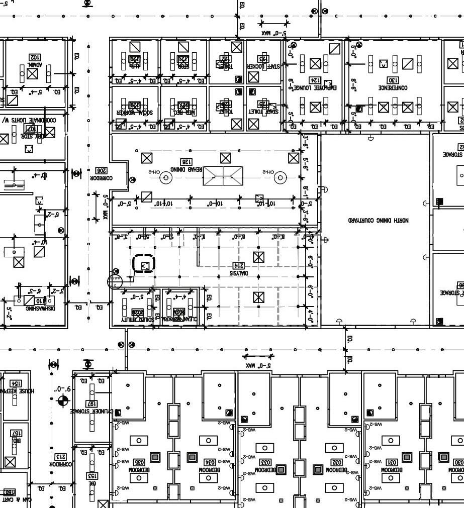
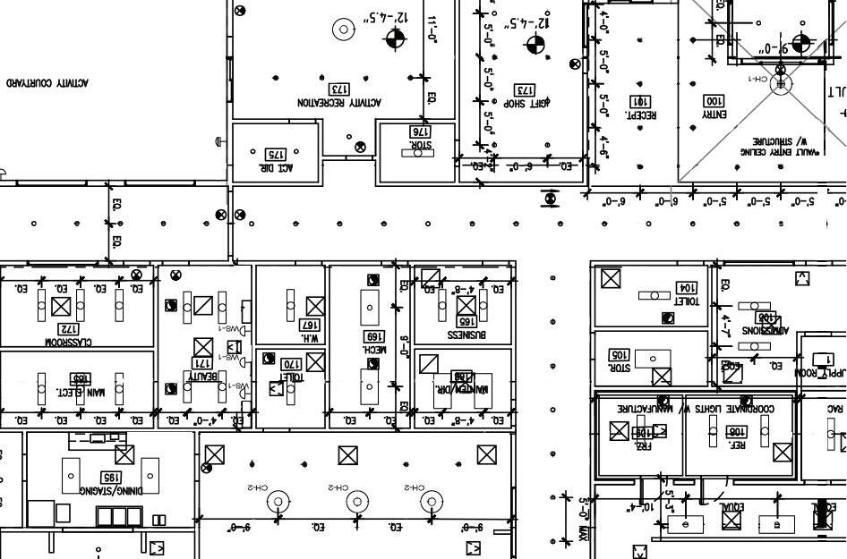
The 58,227 sq. ft. new build includes specialty spaces such as 13 memory-care units, 16 vent-units, 24 long-term care units, 19 short-term care units, therapy and rehabilitation rooms, dining rooms, a multipurpose room, living rooms, a gift shop, and staff support spaces. We created a design in conjunction with previously selected materials,to fulfill the clients' desire to have a luxurious facility offering patients a space that resembles a resort versus a skilled nursing facility.

4
PHOTOSHOP SPACE PLANNING
AMATOYA DESIGN TEAM
ty TEA AUTOCAD
58,227 SQ FT NURSING
LAS VEGAS, NV ALORAH SKILLED
ALORAH SKILLED NURSING 5

GUIDING PRINCIPLES

1. Luxury living without the expense

2. Materiality and color palette consistent with branding

3. Opportunities for residents to personalize resident rooms and display belongings

4. Public spaces to have high-end hotel atmosphere

6
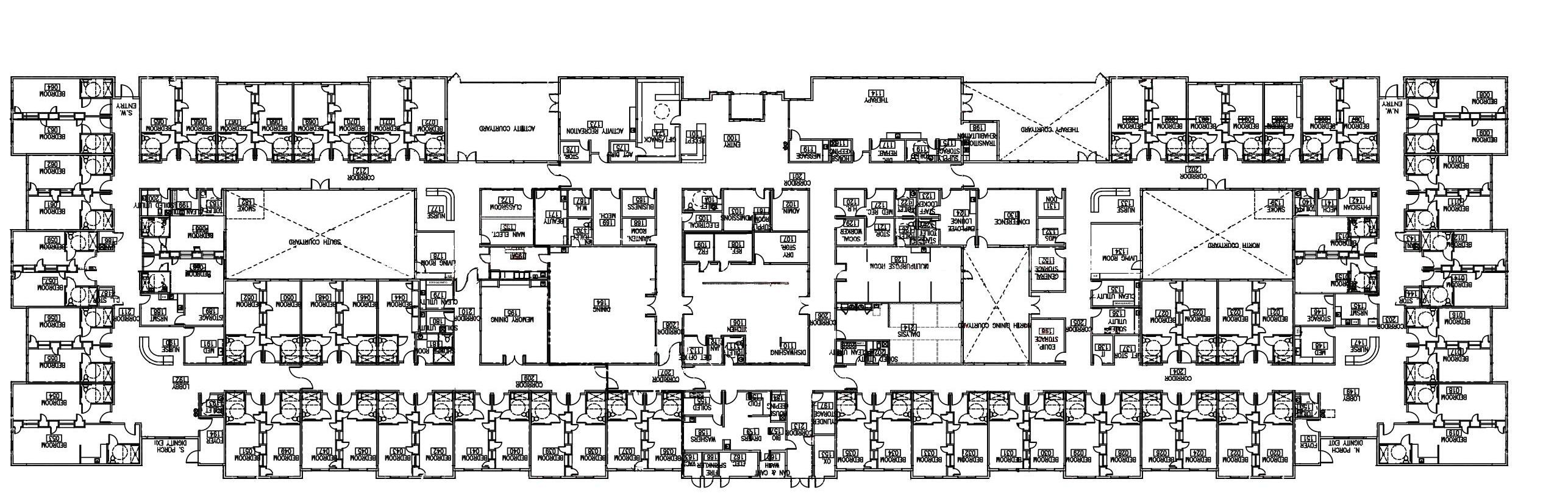
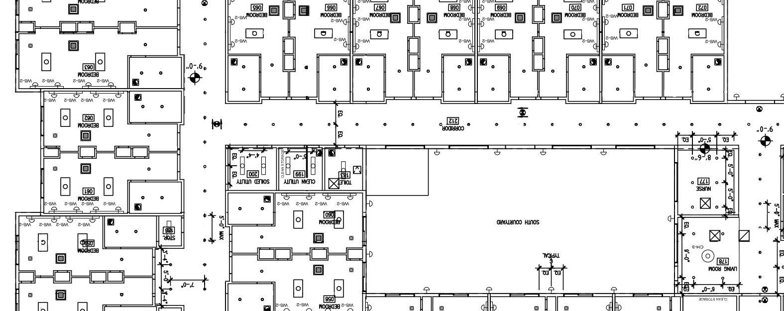
MEMORY CARE RESIDENT ROOMS SUB ACUTE CARE RESIDENT ROOMS VENTILATION RESIDENT ROOMS LONG TERM RESIDENT ROOMS Overall Floor Plan: Resident Room Quadrants
ALORAH SKILLED NURSING
Color Palette

DOUBLE RESIDENT ROOMS

Double Resident Room Floor Plan

Kwalu: Carrera

Recline r

Cubicle Curtain

Construction Specialities

Windsor - Pearl

Solid Surface

HIMACS

Aurora Cream

Kwalu: Carrera

Guest Chair

LVT Floors

Shaw Contract

Abide - Conch

Shell Oak

Resin Panel

3Form Varia WaveCustom Color

Laminate

Laminart

American Chestnut

Paint

Sherwin Williams

Windfresh White

7
Typical Headwall Rendered Elevation
ALORAH SKILLED NURSING
Typical Footwall Rendered Elevation

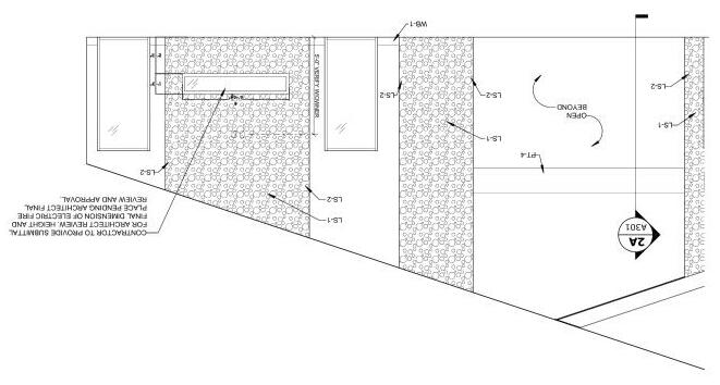
TYPICAL NURSE STATION

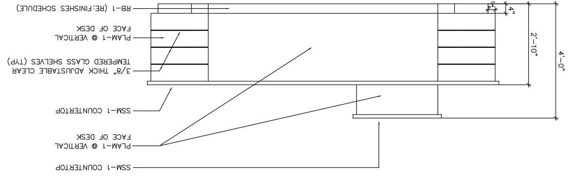
Nurse Station Desk Elevation - Typical

LVT Floors

Shaw Contract

Abide - Conch

Shell Oak

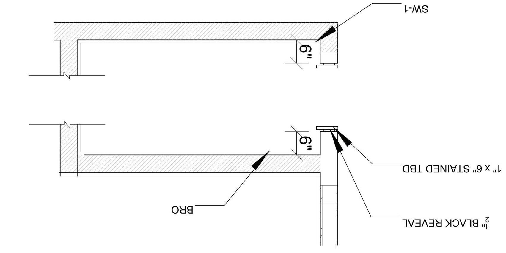
RB-2 1"METAL STANDOFFS PT-1

Nurse Station Back Wall Elevation - Typical

Resin Panel

3Form

Varia - Whisper

Carpet Tile

Shaw Contract

SuspendBranch

Paint

Sherwin Williams

Windfresh White

Paint

Sherwin Williams

Balanced Beige

Wall Protection

Koroseal

Urbane - Greige

Laminate

Laminart

American Chestnut

Solid Surface

HIMACS

Aster - Milky Way

8
3F-2
6" EQ
EQ
3F-23F-2
13'-10"
3'-6" 3'-2" 4" SSM-1 SSM-1 PL-1 2'-10"
6'-2" 3'
ALORAH SKILLED NURSING

RESIDENT DINING ROOM

Dining Accent Wall Elevation

LVT Floors

Shaw Contract

Abide - Conch

Shell Oak

LVT Floors

Shaw Contract

IntricateAlabaster

Paint

Sherwin Williams

Windfresh White

Paint

Sherwin Williams

Smoky Azurite

Laminate

Laminart

American Chestnut

Solid Surface

HIMACS

Aster - Milky Way

Wall Tile

New Ravenna

Bryce

Rubber Base

Johnsonite

Fawn

Back of chair

Kwalu: Chippendale LegsKwalu: Catania Dining Chair

9
Dining Floor Plan
ALORAH SKILLED NURSING
Front of chair

Dialysis Rendered Floor Plan

Solid Surface

HIMACS

Aster - Milky Way

Laminate

Laminart

American Chestnut

Vinyl Sheet Floors

Armstrong Spice White

Vinyl Sheet Floors

Armstrong Mallee Wheat

Dialysis Reflected Ceiling Plan

Paint

Sherwin Williams

Windfresh White

Paint

Sherwin Williams Balanced Beige

Wall Protection Inpro

Brittany Blue

Cubicle Curtain

Construction Specialities

Windsor - Pearl

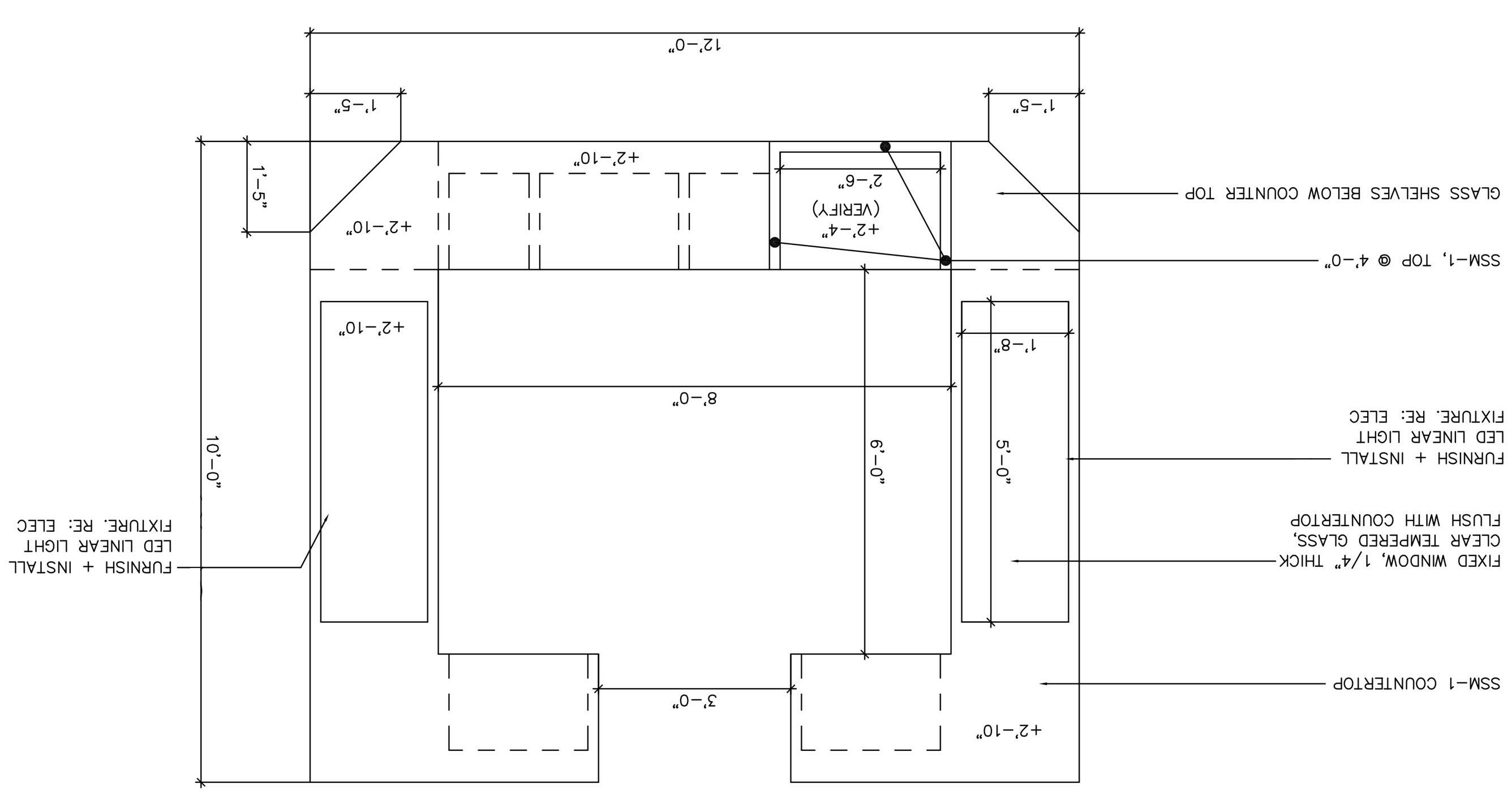
Dialysis Millwork Elevation

10
DIALYSIS
ALORAH SKILLED NURSING

LIGHTINGSCHEDULE

TAGMANUFACTURERPRODUCTNAMEPRODUCTNUMBERFINISHCOLORPRODUCTDESCRIPTIONNOTES WS-1CIRCALIGHTINGBOWENMEDIUMSCONCES2520HAND-RUBBEDANTIQUEBRASS4.5"WX16"H(ULONLYLISTED)LOCATION:BEAUTYSALON CH-1LUMENSECHO2-TIERLEDCHANDELIERBLACK26"Dx28.75"H(ULLISTED)LOCATION:LOBBY WS-2CIRCALIGHTINGAKOVAWALLSCONCE700WSAKVAGEDBRASS/BRIGHTBRASS8"wX7"LX13.3"H(ETLLISTED)LOCATION:RESIDENTROOMS

R-5SHADESOFLIGHTPINNACLEVANITYLIGHT-SMALLBS18261ABAGEDBRASSWHITE2.5"Hx24.25"Wx3.25"D(ETLDAMPLISTED)LOCATION:VANITYLIGHTFIXTURE CH-2HUDSONVALLEYLIGHTINGASTORIA3316-AGBAGEDBRASS27"DX13.5"H,DIMMER

(ULLISTED)LOCATION:DINING.CONTRACTORTOINSTALLFIXTURESWITHTHEAPPROPRIATESTEMHEIGHTTOACHEIVEMINIMUMHEIGHTOF 22.5"HATALLLOCATIONSWITH9'-0"CEILINGHEIGHTS.CONTRACTORTOPROVIDEDIMMABLECAPABILITY.

CV-1ALCONLIGHTINGSLIMCOVELEDLIGHT15255SILVER3500K,CONTINUOUSRUN(ULLISTED)LOCATION:THERAPYANDACTIVITYATEDGEOFWSC-1

CV-2ALCONLIGHTINGADJUSTABLELINEARCOVELIGHTBAR14224WHITE3500K,180DEGREEROTATION,DIMMABLERECEPTIONACCENTWALL

CH-3CIRCALIGHTINGLOIREMEDIUMTIEREDFLUSHMOUNTARN4450G-WSGGILD/WHITESTRIEGLASS14.5"WX12"H(ULDAMPLISTED)LOCATION:LIVINGROOMSANDBACKLOBBIES

11
Overall Reflected Ceiling Plan ALORAH SKILLED NURSING

PACE CENTER

Given the task to renovate an uninhabited building into a PACE Center (Program of AllInclusive Care for the Elderly), this project was designed to welcome elderly individuals into a space that creates a sense of community, freedom, and place. Combining the architecture with modern and traditional elements, it creates a space that is adaptable and functional for all individuals. By preserving preexisting architectural elements and utilizing green materials, it will create a sustainably driven environment.

12
, o s t f , e
PHOTOSHOP SPACE PLANNING SPRING 2019 STUDIO V 20,150 SQ FT GROUP PROJECT
REVIT ENSCAPE renov a g PACE CENTER
STILLWATER, OK
PACE CENTER 13

Taking inspiration from the things found throughout nature in Oklahoma utilizes biophilic design and allows users of the facility to connect to the space.

14
PACE CENTER

Curvilinear floor pattern to aid in biophilic design.

Orange, green, blue, and neutral hues are inspired by Oklahoma landscapes. +

Creating a sense of place and familiarity when visiting a space for the first time.

Security desk for controlled access on main street side of building.

Carpet tile to absorb sound and increase acoustical properties within the space. This allows users speech comprehensibility to improve as well as overall comfort.

15
Vinyl Upholstery Vinyl Upholstery Vinyl Upholstery Vinyl Upholstery Rubber Flooring Carpet Tile Type II Wallcovering LVT Flooring Floor Tile Wall Tile Color Palette
PACE CENTER
Level 1 Rendered Furniture Plan

PLACE-BASED RELATIONSHIPS

Organic forms based on the natural elements and processes of topography create a sense of movement and freedom.

Artwork depicting animals and landscapes local to the region create connections between the building and the distincitve geographical characteristics of Oklahoma.

16
+
OPEN TO BELOW OPEN TO BELOW Level 1 Reflected Ceiling Plan PACE CENTER

WAYFINDING

Multi-system solution:

1) Distinct images

2) Color Coding per floor

Having a multi-system wayfinding solution can aid the elderly during navigation and can minimize the risk of confusion.

Inspiration: Oklahoma landscapes

SUSTAINABLE DESIGN

Floor Colors

Reclaimed building materials to create artwork installations minimizes waste and cuts costs related to the production and transportation of new artwork.

17
PACE CENTER
Old hardwood floors New artwork

20,150 SQ FT

HARD ROCK HOTEL TOWER

During my internships I worked on the Hard Rock Hotel Tower renovation. This included selecting materials, creating detail drawings and elevations, attending site visits, and assisting in punch lists.

,

18
I k s
d
GROUP DESIGN TEAM
,
SPRING 2019
EDMONDSONFLYNN HARD ROCK HOTEL TOWER
CATOOSA, OK REVIT PHOTOSHOP
HARD ROCK HOTEL TOWER 19

PUBLIC COMMON AREAS

Elevator Lobbies

Custom Carpet Pattern: Sound Wave

Landing Lobbies

Custom Carpet Pattern: Sound Blast

Corridors

Custom Carpet Pattern: Sound Wave

Neutral Color Base Throughout

Tier 1 Accent Colors - Level 5 through 12

Tier 2 Accent Colors - Level 14, 15, & 16

Tier 3 Accent Colors- Level 17

20
HARD ROCK HOTEL TOWER
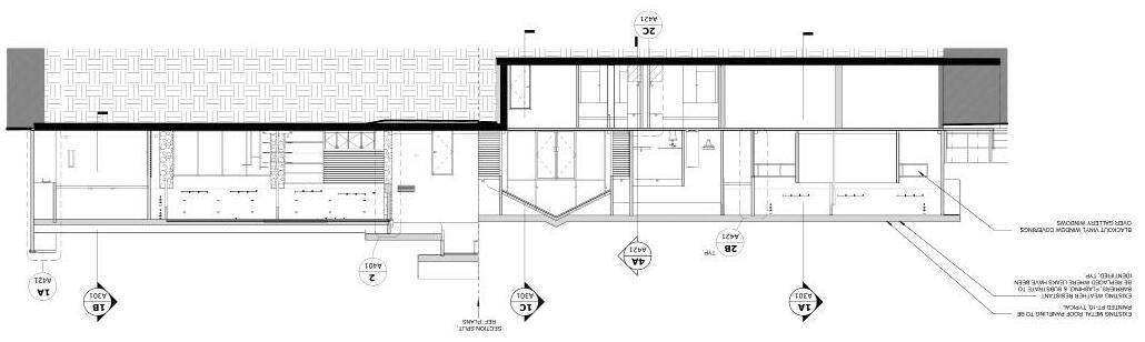
21 Artwork Custom Wallwrap/Acrylic: Different Genre Per Level Elevator Lobby Rendered Perspective HARD ROCK HOTEL TOWER
22 7' " 0' - 6" LOCKABLE GLASS DOORS RE: ELECTRICAL DRAWINGS BACKDROP TBD. PROVIDE LEVEL 4 PREPPED WALL SURFACE TO RECIEVE WALLCOVERING 7' - 0" RB-1 PT-2 1' - 6" 0' 6" RE: ELECTRICAL TRACK TO EXTEND FULL WIDTH RE: ELECTRICAL DISPLAY BY OWNER 6' - 0" METAL TRIM 3 1/4" H SLIDING LOCKABLE GLASS DOORS METAL TRIM 3 1/4" H RE: ELECTRICAL DRAWINGS TRACK TO EXTEND FULL WIDTH CAMLOCKS AT TOP AND BOTTOM OF EACH GLASS DOOR DRAPERY POCKET RECESSED TO HIDE HARDWARE AND ROD USE S ATIONARY HARDWARE INSTALL BOTTOM TRACK AS CLOSE TO FRONT OF THE GLASS AS POSSIBLE PLEASE SUBMIT SAMPLE OF GRAPHIC WALLCOVERING AND DRAPERY FABRIC FOR CASE RETURN TO CONCEAL VIEW OF FIXTURE. BACK WALL GRAZE LINEAR LOW VOLTAGE LED LIGHT STRIP WITH EXTRUSION AND ADJUSTABLE BRACKET MOUNTED IN POCKET AT TOP AND BOTTOM OF CASE TO GRAZE BACK WALL REQUIRES REMOTE POWER SUPPLY. **REMOTE LOW VOLTAGE POWER SUPPLY TO BE LOCATED NEARBY IN A DRY, EASILY ACCESSIBLE, WELL VENTILATED LOCATION APPROVED BY ARCHITECT 0' - 3 1/2" 0' - 3 1/2" 0' - 0 1/2" UP-6, VALENCE SIZE TO BE COORDINATED WITH HEIGHT OF LIGHT FIXTURE. FACE OF GLASS GENERAL CONTRACTOR TO PAINT ALL INTERIOR SURFACES MATTE BLACK TO ABSORB LIGHT. RE: ELECTRICAL DRAWINGS. **REMOTE LOW VOLTAGE POWER SUPPLY TO BE LOCATED NEARBY IN A DRY, EASILY ACCESSIBLE, WELL VENTILATED LOCATION APPROVED BY ARCHITECT. RE:ELECTRIC EQ. EQ. 2" MIN 0' - 0 1/2"
Memorabilia Case
Level 17
Level 17 Memorabilia Case Elevation Level 17 Memorabilia Case
Level 17 Memorabilia Case Details HARD ROCK HOTEL TOWER
Alicia Keys' Dress with Tulsa Skyline Wallwrap
Section

Typical King Headboard Details

23 2' - 10" 4'6" 0' - 8" 0' - 2 1/4" 1' - 5" 1'2 1/4" 1' - 5 3/4" 0' - 5" A C B 0' - 0 1/4" Ø4 2'3 3/4" A 2'5" 1'1 1/2" 1'3 1/2" 0' - 6" 0' - 3" Plinth 0'1 3/4" 1'8" 0'7 3/4" 2'0" SECTION A-A R1 0' - 0 1/2" 0'3 1/4" 0' - 2" 0'0 3/4" DETAIL D 0' - 1 1/2" 0'5 1/4" 0' - 0 3/4" 0'4 1/4" R3/16 0'- 1/2" DETAIL B Ø1/4" 0' - 9 3/4" 0'2" 0'1" 0' - 0 1/4" DETAIL C
HARD ROCK HOTEL TOWER

During one of my internships I worked on the renovation of the Amp Bar at the Hard Rock Hotel & Casino. This included selecting materials, putting together presentation boards, contacting material reps, rendering elevations and perspectives in Photoshop, and attending site visits.

24
s n d s s , n a l d p
EDMONDSON REED & ASSOCIATES DESIGN TEAM RING 2019 S IN Q FT 4,500 SQ
REVIT
AMP BAR
ATOOSA, OK CAT
PHOTOSHOP
AMP BAR 25
26 Quartz Daltile Star gazer Mosaic Tile Daltile City Lights Rubber Base T&W Tires Retread Tires Paint Stainless Innovations Cherry Powder Coat FRP Marlite Black Pebble Paint Kelly Moore Pale Gold Epoxy Floor Glossy Floors Custom Epoxy Floor Glossy Floors Custom Paint Sherwin Williams Light French Gray Paint Sherwin Williams Tricorn Black Paint Kelly Moore Oyster Paint Kelly Moore Platinum Paint Kelly Moore Black Pearl Paint Kelly Moore Olympic Gold Laminate Wilsonart Luna Night Laminate Laminart Classic Brushed Furniture Plan Rendered Floor Pattern Plan AMP BAR
27
Rendered Perspective
AMP BAR
Rendered Elevation

Placed with the task to develop a 3D model of a coworking space, The Vault is inspired by one of Oklahoma City's oldest businesses dating back to 1892, BC Clark Jewelers. With a jewel toned color palette and a focus on the five work modes, this space allows occupants to succeed with their careers in a community-style environment.

28
SPACE PLANNING 3D MODEL MAKING SPRING 2019 STUDIO II 1,673 SQ FT GROUP PROJECT OKLAHOMA CITY, OK AUTOCAD PHOTOSHOP
THE VAULT
29 THE VAULT

The logo is created from three check marks to represent The Vault's ideals of productivity. The overall shape of the logo is a new take on a diamond to incorporate the inspiration of the space: jewels.

Designing around the five work modes -social, collaborate, learn, focus, and rejuvinate-allows the space to be versatile for any user.

30
THE VAULT
THE VAULT 31

Place Attachment

32
< Pegboard walls allow the user to personlize the space, creating place attachment.
THE VAULT
THE VAULT 33

COMMUNITY CENTER

This adaptive re-use community center provides Tulsans a space where they can play, learn, and grow as a community. It offers a variety of physical and mental wellness activities all while encouraging a sense of togetherness and wellbeing. Recreation and learning spaces encourage a healthier lifestyle while having fun, and outdoor areas allow users the chance to connect with nature. Utilizing geometric and linear forms inspired by downtown Tulsa architecture creates a sense of place and connection to Tulsa and its history all while representing Tulsans continued growth.

34
INDIVIDUAL CAPSTONE PHOTOSHOP SPACE PLANNING SPRING 2019 STUDIO V 108,230 SQ FT CAPSTON TULSA, OK REVIT ENSCAPE
CORE COMMUNITY
CENTER
CORE COMMUNITY CENTER 35

1. Supports universal design, sustainability, wayfinding, and biophilia

2. Promotes a healthier lifestyle

3. Timeless design that appeals to all ages

4. Spaces that allow a sense of community and gathering

5. Color for purpose

GUIDING PRINCIPLES RECREATION COMMUNITY LEARNING

36
CORE COMMUNITY CENTER
37 1877 SF VESTIBULE 201 560 SF CORRIDOR 202 12583 SF OUTDOOR GARDEN 203 445 SF LAUNDRY 225 483 SF PRIVATE PARTY 223 661 SF MULTI-PURPOSE 211 25 SF STORAGE 210 225 SF STAFF OFFICE 218 102 SF STORAGE 1924 SF LOUNGE 212 454' 1/2" 72' 11/16" 48' 1/2" 12' 3/4" 24' 3/8" 17' 17' 6" 6" 68' 27/32" 1/16" 11 23/32" 11 5/8" 113' 5/8" 48' 1/2" 1/8" 11' 15' 1/2" 1/2" 6" 27/32" 1/2" 0" 33' 1/2" 33' 3/16" 10" 3/16" 113' 5/8" 27/32" 1712 SF VESTIBULE 101 3051 SF LOBBY 102 222 SF FIRST AID 103 224 SF FIRST AID OFFICE 105 LOUNGE 106 CAFE 107 139 SF FAMILY RR 109 1587 SF 113 3637 SF GYM 119 88 SF STORAGE 120 16 SF RECREATION LOBBY 118 9789 SF POOL 123 508 SF POOL STORAGE 126 256 SF POOL SUPERVISOR 125 256 SF CHEMICAL 124 1576 SF LOCKER/RR 127 1607 SF MEN'S LOCKER/RR 128 6498 SF GYMNASIUM 130 4626 SF AUDITORIUM 137 MEN'S RR 140 502 SF BREAK ROOM 142 269 SF 146 551 SF 655 SF READING ROOM 153 250 SF WOMEN'S RR 154 250 SF MEN'S RR 155 942 SF COMPUTER LAB 158 236 SF STORAGE 159 326 SF LIBRARY SUPERVISOR 160 12779 SF LIBRARY 148 1053 SF SPIN 131 2606 SF PORCH 161 10' ORIGINAL
53 50 50 55 42 S 58 36 S STORAG 59 S 60 1277 14 606 F PORC 61 44 AUNDRY 22 83 F 22 66 ULTI-PURPOSE 21 STORAG 21 RID CO O S RD OUT 03 37 MEN'SRR 14 50 14 69 14 55 S OUNGE 06 AFE 07 305 OBBY 02 RSTFIRRS 39 FAMILYRR 09 58 11 1 98 F 30 053 31 A E RECREATIO OBBY 11 89 OOL 12 12 S SUPERVISO F CHEMI AL 12 OCKER/RR 28 363 88SF STORA 12 2 OFFI 21 24 OUNGE 21 LEARNING COMMUNITY COMMUNITY RECREATION COMMUNITYRECREATION Level 2 Floor Plan Level 1 Floor Plan CORE COMMUNITY CENTER
PLANS
38 Carpet TileCarpet TileLVT Flooring Hardwood Flooring Floor Tile Concrete Rubber Flooring LaminateVinyl Upholstery Vinyl Upholstery Vinyl Upholstery Vinyl Upholstery Paint
1. Green hues represent an official Oklahoma State Color as well as the idea of bringing the outdoors in. 2. Red hues represent the Tulsa flag, as well as Oklahoma's state rock: the rose rock.
CORE COMMUNITY CENTER
3. Blue hues represent the Tulsa flag as well as the Arkansas River, a well-known river located in Tulsa.

Private rooms and a small lounge allow noise pollution to be at a minimum.

Outdoor garden to allow visitors to connect with nature; reducing stress and improving well-being.

Outdoor porch for reading.

Indoor track and studios to promote physical and mental wellbeing.

Theatre for meetings, plays, etc., creating a sense of community.

Child care to allow all ages to enjoy the facility.

39
Level 1 Rendered Furniture Plan
CORE COMMUNITY CENTER
Level 2 Rendered Furniture Plan

FINISH SCHEDULE

Inspiration

Final Elevation

40
Finish Key
Preliminary Sketch CORE COMMUNITY CENTER

UNIVERSAL DESIGN

Preliminary Sketch

The interactive community wall portrays members of the community, such as police officers and nurses. The display allows visitors to feel part of the community when they see themselves on the wall.

BIOPHILIC DESIGN

With pre-existing garage doors as windows, the faux reading tree in the children's room, and a living wall in the lobby, the library creates an environment that encourages well-being and imagination.

41
CORE COMMUNITY CENTER

VINITA, OK

ANNA MITCHELL CULTURAL & WELCOME CENTER

The Anna Mitchell Cultural & Welcome Center serves the Vinita community and visitors a place to learn about Cherokee Nation culture and history. The 9,434 sq. ft. renovation includes a gift shop, cafe, gallery, and classroom and studio spaces for cultural classes and events. We created a design that incorporates Cherokee cultural elements to support the client's desire to share the art and history of the nation.

9,434 SQ FT

SPRING 2019

42
ENSCAPE PHOTOSHOP ANNA MITCHELL CULTURAL & WELCOME CENTER
GROUP DESIGN TEAM
SKETCHUP
REVIT
AUTOCAD
ANNA MITCHELL CULTURAL & WELCOME CENTER 43

EXISTING IMAGES

44
Existing East Wing (To be Gift Shop) Existing West Wing (To be Gallery) Existing West Wing (To be Gallery) Existing Central Wing (To be Cafe) Existing Entrance Existing East Wing (To be Gift Shop) Existing Entrance Existing Restroom
ANNA MITCHELL CULTURAL & WELCOME CENTER

GUIDING PRINCIPLES

1. Incorporate authentic Cherokee culture through the use of Cherokee artisancrafted artwork, lighting, and specialty fixtures within the interior and architectural elements

2. Spaces that allow a sense of community and gathering

3. Utilize specific materials important within the Cherokee culture such as copper, clay, and stone throughout the interior and exterior of the facility

45
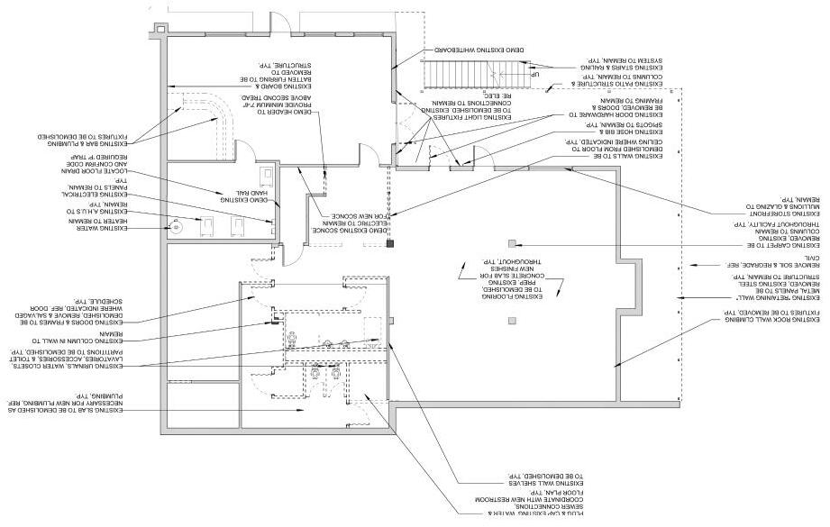
Main Level Demolition Plan Lower Level Demolition Plan
ANNA MITCHELL CULTURAL & WELCOME CENTER
Mood Board
46 Main Level Finish Plan Lower Level Finish Plan
Building Section 1
ANNA MITCHELL CULTURAL & WELCOME CENTER
Building Section 2

LOBBY/RESTROOMS

Floor Tile

Crossville

Notorious

Private Eye

Wood Floors

Premier Wood

Flooring

Custom Stain

Paint

Sherwin Williams

Worldly Gray

Quartz

Wilsonart

Arashi

Lobby East Rendered Elevation

Brochure Alcove Elevations

Wall Tile

Porcelanosa

Noa

Minnesota Ash

Wall Tile Tile Bar

Requiem Copper

Laminate

Wilsonart

Crystal

Laminate

Laminart

Black Walnut

Main Level Restroom Wall Tile Pattern

Laser-Cut Restroom Signage

Brochure Alcove Section

Women's Restroom South Elevation

Women's Restroom West Elevation

47
ANNA MITCHELL CULTURAL & WELCOME CENTER

RECEPTION/LOUNGE

Wood Floors

Premier Wood Flooring Custom Stain

Paint

Benjamin Moore

Timson Sand

Paint

Sherwin Williams

Urbane Bronze

Linear Wood Ceiling System

ASI Architectural Custom Finish

Lounge Rendering

Laminate

White Oak Veneer

Custom Finish

Laminate

Laminart

Etruscan Bronze

Quartz

Wilsonart

Arashi

Ledger Stone

Interceramic

Travertine

Autumn Leaves

Lounge East Elevation

Reception Desk Front Elevation

Reception South Elevation

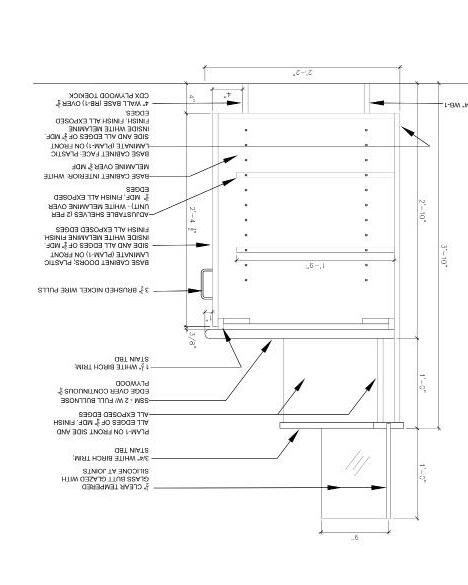
Reception Desk Plan

Reception Desk Interior Elevation

48
ANNA MITCHELL CULTURAL & WELCOME CENTER
49 Gift Shop Rendering
Tile Shaw Contract Offset Glossy Charcoal Ledger Stone Interceramic Travertine Autumn Leaves Laminate White Oak Veneer Custom Finish Quartz Wilsonart Arashi Slatwall Windmill Slatwall Products Custom Laminate Paint Benjamin Moore Timson Sand Paint Sherwin Williams Urbane Bronze
Retail Desk Plan Retail Desk Design Intent 3D Image Display Tower Elevation Retail Desk Front Elevation Retail Desk Side Elevation ANNA MITCHELL CULTURAL & WELCOME CENTER
Carpet
GIFT SHOP

CAFE

50 Cafe Rendering
Wood Floors Premier Wood Flooring Custom Stain Paint Benjamin Moore Timson Sand Quartz Wilsonart Arashi Laminate White Oak Veneer Custom Finish Linear Wood Ceiling System ASI Architectural Custom Finish
South 1 Elevation Cafe
2 Elevation Cafe North Elevation Millwork Detail Millwork Detail Metal Signage Custom ANNA MITCHELL CULTURAL & WELCOME CENTER
Cafe
South
51
THANK YOU

Turn static files into dynamic content formats.

Create a flipbook
Issuu converts static files into: digital portfolios, online yearbooks, online catalogs, digital photo albums and more. Sign up and create your flipbook.
Lauren Murlette Portfolio 2023 by Lauren Murlette - Issuu