Laura Wilk Architecture Portfolio

Page 1


UWM

Halstead Architects Architectural Intern May 2019 - August 2019 Marion, Indiana

OSU Facilities Information & Technology Services Architectural Services Assistant May 2018 - April 2019 Columbus, Ohio

Thesis Advisor: Jim Shields, UWM with Land Strategies Inc (LSI) with Land Strategies Inc (LSI)

Professor: Jim Shields, UWM

ART OF DETAILING

Professor: Jim Shields, UWM

Professor: Emily Mohr, OSU

JULY 2021 - PRESENT WITH LAND STRATEGIES AUSTIN, TEXAS

STATE PARK MULTI-FAMILY

This 290 unit multi-family project is located adjacent to a state park. With this close proximity to the park there was a desire to embrace nature with trail connections, a clubhouse with views towards the park and a roof deck overlooking it. This adjacency also created more complex code requirements with the International Wildland Urban Interface Code (IWUIC). By designing a garden style

complex with seven separate residential buildings, more corner units can be included, meaning the ability to have more windows and visual connections to the park.

I have worked on this project since starting at LSI in 2021, and have been able to contribute to the entirety of the design process, from unit layouts to expedited permit review and through construction

administration. I have been able to work closely with the project team to bring this project to its current state. As my experience and time at LSI increased I have been given more lead of the project, fully taking on construction administration tasks. Project renderings were created using Enscape through Revit. All those on the following pages were created by me.

2

JULY 2021 - PRESENT WITH LAND STRATEGIES INC

CUSTOM HOME + COMMERCIAL PROJECTS

LSI has given me the opportunity to work collaboratively on a variety of projects throughout central Texas, including multi-family, private residential, commercial/retail and restaurant.

The following pages highlight projects I have been involved in and describe my role in the project. All included graphics were created by me unless otherwise noted.

HOUSE HIDDEN IN THE HILL

This custom home project has a unique entry sequence with the desire for the house to be built into the significantly sloped topograhpy of the site. When approaching the main entry, one would interpret the home as two separate buildings. The mass at the end of the drive becomes the main entry and home offices of the owners, while

the second mass with a more secluded entry point would be the master suite. Entry would only be apparent to those familiar with the home.

As a guest enters the main entry and office space the rest of the home reveals itself with the staircase situated next to a two story window

well. The main living space opens up to expansive windows that overlook the backyard and pool area. These windows can be fully opened in addition to those at the window well created a calming cross breeze throughout the space.

This custom home came with the challenge of including an ADU on a long, narrow and sloping site. The extended limestone wall becomes the primary ground level division of the main home from the ADU, with the entirety of level one of each building occuring on either side.

Where this line is blurred occurs on level two of the main home, as the bedroom ‘bar’ extends over the division. This bar, acting as a carport, is clad with a wood screen that allows for dynamic lighting from day to night. During the day the screen causes the bar to appear as a solid form, but as exterior lighting

dims, interior lighting peers through the screen adding dimension that was not there hours before.

GAS STATION REUSE BAR PROJECT

This project is the reuse of an existing shell gas station into a bar with an expansive backyard space. The front gas station awning is repurposed as a shade structure for outdoor seating.

The main bar space had to remain in the existing footprint of the gas station where the kitchen and exterior bathrooms became an addition with minimal square footage allowed. Working collaboratively with the bar

owners, the team was able to create an efficient plan that fit within the alloted space.

BACKYARD ELEVATION
FRONT ELEVATION

RETAIL CENTER

Working with LSI’s planning team who determined an efficient site layout, I was able to create visuals of this project to allow a client to understand the potential of a given site.

FRONT ELEVATION
DRIVE THROUGH SITE PLAN

SEPTEMBER 2020 - MAY 2021

THESIS ADVISOR: JIM SHIELDS, UWM

THESIS COMMITTEE: JIM WASLEY, UWM

KEITH STACHOWIAK

THE INTERSECTION OF HISTORIC PRESERVATION AND ECOLOGICAL DESIGN

On the topic of reducing carbon emissions and energy usage becoming more prevalent, it is obvious that a large focus is on architecture with this industry accounting for 40% of these outputs. Instead of simply designing and building more efficient buildings, what if instead we take advantage of our existing building stock? By doing this we are able to reduce material waste from demolition and construction while keeping the character of an existing building and the district it is located in.

This thesis examines the intersection of historic preservation and ecological design and what kinds of barriers and conflicts might arise when they coexist. More specifically it investigates

an empty warehouse in the Third Ward of Milwaukee, Wisconsin – a district placed on the National Register of Historic Places that has in recent years become an artistic hub of the city.

This design looks to create a public space for viewing and learning about art while also creating a place for local artists to work in a collaborative space. The overall design of the interior is meant to keep the feel of an open warehouse through the usage of glass walls when division is needed. All major changes were designed to be easily reversible.

The building also looks to implement ecological practices and technologies in the goal

to create an energy efficient building. Some of these include PV array, rainwater management, low flow fixtures, VRF system with geothermal wells and superinsulation of the roof and basement.

One of the most significant conflicts between the preservation and ecological ideologies was how to address the insulation of the masonry walls. The preservation side wants to keep the character of the masonry interior while ecologically an uninsulated wall will cause the energy usage to spike. Through multiple studies an experimental movable insulation curtain was decided upon. It’s usage also allows for sound absorption and light control of the space.

HISTORIC IMAGE OF PROJECT SITE

EXISTING BUILDING CONDITIONS

SITE LOCATION - MILWAUKEE, WISCONSIN

SEPTEMBER - DECEMBER 2020

PROFESSOR JIM SHIELDS, UWM

PECK SCHOOL OF THE ARTS GALLERY, LIBRARY & CAFE

When the Peck School of the Arts moved off of the main campus of University of Wisconsin - Milwaukee students lost close access to many of the amenities of a college campus. This project works to bring an art gallery, library and cafe across the street from the graduate school. On the site is an existing Herbert Tullgren building built in 1934. In this proposal, the existing building will host the cafe

program of the building while the new construction will host the gallery and library. The new building aims to respect the existing by standing apart from the building, encouraging a look back to the historic facades and through the usage of a dark neutral terra cotta material. This material allows for the brighter orange of the historic building to stand out. The main entry point becomes lifted three

feet from the sidewalk level to create a public courtyard slightly broken from the public walkway. The new construction is built with a heavy timber construction using inverted king’s post trusses throughout. There was also a strong interest in a LEED certification, so design strategies such as a VRF mechanical system, green roofs and PV arrays were utilized throughout the project.

KAWNEER 1600 WALL SYSTEM 2 SSG MULLION

STAINLESS STEEL TOP FASTENER

CONT. FLASHING

SMART CI CLIP

5-PLY CLT

MINERAL WOOL INSULATION

VERTICAL SUPPORT RAIL

GIRT SEGMENT

AIR/VAPOR BARRIER

GARDENEDGE METAL EDGE RESTRAINT

HYDROTECH

GRAVEL BARRIER

FILTER

HYDROTECH GARDENDRAIN

HYDROTECH MOISTURE MAT

MINERAL WOOL INSULATION

5-PLY CLT

MULLION

WOOD BLOCKING

WATER/VAPOR/AIR BARRIER

STEEL FASCIA 5-PLY CLT

HYDROTECH EXTENSIVE GREEN ROOF ASSEMBLY

MINERAL WOOL INSULATION

AIR/WATER/VAPOR BARRIER 5-PLY CLY

WINDOW DETAIL

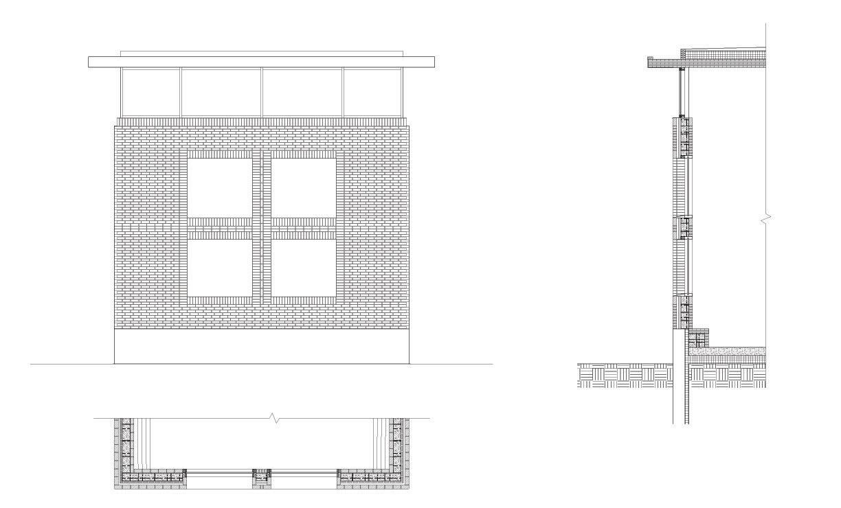
FEBURARY-APRIL 2021 PROFESSOR JIM SHIELDS, UWM

ART OF DETAILING

This course examined an abundance of architectural details successfully designed by various architects. We each then took inspiration from these details in creating unique details for a punched masonry building and a bypassing skin building.

WITH HALSTEAD ARCHITECTS

SUMMER 2019

SKETCHUP PROJECTS

The following pages show examples of work using Sketchup and renderings within the program. The first set shows an existing historic apartment building that I was tasked with building the facades in Sketchup and rendering the area. The second set shows a proposed coworking space in an existing abandoned bank building.

JANUARY - MAY 2019

PROFESSOR EMILY MOHR, OSU

DRAWING DRAWINGS STUDIO

This semester long studio focused around the idea of ‘drawing drawings’. How can we redraw something using different medias or add a new dimensionality to create something new? The semester began by redrawing a known piece of architecture in the style of another architectural drawing with additional experimenation on how to create the drawing without printing it. Some of my experiments included, layering paper, stacking chipboard, and painting. These techniques and

drawings inspired the creation of hatches and patterns which then inspired unique pieces of furniture. Then using these hatches and furniture pieces, each person in the studio designed three rooms that came together to create one giant palace. I created a server room that was designed around a hatch focusing on the continuous line. Every service became part of a few singular lines that traveled through the space. My second room was a bedroom that considered how an

unrolled surface drawing could affect the pattern because of how the walls overlapped. The three angles of a 3D drawing were used which then in turn inspired new furntiture that were inspired by how 3D drawings look. The final room I created was the theatre that was designed around a curving hatch which informed the location of the stairs and the extrusion of railings.

DRAWING THE REDRAWING THROUGH METHODS OTHER THAN PRINTINGSTACKING CHIPBOARD, LAYERING PAPER, LASER CUTTING, PAINTING, ETC.

REDRAWING OF THE SOLARIUM AT STAN HYWET HALL IN THE STYLE OF JEAN BADOVICI’S DRAWING OF E1027 BY EILEEN GRAY

CREATING HATCHES EXPERIMENTING WITH SCALE

FURNITURE INSPIRED BY CREATED HATCHES

SERVER ROOM DESIGNED AROUND THE CONTINUOUS LINE

UNROLLED BEDROOM EXPERIMENTING WITH OVERLAPPING LINES

scale:

THEATER USING THE PUSH AND PULL OF THE HATCH

MODEL PHOTOS

SKETCHES

Throughout May of 2017 I took part in a study abroad program travelling across Europe through six countries and countless cities observing, analyzing and sketching significant architecture. The program significantly impacted my outlook on architectural design and greatly improved my sketching abilites.

CHURCH OF THE AUTOSTRADA / MICHELUCCI

ALTE NATIONAL GALLERY / SCHINKEL
VERONA, ITALY

The significant site cause much controversy in the idea that it lacked ornament.

“Inappropriate to meet the emperor like that.’

A nine square grid pops into the space to significy the commercial space along with the double height space shown sectionally

Loos uses ornamented material rather than additive ornament like its neighbors. Marble is cut in a specific fashion to add decorative elements to the facade.

Turn static files into dynamic content formats.

Create a flipbook
Issuu converts static files into: digital portfolios, online yearbooks, online catalogs, digital photo albums and more. Sign up and create your flipbook.