Laura Moreno | Portfolio of Design

Page 1

MARIA MORENO GALLO Architecture Portfolio 2024
LAURA
1 - RESUME_Attach as a separate document 3 2 - PROFESSIONAL WORKS A- Projects with - ARCHITECTUS 4 WSP Workplace | International Bank | OSD Workplace | Ruah Centre for Woman and Children B - Projects with -EXACTA PROYECTO TOTAL 6 School Marymount- Phase 2 | Palko 92 | palko 81 | Santalaia C- Projects with- ORTIZ Y TORRENTE 16 Bank Workplace BNP| Shop in 109 Street| Pharmacy “Acuña” 3 - PERSONAL PROJECTS 19 Interior design of an apartment | Design of the lobby of a residential project in Bogota city 4 - ACADEMIC PROJECTS 21 Graduated Thesis 2012| PARCO FLUVIALE LINEARE C O N T E N T S
- RESUME
María Moreno Gallo Architect
1
Laura

2- PROFESSIONAL WORK

A- Projects with Architectus 2023 -2024

Perth - Australia

WSP WORKPLACE DESIGN

2023 - 2024 by Architectus

Perth, Australia

Head Design

Interior Architecture: Stephen Moorcroft

Team: Emelie Anderson | Laura Moreno

My role: Finishes Selection | DD, Tender & Construction

Documentation | Coordination

General Plan Level 7 - Floor Finishes General Plan Level 8 - Floor Finishes Finishes Palette
WSP WORKPLACE DESIGN Joinery and Roomlayout Documentation
Kitchen General Plan
Kitchen
Elevation Island Elevation Island General Plan Reference Plan

2- PROFESSIONAL WORK

A - Projects with Architectus 2023

Sydney- Australia

INTERNATIONAL BANK - WORKPLACE DESIGN

2023 - 2024 by Architectus

Perth, Australia

Head Design: Craig Earley & Zainab Tinwala

Interior Architecture: Lauren Rutstein

Team: Claudine Rule| Laura Moreno

My role: In main project: Coordination of AV and Electrical Fixtures | Design of layouts for new spaces | Joinery design & Documentation

In second Phase: Concept Design, Documentation of the project for all the design phases, Schedules Signage Design & Furniture Selection for the Terrace.

P R O F E S S I O N A L W O R K
Flexible Working Space Photo Open Workplace Photo Caffee Area Photo Kitchen Area Photo
INTERNATIONAL BANK - WORKPLACE DESIGN
| Electrical
& Joinery
AV Corrdination
Coordination
Details Joinery Details Joinery Details Partition Details

2- PROFESSIONAL WORK

A - Projects with Architectus 2022

Perth - Australia

OSD WORKPLACE DESIGN

2022 by Architectus

Perth, Australia

Head Design

Interior Architecture: Stirling Fletcher

Team: Nikita Demetriou | Laura Moreno

My role: Schematic Design | Concept & Approach to

Materiality | Layout Design | DD, Tender & Construction

Documentation | Rendering in Revit - Enscape

P R O F E S S I O N A L W O R K SUSTAINABLE DESIGN INNOVATION INTERIOR DESIGN URBAN
3D View Meeting Room 3D View Kitchen 3D View Open Workplace General Plan
3D View Reception Reception Photo Front of House Photo Finishes Palette
OSD WORKPLACE
Open Workplace Photo
DESIGN

2- PROFESSIONAL WORK

A- Projects with Architectus 2021 -2022

Perth - Australia

RUAH CENTRE FOR WOMAN AND CHILDREN

2021 -2022 by Architectus

Perth, Australia

Head Design

Interior Architecture: Stirling Fletcher

Architecture: Eleni Gogos | Colm Donelly

Team: Laura Moreno |Lauren Hampton | Nikita Demetriou

Kim Mcgrath| Kate Bowler

My role: Schematic Design | Concept & Approach to

Materiality | Layout Design | DD, Tender & Construction

Documentation

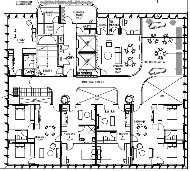
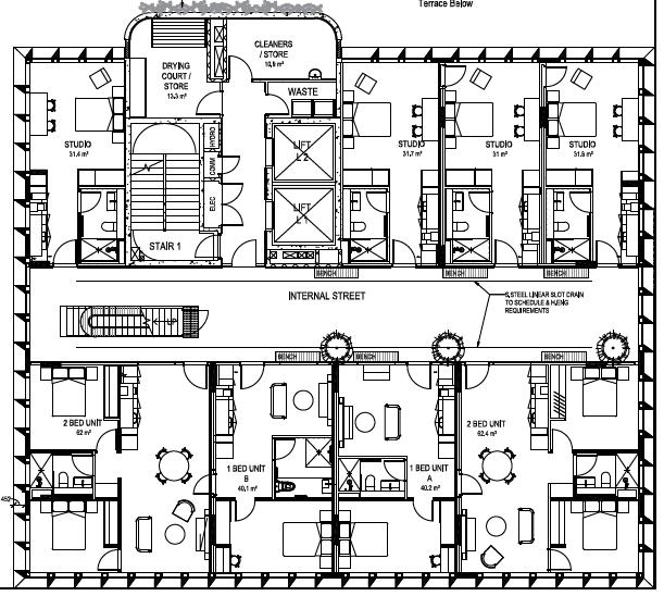
The Centre is a high functioning operational building where the safety and dignity for staff and clients is critical. The overarching project vision was to create an amenity that was welcoming, calm and safe for women and their children suffering trauma. It is a place where RUAH clients can experience genuine connections, choice, and a sense community.

SUSTAINABLE DESIGN INNOVATION INTERIOR DESIGN URBAN P R O F E S S I O N A L W O R K
Finishes Palette

RUAH CENTRE FOR WOMAN AND CHILDREN

To build an environment for women to connect, heal and grow. A space that is safe, calm and welcoming to everyone.

Residentials Floor - Finishes Palette
General Plan - Level 5 General Plan - Level 6
Residential Floor Image (Render by others)

2- PROFESSIONAL WORK

B- Projects with Exacta Proyecto Total - Virtuosa

Bogota, Colombia

MARYMOUNT SCHOOL | EDUCATIONAL PROJECT

2017-2018 by Exacta Proyecto Total Bogotá,Colombia

Head Design: Carlos Lleras Figueroa

Team: Diana Mora||Monica Villate|Paula Jaramillo|Alejandro Pizano|

Juan David Pizarro|Jaime Herrera|Victor Vargas|Laura Moreno

My role: Architectural Design|Interior design|Details|Design of the Auditorium

Exacta designed the initial phase of the master plan, with the preschool and primary building forming part of the subsequent stage.

The project includes initiatives to restore a forest within the city. The building was thoughtfully designed to seamlessly integrate with its surroundings, respecting the natural environment.

General view of the forest and building

SUSTAINABLE DESIGN INNOVATION INTERIOR DESIGN URBAN P R O F E S S I O N A L W O R K
| EDUCATIONAL
Master Plan Preeschool- Primary and Auditorium
MARYMOUNT SCHOOL
PROJECT
MARYMOUNT SCHOOL | EDUCATIONAL PROJECT
Joinery Details Joinery Details Zoom
to General Plan - Joinery & Toilets
Interior Park corridors|stairt| social places
MARYMOUNT SCHOOL | EDUCATIONAL PROJECT

MARYMOUNT SCHOOL | EDUCATIONAL PROJECT

The result of wonderful teamwork under a great manager, a design crafted with passion and care, preserving nature and bringing life to a building that respects its surroundings

General view of the forest and building Classroom Interior Corridors

PALKO 81 | RESIDENTIAL PROJECT

2015-2017 by Exacta Proyecto Total Bogotá,Colombia

Head Design: Carlos LlerasFigueroa

Team: Diana Mora||Rosario Galvis|Paula Jaramillo| Alejandro Pizano|Ana Maria Cajiao|Jaime Herrera| Laura Moreno

My role: Colaborative Project Management| Architectural Design| Interior design | Site Supervision|Client Management|Signage design

Palko 81 is building of 37 apartments, each apartment was personalized, so the layout, finishes and furniture was designed as each client wanted followed by Exacta´s design criteria.

Lobby Design
Common Interior Areas Common Exterior Areas
Facade
SUSTAINABLE DESIGN INNOVATION INTERIOR DESIGN URBAN P R O F E S S I O N A L W O R K
Kitchen Design FF&E interior Design FF&E interior Design Kitchen Design
General Plan Level 2
Facade Details Detail
Zoom - Planters
Detail Zoom - Planters

PALKO 92 | RESIDENTIAL PROJECT

2014-2016 by Exacta Proyecto Total

Bogotá,Colombia

Head Design: Carlos Lleras Figueroa

Team: Diana Mora|Camilo Becerra|Rosario Galvis|Paula Jaramillo|

Alejandro Pizano|Ana María Cajiao|Laura Moreno

My role: Colaborative Project Management|technical coordination|

Architectural Design|Interior design|Site Supervision|Client realship|

Construction Licensing transactions| Signage design

Palko 92 is a building comprising 35 apartments, with each unit being personalized to the specifications of its occupants. This customization extended to the layout, finishes, and furniture, all designed according to the individual preferences of each client, while still adhering to Exacta’s design criteria.

The opportunity to work on Palko 92 was significant for me, as it allowed for involvement in the project from its inception to its completion. This experience provided a comprehensive understanding of interior design, coordination, and administrative processes, all under the excellent supervision of Manager Carlos Lleras Figueroa.

Common Interior Areas Lobby and Interior Areas Exterior Areas Facade
P R O F E S S I O N A L W O R K SUSTAINABLE DESIGN INNOVATION INTERIOR DESIGN URBAN
FF&E Design Bathroom Design
FF&E
PALKO 92 | RESIDENTIAL PROJECT
Kitchen Design
Design
General
Plan Level 2

SANTALAIA | RESIDENTIAL PROJECT

2014-2015 by Exacta Proyecto Total Bogotá,Colombia

Head Design: Carlos Lleras Figueroa

Team: Diana Mora|Laura Garcia|Rosario Galvis|Paula Jaramillo

Laura Moreno

My role: Interior Design

Santalaia is a building comprising 15 apartments, with each unit personalized to the preferences of its occupants. From layout and finishes to furniture selection, every aspect was tailored to meet the desires of each client, while still adhering to Exacta’s design criteria.

Santalaia stands as a remarkable sustainable project, being one of the largest vertical forests in South America. For Exacta, Santalaia posed a significant challenge that facilitated the team’s growth and served as inspiration for other architectural studios.

In a city like Bogotá, this building serves as a vital hub for cleansing and providing fresh air to both its residents and those in its vicinity, akin to a beating heart within the urban landscape.

Kitchen Design Exterior Corridors Roof-Private terrace Facade
SUSTAINABLE DESIGN INNOVATION INTERIOR DESIGN URBAN P R O F E S S I O N A L W O R K
Roof-Private terrace

2- PROFESSIONAL WORK

C - Projects with Ortiz &Torrente Architects

Bogota, Colombia

BNP BANK WORKPLACE

2012-2013 by Ortiz & Torrente

Bogotá,Colombia

Head Design: Jorge Ortiz

Team: Maria Isabel Torrente|Laura Moreno

My role: Colaborative Project Management| Architectural Design|Interior design Site Supervision

BNP Paris Bank, hire Ortiz&Torrente architects for designing their offices. With the hand of Kassanni furniture manager and team designed a wonderful space for working, with a nice coffee desk for rest time.

SUSTAINABLE DESIGN INNOVATION INTERIOR DESIGN URBAN P R O F E S S I O N A L W O R K
Space
Workplace Private Offices General Plan
Collaborative
Open

ZU- DESIGN STORE - COMMERCIAL

2010 by Ortiz & Torrente

Bogotá,Colombia

Head Design: Jorge Ortiz

Team: Maria Isabel Torrente|Laura Moreno

My role: Colaborative Project Management| Architectural Design|Interior design Site Supervision

The Zu Design Store is located on a commercial street in Bogotá city. Ortiz & Torrente were in charge of the interior design and organization of the store.

P R O F E S S I O N A L W O R K
SUSTAINABLE DESIGN INNOVATION INTERIOR DESIGN URBAN
floor 3D View
Floor 3D View
First
First
Photo of The Entry

2012-2013 by Ortiz & Torrente

Bogotá,Colombia

Head Design: Jorge Ortiz

Team: Maria Isabel Torrente|Laura Moreno

My role: Colaborative Project Management| Architectural Design|Interior design Site Supervision

2-
ACUÑA PHARMACY
SUSTAINABLE DESIGN INNOVATION INTERIOR DESIGN URBAN P R O F E S S I O N A L W O R K General Plan
Counter 3D View Jonery 3D View 3 -PERSONAL PROJECTS Laura María Moreno Gallo Architect

2019 by Laura Moreno

Bogotá,Colombia

Head Design: Laura Moreno

My role: Architectural Design|Interior design| Site Supervision

In my capacity as an architect with expertise in interior design, I was afforded the opportunity to partake in a competition aimed at revitalizing the lobby of a residential building. Following rigorous evaluation, my design emerged as the selected choice.

LOBBY OF
RESIDENTIAL BUILDING DESIGN
SUSTAINABLE DESIGN INNOVATION INTERIOR DESIGN URBAN P R O F E S S I O N A L W O R K
Access 3D View Access 3D View Reception & Joinery 3D View

4 - ACADEMIC PROJECTS

Laura María Moreno Gallo

Master Ssutainable Architecture

ACADEMIC PROJECT
ACADEMIC PROJECT
ACADEMIC PROJECT
ACADEMIC
PROJECT

Turn static files into dynamic content formats.

Create a flipbook
Issuu converts static files into: digital portfolios, online yearbooks, online catalogs, digital photo albums and more. Sign up and create your flipbook.