ARQUITECTURA PORTAFOLIO
Laura Itzel Fernández

![]()
Laura Itzel Fernández

Arquitecta con gusto de adquirir conocimientos nuevos con curiosidad activa y contribuir en un entorno dinámico. Enfocada en el diseño de espacios funcionales y que generen sensaciones. Constantemente en busca de crecimiento personal y profesional y obtener mayor responsabilidades que me ofrezcan aprendizajes. Disfruto trabajar con mi creatividad cuando me encuentro encuentra con desafíos y tareas nuevas.
Email: itzelfafalau@gmail.com

Proyecto con el objetivo de experimentar con la transformación a partir de estrategias y diseñar un museo para la comunidad que pueda integrarse en su contexto.
ESTRATEGIAS


A partir de la necesidad de un elemento físico que permitiera conectar las aceras opuestas del Blvd J.M Morelos surge el diseño del puente peatonal que se caracteriza por facilitar el tránsito hacia ambos lados de la vialidad y en su descenso remata con el complejo cultural del museo.






Proyecto en equipo
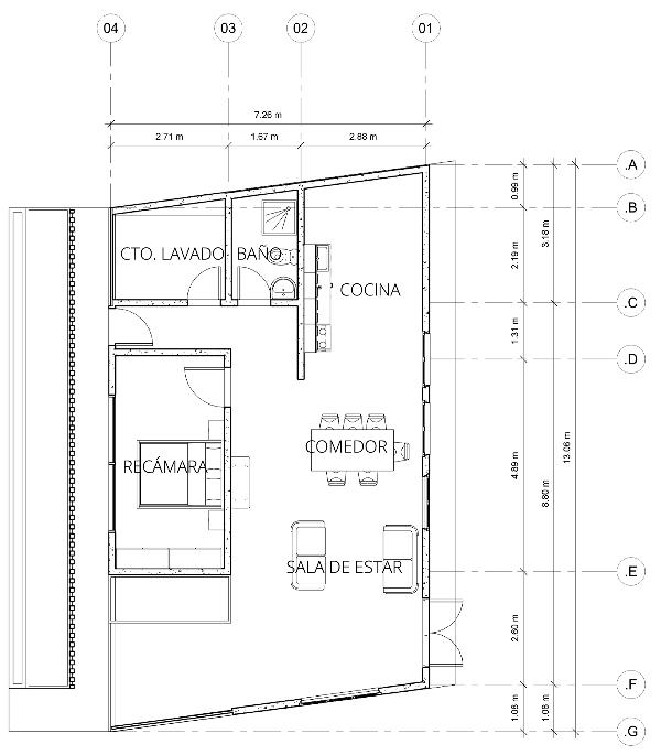
Proyecto casa habitación de 75 metros cuadrados con sistemas bioclimáticos. El diseño formal surge de las estrategias ambientales respecto a los vientos dominantes y radiació solar.
PERGOLADO

CUERPO DE AGUA JARDINERA
El pergolado con sus aberuras permiten que el flujo del aire se regule y ofrece luz difusa. Con ayuda del cuerpo de agua produce enfriamiento al interior de la casa. La jardinera con cactaceas ofrece un efecto refrigerante por la transpiración por evaporación creando un microclima. La celosía regula la luz y la temperatura. La cámara solar permite una manera indirecta de luz al interior.








El proyecto consiste en generar un proyecto para mejorar un espacio seleccionado para mejorar la función que brinda a la comunidad. El sitio elegido son canchas recreativas en la comunidad de Piletas en León. Estas canchas cuentan con gradas de concreto pero el sol pega directamente. El objetivo es reforzar el uso de las gradas y mejorar el espacio de recreación con comodidad y un espacio para reuniones de los jugadores como un espacio público.






El objetivo del proyecto es la expansión del museo Nivola el cual es un espacio muy importante para Orani, atrae turismo, la actividad principal de Cerdeña. Algunos problemas es la falta de espacios de alojamiento y el proyecto propone añadir habitáculos y talleres para complementar el museo. Se plantearon los habitáculos de manera que estos tengan un ambiente privado sin necesidad de barreras y los talleres en la parte de en medio para mantener una relación directa con el museo y los turistas alojados.




