Via

Page 1

Visualize Your Architectural Dream With Us.
2
Proposed Residence Foyer - Elevation design Pollachi ,Tamil Nadu.
3
Toranto
Canadian Residence(Elevation Design)
,canada
4 Canadian Residence -Backyard Design Toronto ,Canada
5 Apartment - INTERIOR DESIGN India
6 Apartment -
India
INTERIOR DESIGN
7 Apartment - INTERIOR DESIGN India
8
India
Residence -Bedroom Interior design
9
India
Apartment - INTERIOR DESIGN
10
India
Apartment - INTERIOR DESIGN

Key plan

11
India Isometric
Residence -Bathroom Design
view

Key plan

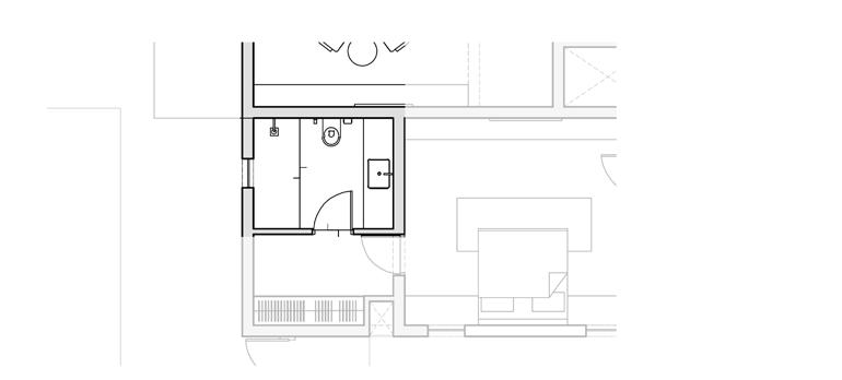
12 Residence
India Isometric view
-Bathroom Design

Key plan

13 Residence -Bathroom Design India Isometric view
Warehouse-Storage Canada
15 Warehouse -Storage Toronto ,Canada
16 Warehouse -Storage Toronto ,Canada
17
Warehouse -Storage ,Structural interiors Toronto ,Canada
18
Warehouse -Storage ,Structural interiors Toronto ,canada
19
Storage,Exterior Rendering Toronto ,canada
PROPOSED STORAGE BUILDING -WAREHOUSE CANADA
21 Aerial View of Proposed Building ON,Canada
22 THANK YOU Do follow us on visualinteractiveatelier@gmail.com

Turn static files into dynamic content formats.

Create a flipbook
Issuu converts static files into: digital portfolios, online yearbooks, online catalogs, digital photo albums and more. Sign up and create your flipbook.
Via by Lathish Ram - Issuu