

portfolio.



Lathifah Nur Fathiyya | 2024
Hi!
My name is Lathifah Nur Fathiyya, Graduated from Architecture undergraduate program in Universitas Islam Indonesia. Over the past year I had the opportunity to join planning consultant PT Surya Global Prima that focused on hospital and public building. I work on the 3D & Conceptual team as Junior Architect. I am responsible for making concept design, planning and 2D drawing, 3D modelling, rendering, making presentations for clients, and also making green building architectural/planning reports. In addition, I also had freelance experience in PT Sinca Mataram and PT Bayuaji Cook Ateliers as Junior Architect responsible for designing and planning residential and boarding house renovation.
I am using ArchiCAD (BIM) for drafting and 3D modelling. To enhance my knowledge about BIM softwares, I am also learning to operate Revit. In doing so, I am confident that I can contribute to the company's growth.
With my experience and strong interest as Junior Architect, I am confident that I can be considered to fill that position. With this letter, my CV and portfolio attached for detailed information. Thank you for your time and consideration. I am looking forward to hearing the good news.
Best regards,
Lathifah Nur Fathiyya
15.01.1999
Phone
LinkedId
Issuu
Domicile
: Lathifahfathiyya@gmail.com
: +6281 229 701 065
: Lathifah Nur Fathiyya
: Lathifah Fathiyya
: Sleman, Yogyakarta
August 2024 - Now
Junior Architect | PT. Bayuaji Cook Ateliers
Prepare concept and moodboard of interior and lighting design
Create 2D and 3D Modeling using BIM - Archicad Software
Provide DED of lighting design from senior lighting designer using AutoCAD software
Calcute BoQ of the design
July 2024
Junior Architect | PT. Sinca Mataram
Prepare concept and moodboard of building facade and interior design.
Create 2D and 3D Modeling using BIM - Archicad Software
Coordinate & collaborate with construction managements, civil engineer and other vendor to solve design problem
August 2023 - June 2024
Junior Architect | PT. Surya Global Prima
Prepare concept and moodboard of proposal design for client
Provide 2D and 3D Modeling from principal and senior architect using BIM - Archicad
Software
3D visualization by rendering using Enscape
Prepare design master plan reports
Coordinate & collaborate with construction managements, civil engineer, drafter and other vendor to solve design problem
Prepare green building reports to fulfil green building criteria from BGH
February 2022 - July 2022
Universitas Islam Indonesia
Assistant Lecturer, Assisting and assessing Integrated Building Technology class held by Department of Architecture.
PUBLISHING
2021
Sakapari - Seminar Karya dan Pameran Arsitektur Indonesia
Publish a paper with the title "Aktivitas Kuliner Tradisional sebagai Fenomena Placemaking
Hutan Kota Rajawali, Batang"
EDUCATION
2022 - 2023
Universitas Islam Indonesia
Program Profesi Arsitek
GPA: 3.78 out of 4.00
2017-2021
Universitas Islam Indonesia - Bachelor of Architecture
GPA: 3.63 out of 4.00
Final Project: Design of Floating Seafood Culinary Center in Sigandu Beach Batang with Opened Kitchen Concept.
2014 - 2017
SMA PPMI Assalaam Sukoharjo
VOLUNTEER
2022
BP2P JAWA III - Klinik Rumah Swadaya
Collaborating with BP2P Jawa III designing the “Bank Desain Klinik Rumah Swadaya”, a selfsupporting house design was produced with a socio-cultural approach to the hierarchy of Joglo house space.
2023
Ekowisata Kawasan Air Kedung Gender Josutan, Karangsari, Kulon Progo
Collaborating with the Government of Karangsari in proposing an ecotourism design concept for “Ekowisata Kawasan Air Kedung Gender Josutan” area to increase local tourism after COVID-19.
DESIGNING SKILL & TOOLS
Hand Drawing and Sketching
Modelling and Drafting
Archicad (BIM), SketchUp, Revit (BIM)
Post - Processing
Adobe Illustrator, Adobe Photoshop, Corel Draw
Rendering
Twinmotion, Enscape
Basic Skill for coordinate with others
Autocad
LANGUAGE PROFIENCY
Indonesian (Native)
Javanese (Native)
English (Intermediate) - CEPT test by CILACS UII Score 505










LATHIFAH
RUMAH SAKIT JIH PURWOKERTO - LOD 300
Purwokerto, Central Java - 2023
Academic Project
RSIA AMANAH PROBOLINGGO - LOD 200
Probolinggo, East Java - 2024
Work Project
MOMMIES CLINIC COLOMADU - LOD 200
Karanganyar, Central Java - 2023
Work Project
KOS HSB RESIDENCE - LOD 300
Sleman, DIY - 2023
Work Project
KOST DAN RUMAH JOGLO - LOD 300
Yogyakarta, DIY - 2022
Work Project
LABORATORIUM KEWIRAUSAHAAN UIN SURAKARTA
Sukoharjo, Central Java - 2024
Work Project
INTERIOR RS PKU AMANAH SUMPIUH
Karanganyar, Central Java - 2023
Work Project
Type
Year
Location
Floor Area
Owner Involvement
Software
Supervisior
: Hospital : 2023
: Purwokerto
: 3.037,7m2
: Yayasan Badan Wakaf Universitas Islam Indonesia
: Concept Design, Schematic Design, 3D Modelling, Render, DED, Laporan Perancangan
: Archicad, Twinmotion
: Handoyotomo, Ar., Ir., MSA., IAI., GP

KONSEP
Perencanakan Bangunan Gedung Layanan Kesehatan (Rumah Sakit Umum) yang sesuai dengan tuntutan kebutuhan dan aspirasi pengguna. Dengan tujuan untuk mendorong produktivitas kerja, (enhance productivity), mengurangi biaya operasional bangunan (reduce cost), rancangan ruang yang fleksibel dan menjamin terjalin interaksi penguna (flexibility+interaction), Meningkatkan image (Express The Brand) dan mengurangi dampak terhadap lingkungan (reduce environmental impact).

Lathifah Nur Fathiyya
Gambar Teknik




4. Pencahayaan
5. Fungsi
6. Final
KEBUTUHAN RUANG

SITEPLAN
Lathifah Nur Fathiyya
ZONASI
Resiko Sangat Tinggi
Resiko Tinggi
Resiko Sedang
Resiko Rendah

AKSONOMETRI DENAH & ZONASI BERDASARKAN RESIKO PENULARAN PENYAKIT
Basement
Lantai2
Groundfloor
Lantai3
Lantai1
Lantai4
LantaiAtap



SISTEM STRUKTUR
Sesuai Laporan Hasil Pengajuan Tanah nomor
043/Kalab.MT/01/Lab.MT/VII/2019 didapatkan saran untuk menggunakan pondasi sumuran. Penggunaan shearwall (ketebalan 30cm) untuk struktur pendukung bangunan, digunakan sebagai core bangunan untuk area servis berupa lift kebakaran, lift servis, lift pengunjung, dan lift pasien Penggunaan struktur frame beton bertulang dengan elemen kolom dan balok
* Pengerjaan 3D menggunakan Archicad (BIM)

SISTEM MEP
Air Bersih
Menggunakan konsep Down Feed System
Air Kotor
Air buangan black water dari WC disalurkan melalui pipa menuju ke
IPAL yang berada di luar bangunan level basement
Penghawaan
Penghawaan buatan dengan sistem VRF
Struktur Frame dengan Kolom dan Balok
Reta ning Wal Pondasi Sumuran
Shear Wall
GWT
Pompa





Ruang MRI
Rawat Inap Kelas Standar B Innercourt Lobby
PENCAHAYAAN ALAMI PADA RAWAT INAP INTERIOR
Owner Involvement
Software
Principal
Supervisior
: Hospital : 2024
: Probolinggo
: 1.275 m2
: RSIA Amanah Probolinggo
: Schematic Design, 3D Modelling
: Archicad
: Ar. Baritoadi Buldan Rayaganda Rito, S.T., M.A., IAI., GP
: Ar.Yudha Andrianto, S.T., IAI.



Area Pengembangan Area Eksisting


Bangunan Pengembangan
Luas Bangunan
Lantai 1: 378,03 m2
Lantai 2: 350,05 m2
Lantai 3: 350,05 m2
Koridor Penggubung
Lantai 1: 67,41 m2
Lantai 2: 27,96 m2
Lantai 3: 33,86 m2
Ramp: 67,26 m2
TOTAL LUAS: 1.274,62 m2


Jumlah Bed
IRNA 2TT: 10 Bed
IRNA 4TT: 20 Bed
TOTAL BED: 30 Bed
Koridor Penggubung
Jmlh Poli: 2 Unit
Jmlh Retail: 3 Unit
Jmlah Parkir Mobil: 5 Unit

Rencana pengembangan RSIA Amanah Purbolinggo menjadi Rumah Sakit Ibu dan Anak (Rumah Sakit Khusus Tipe C)
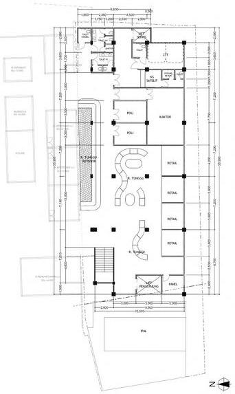
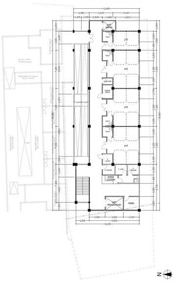
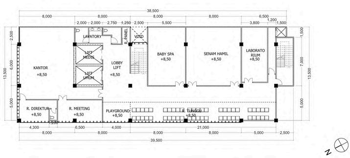
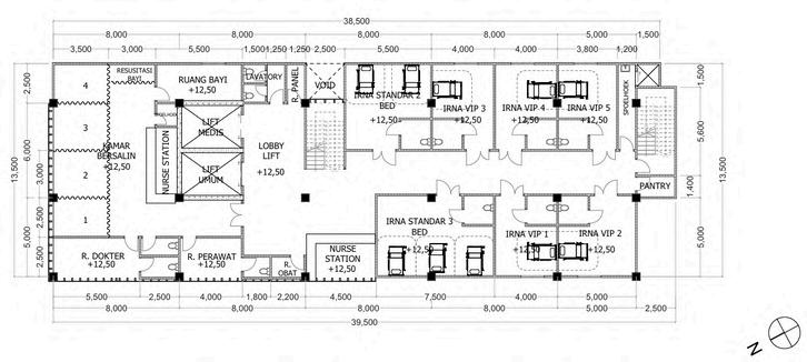
DENAH LANTAI 2
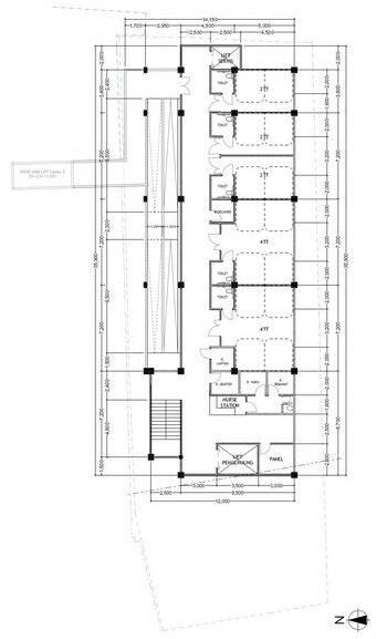
DENAH LANTAI 3
DENAH LANTAI 1
03. MOMMIES CLINIC COLOMADU - LOD 200
: Clinic
: 2023
Location
Floor Area
Owner
Involvement
Software
Principal
Supervisior
: Karanganyar, Jawa Tengah
: 1.275 m2
: RSIA Amanah Probolinggo
: Schematic Design, 3D Modelling, Render
: Archicad, Enscape
: Ar. Baritoadi Buldan Rayaganda Rito, S.T., M.A., IAI., GP
: Ar.Yudha Andrianto, S.T., IAI.


Nur Fathiyya
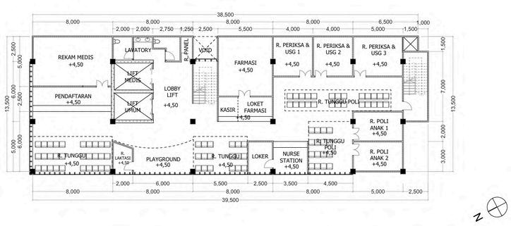
DENAH




DENAH LANTAI 3
DENAH LANTAI 4
DENAH LANTAI 1
DENAH LANTAI 2
: Residence : 2023
: Sleman, DIY : 579m2
: Private-Owned
: Concept Design, Schematic Design, 3D Modelling, Render
: Archicad, SketchUp, Illustrator, Photoshop, Enscape
: -

BIM Portfolio | Lathifah Nur Fathiyya
Bangunan kost dengan 3 lantai, dimana lantai 1 berfungsi sebagai retail caffe dan area privat pemilik kost. Lantai 2 dan 3 berfungsi sebagai area kamar kost yang dilengkapi ruang komunal di lantai 2.




Ruang komunal berfungsi sebagai tempat berinteraksi antara penghuni kost atau hanya sekedar mencari suasana baru.
DENAH Lantai
: Housing : 2022
: Yogyakarta : 472 m2
: Private-Owened
: Concept Design, Schematic Design, 3D Modelling, Render
: Archicad, Twinmotion
: Ikhlasul Amal and Rizky Aprian as Engineer

BIM Portfolio | Lathifah Nur Fathiyya
Kost dan Rumah Joglo





Bangunan eksisting memiliki tinggi 1 lantai dengan fungsi rumah tinggal dan usaha kost.
Dikarenakan Rumah Joglo memiliki nilai history bagi pemilik rumah, maka ide awal projek ini adalah merenovasi Rumah Joglo tanpa mengubah fasad secara ekstrim. Dengan pertimbangan struktur dan fungsi, maka perlu dilakukan perbaikan struktur pada area kost dan belakang rumah joglo sebagai respon penambahan fungsi bangunan.
R. Tamu
Dapur
R. Santai
Mushola
Type
Year
Location
Floor Area
Owner
Involvement
Software
Principal
Supervisior
: Commercial
: 2024
: Sukoharjo, Jawa Tengah
: 1.094,49m2
: Universitas Islam Negeri Raden Mas Said Surakarta
: Concept Design, Schematic Design, Render, Laporan Perancangan, Landscape Concept
: Archicad, SketchUp, Enscape, Photoshop
: Ar. Baritoadi Buldan Rayaganda Rito, S.T., M.A., IAI., GP
: Ar. M Ridho P. K., S.Ars., IAI

BIM Portfolio | Lathifah Nur Fathiyya 15
Perencanaan Laboratorium Kewirausahaan ini menggabungkan fungsi retail, kantor, learning space, dan ruang meeting dalam satu bangunan baru yang terdiri dari 2 lantai dan 1 rooftop. Menerapkan konsep selaras dengan lingkungan UIN Surakarta, bangunan ini memadukan elemen islami Jawa, menyediakan ruang terbuka, dan jaringan rute pejalan kaki yang berkesinambungan serta aman dan nyaman ke semua fasilitas universitas.


Floor
Owner
Involvement
Software
Principal
Supervisior
: Hospital
: 2023
: Sumpiuh, Banyumas, Jawa Tengah
: 2.800m2
: Muhammadiyah Sumpiuh
: 3D Modelling Interior, Render
: SketchUp, Enscape
: Ar. Baritoadi Buldan Rayaganda Rito, S.T., M.A., IAI., GP
: Ar. Hani Verandika, S.Ars. & Ar. Miftakhul Jannah, S.Ars.

BIM Portfolio | Lathifah Nur Fathiyya









Poliklinik
R. Tunggu
Lobby Lift
Poliklinik
irna VVIP
Administrasi IGD
IRNA VIP
R. Tunggu ICU
R. Tunggu ICU
Amanah Sumpiuh