

COMFORT COMMUNITY BUILD
UNDERGRADUATE PORTFOLIO
TEXAS TECH UNIVERSITY
LAUREN LEE TARIN 2023 - 2025
COMFORT COMMUNITY BUILD
LAUREN L. TARIN
TABLE OF CONTENTS
EL PASO CONNECTED TRANSIT
URBAN MOBILITY TRANSIT HUB
01
ADAPTIVE SHADE CORRIDOR
SHADING FOR SUSTAINABLE URBAN SPACE
09
ROOTED FAMILY HOUSING
RESIDENTIAL MICRO HOUSING
05
ULTRAVIOLE(N)T EXPOSURES
ANALYSING URBAN LAND SCAPE AND IMPACT ON UV EXPOSURE
13


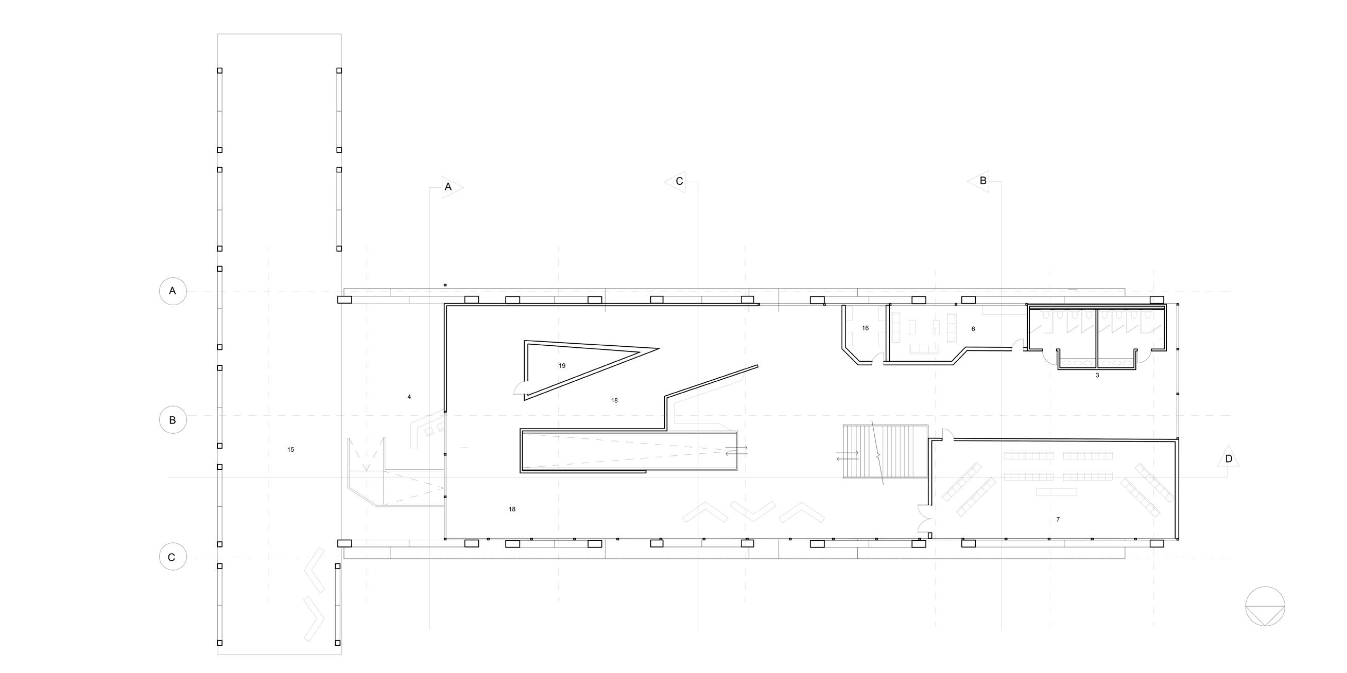
Designed with exposed trusses supported by buttresses, this transportation hub combines structural efficiency with family-friendly design. The lower level is dedicated to children and caregivers, featuring play areas, family lounges, and kid-friendly amenities. The space creates a comfortable, easy-to-navigate environment for families traveling through.
TERM: FALL 2023
PROJECT TYPE: ACADEMIC (INDIVIDUAL)
INSTRUCTOR: KIM MCGLONE
INSTITUTION: TEXAS TECH COLLEGE OF ARCHITECTURE - EL PASO CONNECTED TRANSIT EXPLODED AXON









ROOTED FAMILY HOUSING
Modular micro-housing system designed for expecting paretns and small families, featuring interlocking units. At its core, a central hub that provides services, including a maternity clinic, marketplace, communal kitchen, and library. This project creates stability, care, and community.
TERM: SPRING 2024
PROJECT TYPE: ACADEMIC (INDIVIDUAL)
INSTRUCTOR: BARAJAS
INSTITUTION: TEXAS TECH COLLEGE OF ARCHITECTURE - EL PASO

SKIN ITTERATION 2
SKIN ITTERATION 1
CONNECTION
Modular housing system features male and female connectors, allowing units to stack like LEGO blocks and link from both sides. The interlocking skin acts as both structure and enclosure.
COMMUNAL LEVEL 2
MATERNITY LEVEL 3
PROGRAM LEGEND
1. MARKET
2. GYM
3. DAYCARE
4. STORE FRONTS / FOOD
5. LIVING PODS
6. RESTROOMS
7. LAUNDRY
8. LIBRARY
9. STUDY POD
10. LAB
11. CLINIC OFFICE
12. ON CALL POD
13. BOTANICAL GARDEN
14. BIRTHING PODS
15. STORAGE

ADAPTIVE SHADE CORRIDOR
The Adaptive Shade Corridor transforms the E. Father Rahm corridor in El Paso’s Segundo Barrio with a modular bench and shade system designed for flexibility and community adaptability. Utilizing an innovative slot system, additional shade structures can be seamlessly added, allowing the space to evolve based on user needs. This project addresses the challenges of extreme heat and limited seating, creating a more comfortable, functional, and community-driven public space.
TERM: FALL 2024
PROJECT TYPE: ACADEMIC (INDIVIDUAL)
INSTRUCTOR: ANDRES GANDARA
INSTITUTION: TEXAS TECH COLLEGE OF ARCHITECTURE - EL PASO
ASSEMBLY




ULTRAVIOLE(N)T EXPOSURES
For this project, we focused on mapping three significant parks in Segundo Barrio to analyze their spatial relationships with the built environment and describe conditions of ultraviolet radiation exposure in the border region. Our approach included mapping parks and trees to understand shade distribution, analyzing building shadows and occlusion mapping to assess sun exposure, and using hemispheric mapping to study light distribution in open spaces. Additionally, we documented demolished buildings to examine changes in the urban landscape and their impact on UV exposure.
TERM: FALL 2024 -
PROJECT TYPE: PROFESIONAL GROUP
INSTRUCTOR: STEPHEN MUELLER,ERSELA KRIPA INSTITUTION: TEXAS TECH COLLEGE OF ARCHITECTURE - EL PASO DRAWINGS BY: LAUREN TARIN, EMILY COSSIO PROJECT FOR OPERATIONAL SPATIAL TECHNOLOGIES (POST)







Buildings
Demolished Buildings
Building Shadows Trees + Shadows
Hemispheric Mapping
Occlusion Mapping